357 El Dorado Boulevard S Cape Coral, FL 33991
For Sale MLS# 2025000791
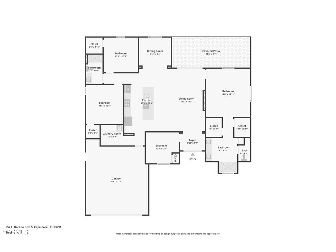
4 beds 2 baths 1,810 sq ft Single Family
Details for 357 El Dorado Boulevard S
MLS# 2025000791
Description for 357 El Dorado Boulevard S, Cape Coral, FL, 33991
Brand New 4-Bedroom Pool Home – Just Completed. This stunning new construction home offers the perfect blend of elegance, comfort, and Florida lifestyle living. 4 Bedrooms 2 Full Bathrooms 2-Car Garage with over 1810 Sq Feet of Air-Conditioned Living Space. Concrete Block Construction with Hurricane-Impact Windows & Sliders Beautifully Landscaped, Fully Fenced Backyard.. Not in a Flood Zone.. City Water & Sewer – worry-free utilities. ALL ASSESMENTS PAID IN FULL... Exterior Features. Gorgeous brick circular driveway. Sparkling saltwater pool with sun-shelf for lounging in the Florida sun. Outdoor shower and outdoor kitchen with sink, LED lighting & dual fans. Fully fenced yard with plenty of space for pets and family. Interior Highlights... Elegant tray ceilings and electric fireplace in the living area. 24” x 48” Porcelain Tile Flooring throughout the entire home. Chef’s kitchen with: Expansive quartz waterfall island with built-in wireless chargers. Double ovens, convection microwave, and stainless-steel appliances. White & brown-toned cabinetry with LED lighting accents. Formal dining room for family gatherings and entertaining Stylish interior doors throughout the home. Remote-controlled ceiling fans in every room for comfort and convenience. Spa-Like Bathrooms. LED-lit mirrors and floor-to-ceiling tiled glass showers. Modern floating vanities for a clean, contemporary look. Primary suite includes: Tray ceiling. His & Her walk-in closets. Double vanity with his & her sinks. Additional Upgrades: Epoxy-finished garage floors. Energy-efficient LED lighting throughout. Beautifully landscaped grounds. Location: Close to shopping, dining, and entertainment. Convenient access to everything you need while enjoying the quiet comfort of your own oasis. Also, Home right next door is Brand new as well and just finished, are you looking for 2 homes for your friends or family. Look no further..
Listing Information
Property Type: Residential, Single Family Residence
Status: Active
Bedrooms: 4
Bathrooms: 2
Lot Size: 0.25 Acres
Square Feet: 1,810 sq ft
Year Built: 2025
Garage: Yes
Stories: 1 Story
Construction: Block,Concrete,Stucco
Construction Display: New Construction
Subdivision: Cape Coral
Furnished: Yes
County: Lee
Days On Market: 202
Construction Status: Under Construction
Room Information
Bathrooms
Full Baths: 2
Additonal Room Information
Laundry: Dryer Hookup, Washer Hookup
Interior Features
Appliances: Electric Cooktop, Ice Maker, RefrigeratorWithIce Maker, Dishwasher, Disposal, Microwave, Refrigerator
Flooring: Tile
Doors/Windows: Impact Glass
Additional Interior Features: Kitchen Island, Split Bedrooms, Tray Ceiling(s), Bathtub, Bedroom on Main Level, Built-in Features, Fireplace, Eat-In Kitchen, French Door(s)/Atrium Door(s), Dual Sinks, Main Level Primary, Separate Shower, Separate/Formal Dining Room
Utilities
Water: Assessment Paid, Public
Sewer: Assessment Paid, Public Sewer
Other Utilities: Cable Not Available
Cooling: Electric, Ceiling Fan(s), Central Air
Heating: Central, Electric
Exterior / Lot Features
Attached Garage: Attached Garage
Garage Spaces: 2
Parking Description: Attached, Paved, Covered, Circular Driveway, Garage Door Opener, Garage, driveway, Two Spaces
Roof: Shingle
Pool: Pool Equipment, In Ground, Salt Water, Concrete
Lot View: Landscaped,Pool
Lot Dimensions: 79 x 137 x 89 x 129
Zoning: RD-D
Additional Exterior/Lot Features: Security/High Impact Doors, Outdoor Shower, Fence, Outdoor Kitchen, Open, Porch, Oversized Lot
Community Features
Community Features: Non-Gated
Security Features: Smoke Detector(s)
Driving Directions
Burnt Store Rod to Ceitus Pkwy that turns into El Dorado Blvd S home in Right side.
Financial Considerations
Terms: All Financing Considered,Cash,FHA,VA Loan
Tax/Property ID: 17-44-23-C3-03918.0090
Tax Amount: 2330.11
Tax Year: 2024
A broker reciprocity listing courtesy: Schiff Realty, Inc
Based on information provided by FGCMLS. Internet Data Exchange information is provided exclusively for consumers’ personal, non-commercial use, and such information may not be used for any purpose other than to identify prospective properties consumers may be interested in purchasing. This data is deemed reliable but is not guaranteed to be accurate by Edina Realty, Inc., or by the MLS. Edina Realty, Inc., is not a multiple listing service (MLS), nor does it offer MLS access.
Copyright 2026 FGCMLS. All Rights Reserved.
Payment Calculator
Interest rate and annual percentage rate (APR) are based on current market conditions, are for informational purposes only, are subject to change without notice and may be subject to pricing add-ons related to property type, loan amount, loan-to-value, credit score and other variables. Estimated closing costs used in the APR calculation are assumed to be paid by the borrower at closing. If the closing costs are financed, the loan, APR and payment amounts will be higher. If the down payment is less than 20%, mortgage insurance may be required and could increase the monthly payment and APR. Contact us for details. Additional loan programs may be available. Accuracy is not guaranteed, and all products may not be available in all borrower's geographical areas and are based on their individual situation. This is not a credit decision or a commitment to lend.
Sales History & Tax Summary for 357 El Dorado Boulevard S
Sales History
| Date | Price | |
|---|---|---|
| Currently not available. | ||
Tax Summary
| Tax Year | Estimated Market Value | Total Tax |
|---|---|---|
| Currently not available. | ||
Data powered by ATTOM Data Solutions. Copyright© 2026. Information deemed reliable but not guaranteed.
Schools
Schools nearby 357 El Dorado Boulevard S
| Schools in attendance boundaries | Grades | Distance | Rating |
|---|---|---|---|
| Loading... | |||
| Schools nearby | Grades | Distance | Rating |
|---|---|---|---|
| Loading... | |||
Data powered by ATTOM Data Solutions. Copyright© 2026. Information deemed reliable but not guaranteed.
The schools shown represent both the assigned schools and schools by distance based on local school and district attendance boundaries. Attendance boundaries change based on various factors and proximity does not guarantee enrollment eligibility. Please consult your real estate agent and/or the school district to confirm the schools this property is zoned to attend. Information is deemed reliable but not guaranteed.
SchoolDigger ® Rating
The SchoolDigger rating system is a 1-5 scale with 5 as the highest rating. SchoolDigger ranks schools based on test scores supplied by each state's Department of Education. They calculate an average standard score by normalizing and averaging each school's test scores across all tests and grades.
Coming soon properties will soon be on the market, but are not yet available for showings.