$299,999
358 18th Street SW Owatonna, MN 55060
For Sale MLS# 7009461
3 beds 3 baths 1,502 sq ft Single Family
Details for 358 18th Street SW
MLS# 7009461
Description for 358 18th Street SW, Owatonna, MN, 55060
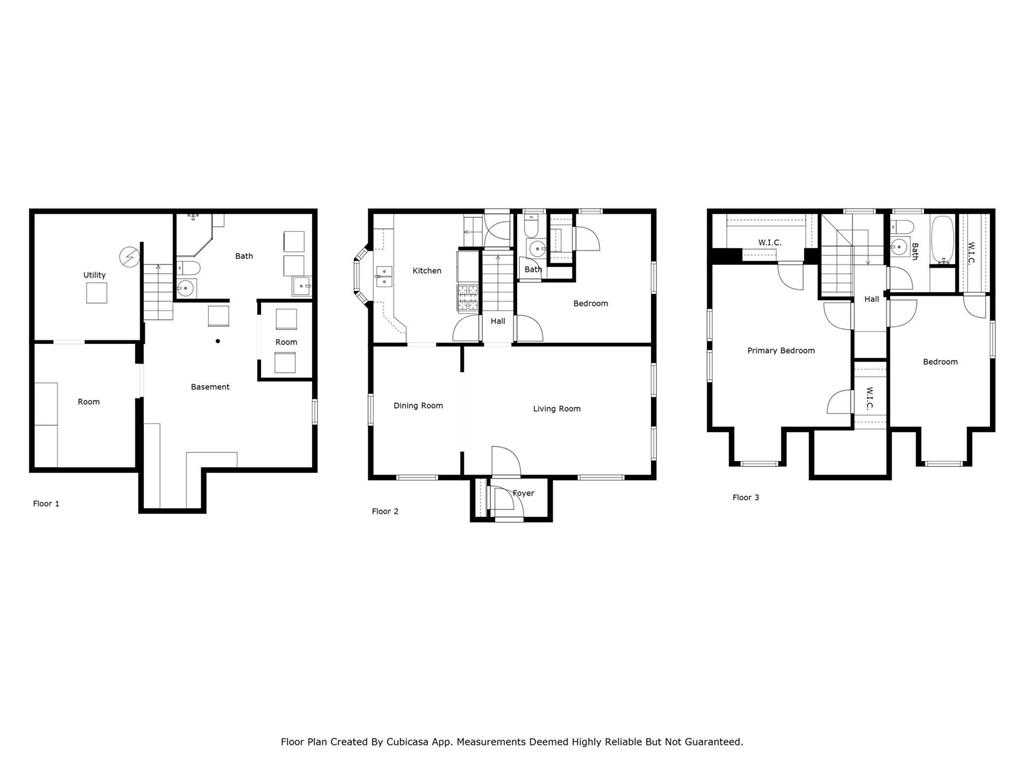
This well maintained 1½ story home sits proudly on a corner cul de sac lot and blends timeless charm with standout functionality. Inside, you’ll find 3 bedrooms and 3 bathrooms, including a convenient main floor bedroom, a separate dining room, and a bright kitchen highlighted by a welcoming bay window that fills the space with natural light. Outside is where this home truly shines, an impressive 3-stall garage offers exceptional space for vehicles, storage, hobbies, or toys, complemented by a wide concrete driveway that makes coming and going effortless. The large patio and fenced-in yard create a private outdoor retreat, perfect for entertaining or relaxing, while the basement provides usable storage with added potential. Finished with durable 50-year architectural shingles and surrounded by mature landscaping, this home offers comfort, curb appeal, and practicality all in one inviting package.
Listing Information
Property Type: Residential, Single Family
Status: Active
Bedrooms: 3
Bathrooms: 3
Lot Size: 0.22 Acres
Square Feet: 1,502 sq ft
Year Built: 1939
Foundation: 728 sq ft
Garage: Yes
Stories: 1.5 Stories
Subdivision: Hagen
County: Steele
Days On Market: 59
Construction Status: Previously Owned
School Information
District: 761 - Owatonna
Room Information
Main Floor
Bedroom 1: 13.2 x 12.4
Dining Room: 8.6 x 12.5
Kitchen: 12.6 x 9.10
Living Room: 18.6 x 12.5
Upper Floor
Bedroom 2: 10 x 16.2
Bedroom 3: 13.5 x 19
Bathrooms
Full Baths: 1
3/4 Baths: 1
1/2 Baths: 1
Additonal Room Information
Dining: Separate/Formal Dining Room
Laundry: In Basement
Bath Description: 3/4 Basement,Main Floor 1/2 Bath,Upper Level Full Bath
Interior Features
Square Footage above: 1,388 sq ft
Square Footage below: 114 sq ft
Appliances: Gas Water Heater, Range, Refrigerator, Washer, Water Softener - Owned, Dryer
Basement: Storage Space, Sump Pump, Unfinished
Additional Interior Features: Ceiling Fan(s), Kitchen Window, Main Floor Bedroom, Washer/Dryer Hookup
Utilities
Water: City Water/Connected
Sewer: City Sewer/Connected
Cooling: Central
Heating: Forced Air, Natural Gas
Exterior / Lot Features
Attached Garage: Attached Garage
Garage Spaces: 3
Parking Description: Garage Door Opener, Attached Garage, Driveway - Concrete, Floor Drain, Garage Door Height - 8, Garage Sq Ft - 673.0
Exterior: Aluminum Siding
Roof: Architectural Shingle
Lot Dimensions: 90 x 106
Zoning: Residential-Single Family
Fencing: Chain Link
Additional Exterior/Lot Features: Patio, Hot Tub, Corner Lot, Tree Coverage - Medium, Road Frontage - City
Driving Directions
Head west on US-14 W/US-218N, take County Rd 45 exit toward Owatonna. Turn right onto County Rd 45/S Cedar Ave. Turn left onto 18th St. SW, destination will be on the right. 358 18th St. SW
Financial Considerations
Tax/Property ID: 173800107
Tax Amount: 2460
Tax Year: 2025
HomeStead Description: Homesteaded
A broker reciprocity listing courtesy: RE/MAX Venture
The data relating to real estate for sale on this web site comes in part from the Broker Reciprocity℠ Program of the Regional Multiple Listing Service of Minnesota, Inc. Real estate listings held by brokerage firms other than Edina Realty, Inc. are marked with the Broker Reciprocity℠ logo or the Broker Reciprocity℠ thumbnail and detailed information about them includes the name of the listing brokers. Edina Realty, Inc. is not a Multiple Listing Service (MLS), nor does it offer MLS access. This website is a service of Edina Realty, Inc., a broker Participant of the Regional Multiple Listing Service of Minnesota, Inc. IDX information is provided exclusively for consumers personal, non-commercial use and may not be used for any purpose other than to identify prospective properties consumers may be interested in purchasing. Open House information is subject to change without notice. Information deemed reliable but not guaranteed.
Copyright 2026 Regional Multiple Listing Service of Minnesota, Inc. All Rights Reserved.
Payment Calculator
Interest rate and annual percentage rate (APR) are based on current market conditions, are for informational purposes only, are subject to change without notice and may be subject to pricing add-ons related to property type, loan amount, loan-to-value, credit score and other variables. Estimated closing costs used in the APR calculation are assumed to be paid by the borrower at closing. If the closing costs are financed, the loan, APR and payment amounts will be higher. If the down payment is less than 20%, mortgage insurance may be required and could increase the monthly payment and APR. Contact us for details. Additional loan programs may be available. Accuracy is not guaranteed, and all products may not be available in all borrower's geographical areas and are based on their individual situation. This is not a credit decision or a commitment to lend.
Sales History & Tax Summary for 358 18th Street SW
Sales History
| Date | Price | |
|---|---|---|
| Currently not available. | ||
Tax Summary
| Tax Year | Estimated Market Value | Total Tax |
|---|---|---|
| Currently not available. | ||
Data powered by ATTOM Data Solutions. Copyright© 2026. Information deemed reliable but not guaranteed.
Schools
Schools nearby 358 18th Street SW
| Schools in attendance boundaries | Grades | Distance | Rating |
|---|---|---|---|
| Loading... | |||
| Schools nearby | Grades | Distance | Rating |
|---|---|---|---|
| Loading... | |||
Data powered by ATTOM Data Solutions. Copyright© 2026. Information deemed reliable but not guaranteed.
The schools shown represent both the assigned schools and schools by distance based on local school and district attendance boundaries. Attendance boundaries change based on various factors and proximity does not guarantee enrollment eligibility. Please consult your real estate agent and/or the school district to confirm the schools this property is zoned to attend. Information is deemed reliable but not guaranteed.
SchoolDigger ® Rating
The SchoolDigger rating system is a 1-5 scale with 5 as the highest rating. SchoolDigger ranks schools based on test scores supplied by each state's Department of Education. They calculate an average standard score by normalizing and averaging each school's test scores across all tests and grades.
Coming soon properties will soon be on the market, but are not yet available for showings.