3613 S Gardenia Avenue Tampa, FL 33629
For Sale MLS# TB8409912
2 beds 2 baths 1,601 sq ft Single Family
Details for 3613 S Gardenia Avenue
MLS# TB8409912
Description for 3613 S Gardenia Avenue, Tampa, FL, 33629
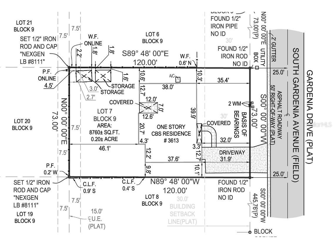
Incredible opportunity to build your dream home in one of South Tampa’s most sought-after neighborhoods—Bel Mar Shores. Offered at a highly competitive price of $599,000, this 73 x 120 lot (8,760 square feet) is surrounded by newly built luxury homes, making it the perfect canvas for your custom build. Located within the Plant High School district and also zoned for Dale Mabry Elementary and Coleman Middle School, this property offers exceptional access to top-rated public schools—one of the most desirable draws for homeowners and builders in the area. Zoned RS-75 with no HOA or CDD, this lot provides flexibility and space to construct a substantial single-family residence with ample outdoor living potential, including a pool or expansive backyard entertaining area. The central South Tampa location puts you minutes from the Westshore Marina District, Bayshore Boulevard, and some of Tampa’s best dining, shopping, and entertainment options. It also offers easy access to Downtown Tampa, Hyde Park Village, Tampa International Airport, and major commuter routes including the Gandy and Howard Frankland bridges for quick trips to St. Pete and the Gulf beaches. Whether you're a builder looking for your next profitable investment or a homeowner ready to design a custom residence in a prestigious neighborhood, this property checks all the boxes. With strong demand for new construction and limited inventory in this area, the upside is clear. Don’t miss this rare chance to secure land in one of Tampa Bay’s most desirable residential pockets.
Listing Information
Property Type: Residential, Single Family Residence
Status: Active
Bedrooms: 2
Bathrooms: 2
Lot Size: 0.20 Acres
Square Feet: 1,601 sq ft
Year Built: 1954
Garage: Yes
Stories: 1 Story
Construction: Block,Concrete,Stucco
Construction Display: New Construction
Subdivision: Bel Mar Shores Rev
Foundation: Slab
County: Hillsborough
Construction Status: Fixer
School Information
Elementary: Dale Mabry Elementary-Hb
Middle: Coleman-Hb
High: Plant-Hb
Room Information
Main Floor
Kitchen:
Primary Bedroom:
Living Room:
Bathrooms
Full Baths: 2
Interior Features
Flooring: Vinyl
Utilities
Water: Public
Sewer: Public Sewer
Other Utilities: Electricity Available,Sewer Connected,Water Connected
Cooling: Central Air
Heating: Central
Exterior / Lot Features
Attached Garage: Attached Garage
Garage Spaces: 1
Parking Description: driveway
Roof: Other
Lot Dimensions: 73x120
Additional Exterior/Lot Features: Other
Community Features
Community Features: Sidewalks
Driving Directions
From Selmon Expy exit Euclid Ave. head west and make a right to S Gardenia Ave. Property will be on the left. From I-275 exit Dale Mabry Hwy head south, Turn right onto W Euclid Ave than Turn right onto S Gardenia Ave. Property will be on the left.
Financial Considerations
Terms: Cash
Tax/Property ID: A-32-29-18-3TN-000009-00007.0
Tax Amount: 2107
Tax Year: 2024
A broker reciprocity listing courtesy: KELLER WILLIAMS SOUTH SHORE
Based on information provided by Stellar MLS as distributed by the MLS GRID. Information from the Internet Data Exchange is provided exclusively for consumers’ personal, non-commercial use, and such information may not be used for any purpose other than to identify prospective properties consumers may be interested in purchasing. This data is deemed reliable but is not guaranteed to be accurate by Edina Realty, Inc., or by the MLS. Edina Realty, Inc., is not a multiple listing service (MLS), nor does it offer MLS access.
Copyright 2025 Stellar MLS as distributed by the MLS GRID. All Rights Reserved.
Payment Calculator
Interest rate and annual percentage rate (APR) are based on current market conditions, are for informational purposes only, are subject to change without notice and may be subject to pricing add-ons related to property type, loan amount, loan-to-value, credit score and other variables. Estimated closing costs used in the APR calculation are assumed to be paid by the borrower at closing. If the closing costs are financed, the loan, APR and payment amounts will be higher. If the down payment is less than 20%, mortgage insurance may be required and could increase the monthly payment and APR. Contact us for details. Additional loan programs may be available. Accuracy is not guaranteed, and all products may not be available in all borrower's geographical areas and are based on their individual situation. This is not a credit decision or a commitment to lend.
Sales History & Tax Summary for 3613 S Gardenia Avenue
Sales History
| Date | Price | Change |
|---|---|---|
| Currently not available. | ||
Tax Summary
| Tax Year | Estimated Market Value | Total Tax |
|---|---|---|
| Currently not available. | ||
Data powered by ATTOM Data Solutions. Copyright© 2025. Information deemed reliable but not guaranteed.
Schools
Schools nearby 3613 S Gardenia Avenue
| Schools in attendance boundaries | Grades | Distance | Rating |
|---|---|---|---|
| Loading... | |||
| Schools nearby | Grades | Distance | Rating |
|---|---|---|---|
| Loading... | |||
Data powered by ATTOM Data Solutions. Copyright© 2025. Information deemed reliable but not guaranteed.
The schools shown represent both the assigned schools and schools by distance based on local school and district attendance boundaries. Attendance boundaries change based on various factors and proximity does not guarantee enrollment eligibility. Please consult your real estate agent and/or the school district to confirm the schools this property is zoned to attend. Information is deemed reliable but not guaranteed.
SchoolDigger ® Rating
The SchoolDigger rating system is a 1-5 scale with 5 as the highest rating. SchoolDigger ranks schools based on test scores supplied by each state's Department of Education. They calculate an average standard score by normalizing and averaging each school's test scores across all tests and grades.
Coming soon properties will soon be on the market, but are not yet available for showings.