3619 15th Avenue SW Willmar, MN 56201
Active Contingent MLS# 6764769
Other
Details for 3619 15th Avenue SW
MLS# 6764769
Description for 3619 15th Avenue SW, Willmar, MN, 56201
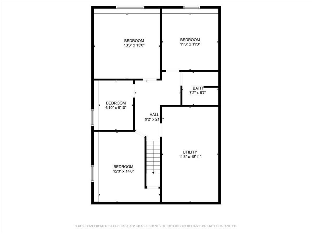
This former shelter care facility, located just outside of Willmar, MN, on County Road 40, offers a unique business opportunity with its well-maintained structure and extensive amenities. The property includes a main building with 12 bedrooms, multiple bathrooms, a large kitchen, and many offices. Additionally, the site features a separate recreation building, a storage shed, and a large paved parking lot, making it suitable for a variety of uses. The building is equipped with modern, energy-efficient geothermal heating and cooling, ensuring year-round comfort and potentially lower operating costs.The versatile layout and comprehensive facilities make this property an ideal candidate for multiple commercial ventures, such as a retreat center, counseling clinic, or a large office building. Its prime location outside of Willmar provides a peaceful setting while remaining easily accessible. With its solid infrastructure and adaptable design, this property is a ready-to-use business space for entrepreneurs looking to start or expand a service-oriented organization in a well-maintained, functional building.
Listing Information
Property Type: Commercial
Status: Active Contingent-Inspection
Lot Size: 5.03 Acres
Square Feet: 5,489 sq ft
Year Built: 1984
Foundation: 3,483 sq ft
Stories: 1 Story
Number Of Units Total: 1
Current Use: Business Service
County: Kandiyohi
Days On Market: 214
Construction Status: Previously Owned
School Information
District: 347 - Willmar
Interior Features
Appliances: Microwave, Dryer, Range, Refrigerator, Water Softener - Owned, Wall Oven, Washer, Double Oven, Water Filtration System, Electric Water Heater
Flooring: Carpet
Basement: Partial, Egress Windows, Concrete Block, Sump Basket, Sump Pump, Finished (Livable), Storage Space
Additional Interior Features: Kitchen Window, Security System, Washer/Dryer Hookup, 220 Volt
Utilities
Water: Well, Drilled
Sewer: Private, Tank with Drainage Field
Other Utilities: Electric Common,Heating Common,Hot Water Common
Cooling: Central
Heating: Other, Forced Air, Geothermal, Propane
Exterior / Lot Features
Parking Description: Parking Lot, Paved Lot, Driveway - Asphalt, On-Street Parking Only, Garage Sq Ft - 0.00
Exterior: Fiber Board
Roof: Metal
Lot Dimensions: 415x527
Zoning: Agriculture
Topography: Level
Fencing: Wood, Privacy, Partial
Additional Exterior/Lot Features: Patio, Tree Coverage - Medium, Zero Lot Line, Underground Utilities, Land Inclusions - Building,Land, Road Frontage - County
Community Features
Community Features: Media Room, Amusement/Party Room
Driving Directions
3619 15th Ave SW, from County Rd 5, take County Rd 40, property will be less than a mile on the left.
Financial Considerations
Other Annual Tax: $153
Tax/Property ID: 330200012
Tax Amount: 152.64
Tax Year: 2025
HomeStead Description: Non-Homesteaded
A broker reciprocity listing courtesy: Weichert REALTORS Tower Properties
The data relating to real estate for sale on this web site comes in part from the Broker Reciprocity℠ Program of the Regional Multiple Listing Service of Minnesota, Inc. Real estate listings held by brokerage firms other than Edina Realty, Inc. are marked with the Broker Reciprocity℠ logo or the Broker Reciprocity℠ thumbnail and detailed information about them includes the name of the listing brokers. Edina Realty, Inc. is not a Multiple Listing Service (MLS), nor does it offer MLS access. This website is a service of Edina Realty, Inc., a broker Participant of the Regional Multiple Listing Service of Minnesota, Inc. IDX information is provided exclusively for consumers personal, non-commercial use and may not be used for any purpose other than to identify prospective properties consumers may be interested in purchasing. Open House information is subject to change without notice. Information deemed reliable but not guaranteed.
Copyright 2026 Regional Multiple Listing Service of Minnesota, Inc. All Rights Reserved.
Payment Calculator
Interest rate and annual percentage rate (APR) are based on current market conditions, are for informational purposes only, are subject to change without notice and may be subject to pricing add-ons related to property type, loan amount, loan-to-value, credit score and other variables. Estimated closing costs used in the APR calculation are assumed to be paid by the borrower at closing. If the closing costs are financed, the loan, APR and payment amounts will be higher. If the down payment is less than 20%, mortgage insurance may be required and could increase the monthly payment and APR. Contact us for details. Additional loan programs may be available. Accuracy is not guaranteed, and all products may not be available in all borrower's geographical areas and are based on their individual situation. This is not a credit decision or a commitment to lend.
Sales History & Tax Summary for 3619 15th Avenue SW
Sales History
| Date | Price | |
|---|---|---|
| Currently not available. | ||
Tax Summary
| Tax Year | Estimated Market Value | Total Tax |
|---|---|---|
| Currently not available. | ||
Data powered by ATTOM Data Solutions. Copyright© 2026. Information deemed reliable but not guaranteed.
Schools
Schools nearby 3619 15th Avenue SW
| Schools in attendance boundaries | Grades | Distance | Rating |
|---|---|---|---|
| Loading... | |||
| Schools nearby | Grades | Distance | Rating |
|---|---|---|---|
| Loading... | |||
Data powered by ATTOM Data Solutions. Copyright© 2026. Information deemed reliable but not guaranteed.
The schools shown represent both the assigned schools and schools by distance based on local school and district attendance boundaries. Attendance boundaries change based on various factors and proximity does not guarantee enrollment eligibility. Please consult your real estate agent and/or the school district to confirm the schools this property is zoned to attend. Information is deemed reliable but not guaranteed.
SchoolDigger ® Rating
The SchoolDigger rating system is a 1-5 scale with 5 as the highest rating. SchoolDigger ranks schools based on test scores supplied by each state's Department of Education. They calculate an average standard score by normalizing and averaging each school's test scores across all tests and grades.
Coming soon properties will soon be on the market, but are not yet available for showings.