363 Sequoia Drive Lake Wales, FL 33859
For Sale MLS# O6233588
3 beds 3 baths 1,557 sq ft Townhouse/Twinhome
OPEN HOUSE: Sunday, 3/15 10:00 AM - 04:00 PM
Details for 363 Sequoia Drive
MLS# O6233588
Description for 363 Sequoia Drive, Lake Wales, FL, 33859
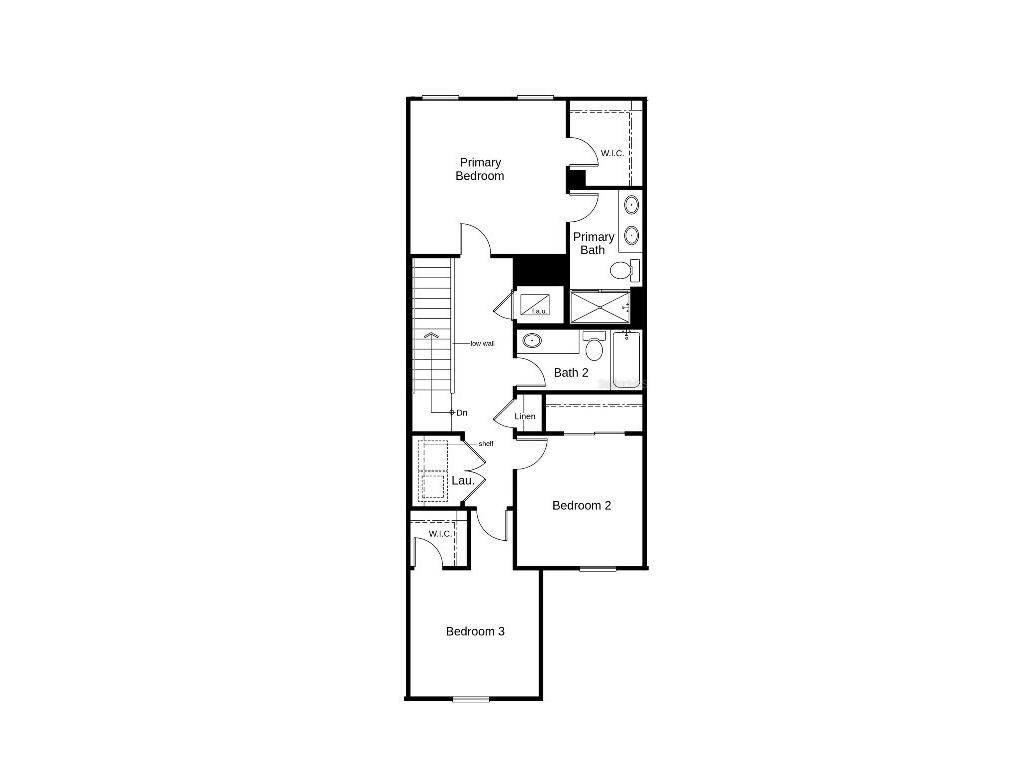
This charming, two-story home showcases an open floor plan with tile flooring and a spacious great room. The kitchen boasts granite countertops, a breakfast bar, pantry, a Moen® faucet, Whirlpool® stainless steel appliances and 36-in. upper cabinets with hardware. Upstairs, enjoy the convenience of a dedicated laundry room. The primary suite features a walk-in closet and connecting bath that offers a dual-sink vanity and walk-in shower with tile surround.
Listing Information
Property Type: Residential, Townhouse
Status: Active
Bedrooms: 3
Bathrooms: 3
Lot Size: 0.06 Acres
Square Feet: 1,557 sq ft
Year Built: 2024
Garage: Yes
Stories: 2 Story
Construction: Block,HardiPlank Type,Stucco,Wood Frame
Construction Display: New Construction
Subdivision: Reserve At Forest Lake
Builder: KB Home
Foundation: Slab
County: Polk
Construction Status: New Construction
Room Information
Main Floor
Great Room: 15x22
Kitchen: 8x13
Upper Floor
Primary Bedroom: 12x13
Bathrooms
Full Baths: 2
1/2 Baths: 1
Additonal Room Information
Laundry: Laundry Closet, Upper Level
Interior Features
Appliances: Range Hood, Dishwasher, Disposal, Range
Flooring: Carpet,Tile
Doors/Windows: ENERGY STAR Qualified Windows
Additional Interior Features: Walk-In Closet(s), Stone Counters, Open Floorplan
Utilities
Water: Public
Sewer: Public Sewer
Other Utilities: High Speed Internet Available
Cooling: Central Air
Heating: Central
Exterior / Lot Features
Attached Garage: Attached Garage
Garage Spaces: 1
Roof: Shingle
Pool: Community
Additional Exterior/Lot Features: Front Porch, Covered
Community Features
Community Features: Sidewalks, Pool, Playground, Clubhouse
Association Amenities: Trail(s)
HOA Dues Include: Maintenance Grounds, Pool(s)
Homeowners Association: Yes
HOA Dues: $300 / Quarterly
Driving Directions
From I-4 West, take Exit 55/Hwy. 27 South. After 20 mi., turn left on Chalet Suzanne Rd. to community on the right.
Financial Considerations
Terms: Cash,Conventional,FHA,VA Loan
Tax/Property ID: 27-29-15-864508-001020
Tax Year: 2023
A broker reciprocity listing courtesy: KELLER WILLIAMS ADVANTAGE REALTY
Based on information provided by Stellar MLS as distributed by the MLS GRID. Information from the Internet Data Exchange is provided exclusively for consumers’ personal, non-commercial use, and such information may not be used for any purpose other than to identify prospective properties consumers may be interested in purchasing. This data is deemed reliable but is not guaranteed to be accurate by Edina Realty, Inc., or by the MLS. Edina Realty, Inc., is not a multiple listing service (MLS), nor does it offer MLS access.
Copyright 2026 Stellar MLS as distributed by the MLS GRID. All Rights Reserved.
Payment Calculator
Interest rate and annual percentage rate (APR) are based on current market conditions, are for informational purposes only, are subject to change without notice and may be subject to pricing add-ons related to property type, loan amount, loan-to-value, credit score and other variables. Estimated closing costs used in the APR calculation are assumed to be paid by the borrower at closing. If the closing costs are financed, the loan, APR and payment amounts will be higher. If the down payment is less than 20%, mortgage insurance may be required and could increase the monthly payment and APR. Contact us for details. Additional loan programs may be available. Accuracy is not guaranteed, and all products may not be available in all borrower's geographical areas and are based on their individual situation. This is not a credit decision or a commitment to lend.
Sales History & Tax Summary for 363 Sequoia Drive
Sales History
| Date | Price | |
|---|---|---|
| Currently not available. | ||
Tax Summary
| Tax Year | Estimated Market Value | Total Tax |
|---|---|---|
| Currently not available. | ||
Data powered by ATTOM Data Solutions. Copyright© 2026. Information deemed reliable but not guaranteed.
Schools
Schools nearby 363 Sequoia Drive
| Schools in attendance boundaries | Grades | Distance | Rating |
|---|---|---|---|
| Loading... | |||
| Schools nearby | Grades | Distance | Rating |
|---|---|---|---|
| Loading... | |||
Data powered by ATTOM Data Solutions. Copyright© 2026. Information deemed reliable but not guaranteed.
The schools shown represent both the assigned schools and schools by distance based on local school and district attendance boundaries. Attendance boundaries change based on various factors and proximity does not guarantee enrollment eligibility. Please consult your real estate agent and/or the school district to confirm the schools this property is zoned to attend. Information is deemed reliable but not guaranteed.
SchoolDigger ® Rating
The SchoolDigger rating system is a 1-5 scale with 5 as the highest rating. SchoolDigger ranks schools based on test scores supplied by each state's Department of Education. They calculate an average standard score by normalizing and averaging each school's test scores across all tests and grades.
Coming soon properties will soon be on the market, but are not yet available for showings.