3710 W Griflow Street Tampa, FL 33629
For Sale MLS# TB8361939
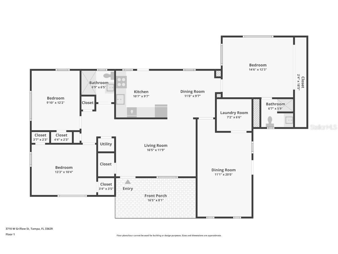
3 beds 2 baths 1,419 sq ft Single Family
Details for 3710 W Griflow Street
MLS# TB8361939
Description for 3710 W Griflow Street, Tampa, FL, 33629
One or more photo(s) has been virtually staged. PRICED TO SELL!!! Don't miss out on this incredible opportunity to own a beautiful 3 bedroom PLUS a FLEX ROOM, 2 bath home in Virginia Park! Located in not Flood Zone and zoned for top-rated schools, this home features a new roof, new HVAC, renovated kitchen, and stylish tile flooring. Located in the heart of South Tampa, this home is just minutes from Hyde Park Village, Midtown Tampa, Westshore mall and International Plaza—offering top-tier shopping, dining, and entertainment. Enjoy nearby favorites like Water + Flour, District South Kitchen, and Meat Market Steakhouse, plus easy access to boutique shops, wine bars, and weekend events. Schedule your showing today!
Listing Information
Property Type: Residential, Single Family Residence
Status: Active
Bedrooms: 3
Bathrooms: 2
Lot Size: 0.19 Acres
Square Feet: 1,419 sq ft
Year Built: 1948
Stories: 1 Story
Construction: Block
Subdivision: Griflow Park Sub
Foundation: Slab
County: Hillsborough
School Information
Elementary: Roosevelt-Hb
Middle: Coleman-Hb
High: Plant-Hb
Room Information
Main Floor
Kitchen: 10x10
Primary Bedroom: 12x14
Living Room: 19x11
Great Room: 11x16
Bathrooms
Full Baths: 2
Additonal Room Information
Laundry: Inside, Laundry Room
Interior Features
Appliances: Dishwasher, Disposal, Microwave, Range
Flooring: Ceramic Tile,Wood
Additional Interior Features: Ceiling Fan(s), Main Level Primary
Utilities
Water: Public
Sewer: Public Sewer
Other Utilities: Electricity Connected,Municipal Utilities,Sewer Connected,Water Connected
Cooling: Central Air, Ceiling Fan(s)
Heating: Central
Exterior / Lot Features
Roof: Shingle
Lot Dimensions: 95x86
Additional Exterior/Lot Features: Front Porch, Patio, Porch
Driving Directions
Dale Mabry Hwy south of Bay to Bay to East on Griflow.
Financial Considerations
Terms: Conventional,FHA,VA Loan
Tax/Property ID: A-33-29-18-3TV-000002-00002.0
Tax Amount: 3293
Tax Year: 2024
A broker reciprocity listing courtesy: MIRANDA LANDA REALTY GROUP LLC
Based on information provided by Stellar MLS as distributed by the MLS GRID. Information from the Internet Data Exchange is provided exclusively for consumers’ personal, non-commercial use, and such information may not be used for any purpose other than to identify prospective properties consumers may be interested in purchasing. This data is deemed reliable but is not guaranteed to be accurate by Edina Realty, Inc., or by the MLS. Edina Realty, Inc., is not a multiple listing service (MLS), nor does it offer MLS access.
Copyright 2025 Stellar MLS as distributed by the MLS GRID. All Rights Reserved.
Payment Calculator
Interest rate and annual percentage rate (APR) are based on current market conditions, are for informational purposes only, are subject to change without notice and may be subject to pricing add-ons related to property type, loan amount, loan-to-value, credit score and other variables. Estimated closing costs used in the APR calculation are assumed to be paid by the borrower at closing. If the closing costs are financed, the loan, APR and payment amounts will be higher. If the down payment is less than 20%, mortgage insurance may be required and could increase the monthly payment and APR. Contact us for details. Additional loan programs may be available. Accuracy is not guaranteed, and all products may not be available in all borrower's geographical areas and are based on their individual situation. This is not a credit decision or a commitment to lend.
Sales History & Tax Summary for 3710 W Griflow Street
Sales History
| Date | Price | Change |
|---|---|---|
| Currently not available. | ||
Tax Summary
| Tax Year | Estimated Market Value | Total Tax |
|---|---|---|
| Currently not available. | ||
Data powered by ATTOM Data Solutions. Copyright© 2025. Information deemed reliable but not guaranteed.
Schools
Schools nearby 3710 W Griflow Street
| Schools in attendance boundaries | Grades | Distance | Rating |
|---|---|---|---|
| Loading... | |||
| Schools nearby | Grades | Distance | Rating |
|---|---|---|---|
| Loading... | |||
Data powered by ATTOM Data Solutions. Copyright© 2025. Information deemed reliable but not guaranteed.
The schools shown represent both the assigned schools and schools by distance based on local school and district attendance boundaries. Attendance boundaries change based on various factors and proximity does not guarantee enrollment eligibility. Please consult your real estate agent and/or the school district to confirm the schools this property is zoned to attend. Information is deemed reliable but not guaranteed.
SchoolDigger ® Rating
The SchoolDigger rating system is a 1-5 scale with 5 as the highest rating. SchoolDigger ranks schools based on test scores supplied by each state's Department of Education. They calculate an average standard score by normalizing and averaging each school's test scores across all tests and grades.
Coming soon properties will soon be on the market, but are not yet available for showings.