3712 Bergamot Street Lake Alfred, FL 33850 - GUM LAKE
For Sale MLS# TB8403872
4 beds 3 baths 1,811 sq ft Single Family
Details for 3712 Bergamot Street
MLS# TB8403872
Description for 3712 Bergamot Street, Lake Alfred, FL, 33850 - GUM LAKE
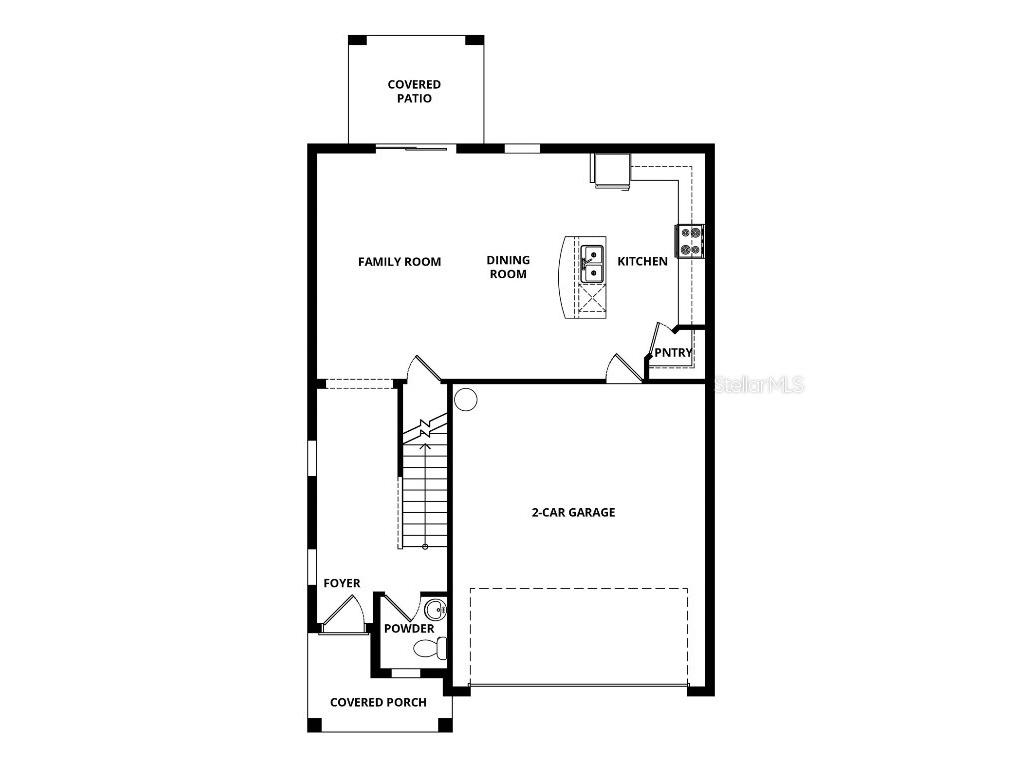
Pre-Construction. To be built. Introducing the Mangrove model at Gum Lake Preserve — a spacious two-story, four-bedroom, two-and-a-half-bath home with a two-car garage and thoughtful design throughout. This home is filled with designer upgrades and offers the perfect amount of space for your family to grow and thrive. Step inside to a grand foyer and discover an open-concept main level with an ideal layout for family gatherings. The kitchen is a true standout, featuring an expansive island with breakfast bar, exceptional counter space, and a generously sized four-shelf pantry to keep everything organized. The kitchen seamlessly flows into the family and dining areas, creating a bright, airy space perfect for entertaining. A sliding glass door leads out to the covered back lanai, blending indoor comfort with outdoor enjoyment. Upstairs, all four bedrooms are tucked away for extra privacy. The spacious loft is a flexible area that can be transformed into a home office, playroom, or media room. The luxurious master retreat easily fits a king-size bed and includes a large walk-in closet and a spa-inspired bathroom with dual vanities and a walk-in shower. Outside, enjoy a long covered front porch and beautifully landscaped front yard. Located in the desirable Gum Lake Preserve, residents enjoy access to walking trails, a community gazebo, children’s playground, fishing pier, picnic area, and a public boat ramp. Just minutes from I-4, this peaceful community offers quick access to both Orlando and Tampa, making it ideal for commuters and nature lovers alike! Don't miss out on this incredible home in a community full of amenities! Schedule your tour today!
Listing Information
Property Type: Residential, Single Family Residence
Status: Active
Bedrooms: 4
Bathrooms: 3
Lot Size: 0.11 Acres
Square Feet: 1,811 sq ft
Year Built: 2026
Garage: Yes
Stories: 2 Story
Construction: Block,Stucco
Construction Display: New Construction
Subdivision: Gum Lake Preserve
Builder: LGI Homes Florida LLC
Foundation: Slab
County: Polk
School Information
Elementary: Lake Alfred Elem
Middle: Stambaugh Middle
High: Auburndale High School
Room Information
Main Floor
Foyer: 14x6
Living Room: 16x11
Dining Room: 16x6
Kitchen: 16x12
Bathroom 3: 5x5
Bathroom 2: 10x5
Upper Floor
Primary Bedroom: 14x13
Loft: 13x6
Laundry: 6x8
Bedroom 4: 10x10
Bedroom 3: 10x11
Bedroom 2: 10x10
Primary Bathroom: 8x10
Bathrooms
Full Baths: 2
1/2 Baths: 1
Additonal Room Information
Laundry: Upper Level, Electric Dryer Hookup, Laundry Room, Inside, Washer Hookup
Interior Features
Appliances: Exhaust Fan, Ice Maker, Electric Water Heater, Dishwasher, Disposal, Microwave, Range, Refrigerator
Flooring: Carpet,Luxury Vinyl
Doors/Windows: Low-Emissivity Windows, Blinds, Double Pane Windows, Window Treatments, ENERGY STAR Qualified Windows
Additional Interior Features: Ceiling Fan(s), Walk-In Closet(s), Window Treatments, Main Level Primary, Stone Counters, Open Floorplan, Kitchen/Family Room Combo
Utilities
Water: Public
Sewer: Public Sewer
Other Utilities: Cable Available,Electricity Available,Electricity Connected,Fiber Optic Available,High Speed Internet Available,Municipal Utilities,Phone Available,Sewer Available,Sewer Connected,Underground Utilities,Water Available,Water Connected
Cooling: Ceiling Fan(s), Central Air
Heating: Heat Pump, Electric
Exterior / Lot Features
Attached Garage: Attached Garage
Garage Spaces: 2
Parking Description: driveway, Garage, Garage Door Opener
Roof: Shingle
Additional Exterior/Lot Features: Sprinkler/Irrigation, Lighting, Covered, Patio, Front Porch, Rear Porch, Landscaped
Waterfront Details
Standard Water Body: GUM LAKE
Water Front Features: Lake Privileges, Pond
Community Features
Community Features: Playground, Dock, Sidewalks, Boat Slip, Lake, Waterfront, Street Lights, Boat Facilities, Park, Fishing, Golf Carts OK, Water Access
Security Features: Smoke Detector(s)
Association Amenities: Park, Playground, Trail(s)
HOA Dues Include: Maintenance Grounds
Homeowners Association: Yes
HOA Dues: $40 / Monthly
Driving Directions
From downtown Orlando head West on I-4 for 34.4 Miles and get off on County Rd 557(Exit 48). Head south for 4 miles and the project will be on the east right past Gum Lake.
Financial Considerations
Terms: Cash,Conventional,FHA,USDA Loan,VA Loan
Tax/Property ID: 26-27-20-489402-002110
Tax Amount: 999.47
Tax Year: 2024
A broker reciprocity listing courtesy: LGI REALTY- FLORIDA, LLC
Based on information provided by Stellar MLS as distributed by the MLS GRID. Information from the Internet Data Exchange is provided exclusively for consumers’ personal, non-commercial use, and such information may not be used for any purpose other than to identify prospective properties consumers may be interested in purchasing. This data is deemed reliable but is not guaranteed to be accurate by Edina Realty, Inc., or by the MLS. Edina Realty, Inc., is not a multiple listing service (MLS), nor does it offer MLS access.
Copyright 2025 Stellar MLS as distributed by the MLS GRID. All Rights Reserved.
Payment Calculator
Interest rate and annual percentage rate (APR) are based on current market conditions, are for informational purposes only, are subject to change without notice and may be subject to pricing add-ons related to property type, loan amount, loan-to-value, credit score and other variables. Estimated closing costs used in the APR calculation are assumed to be paid by the borrower at closing. If the closing costs are financed, the loan, APR and payment amounts will be higher. If the down payment is less than 20%, mortgage insurance may be required and could increase the monthly payment and APR. Contact us for details. Additional loan programs may be available. Accuracy is not guaranteed, and all products may not be available in all borrower's geographical areas and are based on their individual situation. This is not a credit decision or a commitment to lend.
Sales History & Tax Summary for 3712 Bergamot Street
Sales History
| Date | Price | Change |
|---|---|---|
| Currently not available. | ||
Tax Summary
| Tax Year | Estimated Market Value | Total Tax |
|---|---|---|
| Currently not available. | ||
Data powered by ATTOM Data Solutions. Copyright© 2025. Information deemed reliable but not guaranteed.
Schools
Schools nearby 3712 Bergamot Street
| Schools in attendance boundaries | Grades | Distance | Rating |
|---|---|---|---|
| Loading... | |||
| Schools nearby | Grades | Distance | Rating |
|---|---|---|---|
| Loading... | |||
Data powered by ATTOM Data Solutions. Copyright© 2025. Information deemed reliable but not guaranteed.
The schools shown represent both the assigned schools and schools by distance based on local school and district attendance boundaries. Attendance boundaries change based on various factors and proximity does not guarantee enrollment eligibility. Please consult your real estate agent and/or the school district to confirm the schools this property is zoned to attend. Information is deemed reliable but not guaranteed.
SchoolDigger ® Rating
The SchoolDigger rating system is a 1-5 scale with 5 as the highest rating. SchoolDigger ranks schools based on test scores supplied by each state's Department of Education. They calculate an average standard score by normalizing and averaging each school's test scores across all tests and grades.
Coming soon properties will soon be on the market, but are not yet available for showings.