$1,900,000
372 Larboard Way Clearwater Beach, FL 33767
For Sale MLS# TB8452126
3 beds 4 baths 3,098 sq ft Townhouse/Twinhome
Details for 372 Larboard Way
MLS# TB8452126
Description for 372 Larboard Way, Clearwater Beach, FL, 33767
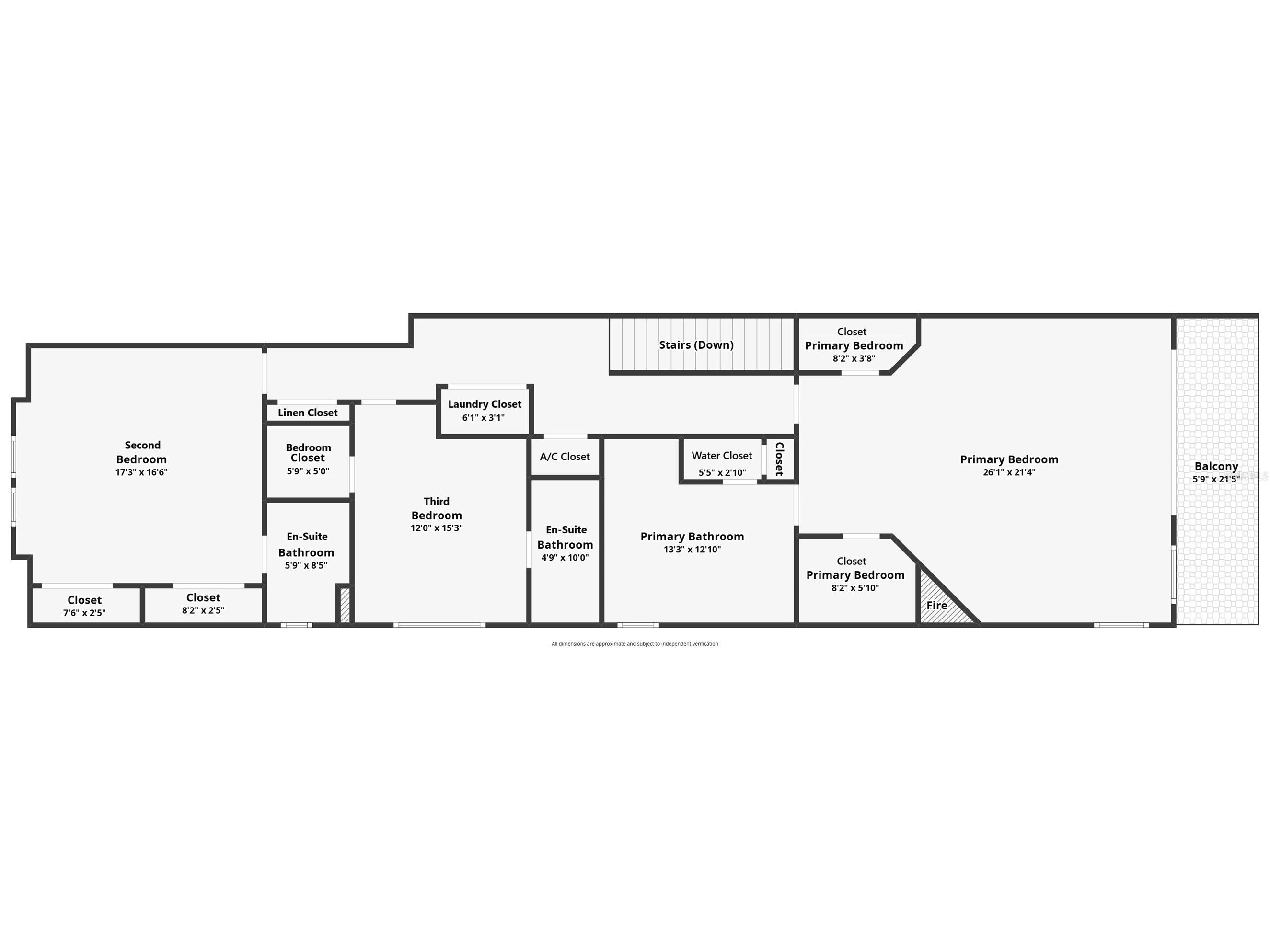
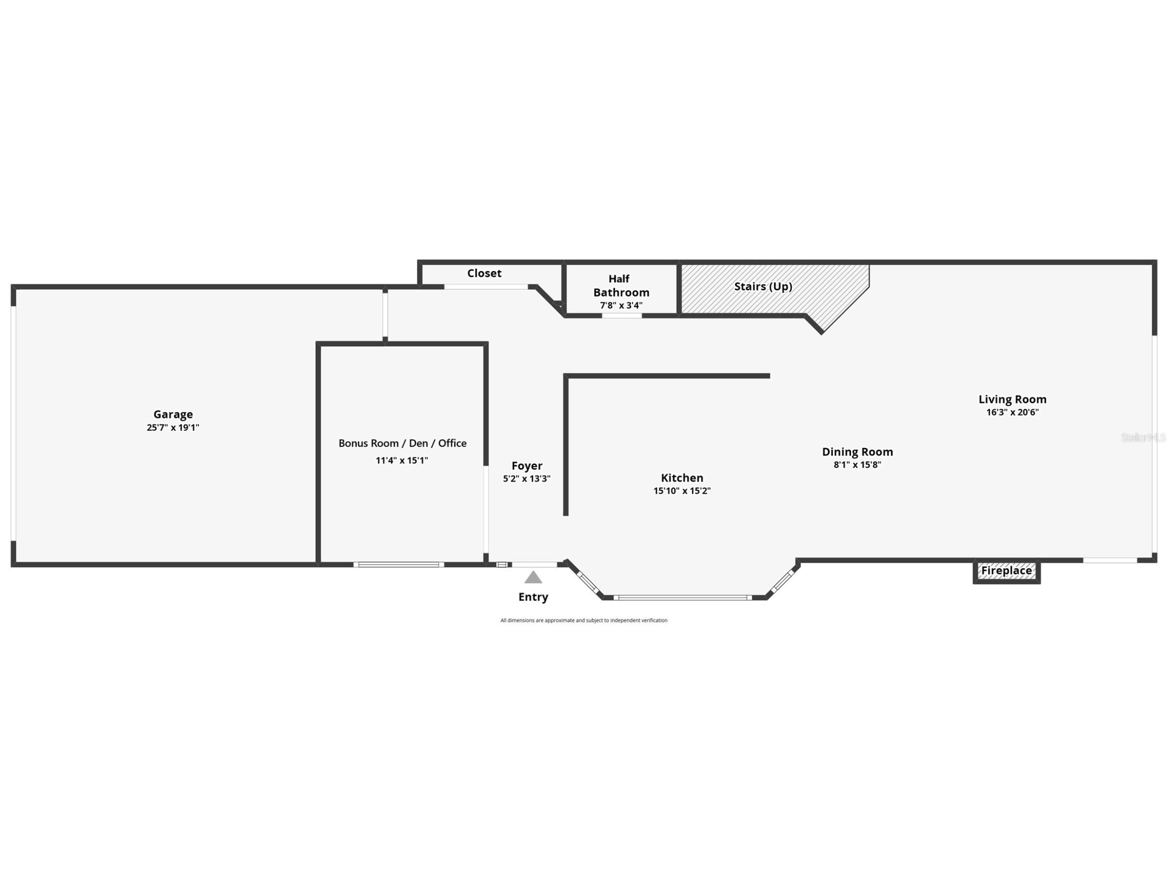
Yes, it has a DEEDED boat slip (and a 10,000lb remote-controlled boat lift)! This 3,000+ sq. ft. corner unit townhome promises the BEST views in the entire building! From 2023 to 2024, this stunning home underwent a complete renovation, with every inch thoughtfully and professionally redesigned to enhance flow, function, and style. Downstairs, the layout has been reconfigured to create a bonus room that can be used as a den/office, guest room, in-home gym, you name it! The kitchen features stainless steel KitchenAid appliances; durable Quartz countertops; an induction cooktop; custom hardwood cabinetry with soft-close hinges; ample pantry storage; and a large island featuring a massive farmhouse sink! The kitchen opens to the dining area and the living room, which all share a beautiful view of the intracoastal waterway! The new hurricane-grade PGT impact sliders open all the way, pocketing into the reinforced back wall to provide true indoor-outdoor living. The beautifully customized staircase leads to 3 well-appointed bedrooms, each with an en-suite bathroom. The primary bathroom was transformed into a spa-like oasis, featuring a large walk-in shower complete with Kohler Purist dual showerheads and a rain shower, and a built-in niche and bench; a 65in Kohler Ceric freestanding tub; limestone floors; floor-to-ceiling ceramic tiles; Kohler Purist faucets; a linen closet; a separate water closet; and custom cabinetry. The primary bedroom is light and bright, with two custom-designed walk-in closets, intracoastal water views, new hurricane-grade sliders, and a balcony that provides front-row seats to brilliant sunsets 365 days a year. This home features engineered hardwood throughout (excluding the bathrooms), updated light fixtures and recessed lighting, two redesigned fireplaces with Quartz hearths, and 10+ foot ceilings. Did I mention the location?? This home, located in the heart of Island Estates, is only a 2-minute walk to Publix, shopping, and restaurants! It’s only a 5-minute drive to Clearwater Beach, a 30-minute drive to Tampa Int'l Airport, and SO much in between! Elevated, featuring a 2-car garage on the lower-level. With its waterfront views from all the main living spaces, the ability to dock your boat, jet-ski, and kayaks in your backyard, and walkable/bikeable access to the intracoastal, the beach, shopping, and restaurants, this home has ALL you need to enjoy Florida living to its fullest potential! You won’t find another home like this one -- make your appointment today!
Listing Information
Property Type: Residential, Townhouse
Status: Active
Bedrooms: 3
Bathrooms: 4
Lot Size: 0.07 Acres
Square Feet: 3,098 sq ft
Year Built: 1998
Garage: Yes
Stories: 2 Story
Construction: Stucco,Wood Frame
Subdivision: Dolphins Landing
Foundation: Slab
County: Pinellas
Room Information
Main Floor
Porch: 8x21.5
Bonus Room: 11x15
Living Room: 17x21
Dining Room: 8x14
Kitchen: 12x13.5
Upper Floor
Bedroom 3: 12x12.5
Bedroom 2: 17x17
Primary Bedroom: 21x26
Bathrooms
Full Baths: 3
1/2 Baths: 1
Additonal Room Information
Laundry: Inside, Laundry Closet, Upper Level
Interior Features
Appliances: Built-In Oven, Range Hood, Electric Water Heater, Refrigerator, Washer, Dryer, Cooktop, Dishwasher, Microwave
Flooring: Engineered Hardwood,Other
Doors/Windows: Shutters, Window Treatments
Fireplaces: Living Room, Primary Bedroom
Additional Interior Features: Walk-In Closet(s), Window Treatments, Cathedral Ceiling(s), High Ceilings, Built-in Features, Vaulted Ceiling(s), Eat-In Kitchen, Open Floorplan, Upper Level Primary, Stone Counters, Wood Cabinets
Utilities
Water: Public
Sewer: Public Sewer
Other Utilities: Cable Connected,Electricity Connected,Municipal Utilities,Sewer Connected,Water Connected
Cooling: Central Air
Heating: Central, Electric
Exterior / Lot Features
Attached Garage: Attached Garage
Garage Spaces: 2
Parking Description: driveway, Garage, Garage Door Opener
Roof: Tile
Lot View: Intercoastal,Water
Fencing: Other
Additional Exterior/Lot Features: Rain Gutters, Rear Porch, City Lot
Waterfront Details
Water Front Features: Intracoastal Access
Community Features
Community Features: Street Lights, Dock, Sidewalks, Boat Slip, Fishing
HOA Dues Include: Maintenance Grounds, Maintenance Structure
Homeowners Association: Yes
HOA Dues: $2,100 / Annually
Driving Directions
From Gulf to Bay, take the Memorial Causeway W towards Clearwater Beach, turn N on Island Way, turn W onto Dory Passage, turn N onto Larboard to address 372 Larboard (corner unit).
Financial Considerations
Terms: Cash,Conventional,VA Loan
Tax/Property ID: 08-29-15-21819-000-0060
Tax Amount: 13872
Tax Year: 2024
A broker reciprocity listing courtesy: COASTAL PROPERTIES GROUP INTERNATIONAL
Based on information provided by Stellar MLS as distributed by the MLS GRID. Information from the Internet Data Exchange is provided exclusively for consumers’ personal, non-commercial use, and such information may not be used for any purpose other than to identify prospective properties consumers may be interested in purchasing. This data is deemed reliable but is not guaranteed to be accurate by Edina Realty, Inc., or by the MLS. Edina Realty, Inc., is not a multiple listing service (MLS), nor does it offer MLS access.
Copyright 2025 Stellar MLS as distributed by the MLS GRID. All Rights Reserved.
Payment Calculator
Interest rate and annual percentage rate (APR) are based on current market conditions, are for informational purposes only, are subject to change without notice and may be subject to pricing add-ons related to property type, loan amount, loan-to-value, credit score and other variables. Estimated closing costs used in the APR calculation are assumed to be paid by the borrower at closing. If the closing costs are financed, the loan, APR and payment amounts will be higher. If the down payment is less than 20%, mortgage insurance may be required and could increase the monthly payment and APR. Contact us for details. Additional loan programs may be available. Accuracy is not guaranteed, and all products may not be available in all borrower's geographical areas and are based on their individual situation. This is not a credit decision or a commitment to lend.
Sales History & Tax Summary for 372 Larboard Way
Sales History
| Date | Price | Change |
|---|---|---|
| Currently not available. | ||
Tax Summary
| Tax Year | Estimated Market Value | Total Tax |
|---|---|---|
| Currently not available. | ||
Data powered by ATTOM Data Solutions. Copyright© 2025. Information deemed reliable but not guaranteed.
Schools
Schools nearby 372 Larboard Way
| Schools in attendance boundaries | Grades | Distance | Rating |
|---|---|---|---|
| Loading... | |||
| Schools nearby | Grades | Distance | Rating |
|---|---|---|---|
| Loading... | |||
Data powered by ATTOM Data Solutions. Copyright© 2025. Information deemed reliable but not guaranteed.
The schools shown represent both the assigned schools and schools by distance based on local school and district attendance boundaries. Attendance boundaries change based on various factors and proximity does not guarantee enrollment eligibility. Please consult your real estate agent and/or the school district to confirm the schools this property is zoned to attend. Information is deemed reliable but not guaranteed.
SchoolDigger ® Rating
The SchoolDigger rating system is a 1-5 scale with 5 as the highest rating. SchoolDigger ranks schools based on test scores supplied by each state's Department of Education. They calculate an average standard score by normalizing and averaging each school's test scores across all tests and grades.
Coming soon properties will soon be on the market, but are not yet available for showings.