$855,000
3766 Peace River Drive Punta Gorda, FL 33983 - PEACE RIVER
For Sale MLS# C7523710
4 beds 2 baths 2,552 sq ft Single Family
Details for 3766 Peace River Drive
MLS# C7523710
Description for 3766 Peace River Drive, Punta Gorda, FL, 33983 - PEACE RIVER
Luxury Riverfront Living — Where Elegance Meets Everyday Comfort! Welcome to a refined riverfront residence that blends timeless craftsmanship with modern sophistication. This beautifully designed 4-bedroom, 2-bath home with a 2-car garage offers an elevated living experience framed by sweeping water views and exceptional architectural detail. Step inside to a grand great room enhanced by tray ceilings, recessed lighting, crown molding, 10-foot ceilings, and 20-inch tile flooring that sets an elegant tone throughout the main living spaces. Zero-corner sliding glass doors dissolve the boundary between indoors and out, creating a seamless connection to the paver lanai and the tranquil river beyond. The kitchen is a showpiece, featuring granite countertops, rich wood cabinetry, a center island, breakfast bar, wall oven and microwave, and a dedicated desk area — a perfect blend of beauty and functionality. Retreat to the luxurious primary suite, complete with a private sitting area and a spa-inspired ensuite offering dual vanities, a garden tub, walk-in shower with seat, makeup vanity, and water closet. The versatile fourth bedroom, finished with warm wood flooring, is ideal as an office or creative space. Thoughtful enhancements elevate the home’s comfort and efficiency, including wood shelving in closets, a walk-in pantry, mud room, and a large, conditioned utility room. Modern conveniences abound with an EV charging station, energy-efficient spray-foam insulated roof, whole-house Generac generator with 500-gallon buried propane tank, high-velocity wind-resistant windows, automated hurricane shutters for peace of mind, metal roof, and fresh exterior paint. Outdoors, enjoy true boating experience with a private dock featuring a canopy and 10,000-lb boat lift, offering effortless access to the river. The paver entry and lanai add a refined finishing touch to this exceptional property. A rare opportunity to own a beautifully appointed riverfront home that delivers luxury, comfort, and unmatched value. Harbour Heights is a non-deed restricted waterfront community of Punta Gorda without the expense of a Homeowners Association. The Charlotte Harbor Water Association has recently completed updating the existing water distribution system with new water delivery system in the community with no expense to the property owner. Nearby is the remodeled 8-acre Harbour Heights Park maintained by Charlotte County, providing a public boat ramp, day docks, playground, pavilion and barbecue areas, basketball, shuffleboard, lighted tennis/pickle ball courts, horseshoes, and a butterfly garden. Boat ramp provides access to the Peace River, the Blueway Trails, Charlotte Harbor and the Gulf of Mexico. Just a 15-minute drive to the Punta Gorda Airport (PGD). Golf, restaurants, schools, medical, churches and shopping are all nearby. A short distance to I-75 at exit 167 affords easy access to historic downtown Punta Gorda/Fort Myers/Naples to the south and North Port/Venice/Sarasota to the north.
Listing Information
Property Type: Residential, Single Family Residence
Status: Active
Bedrooms: 4
Bathrooms: 2
Lot Size: 0.28 Acres
Square Feet: 2,552 sq ft
Year Built: 2012
Garage: Yes
Stories: 1 Story
Construction: Block,Stucco
Subdivision: Hrbr Heights
Foundation: Slab
County: Charlotte
School Information
Elementary: Deep Creek Elementary
Middle: Punta Gorda Middle
High: Charlotte High
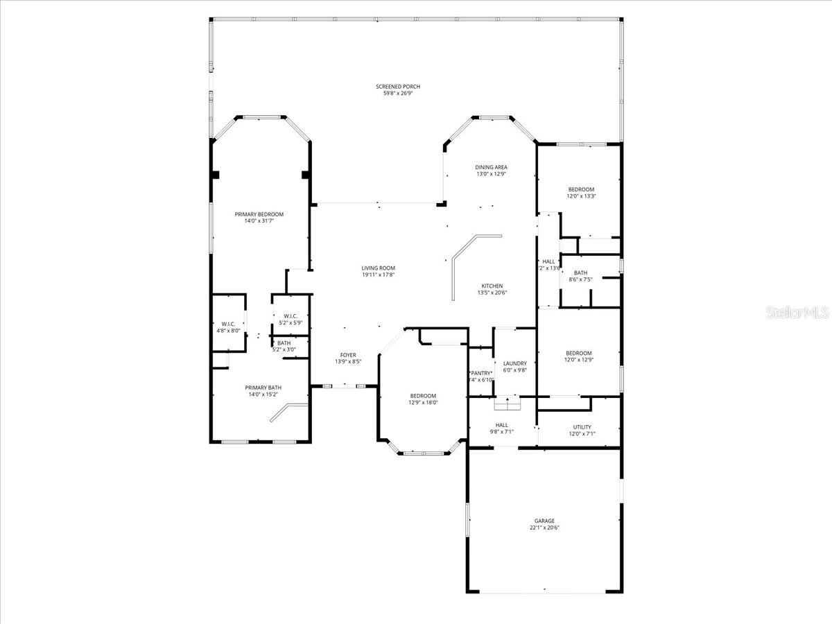
Room Information
Main Floor
Porch: 26.9x59.8
Bedroom 2: 12x13
Primary Bathroom: 14x15.2
Primary Bedroom: 14x31.7
Kitchen: 20.6x13.5
Great Room: 18x20
Foyer: 8.5x13.9
Bonus Room: 7x9.8
Utility Room: 7x12
Laundry: 7.4x9.8
Dining Room: 13x13
Bathroom 2: 7.5x8.6
Bedroom 4: 12.9x18
Bedroom 3: 12x13
Bathrooms
Full Baths: 2
Additonal Room Information
Laundry: Inside, Laundry Room
Interior Features
Appliances: Built-In Oven, Dryer, Freezer, Cooktop, Dishwasher, Disposal, Microwave, Refrigerator, Washer, Electric Water Heater, Range Hood
Flooring: Carpet,Ceramic Tile,Wood
Doors/Windows: Window Treatments
Additional Interior Features: Walk-In Closet(s), Split Bedrooms, Window Treatments, Built-in Features, Tray Ceiling(s), Ceiling Fan(s), Main Level Primary, Crown Molding, Open Floorplan, High Ceilings, Stone Counters, Wood Cabinets
Utilities
Water: Public
Sewer: Septic Tank
Other Utilities: Cable Connected,Electricity Connected,Municipal Utilities,Water Connected
Cooling: Ceiling Fan(s), Central Air
Heating: Central
Exterior / Lot Features
Attached Garage: Attached Garage
Garage Spaces: 2
Parking Description: Electric Vehicle Charging Station(s), driveway, Garage, Garage Door Opener
Roof: Metal
Lot View: River,Water
Lot Dimensions: 80x150
Additional Exterior/Lot Features: Storm/Security Shutters, Rain Gutters, Covered, Deck, Patio, Screened, Landscaped, Dead End, Oversized Lot, Flood Zone, Outside City Limits
Waterfront Details
Standard Water Body: PEACE RIVER
Water Front Features: River Access, Bay Access, River Front
Community Features
Community Features: Water Access, Fishing, Park, Dog Park, River, Tennis Court(s), Playground, Waterfront, Street Lights, Boat Facilities, Dock
Security Features: Security System Owned, Smoke Detector(s), Fire Hydrant(s)
Driving Directions
US-41 to Harborview Rd, continue east past I-75 at exit 167, straight through traffic light, right on Discovery Drive, right on Peace River Drive, home is on the left.
Financial Considerations
Terms: Cash,Conventional,FHA,USDA Loan
Tax/Property ID: 402328232005
Tax Amount: 6324.72
Tax Year: 2025
A broker reciprocity listing courtesy: ALLISON JAMES ESTATES & HOMES
Based on information provided by Stellar MLS as distributed by the MLS GRID. Information from the Internet Data Exchange is provided exclusively for consumers’ personal, non-commercial use, and such information may not be used for any purpose other than to identify prospective properties consumers may be interested in purchasing. This data is deemed reliable but is not guaranteed to be accurate by Edina Realty, Inc., or by the MLS. Edina Realty, Inc., is not a multiple listing service (MLS), nor does it offer MLS access.
Copyright 2026 Stellar MLS as distributed by the MLS GRID. All Rights Reserved.
Payment Calculator
Interest rate and annual percentage rate (APR) are based on current market conditions, are for informational purposes only, are subject to change without notice and may be subject to pricing add-ons related to property type, loan amount, loan-to-value, credit score and other variables. Estimated closing costs used in the APR calculation are assumed to be paid by the borrower at closing. If the closing costs are financed, the loan, APR and payment amounts will be higher. If the down payment is less than 20%, mortgage insurance may be required and could increase the monthly payment and APR. Contact us for details. Additional loan programs may be available. Accuracy is not guaranteed, and all products may not be available in all borrower's geographical areas and are based on their individual situation. This is not a credit decision or a commitment to lend.
Sales History & Tax Summary for 3766 Peace River Drive
Sales History
| Date | Price | |
|---|---|---|
| Currently not available. | ||
Tax Summary
| Tax Year | Estimated Market Value | Total Tax |
|---|---|---|
| Currently not available. | ||
Data powered by ATTOM Data Solutions. Copyright© 2026. Information deemed reliable but not guaranteed.
Schools
Schools nearby 3766 Peace River Drive
| Schools in attendance boundaries | Grades | Distance | Rating |
|---|---|---|---|
| Loading... | |||
| Schools nearby | Grades | Distance | Rating |
|---|---|---|---|
| Loading... | |||
Data powered by ATTOM Data Solutions. Copyright© 2026. Information deemed reliable but not guaranteed.
The schools shown represent both the assigned schools and schools by distance based on local school and district attendance boundaries. Attendance boundaries change based on various factors and proximity does not guarantee enrollment eligibility. Please consult your real estate agent and/or the school district to confirm the schools this property is zoned to attend. Information is deemed reliable but not guaranteed.
SchoolDigger ® Rating
The SchoolDigger rating system is a 1-5 scale with 5 as the highest rating. SchoolDigger ranks schools based on test scores supplied by each state's Department of Education. They calculate an average standard score by normalizing and averaging each school's test scores across all tests and grades.
Coming soon properties will soon be on the market, but are not yet available for showings.