3791 Moon Dancer Place Saint Cloud, FL 34772
For Sale MLS# O6328148
4 beds 3 baths 2,865 sq ft Single Family
Details for 3791 Moon Dancer Place
MLS# O6328148
Description for 3791 Moon Dancer Place, Saint Cloud, FL, 34772
Welcome home! This two-story residence boasts a brand new roof with an updated interior, attractive finishes, and a practical layout creating a space that is ready for years of memories and all occasions. The stylish kitchen boasts new, elegant quartz countertops and a large island overlooking the family room, which has a cozy fireplace serving as a welcoming focal point to top off an already inviting main living space. The formal living and dining rooms and upstairs bonus room provide additional space for unmatched versatility. Between multiple living spaces and the screened lanai, there is plenty of space for daily needs and entertaining guests. At the same time, everyone is afforded a peaceful escape with four spacious bedrooms. A new HVAC system and electrical updates ensure energy efficiency in all seasons, while fresh interior and exterior paint brighten every surface, and new, luxury vinyl flooring and updated fixtures add a touch of sophistication and durability. Its location adds another level to its appeal. Proximity to major shopping centers, retail destinations, and medical facilities place daily essentials within immediate reach. Parks, trails, golf, and lake access provide a variety of recreation options for nature enthusiasts seeking outdoor adventures. Swift access to major roadways and the Turnpike ensures seamless connectivity to Downtown St Cloud, Downtown Kissimmee, and the surrounding areas, making this an exceptional choice for those desiring a peaceful environment with convenient access to essential conveniences and major corridors. Comprehensive updates have been thoughtfully implemented throughout the home, enhancing both functionality and aesthetic appeal, while the location provides a pristine escape with proximity to modern amenities. Don't let this wonderful opportunity slip away - call today to schedule your personal viewing and discover why this charming home could be the perfect place to create lasting memories.
Listing Information
Property Type: Residential, Single Family Residence
Status: Active
Bedrooms: 4
Bathrooms: 3
Lot Size: 0.17 Acres
Square Feet: 2,865 sq ft
Year Built: 2006
Garage: Yes
Stories: 2 Story
Construction: Block,Stucco
Subdivision: Esprit Ph 1
Foundation: Slab
County: Osceola
School Information
Elementary: Canoe Creek K-8
Middle: St. Cloud Middle (6-8)
High: Harmony High
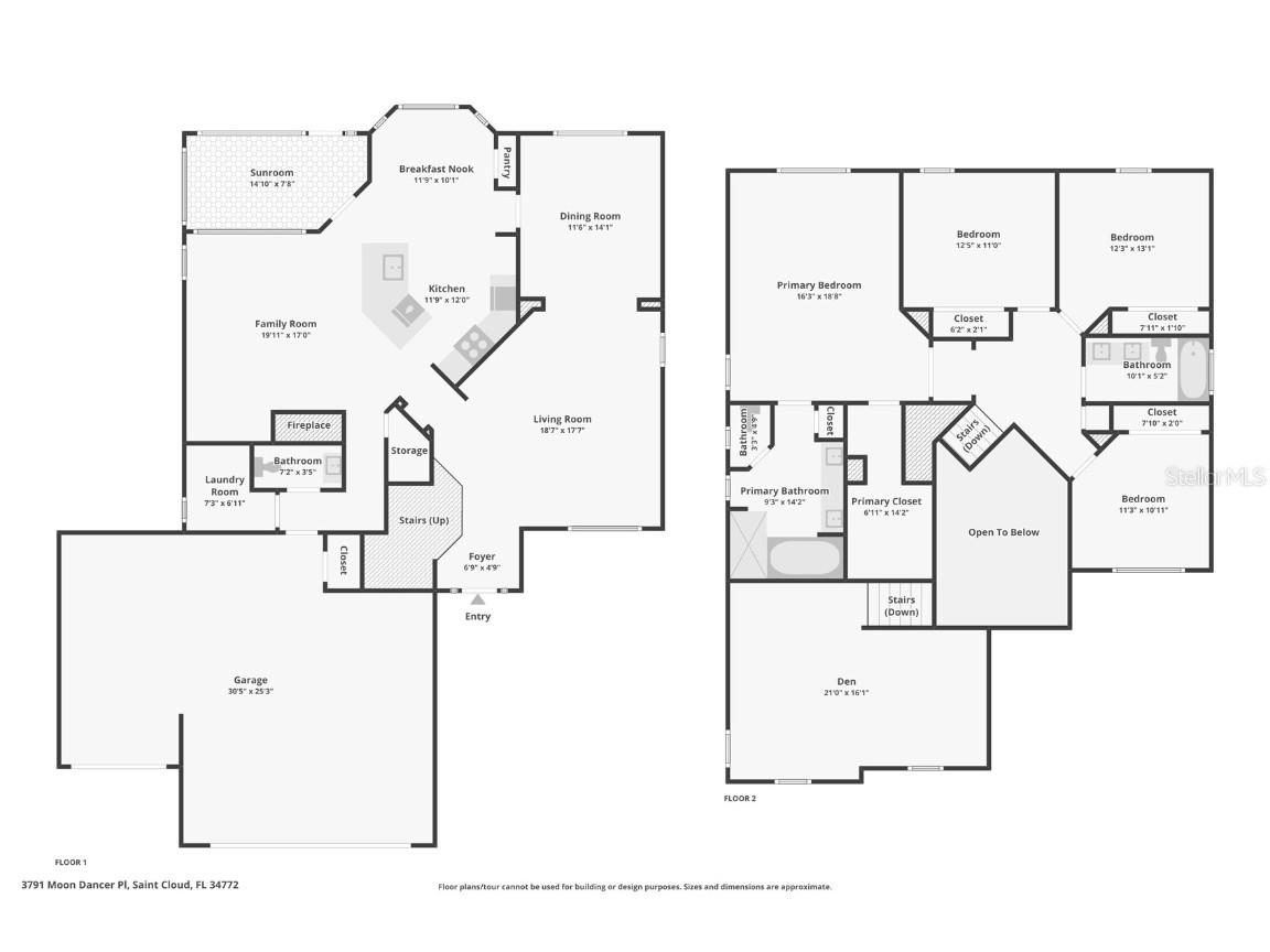
Room Information
Main Floor
Family Room: 15x14
Kitchen: 12x13
Dining Room: 11x13
Living Room: 12x18
Upper Floor
Bedroom 4: 12x11
Bedroom 3: 13x12
Bedroom 2: 11x11
Primary Bedroom: 19x16
Loft: 21x16
Bathrooms
Full Baths: 2
1/2 Baths: 1
Additonal Room Information
Laundry: Washer Hookup, Laundry Room, Electric Dryer Hookup
Interior Features
Flooring: Ceramic Tile,Luxury Vinyl,Tile
Fireplaces: Family Room, Wood Burning
Additional Interior Features: Ceiling Fan(s), Loft, Walk-In Closet(s), Upper Level Primary, Living/Dining Room, Tray Ceiling(s), Kitchen/Family Room Combo, Stone Counters
Utilities
Water: Public
Sewer: Public Sewer
Other Utilities: Electricity Available,Water Available
Cooling: Ceiling Fan(s), Central Air
Heating: Electric, Central
Exterior / Lot Features
Attached Garage: Attached Garage
Garage Spaces: 3
Parking Description: Garage, Garage Door Opener, driveway
Roof: Shingle
Pool: Community, Association
Additional Exterior/Lot Features: Rain Gutters, French Patio Doors, Enclosed, Screened, Covered, Porch, Landscaped
Community Features
Community Features: Pool, Sidewalks, Playground, Clubhouse, Park
Association Amenities: Clubhouse, Park, Playground, Pool
HOA Dues Include: Pool(s), Recreation Facilities
Homeowners Association: Yes
HOA Dues: $500 / Semi-Annually
Driving Directions
From Canoe Creek Rd, turn onto Friars Cove Rd traveling West, turn right onto Espirit Ln, left onto Spirited Cir, right onto Moon Dancer Pl, left to stay on Moon Dancer Pl, and it is the second home on your right.
Financial Considerations
Terms: Cash,Conventional,FHA,VA Loan
Tax/Property ID: 34-26-30-0056-0001-0290
Tax Amount: 2216
Tax Year: 2024
A broker reciprocity listing courtesy: BERKSHIRE HATHAWAY HOMESERVICES RESULTS REALTY
Based on information provided by Stellar MLS as distributed by the MLS GRID. Information from the Internet Data Exchange is provided exclusively for consumers’ personal, non-commercial use, and such information may not be used for any purpose other than to identify prospective properties consumers may be interested in purchasing. This data is deemed reliable but is not guaranteed to be accurate by Edina Realty, Inc., or by the MLS. Edina Realty, Inc., is not a multiple listing service (MLS), nor does it offer MLS access.
Copyright 2026 Stellar MLS as distributed by the MLS GRID. All Rights Reserved.
Payment Calculator
Interest rate and annual percentage rate (APR) are based on current market conditions, are for informational purposes only, are subject to change without notice and may be subject to pricing add-ons related to property type, loan amount, loan-to-value, credit score and other variables. Estimated closing costs used in the APR calculation are assumed to be paid by the borrower at closing. If the closing costs are financed, the loan, APR and payment amounts will be higher. If the down payment is less than 20%, mortgage insurance may be required and could increase the monthly payment and APR. Contact us for details. Additional loan programs may be available. Accuracy is not guaranteed, and all products may not be available in all borrower's geographical areas and are based on their individual situation. This is not a credit decision or a commitment to lend.
Sales History & Tax Summary for 3791 Moon Dancer Place
Sales History
| Date | Price | |
|---|---|---|
| Currently not available. | ||
Tax Summary
| Tax Year | Estimated Market Value | Total Tax |
|---|---|---|
| Currently not available. | ||
Data powered by ATTOM Data Solutions. Copyright© 2026. Information deemed reliable but not guaranteed.
Schools
Schools nearby 3791 Moon Dancer Place
| Schools in attendance boundaries | Grades | Distance | Rating |
|---|---|---|---|
| Loading... | |||
| Schools nearby | Grades | Distance | Rating |
|---|---|---|---|
| Loading... | |||
Data powered by ATTOM Data Solutions. Copyright© 2026. Information deemed reliable but not guaranteed.
The schools shown represent both the assigned schools and schools by distance based on local school and district attendance boundaries. Attendance boundaries change based on various factors and proximity does not guarantee enrollment eligibility. Please consult your real estate agent and/or the school district to confirm the schools this property is zoned to attend. Information is deemed reliable but not guaranteed.
SchoolDigger ® Rating
The SchoolDigger rating system is a 1-5 scale with 5 as the highest rating. SchoolDigger ranks schools based on test scores supplied by each state's Department of Education. They calculate an average standard score by normalizing and averaging each school's test scores across all tests and grades.
Coming soon properties will soon be on the market, but are not yet available for showings.