38 Sederholm Path Palm Coast, FL 32164
For Sale MLS# FC315481
3 beds 2 baths 1,564 sq ft Single Family
Details for 38 Sederholm Path
MLS# FC315481
Description for 38 Sederholm Path, Palm Coast, FL, 32164
Beautifully Maintained 3 Bedroom, 2 Bath Brick Home with Upgrades throughout. This lovely, low-maintenance brick home features three spacious bedrooms and two full baths, with exceptional upgrades & specific care shown by its original owners. Inside, you'll find gorgeous new luxury vinyl plank flooring throughout, giving the home a fresh, modern look. The kitchen is a standout, featuring upgraded cabinetry, stainless steel appliances (which convey), and additional matching cabinets that were added to provide extra storage & functionality. The great room offers volume ceilings and is filled with natural light from large windows, creating an open and airy feel. The primary suite is a private retreat, complete with a ceiling fan, walk-in closet, & an en-suite bathroom that includes a double sink vanity, step-in shower, separate water closet with a comfort-height toilet, and tasteful finishes throughout. Bedroom two is generously sized and can easily accommodate a king bedroom set, while bedroom three is currently used as a sewing and exercise room, offering great flexibility for your needs. The second full bathroom includes a tub/shower combination and a comfort height toliet was added. A separate laundry room leads directly to the attached garage, which includes ample storage space and pull-down attic access. The home is equipped with a Culligan water softening system and a whole-house filtration system, ensuring high-quality water throughout. Outdoors, you'll enjoy a covered rear lanai that overlooks a fully fenced backyard ideal for relaxing or entertaining. A storage shed is also included, and the home features a Leaf Filter gutter system for easy maintenance. This home is in truly move-in condition and reflects the pride of ownership shown by its only owners. Come see it for yourself...you'll be impressed with everything it has to offer. Cannot get all of these upgrades in a new home.
Listing Information
Property Type: Residential, Single Family Residence
Status: Active
Bedrooms: 3
Bathrooms: 2
Lot Size: 0.23 Acres
Square Feet: 1,564 sq ft
Year Built: 2021
Garage: Yes
Stories: 1 Story
Construction: Brick
Subdivision: Palm Coast Sec 58
Foundation: Slab
County: Flagler
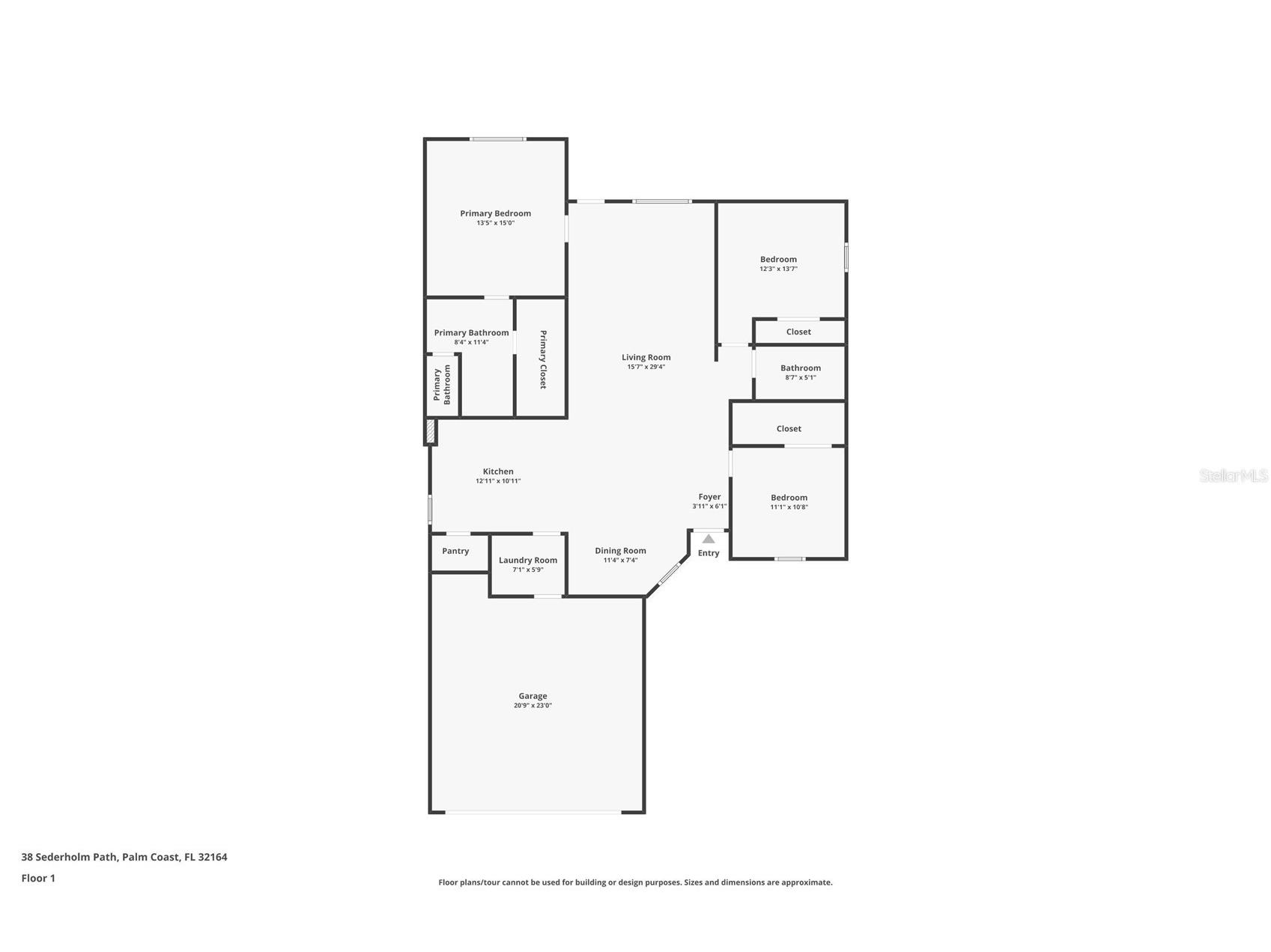
Room Information
Main Floor
Laundry:
Bedroom 3:
Bathroom 2:
Bedroom 2:
Primary Bathroom:
Primary Bedroom:
Great Room:
Dinette:
Kitchen:
Bathrooms
Full Baths: 2
Additonal Room Information
Laundry: Laundry Room
Interior Features
Appliances: Electric Water Heater, Water Purifier, Dishwasher, Disposal, Microwave, Range, Refrigerator
Flooring: Luxury Vinyl
Doors/Windows: Window Treatments
Additional Interior Features: Eat-In Kitchen, Walk-In Closet(s), Ceiling Fan(s), Main Level Primary, Window Treatments, Open Floorplan
Utilities
Water: Public
Sewer: Public Sewer
Other Utilities: Cable Connected,Electricity Connected,Municipal Utilities,Phone Available,Sewer Connected,Water Connected
Cooling: Ceiling Fan(s), Central Air
Heating: Heat Pump
Exterior / Lot Features
Attached Garage: Attached Garage
Garage Spaces: 2
Parking Description: Garage Door Opener, Garage
Roof: Shingle
Fencing: Vinyl, fenced
Additional Exterior/Lot Features: Rain Gutters, In-Wall Pest Control System, Storage, Covered, Front Porch, Rear Porch, Landscaped
Out Buildings: Shed(s)
Driving Directions
Take Seminole Blvd south to left on Sesame Blvd. Take a left on Sedgewick Trail and then left onto Sederholm Path. Home is down on the left side of street if you use these directions.
Financial Considerations
Terms: Cash,Conventional,FHA,VA Loan
Tax/Property ID: 07-11-31-7058-00430-0020
Tax Amount: 4249.51
Tax Year: 2025
A broker reciprocity listing courtesy: ATLANTIC COASTAL REAL ESTATE
Based on information provided by Stellar MLS as distributed by the MLS GRID. Information from the Internet Data Exchange is provided exclusively for consumers’ personal, non-commercial use, and such information may not be used for any purpose other than to identify prospective properties consumers may be interested in purchasing. This data is deemed reliable but is not guaranteed to be accurate by Edina Realty, Inc., or by the MLS. Edina Realty, Inc., is not a multiple listing service (MLS), nor does it offer MLS access.
Copyright 2026 Stellar MLS as distributed by the MLS GRID. All Rights Reserved.
Payment Calculator
Interest rate and annual percentage rate (APR) are based on current market conditions, are for informational purposes only, are subject to change without notice and may be subject to pricing add-ons related to property type, loan amount, loan-to-value, credit score and other variables. Estimated closing costs used in the APR calculation are assumed to be paid by the borrower at closing. If the closing costs are financed, the loan, APR and payment amounts will be higher. If the down payment is less than 20%, mortgage insurance may be required and could increase the monthly payment and APR. Contact us for details. Additional loan programs may be available. Accuracy is not guaranteed, and all products may not be available in all borrower's geographical areas and are based on their individual situation. This is not a credit decision or a commitment to lend.
Sales History & Tax Summary for 38 Sederholm Path
Sales History
| Date | Price | |
|---|---|---|
| Currently not available. | ||
Tax Summary
| Tax Year | Estimated Market Value | Total Tax |
|---|---|---|
| Currently not available. | ||
Data powered by ATTOM Data Solutions. Copyright© 2026. Information deemed reliable but not guaranteed.
Schools
Schools nearby 38 Sederholm Path
| Schools in attendance boundaries | Grades | Distance | Rating |
|---|---|---|---|
| Loading... | |||
| Schools nearby | Grades | Distance | Rating |
|---|---|---|---|
| Loading... | |||
Data powered by ATTOM Data Solutions. Copyright© 2026. Information deemed reliable but not guaranteed.
The schools shown represent both the assigned schools and schools by distance based on local school and district attendance boundaries. Attendance boundaries change based on various factors and proximity does not guarantee enrollment eligibility. Please consult your real estate agent and/or the school district to confirm the schools this property is zoned to attend. Information is deemed reliable but not guaranteed.
SchoolDigger ® Rating
The SchoolDigger rating system is a 1-5 scale with 5 as the highest rating. SchoolDigger ranks schools based on test scores supplied by each state's Department of Education. They calculate an average standard score by normalizing and averaging each school's test scores across all tests and grades.
Coming soon properties will soon be on the market, but are not yet available for showings.