3806 Pinedale Street Brandon, FL 33511
Pending MLS# TB8461299
4 beds 3 baths 2,068 sq ft Single Family
Details for 3806 Pinedale Street
MLS# TB8461299
Description for 3806 Pinedale Street, Brandon, FL, 33511
Under contract-accepting backup offers. Welcome to this spacious and versatile 4-bedroom, 3-bathroom tri-level home offering a flexible layout with room to grow. The main living area features a living room, dining room, and kitchen, creating a comfortable flow for everyday living and entertaining. The lower level includes a family room along with a private bedroom and full bath, making it an ideal setup for an excellent potential mother-in-law suite, guest space, or private retreat. Upstairs, the primary suite provides a peaceful escape with a walk-in closet and en-suite bathroom, accompanied by two additional well-sized bedrooms and a full bath. Outside, enjoy a large, fully fenced backyard with a deck—perfect for outdoor dining, play, or relaxing. A 2-car garage and ample storage complete the home. The cooktop, tankless water heater, and dryer are powered by propane (property has two 100lb tanks, as well as three 50lb tanks). This property presents a great opportunity for buyers to add their personal touches while enjoying a layout that supports a variety of lifestyles.
Listing Information
Property Type: Residential, Single Family Residence
Status: Pending
Bedrooms: 4
Bathrooms: 3
Lot Size: 0.26 Acres
Square Feet: 2,068 sq ft
Year Built: 1974
Garage: Yes
Stories: 2 Story
Construction: Vinyl Siding
Subdivision: Four Winds Estates Unit 3
Foundation: Slab
County: Hillsborough
School Information
Elementary: Kingswood-Hb
Middle: Rodgers-Hb
High: Bloomingdale-Hb
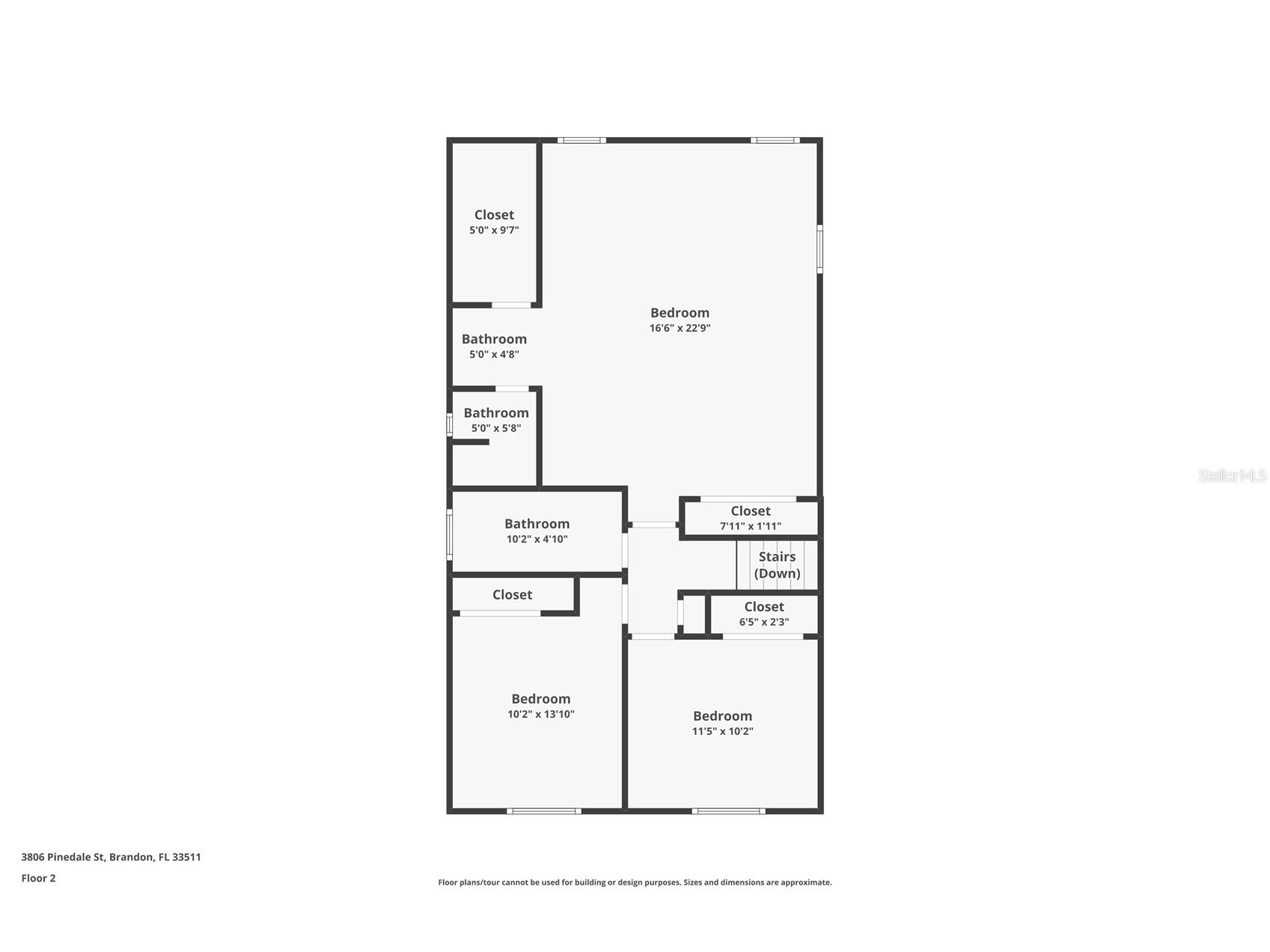
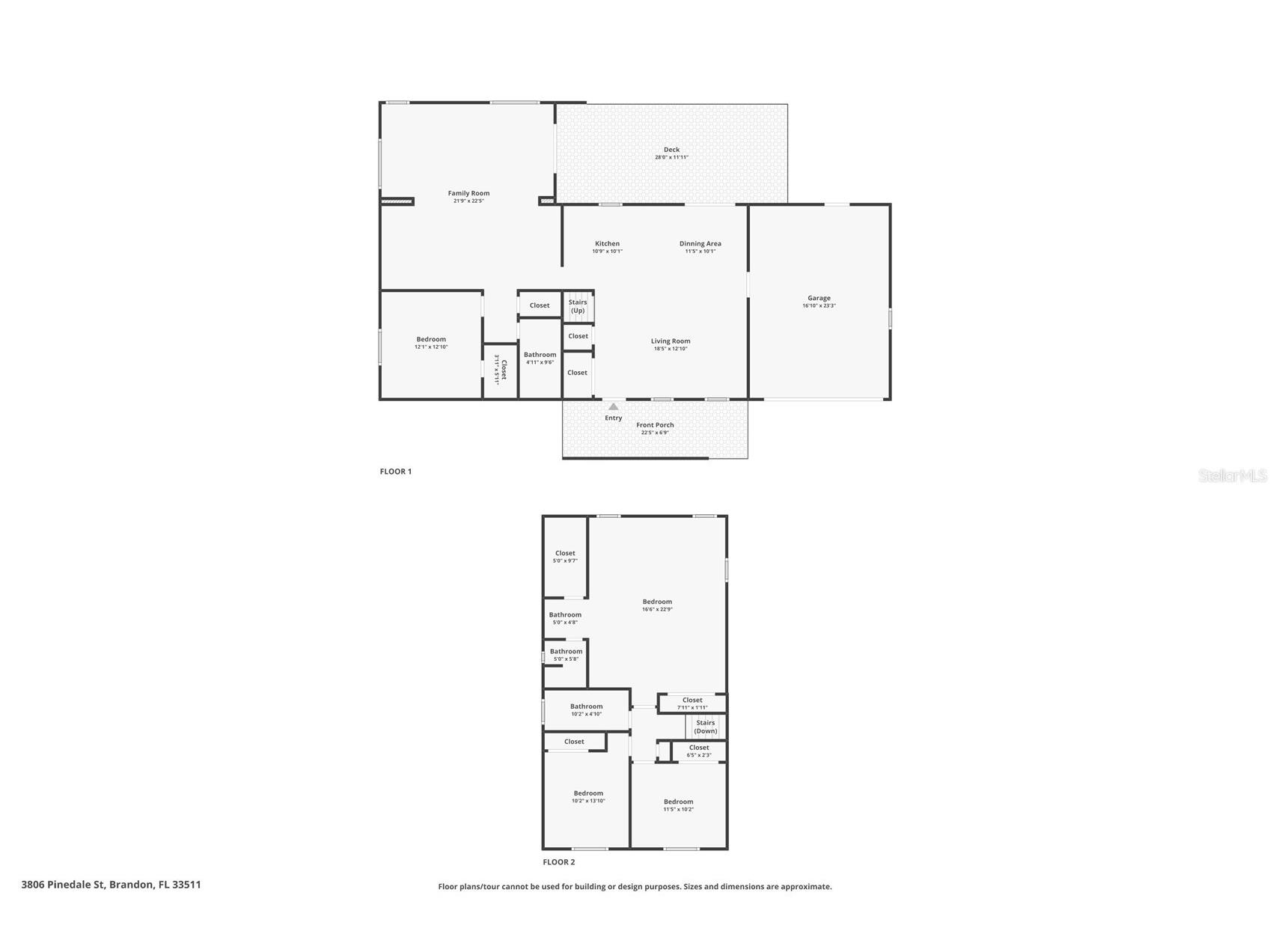
Room Information
Main Floor
Bedroom 2: 12.1x12.1
Dining Room: 10.1x11.5
Kitchen: 10.1x10.9
Family Room: 22.5x21.9
Living Room: 12.1x18.5
Upper Floor
Bedroom 4: 10.2x11.5
Bedroom 3: 13.1x10.2
Primary Bedroom: 22.9x16.6
Bathrooms
Full Baths: 3
Additonal Room Information
Laundry: In Garage
Interior Features
Appliances: Built-In Oven, Cooktop, Microwave, Refrigerator
Flooring: Laminate,Tile
Additional Interior Features: Ceiling Fan(s), Walk-In Closet(s)
Utilities
Water: Public
Sewer: Public Sewer
Other Utilities: Electricity Connected,Propane,Sewer Connected,Water Connected
Cooling: Ceiling Fan(s), Central Air
Heating: Central
Exterior / Lot Features
Attached Garage: Attached Garage
Garage Spaces: 2
Roof: Shingle
Lot Dimensions: 85x135
Driving Directions
Head east on Bloomingdale Ave toward Coolidge St. Turn right onto S Kings Ave. Turn left onto Southview Dr. Turn right onto Pinedale St. Destination will be on the left.
Financial Considerations
Terms: Cash,Conventional,FHA,VA Loan
Tax/Property ID: U-10-30-20-2OF-000005-00027.0
Tax Amount: 1980.93
Tax Year: 2024
A broker reciprocity listing courtesy: KELLER WILLIAMS TAMPA PROP.
Based on information provided by Stellar MLS as distributed by the MLS GRID. Information from the Internet Data Exchange is provided exclusively for consumers’ personal, non-commercial use, and such information may not be used for any purpose other than to identify prospective properties consumers may be interested in purchasing. This data is deemed reliable but is not guaranteed to be accurate by Edina Realty, Inc., or by the MLS. Edina Realty, Inc., is not a multiple listing service (MLS), nor does it offer MLS access.
Copyright 2026 Stellar MLS as distributed by the MLS GRID. All Rights Reserved.
Sales History & Tax Summary for 3806 Pinedale Street
Sales History
| Date | Price | |
|---|---|---|
| Currently not available. | ||
Tax Summary
| Tax Year | Estimated Market Value | Total Tax |
|---|---|---|
| Currently not available. | ||
Data powered by ATTOM Data Solutions. Copyright© 2026. Information deemed reliable but not guaranteed.
Schools
Schools nearby 3806 Pinedale Street
| Schools in attendance boundaries | Grades | Distance | Rating |
|---|---|---|---|
| Loading... | |||
| Schools nearby | Grades | Distance | Rating |
|---|---|---|---|
| Loading... | |||
Data powered by ATTOM Data Solutions. Copyright© 2026. Information deemed reliable but not guaranteed.
The schools shown represent both the assigned schools and schools by distance based on local school and district attendance boundaries. Attendance boundaries change based on various factors and proximity does not guarantee enrollment eligibility. Please consult your real estate agent and/or the school district to confirm the schools this property is zoned to attend. Information is deemed reliable but not guaranteed.
SchoolDigger ® Rating
The SchoolDigger rating system is a 1-5 scale with 5 as the highest rating. SchoolDigger ranks schools based on test scores supplied by each state's Department of Education. They calculate an average standard score by normalizing and averaging each school's test scores across all tests and grades.
Coming soon properties will soon be on the market, but are not yet available for showings.