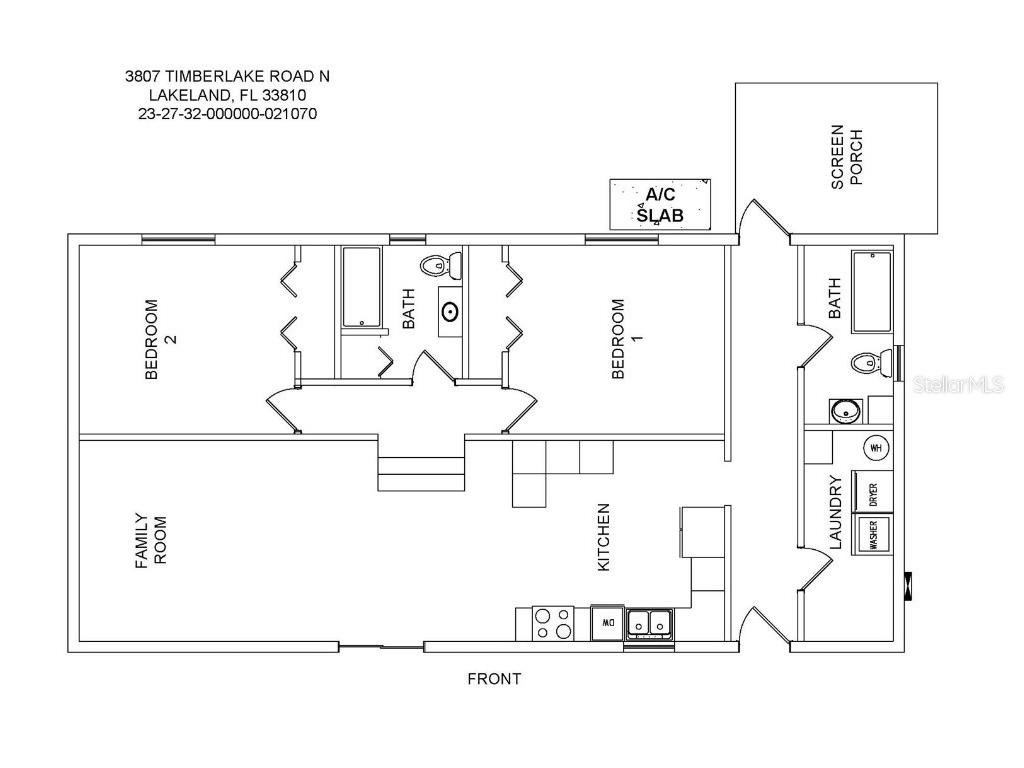
3807 Timberlake Road N Lakeland, FL 33810
For Sale MLS# L4956980
2 beds 2 baths 1,277 sq ft Single Family
Details for 3807 Timberlake Road N
MLS# L4956980
Description for 3807 Timberlake Road N, Lakeland, FL, 33810
NEW ROOF JUST INSTALLED! Discover the perfect blend of country living and comfort in this newly updated 2-bedroom, 2-bath home nestled on almost an acre in a quiet North Lakeland neighborhood. Step inside to find an open layout with plenty of natural light featuring a brand-new kitchen with quartz countertops, two-tone cabinets, and stainless-steel appliances. The spacious living room just off the kitchen is perfect for gatherings and features vaulted ceilings and a striking wood-paneled accent wall that adds warmth and character. Both bedrooms offer vaulted ceilings and new plush carpeting, while the two bathrooms provide a private oasis. One bathroom hosts a garden tub, and both feature additional storage. The interior also features a large laundry room that’s convenient and out of the way. Outside, enjoy Florida living at its best on the screened-in back porch, ideal for morning coffee or relaxing evenings. The fenced yard offers plenty of space to for outdoor activities or your RV, boat, and more. There is also a workshop plus two large detached carports for parking and storage. Major updates include a new septic tank and drain field. Move-in ready and located just minutes from shopping, dining, and I-4 access, this North Lakeland gem combines modern upgrades with quiet country charm. Don’t miss your chance to call it home! USDA FINANCING AVAILABLE FOR ELIGIBLE BUYERS, WITH NO MONEY DOWN. CALL TODAY FOR MORE DETAILS.
Listing Information
Property Type: Residential, Single Family Residence
Status: Active
Bedrooms: 2
Bathrooms: 2
Lot Size: 0.98 Acres
Square Feet: 1,277 sq ft
Year Built: 1987
Stories: 1 Story
Construction: Wood Frame
Subdivision: Timberlk Estates
Foundation: Crawlspace
County: Polk
Room Information
Main Floor
Primary Bedroom:
Living Room:
Kitchen:
Bathrooms
Full Baths: 2
Additonal Room Information
Laundry: Inside, Laundry Room
Interior Features
Appliances: Tankless Water Heater, Dishwasher, Microwave, Range, Refrigerator
Flooring: Carpet,Laminate,Tile
Basement: Crawl Space
Additional Interior Features: Ceiling Fan(s), Vaulted Ceiling(s)
Utilities
Water: Well
Sewer: Septic Tank
Other Utilities: Electricity Connected
Cooling: Central Air, Ceiling Fan(s)
Heating: Central
Exterior / Lot Features
Roof: Shingle
Lot Dimensions: 130x330
Fencing: Chain Link
Additional Exterior/Lot Features: Storage, Other, Porch, Covered, Screened, Rear Porch, Landscaped
Out Buildings: Storage
Driving Directions
98 N TO GRIFFIN TO R ON HARRELSON TO TIMBERLAKE.
Financial Considerations
Terms: Cash,Conventional,FHA,USDA Loan,VA Loan
Tax/Property ID: 23-27-32-000000-021070
Tax Amount: 1838
Tax Year: 2025
A broker reciprocity listing courtesy: PORCHLIGHT HOMES LLC
Based on information provided by Stellar MLS as distributed by the MLS GRID. Information from the Internet Data Exchange is provided exclusively for consumers’ personal, non-commercial use, and such information may not be used for any purpose other than to identify prospective properties consumers may be interested in purchasing. This data is deemed reliable but is not guaranteed to be accurate by Edina Realty, Inc., or by the MLS. Edina Realty, Inc., is not a multiple listing service (MLS), nor does it offer MLS access.
Copyright 2026 Stellar MLS as distributed by the MLS GRID. All Rights Reserved.
Payment Calculator
Interest rate and annual percentage rate (APR) are based on current market conditions, are for informational purposes only, are subject to change without notice and may be subject to pricing add-ons related to property type, loan amount, loan-to-value, credit score and other variables. Estimated closing costs used in the APR calculation are assumed to be paid by the borrower at closing. If the closing costs are financed, the loan, APR and payment amounts will be higher. If the down payment is less than 20%, mortgage insurance may be required and could increase the monthly payment and APR. Contact us for details. Additional loan programs may be available. Accuracy is not guaranteed, and all products may not be available in all borrower's geographical areas and are based on their individual situation. This is not a credit decision or a commitment to lend.
Sales History & Tax Summary for 3807 Timberlake Road N
Sales History
| Date | Price | |
|---|---|---|
| Currently not available. | ||
Tax Summary
| Tax Year | Estimated Market Value | Total Tax |
|---|---|---|
| Currently not available. | ||
Data powered by ATTOM Data Solutions. Copyright© 2026. Information deemed reliable but not guaranteed.
Schools
Schools nearby 3807 Timberlake Road N
| Schools in attendance boundaries | Grades | Distance | Rating |
|---|---|---|---|
| Loading... | |||
| Schools nearby | Grades | Distance | Rating |
|---|---|---|---|
| Loading... | |||
Data powered by ATTOM Data Solutions. Copyright© 2026. Information deemed reliable but not guaranteed.
The schools shown represent both the assigned schools and schools by distance based on local school and district attendance boundaries. Attendance boundaries change based on various factors and proximity does not guarantee enrollment eligibility. Please consult your real estate agent and/or the school district to confirm the schools this property is zoned to attend. Information is deemed reliable but not guaranteed.
SchoolDigger ® Rating
The SchoolDigger rating system is a 1-5 scale with 5 as the highest rating. SchoolDigger ranks schools based on test scores supplied by each state's Department of Education. They calculate an average standard score by normalizing and averaging each school's test scores across all tests and grades.
Coming soon properties will soon be on the market, but are not yet available for showings.