$995,000
3820 Woods Rider Loop Odessa, FL 33556
For Sale MLS# TB8491218
5 beds 4 baths 3,548 sq ft Single Family
Details for 3820 Woods Rider Loop
MLS# TB8491218
Description for 3820 Woods Rider Loop, Odessa, FL, 33556
IMPRESSIVE POOL HOME ON CONSERVATION IN STARKEY RANCH! Exceptional Homes by WestBay Virginia Park floor plan offers the perfect blend of luxury, functionality, and style designed with 5 spacious bedrooms, 4 full bathrooms, a dedicated dining room or office, oversized loft, 3 car garage with pool & outdoor kitchen overlooking the tranquil conservation. As you pull up to the impressive Mediterranean style home you will be immediately captivated by the stunning exterior featuring a tile roof, paver driveway, and large 3 car garage. Upon entering you are greeted with beautiful natural light which accentuates the large open floor plan and abundance of upgrades, including a consistent tile flooring throughout the downstairs living areas. Noteworthy upgrades include plantation shutters, crown molding, custom lighting & built in features. As you enter the foyer through the double glass entry doors, a formal dining room with custom accent wall and chandelier capture your attention. Continuing down the large foyer, the open floor plan unfolds. An elegant gourmet kitchen is a chef’s dream, complete with high end quartz countertops, stainless steel appliances include gas cooktop, built in microwave and oven, dishwasher, extended island illuminated by pendent lights with built-in dining table for 5 for casual dining, and 42 inch crisp Coastal White Shaker Maple cabinetry accented by crown, black hardware and a herringbone ice bevel backsplash. A custom-built bar with stone accent wall offers useful additional storage. The spacious living room is anchored by matching stone accent wall with electric fireplace & ceiling fan while overlooking pool & conservation. Sliders open up the downstairs living making this the PERFECT home for seamless indoor/outdoor living. Completing your downstairs area is a bedroom + full bath with door leading out to the lanai, making this the perfect guest suite or pool bath! Heading upstairs you will be immediately impressed with the OVERSIZED bonus area with accent wall & ceiling fan. If you can dream it, this space can accommodate it! Double doors take you to the impressive Primary suite complete with ensuite bath, this is a true retreat featuring rain shower head in frameless enclosed walk in shower, dual sinks with quartz counters, cabinets and makeup seat + large walk in closet. Also upstairs are 3 additional large bedrooms, 2 full bathrooms one Jack & Jill style, and laundry room with cabinets & folding counter. Enjoy the Florida lifestyle from your saltwater pool with waterfall feature, LED lights and serene views of the conservation! The oversized lanai area complete with MOVEABLE outdoor kitchen including outdoor grill w/ gas hook up, fridge & 6 person Bar table + LED lights & stereo, and grass accent wall make this the ideal space to entertain! Spacious yard will allow room for future fence. Enjoy the adjacent park-like area and surrounding private nature views. Additional home features include epoxied garage flooring, tankless gas hot water heater & garage storage racks. Starkey Ranch offers over 20 miles of walking trails, 3 community pools, dog parks, a community garden, playgrounds, parks, and is zoned for Starkey Ranch Magnet K-8 school. Located close to shopping, hospitals, restaurants, Tampa Airport, beaches and our very own Publix within the community! This home truly has IT ALL! Make your move today!
Listing Information
Property Type: Residential, Single Family Residence
Status: Active
Bedrooms: 5
Bathrooms: 4
Lot Size: 0.18 Acres
Square Feet: 3,548 sq ft
Year Built: 2022
Garage: Yes
Stories: 2 Story
Construction: Block,Wood Frame
Subdivision: Starkey Ranch Prcl A
Builder: HOMES BY WESTBAY
Foundation: Slab
County: Pasco
School Information
Elementary: Starkey Ranch K-8
Middle: Starkey Ranch K-8
High: River Ridge High-Po
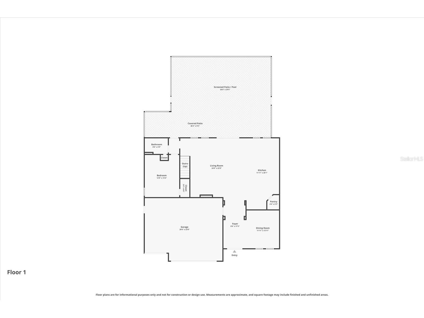
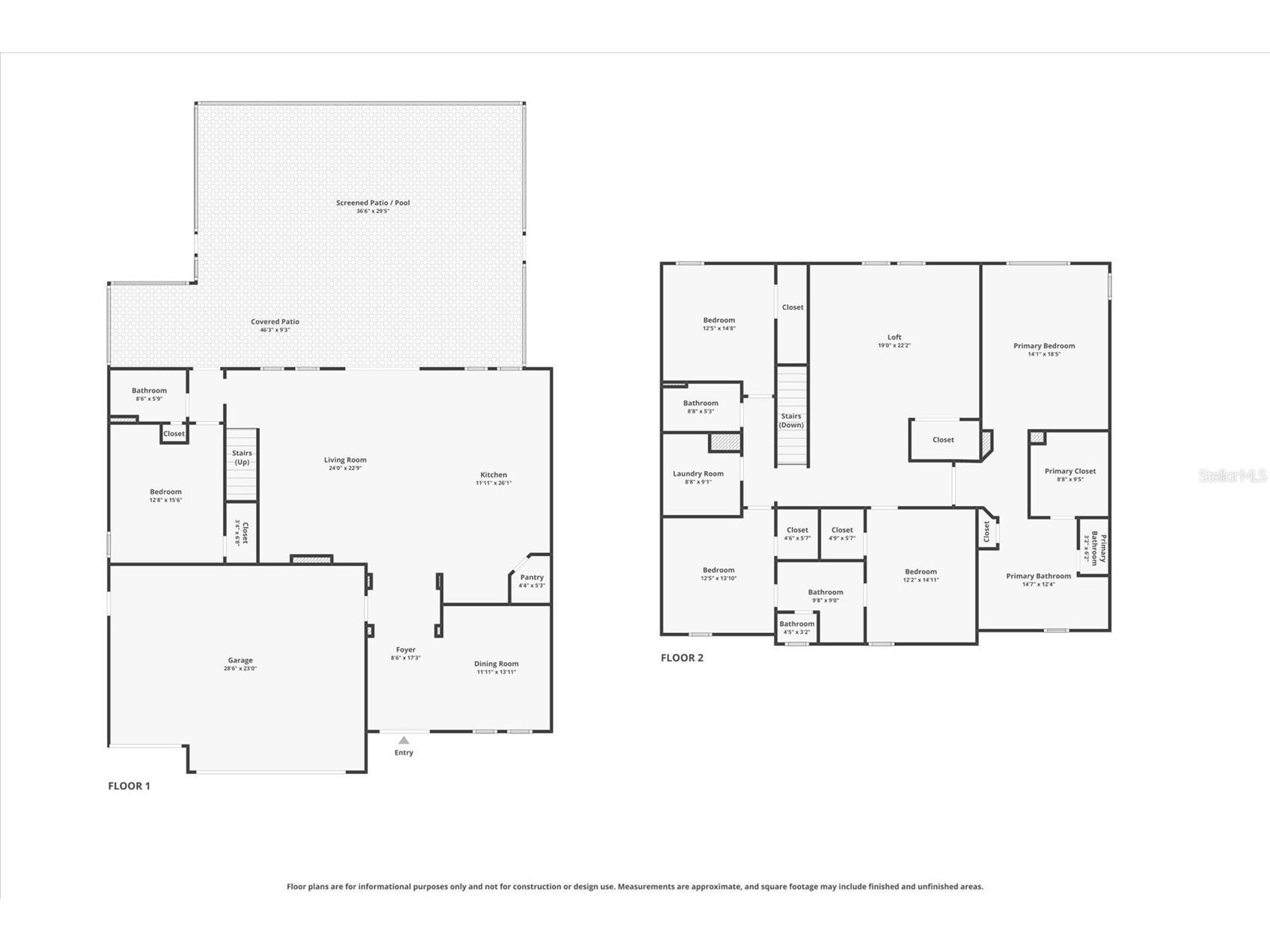
Room Information
Main Floor
Bedroom 2: 15.6x12.8
Dining Room: 13.11x11.11
Kitchen: 26.1x11.11
Living Room: 22.9x24
Upper Floor
Loft: 22.2x19
Bedroom 5: 14.8x12.5
Bedroom 4: 13.1x12.5
Bedroom 3: 14.11x12.2
Primary Bedroom: 18.5x14.1
Bathrooms
Full Baths: 4
Additonal Room Information
Laundry: Inside, Laundry Room
Interior Features
Appliances: Built-In Oven, Tankless Water Heater, Gas Water Heater, Range Hood, Washer, Cooktop, Dishwasher, Disposal, Dryer, Microwave, Refrigerator
Flooring: Carpet,Tile
Doors/Windows: Insulated Windows, ENERGY STAR Qualified Windows, Double Pane Windows, Low-Emissivity Windows
Fireplaces: Living Room
Additional Interior Features: Loft, Walk-In Closet(s), Built-in Features, Ceiling Fan(s), Eat-In Kitchen, Upper Level Primary, Crown Molding, Dry Bar, High Ceilings, Separate/Formal Dining Room, Stone Counters, Open Floorplan, Kitchen/Family Room Combo, Wood Cabinets
Utilities
Water: Public
Sewer: Public Sewer
Other Utilities: Electricity Connected,Natural Gas Connected,High Speed Internet Available,Municipal Utilities,Sewer Connected,Water Connected
Cooling: Ceiling Fan(s), Central Air
Heating: Central
Exterior / Lot Features
Attached Garage: Attached Garage
Garage Spaces: 3
Roof: Tile
Pool: Association, Community, In Ground, Salt Water, Screen Enclosure
Lot View: Trees/Woods
Additional Exterior/Lot Features: Storm/Security Shutters, Sprinkler/Irrigation, Outdoor Grill, In-Wall Pest Control System, Outdoor Kitchen, Landscaped, Conservation Area
Community Features
Community Features: Fitness, Park, Dog Park, Community Mailbox, Pool, Sidewalks, Playground
Security Features: Security System
Association Amenities: Park, Pool, Playground, Trail(s)
HOA Dues Include: Taxes, Pool(s), Common Areas
Homeowners Association: Yes
HOA Dues: $85 / Annually
Driving Directions
Starkey N, right on Rangeland, left on Woods Rider.
Financial Considerations
Terms: Cash,Conventional,VA Loan
Tax/Property ID: 17-26-20-0070-00100-0370
Tax Amount: 18872.05
Tax Year: 2025
A broker reciprocity listing courtesy: RE/MAX ACTION FIRST OF FLORIDA
Based on information provided by Stellar MLS as distributed by the MLS GRID. Information from the Internet Data Exchange is provided exclusively for consumers’ personal, non-commercial use, and such information may not be used for any purpose other than to identify prospective properties consumers may be interested in purchasing. This data is deemed reliable but is not guaranteed to be accurate by Edina Realty, Inc., or by the MLS. Edina Realty, Inc., is not a multiple listing service (MLS), nor does it offer MLS access.
Copyright 2026 Stellar MLS as distributed by the MLS GRID. All Rights Reserved.
Payment Calculator
Interest rate and annual percentage rate (APR) are based on current market conditions, are for informational purposes only, are subject to change without notice and may be subject to pricing add-ons related to property type, loan amount, loan-to-value, credit score and other variables. Estimated closing costs used in the APR calculation are assumed to be paid by the borrower at closing. If the closing costs are financed, the loan, APR and payment amounts will be higher. If the down payment is less than 20%, mortgage insurance may be required and could increase the monthly payment and APR. Contact us for details. Additional loan programs may be available. Accuracy is not guaranteed, and all products may not be available in all borrower's geographical areas and are based on their individual situation. This is not a credit decision or a commitment to lend.
Sales History & Tax Summary for 3820 Woods Rider Loop
Sales History
| Date | Price | |
|---|---|---|
| Currently not available. | ||
Tax Summary
| Tax Year | Estimated Market Value | Total Tax |
|---|---|---|
| Currently not available. | ||
Data powered by ATTOM Data Solutions. Copyright© 2026. Information deemed reliable but not guaranteed.
Schools
Schools nearby 3820 Woods Rider Loop
| Schools in attendance boundaries | Grades | Distance | Rating |
|---|---|---|---|
| Loading... | |||
| Schools nearby | Grades | Distance | Rating |
|---|---|---|---|
| Loading... | |||
Data powered by ATTOM Data Solutions. Copyright© 2026. Information deemed reliable but not guaranteed.
The schools shown represent both the assigned schools and schools by distance based on local school and district attendance boundaries. Attendance boundaries change based on various factors and proximity does not guarantee enrollment eligibility. Please consult your real estate agent and/or the school district to confirm the schools this property is zoned to attend. Information is deemed reliable but not guaranteed.
SchoolDigger ® Rating
The SchoolDigger rating system is a 1-5 scale with 5 as the highest rating. SchoolDigger ranks schools based on test scores supplied by each state's Department of Education. They calculate an average standard score by normalizing and averaging each school's test scores across all tests and grades.
Coming soon properties will soon be on the market, but are not yet available for showings.