$255,000
3822 Alice Drive Wesley Chapel, FL 33543
For Sale MLS# TB8485069
3 beds 2 baths 1,368 sq ft Single Family
Details for 3822 Alice Drive
MLS# TB8485069
Description for 3822 Alice Drive, Wesley Chapel, FL, 33543
Welcome to this charming 3-bedroom, 2-bath mobile home located in the peaceful community of Zephyrhills. Perfect for first-time buyers, families, or those seeking a comfortable Florida retreat, this home offers a well-designed layout and modern features. The heart of the home is the kitchen, equipped with appliances, granite countertops, and ample cabinet space, making meal preparation simple and enjoyable. The living areas are bright and inviting, providing a cozy space for relaxation and everyday living. The three bedrooms offer comfortable retreats for family members or guests, while the two bathrooms provide convenience and functionality. Located in a friendly neighborhood, residents enjoy easy access to parks, outdoor recreation, and local amenities, including Zephyr Park and the unique attractions of Zephyrhills. Shopping, dining, and entertainment options are just a short drive away in Wesley Chapel, and downtown Tampa is within easy reach. This move-in-ready mobile home combines comfort, convenience, and the relaxed lifestyle of Zephyrhills, making it an ideal place to call home.
Listing Information
Property Type: Residential, Mobile Home
Status: Active
Bedrooms: 3
Bathrooms: 2
Lot Size: 1.10 Acres
Square Feet: 1,368 sq ft
Year Built: 1974
Stories: 1 Story
Construction: Metal Siding
Subdivision: Williams New River Acres Unrec
Foundation: Crawlspace
County: Pasco
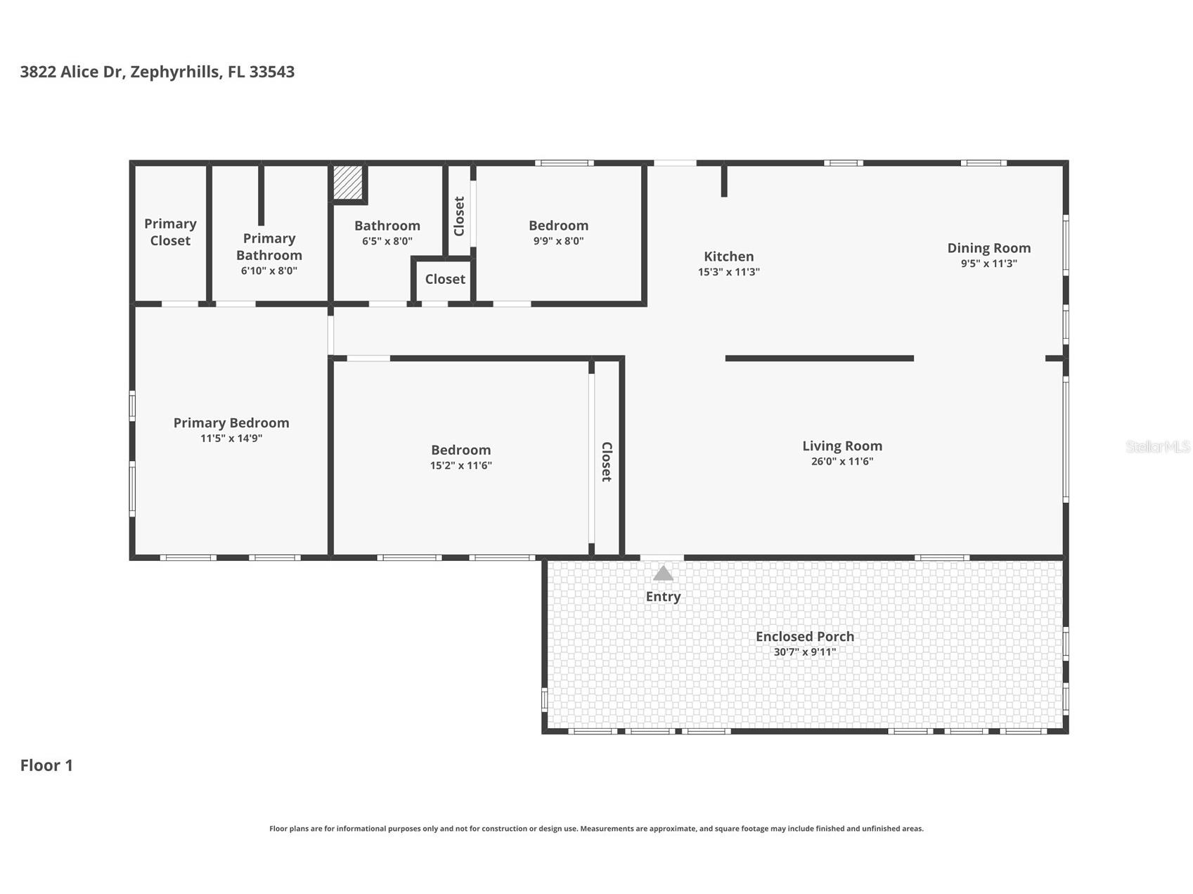
Room Information
Main Floor
Porch: 9x30
Bathroom 1: 8x6
Primary Bathroom: 8x6
Primary Bedroom: 14x11
Bedroom 2: 11x15
Bedroom 3: 8x9
Dining Room: 11x9
Kitchen: 11x15
Living Room: 11x26
Bathrooms
Full Baths: 2
Interior Features
Appliances: Range, Refrigerator, Disposal, Microwave
Flooring: Other,Vinyl
Basement: Crawl Space
Additional Interior Features: Ceiling Fan(s), Open Floorplan, Walk-In Closet(s)
Utilities
Water: Public
Sewer: Septic Tank
Other Utilities: Cable Available,Electricity Available,High Speed Internet Available,Phone Available,Sewer Available,Water Available
Cooling: Ceiling Fan(s), Central Air
Heating: Central
Exterior / Lot Features
Roof: Metal
Additional Exterior/Lot Features: Awning(s), Rain Gutters, Lighting, Storage, Front Porch, Enclosed, Outside City Limits
Out Buildings: Workshop, Storage
Driving Directions
From I-75: Take I-75 N to Exit 279 (SR 54), head east on SR 54, turn left onto Meadow Pointe Blvd, then right onto Alice Dr. Home will be on the right.
Financial Considerations
Terms: Cash,Conventional,VA Loan
Tax/Property ID: 24-26-20-0010-00000-6780
Tax Amount: 1703.29
Tax Year: 2025
A broker reciprocity listing courtesy: LPT REALTY, LLC
Based on information provided by Stellar MLS as distributed by the MLS GRID. Information from the Internet Data Exchange is provided exclusively for consumers’ personal, non-commercial use, and such information may not be used for any purpose other than to identify prospective properties consumers may be interested in purchasing. This data is deemed reliable but is not guaranteed to be accurate by Edina Realty, Inc., or by the MLS. Edina Realty, Inc., is not a multiple listing service (MLS), nor does it offer MLS access.
Copyright 2026 Stellar MLS as distributed by the MLS GRID. All Rights Reserved.
Payment Calculator
Interest rate and annual percentage rate (APR) are based on current market conditions, are for informational purposes only, are subject to change without notice and may be subject to pricing add-ons related to property type, loan amount, loan-to-value, credit score and other variables. Estimated closing costs used in the APR calculation are assumed to be paid by the borrower at closing. If the closing costs are financed, the loan, APR and payment amounts will be higher. If the down payment is less than 20%, mortgage insurance may be required and could increase the monthly payment and APR. Contact us for details. Additional loan programs may be available. Accuracy is not guaranteed, and all products may not be available in all borrower's geographical areas and are based on their individual situation. This is not a credit decision or a commitment to lend.
Sales History & Tax Summary for 3822 Alice Drive
Sales History
| Date | Price | |
|---|---|---|
| Currently not available. | ||
Tax Summary
| Tax Year | Estimated Market Value | Total Tax |
|---|---|---|
| Currently not available. | ||
Data powered by ATTOM Data Solutions. Copyright© 2026. Information deemed reliable but not guaranteed.
Schools
Schools nearby 3822 Alice Drive
| Schools in attendance boundaries | Grades | Distance | Rating |
|---|---|---|---|
| Loading... | |||
| Schools nearby | Grades | Distance | Rating |
|---|---|---|---|
| Loading... | |||
Data powered by ATTOM Data Solutions. Copyright© 2026. Information deemed reliable but not guaranteed.
The schools shown represent both the assigned schools and schools by distance based on local school and district attendance boundaries. Attendance boundaries change based on various factors and proximity does not guarantee enrollment eligibility. Please consult your real estate agent and/or the school district to confirm the schools this property is zoned to attend. Information is deemed reliable but not guaranteed.
SchoolDigger ® Rating
The SchoolDigger rating system is a 1-5 scale with 5 as the highest rating. SchoolDigger ranks schools based on test scores supplied by each state's Department of Education. They calculate an average standard score by normalizing and averaging each school's test scores across all tests and grades.
Coming soon properties will soon be on the market, but are not yet available for showings.