3823 Parkridge Circle #1-101 Sarasota, FL 34243
For Sale MLS# A4669297
3 beds 2 baths 1,210 sq ft Condo
Details for 3823 Parkridge Circle #1-101
MLS# A4669297
Description for 3823 Parkridge Circle #1-101, Sarasota, FL, 34243
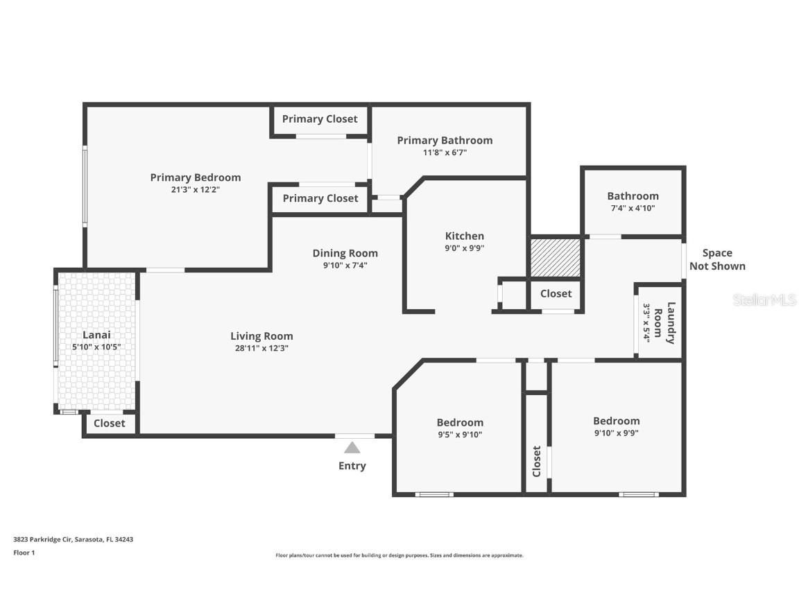
This FIRST FLOOR (GATED) condo is a stunning property featuring ~ 3 bedrooms ~2 bathrooms,~ and a 1 Car Garage, situated in a highly desirable area. Showcases luxury vinyl flooring throughout, with carpet in the bedrooms for added comfort. The large great room opens up to the kitchen, Great for Entertaining. The unit also boasts a Private lanai and very private backyard with a storage closet —ideal for relaxation. Enjoy the heated community pool or take a short walk to Detweilers, Publix, Walmart, lots of Restaurants nearby. Just minutes to UTC Mall. Drive a short distance to the worlds most beautiful beaches. Additionally, being part of a fabulous gated community enhances its appeal, making it a highly sought-after living space and Location. This condo offers a perfect blend of convenience, comfort, and luxury!
Listing Information
Property Type: Residential, Condominium
Status: Active
Bedrooms: 3
Bathrooms: 2
Lot Size: 34.71 Acres
Square Feet: 1,210 sq ft
Year Built: 2005
Garage: Yes
Stories: 1 Story
Construction: Block
Subdivision: Parkridge Ph 33 & 19
Foundation: Slab
County: Sarasota
Room Information
Main Floor
Bedroom 3: 10x10
Bedroom 2: 10x11
Kitchen: 10x10
Primary Bedroom: 11x13
Living Room: 17x20
Bathrooms
Full Baths: 2
Additonal Room Information
Laundry: Inside
Interior Features
Appliances: Dishwasher, Dryer, Microwave, Range, Refrigerator, Washer
Flooring: Carpet,Porcelain Tile
Additional Interior Features: Ceiling Fan(s), Walk-In Closet(s), Living/Dining Room, Solid Surface Counters, Open Floorplan
Utilities
Water: Public
Sewer: Public Sewer
Other Utilities: Cable Connected,Sewer Connected,Water Connected
Cooling: Ceiling Fan(s), Central Air
Heating: Central
Exterior / Lot Features
Attached Garage: Attached Garage
Garage Spaces: 1
Roof: Shingle
Pool: Community
Community Features
Community Features: Gated
Security Features: Gated Community
Association Amenities: Maintenance Grounds, Gated
HOA Dues Include: Maintenance Grounds, Maintenance Structure, Pool(s)
Homeowners Association: Yes
HOA Dues: $1,233 / Quarterly
Driving Directions
University Parkway head East from Lockwood Ridge. Turn right into Parkridge
Financial Considerations
Terms: Cash,Conventional
Tax/Property ID: 0020011001
Tax Amount: 3035.6
Tax Year: 2024
A broker reciprocity listing courtesy: FINE PROPERTIES
Based on information provided by Stellar MLS as distributed by the MLS GRID. Information from the Internet Data Exchange is provided exclusively for consumers’ personal, non-commercial use, and such information may not be used for any purpose other than to identify prospective properties consumers may be interested in purchasing. This data is deemed reliable but is not guaranteed to be accurate by Edina Realty, Inc., or by the MLS. Edina Realty, Inc., is not a multiple listing service (MLS), nor does it offer MLS access.
Copyright 2025 Stellar MLS as distributed by the MLS GRID. All Rights Reserved.
Payment Calculator
Interest rate and annual percentage rate (APR) are based on current market conditions, are for informational purposes only, are subject to change without notice and may be subject to pricing add-ons related to property type, loan amount, loan-to-value, credit score and other variables. Estimated closing costs used in the APR calculation are assumed to be paid by the borrower at closing. If the closing costs are financed, the loan, APR and payment amounts will be higher. If the down payment is less than 20%, mortgage insurance may be required and could increase the monthly payment and APR. Contact us for details. Additional loan programs may be available. Accuracy is not guaranteed, and all products may not be available in all borrower's geographical areas and are based on their individual situation. This is not a credit decision or a commitment to lend.
Sales History & Tax Summary for 3823 Parkridge Circle #1-101
Sales History
| Date | Price | Change |
|---|---|---|
| Currently not available. | ||
Tax Summary
| Tax Year | Estimated Market Value | Total Tax |
|---|---|---|
| Currently not available. | ||
Data powered by ATTOM Data Solutions. Copyright© 2025. Information deemed reliable but not guaranteed.
Schools
Schools nearby 3823 Parkridge Circle #1-101
| Schools in attendance boundaries | Grades | Distance | Rating |
|---|---|---|---|
| Loading... | |||
| Schools nearby | Grades | Distance | Rating |
|---|---|---|---|
| Loading... | |||
Data powered by ATTOM Data Solutions. Copyright© 2025. Information deemed reliable but not guaranteed.
The schools shown represent both the assigned schools and schools by distance based on local school and district attendance boundaries. Attendance boundaries change based on various factors and proximity does not guarantee enrollment eligibility. Please consult your real estate agent and/or the school district to confirm the schools this property is zoned to attend. Information is deemed reliable but not guaranteed.
SchoolDigger ® Rating
The SchoolDigger rating system is a 1-5 scale with 5 as the highest rating. SchoolDigger ranks schools based on test scores supplied by each state's Department of Education. They calculate an average standard score by normalizing and averaging each school's test scores across all tests and grades.
Coming soon properties will soon be on the market, but are not yet available for showings.