38509 Pickerel Trail Crosslake, MN 56442 - Pickeral Lake
For Sale MLS# 6823745
3 beds 4 baths 3,440 sq ft Single Family
Details for 38509 Pickerel Trail
MLS# 6823745
Description for 38509 Pickerel Trail, Crosslake, MN, 56442 - Pickeral Lake
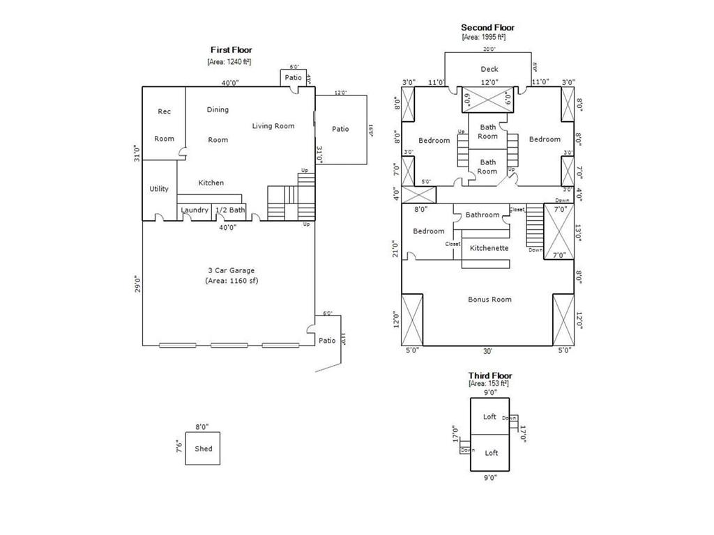
Experience a totally different style of living with complete relaxation and privacy. Whether you are looking for a vacation home or rental, multi-generational living, or just making memories with extended family and friends - this is the ultimate location! With over 3500 square feet of living space there is room for everyone to enjoy. 2 large open concept living areas with complete kitchens provide room for everyone to spend time together but still have enough space to spread out. The 3 separate sets of private bedrooms and bathrooms provide ample space for quiet and relaxation even if the house is full. Massive garage space with high ceilings that doubles as additional living space/game room complete with full HVAC set up. There are so many opportunities to enjoy the peacefulness of the outdoors on this large parcel on a semi-private lake. The lakeshore is amazing with a gentle slope to the dock and a hard sand bottom which make the area perfect for swimming, fishing, kayaking, and more. Enjoy all that the area has to offer from shopping to ATV trails and then retreat to the priceless privacy you simply can’t find elsewhere. Property is being sold with most contents included. There are simply endless possibilities for this property that need to be seen to appreciate. Sale is subject to county approval of subdivision in process.
Listing Information
Property Type: Residential, Single Family, Acreage
Status: Active
Bedrooms: 3
Bathrooms: 4
Lot Size: 10 Acres
Square Feet: 3,440 sq ft
Year Built: 2004
Foundation: 2,400 sq ft
Garage: Yes
Stories: 1.5 Stories
Subdivision: E Alg Sd
County: Crow Wing
Days On Market: 75
Construction Status: Previously Owned
School Information
District: 182 - Crosby-Ironton
Room Information
Main Floor
Dining Room: 15x15
Kitchen: 15x8
Living Room: 15x15
Upper Floor
Bedroom 1: 13x12
Bedroom 2: 15x20
Bedroom 3: 15x20
Bathrooms
Full Baths: 2
3/4 Baths: 1
1/2 Baths: 1
Additonal Room Information
Family: 2 or More,Loft,Main Level
Dining: Breakfast Bar,Eat In Kitchen,Informal Dining Room,Kitchen/Dining Room,Living/Dining Room
Interior Features
Square Footage above: 3,440 sq ft
Appliances: Range, Refrigerator, Microwave, Washer, Dryer, Dishwasher
Facilities: Easily Divided
Additional Interior Features: Vaulted Ceiling(s)
Utilities
Water: Well, Private
Sewer: Septic System Compliant - Yes
Cooling: Central
Heating: Natural Gas, Forced Air
Exterior / Lot Features
Attached Garage: Attached Garage
Garage Spaces: 3
Parking Description: Driveway - Concrete, Driveway - Other Surface, Attached Garage, Garage Door Opener, Heated Garage, Insulated Garage, Tuckunder Garage, Garage Dimensions - 40x34, Garage Door Height - 7, Garage Door Width - 16, Garage Sq Ft - 1360.
Exterior: Wood
Lot Dimensions: 712x1136x1159x532
Zoning: Residential-Single Family,Shoreline
Additional Exterior/Lot Features: Patio, Dock, Accessible Shoreline, Irregular Lot, Tree Coverage - Medium, Road Frontage - City
Wooded Acres: 11.58
Waterfront Details
Boat Facilities: Boat Facilities
Standard Water Body: Pickeral Lake
DNR Lake ID: 18020500
Water Front Features: Lake Front, Dock
Water Frontage Length: 500 Ft.
Lake Acres: 117
Lake Depth: 25 Ft.
Driving Directions
Cty Rd 36 E to Bonnie Lakes Rd N 2.9 Mi to Pickerel Tr R 1/4 mil to "Y" R to end of road
Financial Considerations
Tax/Property ID: 60060516
Tax Amount: 3952
Tax Year: 2026
HomeStead Description: Non-Homesteaded
A broker reciprocity listing courtesy: RE/MAX Advantage Plus
The data relating to real estate for sale on this web site comes in part from the Broker Reciprocity℠ Program of the Regional Multiple Listing Service of Minnesota, Inc. Real estate listings held by brokerage firms other than Edina Realty, Inc. are marked with the Broker Reciprocity℠ logo or the Broker Reciprocity℠ thumbnail and detailed information about them includes the name of the listing brokers. Edina Realty, Inc. is not a Multiple Listing Service (MLS), nor does it offer MLS access. This website is a service of Edina Realty, Inc., a broker Participant of the Regional Multiple Listing Service of Minnesota, Inc. IDX information is provided exclusively for consumers personal, non-commercial use and may not be used for any purpose other than to identify prospective properties consumers may be interested in purchasing. Open House information is subject to change without notice. Information deemed reliable but not guaranteed.
Copyright 2026 Regional Multiple Listing Service of Minnesota, Inc. All Rights Reserved.
Payment Calculator
Interest rate and annual percentage rate (APR) are based on current market conditions, are for informational purposes only, are subject to change without notice and may be subject to pricing add-ons related to property type, loan amount, loan-to-value, credit score and other variables. Estimated closing costs used in the APR calculation are assumed to be paid by the borrower at closing. If the closing costs are financed, the loan, APR and payment amounts will be higher. If the down payment is less than 20%, mortgage insurance may be required and could increase the monthly payment and APR. Contact us for details. Additional loan programs may be available. Accuracy is not guaranteed, and all products may not be available in all borrower's geographical areas and are based on their individual situation. This is not a credit decision or a commitment to lend.
Sales History & Tax Summary for 38509 Pickerel Trail
Sales History
| Date | Price | |
|---|---|---|
| Currently not available. | ||
Tax Summary
| Tax Year | Estimated Market Value | Total Tax |
|---|---|---|
| Currently not available. | ||
Data powered by ATTOM Data Solutions. Copyright© 2026. Information deemed reliable but not guaranteed.
Schools
Schools nearby 38509 Pickerel Trail
| Schools in attendance boundaries | Grades | Distance | Rating |
|---|---|---|---|
| Loading... | |||
| Schools nearby | Grades | Distance | Rating |
|---|---|---|---|
| Loading... | |||
Data powered by ATTOM Data Solutions. Copyright© 2026. Information deemed reliable but not guaranteed.
The schools shown represent both the assigned schools and schools by distance based on local school and district attendance boundaries. Attendance boundaries change based on various factors and proximity does not guarantee enrollment eligibility. Please consult your real estate agent and/or the school district to confirm the schools this property is zoned to attend. Information is deemed reliable but not guaranteed.
SchoolDigger ® Rating
The SchoolDigger rating system is a 1-5 scale with 5 as the highest rating. SchoolDigger ranks schools based on test scores supplied by each state's Department of Education. They calculate an average standard score by normalizing and averaging each school's test scores across all tests and grades.
Coming soon properties will soon be on the market, but are not yet available for showings.