$385,000
3880 Wilshire Circle #28 Sarasota, FL 34238
For Sale MLS# A4670169
2 beds 2 baths 1,822 sq ft Single Family
Details for 3880 Wilshire Circle #28
MLS# A4670169
Description for 3880 Wilshire Circle #28, Sarasota, FL, 34238
Brand New Roof being installed and the sellers are covering the cost! In addition the sellers would like to offer a credit that will cover a years worth of HOA fees! What a great value… Florida living in this beautifully updated 2-bedroom, 2-bath villa that feels like a single-family home without the exterior upkeep! Tucked away in Lakeshore Village South, one of Sarasota's most sought-after 55+ pet-friendly MAINTENANCE FREE communities, this residence offers privacy, comfort, and style in an intimate enclave of just 32 villas. Inside, you will find a fully remodeled kitchen with rich wood cabinetry, soft-close drawers, and granite countertops. The same attention to detail continues into the family room, featuring a wood-burning fireplace perfect for entertaining. A formal living and dining area provide additional space to relax or host gatherings. Step through sliding doors onto your extended newly pavered lanai, surrounded by lush, mature landscaping. The setting feels like your own private park quiet, green, and ideal for outdoor living. The spacious primary suite includes a custom walk-in closet, fully renovated bath, and a private office or sitting area with built-in cabinetry. The guest suite offers bright, welcoming comfort and an updated bath to match. This home is move in ready with new vinyl flooring throughout, an air conditioner replacement in 2022, an updated electrical box with an outdoor generator outlet added in 2024 and a tucked-away indoor laundry. Just 20 minutes to Siesta Key Beach, shopping, dining, and medical facilities Schedule your tour of this home today.
Listing Information
Property Type: Residential, Villa
Status: Active
Bedrooms: 2
Bathrooms: 2
Square Feet: 1,822 sq ft
Year Built: 1982
Garage: Yes
Stories: 1 Story
Construction: Block
Subdivision: Lakeshore Village South
Foundation: Slab
County: Sarasota
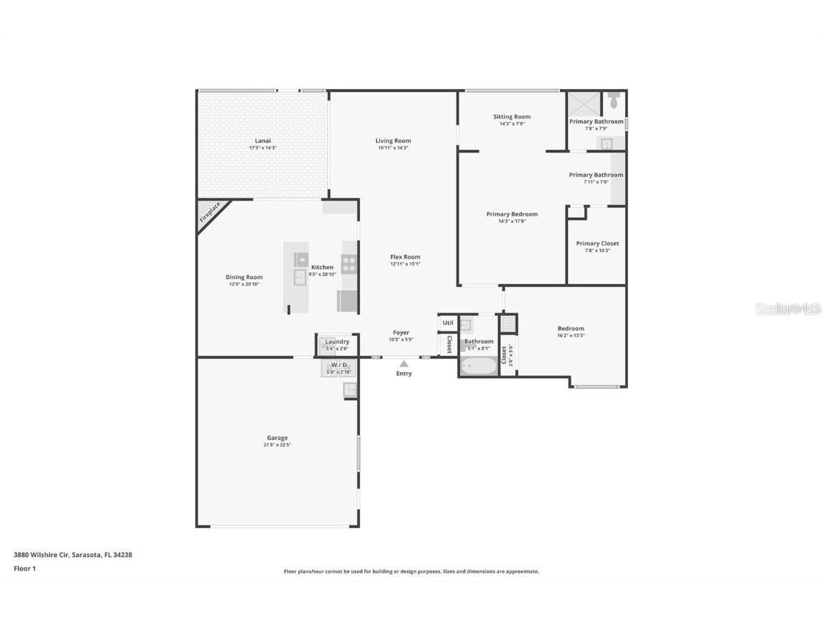
Room Information
Main Floor
Primary Bedroom: 15x18
Bonus Room: 14x8
Bedroom 2: 12x13
Kitchen: 19x10
Dining Room: 20x12
Living Room: 29x17
Bathrooms
Full Baths: 2
Additonal Room Information
Laundry: In Garage, Inside, Laundry Closet, Electric Dryer Hookup, In Kitchen
Interior Features
Appliances: Washer, Dishwasher, Disposal, Dryer, Microwave, Range, Refrigerator, Electric Water Heater
Flooring: Ceramic Tile,Luxury Vinyl
Doors/Windows: Blinds, Window Treatments
Fireplaces: Family Room, Wood Burning
Additional Interior Features: Eat-In Kitchen, Ceiling Fan(s), Living/Dining Room, Walk-In Closet(s), Window Treatments, Main Level Primary, Solid Surface Counters, Open Floorplan
Utilities
Water: Public
Sewer: Public Sewer
Other Utilities: Cable Connected,Electricity Connected,Municipal Utilities,Sewer Connected
Cooling: Ceiling Fan(s), Central Air
Heating: Central
Exterior / Lot Features
Attached Garage: Attached Garage
Garage Spaces: 2
Parking Description: driveway, Deeded, Covered, Garage Door Opener, Garage
Roof: Tile
Pool: Association, Community
Lot View: Trees/Woods
Additional Exterior/Lot Features: Lighting, Screened, Covered, Patio, Landscaped, Private Road, Buyer Approval Required
Out Buildings: Tennis Court(s)
Community Features
Community Features: Golf Carts OK, Clubhouse, Pool, Tennis Court(s), Lake
Association Amenities: Recreation Facilities, Pool, Tennis Court(s), Cable TV, Pickleball, Maintenance Grounds, Clubhouse
HOA Dues Include: Maintenance Grounds, Pest Control, Maintenance Structure, Pool(s), Cable TV, Recreation Facilities
Driving Directions
From Clark Rd to Wilshire BLVD. Continue straight to Wilshire Circle. Make a left and 3880 will be on your Right
Financial Considerations
Terms: Cash,Conventional
Tax/Property ID: 0099031028
Tax Amount: 4100.64
Tax Year: 2024
A broker reciprocity listing courtesy: SARABAY REAL ESTATE INC
Based on information provided by Stellar MLS as distributed by the MLS GRID. Information from the Internet Data Exchange is provided exclusively for consumers’ personal, non-commercial use, and such information may not be used for any purpose other than to identify prospective properties consumers may be interested in purchasing. This data is deemed reliable but is not guaranteed to be accurate by Edina Realty, Inc., or by the MLS. Edina Realty, Inc., is not a multiple listing service (MLS), nor does it offer MLS access.
Copyright 2026 Stellar MLS as distributed by the MLS GRID. All Rights Reserved.
Payment Calculator
Interest rate and annual percentage rate (APR) are based on current market conditions, are for informational purposes only, are subject to change without notice and may be subject to pricing add-ons related to property type, loan amount, loan-to-value, credit score and other variables. Estimated closing costs used in the APR calculation are assumed to be paid by the borrower at closing. If the closing costs are financed, the loan, APR and payment amounts will be higher. If the down payment is less than 20%, mortgage insurance may be required and could increase the monthly payment and APR. Contact us for details. Additional loan programs may be available. Accuracy is not guaranteed, and all products may not be available in all borrower's geographical areas and are based on their individual situation. This is not a credit decision or a commitment to lend.
Sales History & Tax Summary for 3880 Wilshire Circle #28
Sales History
| Date | Price | |
|---|---|---|
| Currently not available. | ||
Tax Summary
| Tax Year | Estimated Market Value | Total Tax |
|---|---|---|
| Currently not available. | ||
Data powered by ATTOM Data Solutions. Copyright© 2026. Information deemed reliable but not guaranteed.
Schools
Schools nearby 3880 Wilshire Circle #28
| Schools in attendance boundaries | Grades | Distance | Rating |
|---|---|---|---|
| Loading... | |||
| Schools nearby | Grades | Distance | Rating |
|---|---|---|---|
| Loading... | |||
Data powered by ATTOM Data Solutions. Copyright© 2026. Information deemed reliable but not guaranteed.
The schools shown represent both the assigned schools and schools by distance based on local school and district attendance boundaries. Attendance boundaries change based on various factors and proximity does not guarantee enrollment eligibility. Please consult your real estate agent and/or the school district to confirm the schools this property is zoned to attend. Information is deemed reliable but not guaranteed.
SchoolDigger ® Rating
The SchoolDigger rating system is a 1-5 scale with 5 as the highest rating. SchoolDigger ranks schools based on test scores supplied by each state's Department of Education. They calculate an average standard score by normalizing and averaging each school's test scores across all tests and grades.
Coming soon properties will soon be on the market, but are not yet available for showings.