3900 Colony Court Punta Gorda, FL 33950 - VENICE CANAL
For Sale MLS# C7521086
2 beds 3 baths 1,855 sq ft Single Family
Details for 3900 Colony Court
MLS# C7521086
Description for 3900 Colony Court, Punta Gorda, FL, 33950 - VENICE CANAL
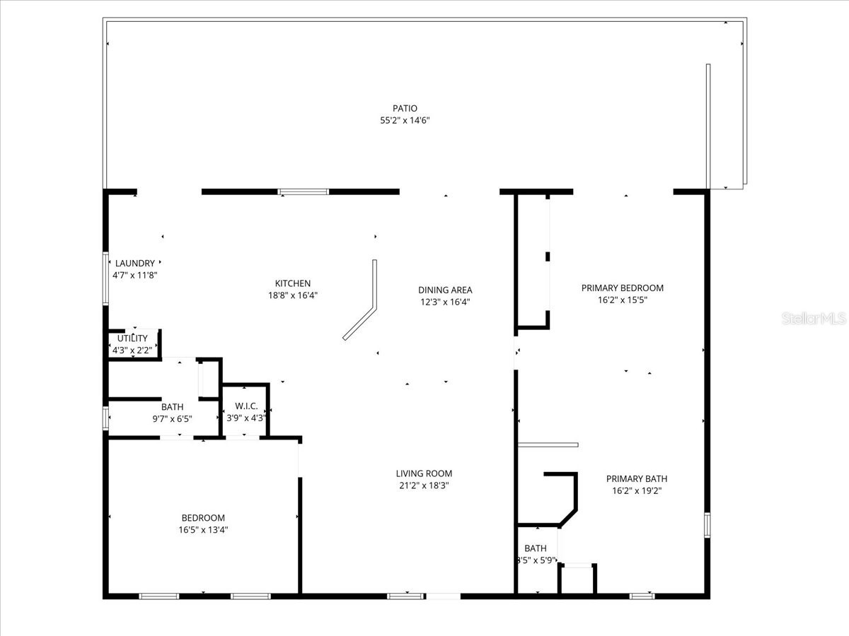
ASSUMABLE FLOOD INSURANCE - This CUSTOM-BUILT elevated Florida-style waterfront home offers 2 bedrooms, 2 1/2 bathrooms, and 1,855 sq ft of thoughtfully designed living space, complemented by a clean, modern exterior blending comfort and functionality along with a metal roof. Nestled on the Venice Canal, the property features 141 feet of waterfront and a 7’ x 14’ concrete dock with pilings, providing quick boating access to Charlotte Harbor and the Gulf of Mexico—a true haven for water enthusiasts. The fixed bridge clearance measures approximately 12’–13’, depending on conditions. Set on a generous lot, the home includes an expansive concrete driveway with ample space for vehicles, boats, or toys. The raised main living area provides peace of mind while creating a breezy, shaded space below—perfect for outdoor seating, storage, or future entertaining. A 144-sq-ft metal shed adds room for tools, lawn equipment, or water gear. Recent updates new septic system, double front doors, and appliances. The A/C and hot water heater were replaced in 2017 for reliable comfort. The exterior showcases a crisp, neutral palette, low-maintenance finishes, and wide staircases leading to multiple entry points. Inside, the bright, open-concept living area flows seamlessly into the kitchen and dining spaces, ideal for everyday living and entertaining. Durable tile flooring spans the home, while neutral tones and ceiling fans enhance comfort and airflow. Large sliding glass doors open to a 55’ x 15’ rear deck spanning the home’s width, overlooking the tranquil canal—perfect for dining, entertaining, or relaxing in Florida style. The chef-inspired kitchen features two center islands: one with a stainless-steel oven and the other with a breakfast bar for four. White cabinetry, glass-front upper cabinets, and abundant recessed lighting complete this functional space. A conveniently located laundry area off the kitchen adds efficiency. The split-bedroom layout offers two primary suites for ultimate privacy. The first suite includes dual-door closets, a sitting area, and slider access to the rear deck. Its ensuite has a jetted soaking tub, Roman shower, L-shaped vanity with double sinks, and a separate toilet room. The second primary suite features a walk-in closet and an attached bath with a walk-in shower that also connects to the kitchen area—ideal for flexible living or guest accommodations. Versatile ground-level living space has a fully screened, open area that expands usable living and entertaining space. Designed for durability, the concrete slab and high ceilings provide room for lounging, dining, or hosting gatherings. Multiple doors open into a bonus area plumbed with a bathroom, enhancing the space’s potential for a casual hangout, outdoor kitchen, workshop, or future conversion. Close to I-75/US41 and nearby Fishermen's Village, downtown Punta Gorda shops & restaurants, Saint Andrews Golf Course, and excellent boating, fishing, and sailing. Home is spotless and ready for you—enjoy the Florida lifestyle in this impressive home! **PLEASE ENJOY THE 3D INTERACTIVE VIRTUAL TOUR ASSOCIATED WITH THIS LISTING**
Listing Information
Property Type: Residential, Single Family Residence
Status: Active
Bedrooms: 2
Bathrooms: 3
Lot Size: 0.36 Acres
Square Feet: 1,855 sq ft
Year Built: 2002
Stories: 1 Story
Construction: Stucco,Wood Frame
Subdivision: Waterway Colony
Foundation: Pillar/Post/Pier,Slab
County: Charlotte
School Information
Elementary: Sallie Jones Elementary
Middle: Punta Gorda Middle
High: Charlotte High
Room Information
Main Floor
Living Room: 18x21
Dining Room: 12x16
Kitchen: 16x19
Primary Bedroom: 16x16
Bedroom 2: 13x16
Porch: 16x55
Bathrooms
Full Baths: 2
1/2 Baths: 1
Additonal Room Information
Laundry: Inside, In Kitchen
Interior Features
Appliances: Electric Water Heater, Range, Refrigerator, Washer, Microwave, Dishwasher, Dryer
Flooring: Ceramic Tile
Doors/Windows: Blinds
Additional Interior Features: Walk-In Closet(s), Split Bedrooms, Tray Ceiling(s), Living/Dining Room, Ceiling Fan(s), Open Floorplan
Utilities
Water: Public
Sewer: Septic Tank
Other Utilities: Cable Available,Cable Connected,Electricity Available,Electricity Connected,Water Connected
Cooling: Ceiling Fan(s), Central Air
Heating: Central, Electric
Exterior / Lot Features
Parking Description: Covered, Off Street, Guest, driveway, Boat, Oversized
Roof: Metal
Lot View: Canal,Water
Lot Dimensions: 141X110
Additional Exterior/Lot Features: Rain Gutters, Balcony, Storage, Lighting, Deck, Patio, Porch, Balcony, Landscaped, Cleared, Dead End, Oversized Lot, Outside City Limits
Out Buildings: Shed(s)
Waterfront Details
Standard Water Body: VENICE CANAL
Water Front Features: Gulf Access, River Access, Canal Front, Bay Access
Driving Directions
FROM US41 SOUTH IN PUNTA GORDA, TURN RIGHT ONTO RIO VILLA, RIGHT ONTO COLONY AND THE HOME IS ON THE RIGHT.
Financial Considerations
Terms: Cash,Conventional
Tax/Property ID: 412318352014
Tax Amount: 3473.59
Tax Year: 2025
A broker reciprocity listing courtesy: MARINA PARK REALTY LLC
Based on information provided by Stellar MLS as distributed by the MLS GRID. Information from the Internet Data Exchange is provided exclusively for consumers’ personal, non-commercial use, and such information may not be used for any purpose other than to identify prospective properties consumers may be interested in purchasing. This data is deemed reliable but is not guaranteed to be accurate by Edina Realty, Inc., or by the MLS. Edina Realty, Inc., is not a multiple listing service (MLS), nor does it offer MLS access.
Copyright 2026 Stellar MLS as distributed by the MLS GRID. All Rights Reserved.
Payment Calculator
Interest rate and annual percentage rate (APR) are based on current market conditions, are for informational purposes only, are subject to change without notice and may be subject to pricing add-ons related to property type, loan amount, loan-to-value, credit score and other variables. Estimated closing costs used in the APR calculation are assumed to be paid by the borrower at closing. If the closing costs are financed, the loan, APR and payment amounts will be higher. If the down payment is less than 20%, mortgage insurance may be required and could increase the monthly payment and APR. Contact us for details. Additional loan programs may be available. Accuracy is not guaranteed, and all products may not be available in all borrower's geographical areas and are based on their individual situation. This is not a credit decision or a commitment to lend.
Sales History & Tax Summary for 3900 Colony Court
Sales History
| Date | Price | |
|---|---|---|
| Currently not available. | ||
Tax Summary
| Tax Year | Estimated Market Value | Total Tax |
|---|---|---|
| Currently not available. | ||
Data powered by ATTOM Data Solutions. Copyright© 2026. Information deemed reliable but not guaranteed.
Schools
Schools nearby 3900 Colony Court
| Schools in attendance boundaries | Grades | Distance | Rating |
|---|---|---|---|
| Loading... | |||
| Schools nearby | Grades | Distance | Rating |
|---|---|---|---|
| Loading... | |||
Data powered by ATTOM Data Solutions. Copyright© 2026. Information deemed reliable but not guaranteed.
The schools shown represent both the assigned schools and schools by distance based on local school and district attendance boundaries. Attendance boundaries change based on various factors and proximity does not guarantee enrollment eligibility. Please consult your real estate agent and/or the school district to confirm the schools this property is zoned to attend. Information is deemed reliable but not guaranteed.
SchoolDigger ® Rating
The SchoolDigger rating system is a 1-5 scale with 5 as the highest rating. SchoolDigger ranks schools based on test scores supplied by each state's Department of Education. They calculate an average standard score by normalizing and averaging each school's test scores across all tests and grades.
Coming soon properties will soon be on the market, but are not yet available for showings.