3907 San Rocco Drive #111 Punta Gorda, FL 33950
For Sale MLS# C7514520
2 beds 2 baths 1,419 sq ft Condo
Details for 3907 San Rocco Drive #111
MLS# C7514520
Description for 3907 San Rocco Drive #111, Punta Gorda, FL, 33950
Short Sale. RARELY AVAILABLE condo in THE RETREAT AT BURNT STORE ISLES! The Seller is VERY MOTIVATED, and this beautiful FIRST FLOOR residence offers a LOW-MAINTENANCE lifestyle in a sought-after Punta Gorda location -- just MINUTES to US-41, I-75, historic DOWNTOWN, and PGD AIRPORT. This intimate 8-UNIT COMMUNITY is tucked along the 8TH GREEN of Twin Isles Country Club, a Certified Audubon Cooperative Sanctuary. Beautifully UPDATED and partially FURNISHED, this home combines comfort, style, and convenience. Arrive home to GARAGE PARKING with built-in WORKBENCH and STORAGE shelving, then follow a short sidewalk to your PRIVATE entry. Inside you’ll find LAMINATE flooring throughout, a welcoming foyer with large storage closet and pantry, and a kitchen designed for entertaining with QUARTZ countertops, STAINLESS STEEL appliances, BEADBOARD cabinetry, raised BREAKFAST BAR; and an OPEN LAYOUT. The living area flows to the SCREENED LANAI, where you’ll ENJOY expansive WATER and golf course VIEWS, daily wildlife sightings, and breathtaking SUNSETS. Step right out to the HEATED POOL, just beyond your lanai. The home features two SPACIOUS bedrooms. The PRIMARY SUITE has a custom PORCELAIN shower with GLASS ENCLOSURE, quartz vanity, and BARN DOOR entry. The GUEST SUITE also offers direct bedroom access to an updated bath, which conveniently serves as the home’s second bath. Additional highlights include a wide hallway, updated laundry room, interior paint, trim, and baseboards. Please take the 3D TOUR, and you’ll see there’s nothing left to do here but move in and start enjoying the Punta Gorda lifestyle at The Retreat — with golf, sunsets, and convenience at your doorstep! The seller is highly motivated, so don’t miss your chance to make it yours!
Listing Information
Property Type: Residential, Condominium
Status: Active
Bedrooms: 2
Bathrooms: 2
Lot Size: 0.03 Acres
Square Feet: 1,419 sq ft
Year Built: 2001
Garage: Yes
Stories: 1 Story
Construction: Stucco
Subdivision: Retreat At Burnt Store Isles B
Foundation: Block
County: Charlotte
School Information
Elementary: Sallie Jones Elementary
Middle: Punta Gorda Middle
High: Charlotte High
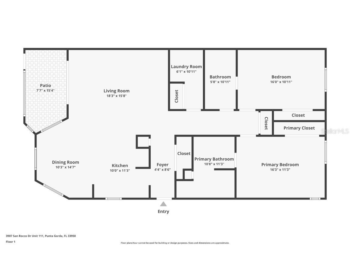
Room Information
Main Floor
Porch: 15x7
Laundry: 11x6
Bedroom 2: 16x11
Primary Bathroom: 11x10
Primary Bedroom: 16x11
Dinette: 14x11
Kitchen: 11x10
Great Room: 18x15
Bathrooms
Full Baths: 2
Additonal Room Information
Laundry: Inside, Laundry Room, Electric Dryer Hookup
Interior Features
Appliances: Microwave, Range, Refrigerator, Dishwasher, Disposal, Dryer, Washer, Electric Water Heater
Flooring: Laminate
Doors/Windows: Blinds, Window Treatments
Additional Interior Features: Eat-In Kitchen, Window Treatments, Ceiling Fan(s), Open Floorplan, Kitchen/Family Room Combo, Main Level Primary
Utilities
Water: Public
Sewer: Public Sewer
Other Utilities: Cable Available,Electricity Connected,High Speed Internet Available,Municipal Utilities,Phone Available,Sewer Connected,Water Connected
Cooling: Ceiling Fan(s), Central Air
Heating: Central, Electric
Exterior / Lot Features
Garage Spaces: 1
Parking Description: Garage Door Opener, Garage, Open, Guest
Roof: Other
Pool: Community, Association, Heated, Gunite, In Ground
Lot View: Golf Course,Pond,Water
Additional Exterior/Lot Features: Lighting, On Golf Course, Dead End, Buyer Approval Required
Community Features
Community Features: Golf Carts OK, Pool, Golf, Street Lights
Association Amenities: Pool
HOA Dues Include: Association Management, Taxes, Trash, Pool(s), Maintenance Structure, Insurance, Maintenance Grounds, Pest Control, Common Areas
Driving Directions
Tamiami Trail (41) to Madrid Blvd, West to San Rocco Dr, Left to driveway of The Retreat at Burnt Store Isles on the Right, Park in open spot and 111 is on first floor on Left of building on Left
Financial Considerations
Terms: Cash,Conventional
Tax/Property ID: 412320851001
Tax Amount: 3938.7
Tax Year: 2024
A broker reciprocity listing courtesy: EXIT GULF COAST REALTY
Based on information provided by Stellar MLS as distributed by the MLS GRID. Information from the Internet Data Exchange is provided exclusively for consumers’ personal, non-commercial use, and such information may not be used for any purpose other than to identify prospective properties consumers may be interested in purchasing. This data is deemed reliable but is not guaranteed to be accurate by Edina Realty, Inc., or by the MLS. Edina Realty, Inc., is not a multiple listing service (MLS), nor does it offer MLS access.
Copyright 2025 Stellar MLS as distributed by the MLS GRID. All Rights Reserved.
Payment Calculator
Interest rate and annual percentage rate (APR) are based on current market conditions, are for informational purposes only, are subject to change without notice and may be subject to pricing add-ons related to property type, loan amount, loan-to-value, credit score and other variables. Estimated closing costs used in the APR calculation are assumed to be paid by the borrower at closing. If the closing costs are financed, the loan, APR and payment amounts will be higher. If the down payment is less than 20%, mortgage insurance may be required and could increase the monthly payment and APR. Contact us for details. Additional loan programs may be available. Accuracy is not guaranteed, and all products may not be available in all borrower's geographical areas and are based on their individual situation. This is not a credit decision or a commitment to lend.
Sales History & Tax Summary for 3907 San Rocco Drive #111
Sales History
| Date | Price | Change |
|---|---|---|
| Currently not available. | ||
Tax Summary
| Tax Year | Estimated Market Value | Total Tax |
|---|---|---|
| Currently not available. | ||
Data powered by ATTOM Data Solutions. Copyright© 2025. Information deemed reliable but not guaranteed.
Schools
Schools nearby 3907 San Rocco Drive #111
| Schools in attendance boundaries | Grades | Distance | Rating |
|---|---|---|---|
| Loading... | |||
| Schools nearby | Grades | Distance | Rating |
|---|---|---|---|
| Loading... | |||
Data powered by ATTOM Data Solutions. Copyright© 2025. Information deemed reliable but not guaranteed.
The schools shown represent both the assigned schools and schools by distance based on local school and district attendance boundaries. Attendance boundaries change based on various factors and proximity does not guarantee enrollment eligibility. Please consult your real estate agent and/or the school district to confirm the schools this property is zoned to attend. Information is deemed reliable but not guaranteed.
SchoolDigger ® Rating
The SchoolDigger rating system is a 1-5 scale with 5 as the highest rating. SchoolDigger ranks schools based on test scores supplied by each state's Department of Education. They calculate an average standard score by normalizing and averaging each school's test scores across all tests and grades.
Coming soon properties will soon be on the market, but are not yet available for showings.