3915 Salida Delsol Drive Sun City Center, FL 33573
For Sale MLS# TB8434987
3 beds 3 baths 2,224 sq ft Single Family
Details for 3915 Salida Delsol Drive
MLS# TB8434987
Description for 3915 Salida Delsol Drive, Sun City Center, FL, 33573
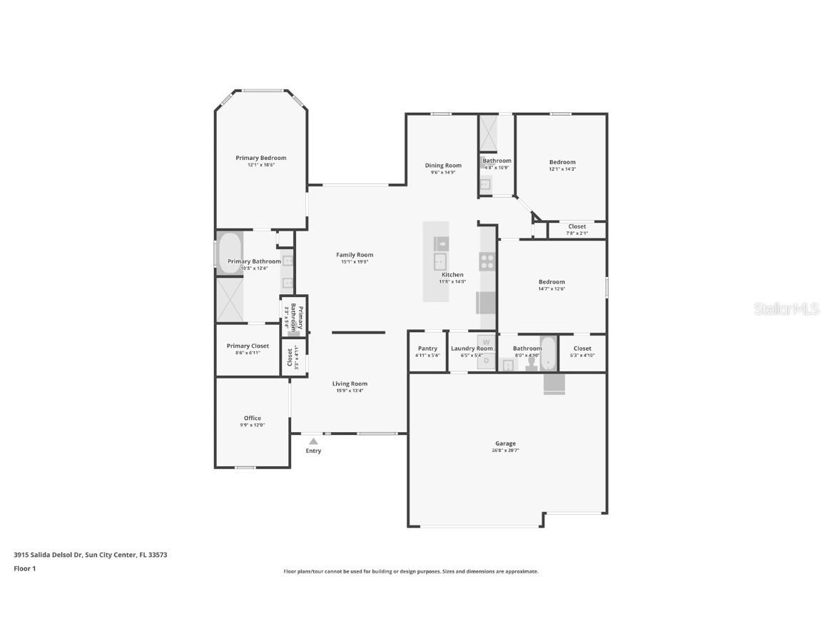
Welcome to Luxury Living in Villa d’ Este! Discover the perfect blend of elegance, security, and tranquility in this exquisite 3-bedroom, 3-bathroom home, perfectly situated within the highly sought-after, gated golf community of Villa d’ Este. This split-bedroom layout features a flexible floor plan with a dedicated Office, ideal for remote work or a den, and a 3-car garage. The heart of the home is the stunning, open-concept kitchen, designed for the modern chef and entertainer. It boasts a massive center island with stylish hanging lights, gorgeous stone countertops, an abundance of cabinets for all your storage needs, and top-of-the-line stainless steel appliances. This space seamlessly overlooks the spacious living room and dining area, ensuring you never miss a moment with guests. A versatile formal living area offers the perfect extra space for a playroom or sophisticated sitting area. Privacy is paramount in the spacious Primary Suite, which is strategically placed on its own wing of the home and features a luxurious en suite bathroom and a massive walk-in closet. The second bedroom also offers incredible privacy and convenience with its own en suite bathroom and a walk-in closet, while the third bedroom is generously sized. Step outside to your expansive screened-in back lanai, where you can relax or entertain while enjoying serene views of Cypress Creek Golf Club. Enjoy the fantastic amenities of Villa d’ Este, including the sparkling resident-only community pool. This home is the epitome of the Florida lifestyle, offering luxury, space, and a premium location. Schedule your private showing today!
Listing Information
Property Type: Residential, Single Family Residence
Status: Active
Bedrooms: 3
Bathrooms: 3
Lot Size: 0.19 Acres
Square Feet: 2,224 sq ft
Year Built: 2020
Garage: Yes
Stories: 1 Story
Construction: Block,Stucco
Subdivision: Villa D' Este
Foundation: Slab
County: Hillsborough
Room Information
Main Floor
Porch: 14.9x15.1
Dining Room: 14.9x9.6
Utility Room: 5.4x6.5
Living Room: 13.4x15.9
Bedroom 3: 14.3x12.1
Bedroom 2: 12.6x14.7
Great Room: 19.8x15.1
Kitchen: 14x11.8
Primary Bedroom: 18.6x12.1
Bathrooms
Full Baths: 3
Additonal Room Information
Laundry: Laundry Room, Inside
Interior Features
Appliances: Washer, Microwave, Range, Refrigerator, Dishwasher, Dryer
Flooring: Ceramic Tile,Laminate
Additional Interior Features: Walk-In Closet(s), Built-in Features, Ceiling Fan(s), Eat-In Kitchen, Solid Surface Counters, Wood Cabinets, Open Floorplan, Kitchen/Family Room Combo, High Ceilings, Living/Dining Room
Utilities
Water: Public
Sewer: Public Sewer
Other Utilities: Cable Available,Electricity Available
Cooling: Ceiling Fan(s), Central Air
Heating: Heat Pump, Central
Exterior / Lot Features
Attached Garage: Attached Garage
Garage Spaces: 3
Parking Description: driveway, Oversized
Roof: Shingle
Pool: Association, Community
Lot View: Golf Course
Lot Dimensions: 76.04x111.31
Additional Exterior/Lot Features: Front Porch, Rear Porch, Covered, Screened, Flat, Level, Landscaped, City Lot, Outside City Limits
Community Features
Community Features: Community Mailbox, Gated, Sidewalks, Clubhouse, Pool
Security Features: Gated Community
Association Amenities: Pool, Clubhouse, Gated
HOA Dues Include: Maintenance Grounds, Pool(s)
Homeowners Association: Yes
HOA Dues: $225 / Quarterly
Driving Directions
Heading South on US Hwy 301, right onto 19th Ave NE, left onto Salida del Sol Dr, home is on the right.
Financial Considerations
Terms: Cash,Conventional,FHA,VA Loan
Tax/Property ID: U-02-32-19-B5D-000002-00021.0
Tax Amount: 7672.85
Tax Year: 2024
A broker reciprocity listing courtesy: KELLER WILLIAMS SOUTH SHORE
Based on information provided by Stellar MLS as distributed by the MLS GRID. Information from the Internet Data Exchange is provided exclusively for consumers’ personal, non-commercial use, and such information may not be used for any purpose other than to identify prospective properties consumers may be interested in purchasing. This data is deemed reliable but is not guaranteed to be accurate by Edina Realty, Inc., or by the MLS. Edina Realty, Inc., is not a multiple listing service (MLS), nor does it offer MLS access.
Copyright 2025 Stellar MLS as distributed by the MLS GRID. All Rights Reserved.
Payment Calculator
Interest rate and annual percentage rate (APR) are based on current market conditions, are for informational purposes only, are subject to change without notice and may be subject to pricing add-ons related to property type, loan amount, loan-to-value, credit score and other variables. Estimated closing costs used in the APR calculation are assumed to be paid by the borrower at closing. If the closing costs are financed, the loan, APR and payment amounts will be higher. If the down payment is less than 20%, mortgage insurance may be required and could increase the monthly payment and APR. Contact us for details. Additional loan programs may be available. Accuracy is not guaranteed, and all products may not be available in all borrower's geographical areas and are based on their individual situation. This is not a credit decision or a commitment to lend.
Sales History & Tax Summary for 3915 Salida Delsol Drive
Sales History
| Date | Price | Change |
|---|---|---|
| Currently not available. | ||
Tax Summary
| Tax Year | Estimated Market Value | Total Tax |
|---|---|---|
| Currently not available. | ||
Data powered by ATTOM Data Solutions. Copyright© 2025. Information deemed reliable but not guaranteed.
Schools
Schools nearby 3915 Salida Delsol Drive
| Schools in attendance boundaries | Grades | Distance | Rating |
|---|---|---|---|
| Loading... | |||
| Schools nearby | Grades | Distance | Rating |
|---|---|---|---|
| Loading... | |||
Data powered by ATTOM Data Solutions. Copyright© 2025. Information deemed reliable but not guaranteed.
The schools shown represent both the assigned schools and schools by distance based on local school and district attendance boundaries. Attendance boundaries change based on various factors and proximity does not guarantee enrollment eligibility. Please consult your real estate agent and/or the school district to confirm the schools this property is zoned to attend. Information is deemed reliable but not guaranteed.
SchoolDigger ® Rating
The SchoolDigger rating system is a 1-5 scale with 5 as the highest rating. SchoolDigger ranks schools based on test scores supplied by each state's Department of Education. They calculate an average standard score by normalizing and averaging each school's test scores across all tests and grades.
Coming soon properties will soon be on the market, but are not yet available for showings.