$575,000
Off-Market Date: 03/05/20263917 Desoto Road Sarasota, FL 34235
Pending MLS# A4681269
4 beds 3 baths 3,052 sq ft Single Family
Details for 3917 Desoto Road
MLS# A4681269
Description for 3917 Desoto Road, Sarasota, FL, 34235
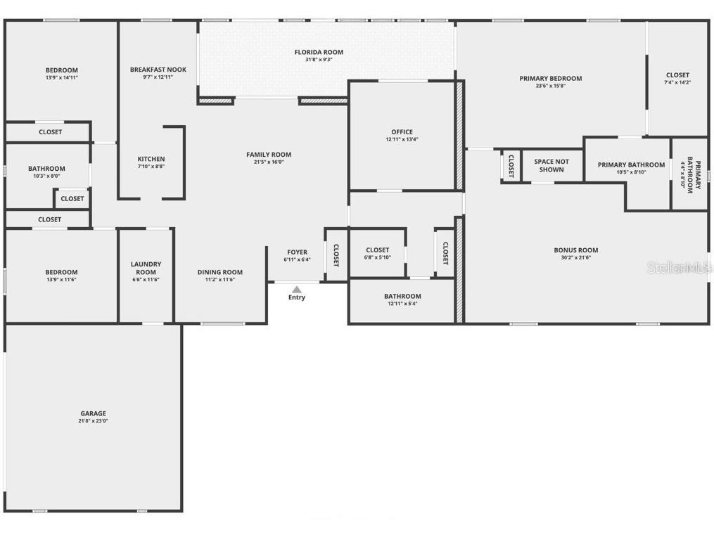
Under contract-accepting backup offers. Gorgeous home on a sprawling one acre one acre property off of Desoto Road! This property offers the rare combination of space, versatility, and prime Sarasota location. The home is a 4 bedroom 3 baths plus an office, is over 3,000 square feet, and features an extra large two car garage. Designed for flexibility, the 4th bedroom / bonus room and office can be used as a private in-residence suite complete with its own kitchenette, living area, bedroom, and full bath—ideal for multi-generational living, long-term guests, or a private office retreat. The main home offers multiple living areas and a highly functional layout, creating seamless flow for both everyday comfort and entertaining. Thoughtful updates include a roof replaced just six years ago and a newer air-conditioning system—providing peace of mind and modern convenience. Perfectly positioned just 10 minutes from the shopping, dining, and entertainment of University Town Center and approximately 15 minutes to the vibrant culture and waterfront of downtown Sarasota, this property delivers privacy without sacrificing proximity. A rare opportunity to own acreage and square footage in one of Sarasota’s most accessible locations. Perfectly positioned just 10 minutes from the shopping, dining, and entertainment of University Town Center and approximately 15 minutes to the vibrant culture and waterfront of downtown Sarasota, this property delivers privacy without sacrificing proximity. A rare opportunity to own acreage and square footage in one of Sarasota’s most accessible locations.
Listing Information
Property Type: Residential, Single Family Residence
Status: Pending
Bedrooms: 4
Bathrooms: 3
Lot Size: 1.03 Acres
Square Feet: 3,052 sq ft
Year Built: 1984
Stories: 1 Story
Construction: Brick,Stucco
Subdivision: Desoto Pines
Foundation: Slab
County: Sarasota
Room Information
Main Floor
Bonus Room: 21x30
Bedroom 2: 14x13
Office: 13x12
Primary Bathroom: 8x10
Primary Bedroom: 15x23
Laundry: 11x6
Living Room: 16x21
Dining Room: 11x11
Dinette: 12x9
Kitchen: 8x7
Bathroom 2: 8x10
Bathroom 1: 5x12
Bedroom 3: 11x13
Bathrooms
Full Baths: 3
Additonal Room Information
Laundry: Inside, Laundry Room
Interior Features
Appliances: Range, Refrigerator, Washer, Dryer, Microwave
Flooring: Carpet,Laminate,Tile,Vinyl
Additional Interior Features: Ceiling Fan(s), Split Bedrooms
Utilities
Water: Public
Sewer: Septic Tank
Other Utilities: Cable Available,Electricity Connected,High Speed Internet Available,Phone Available,Water Connected
Cooling: Ceiling Fan(s), Central Air
Heating: Central
Exterior / Lot Features
Roof: Other
Additional Exterior/Lot Features: Rain Gutters, Storm/Security Shutters, French Patio Doors
Community Features
Community Features: Sidewalks
Homeowners Association: Yes
HOA Dues: $200 / Annually
Driving Directions
From I-75, take University Pkwy exit and head West. Turn left on Longwood Run Blvd. The property will be located on your right on 3917 DeSoto Rd.
Financial Considerations
Tax/Property ID: 0019030060
Tax Amount: 5195.51
Tax Year: 2025
A broker reciprocity listing courtesy: RE/MAX ALLIANCE GROUP
Based on information provided by Stellar MLS as distributed by the MLS GRID. Information from the Internet Data Exchange is provided exclusively for consumers’ personal, non-commercial use, and such information may not be used for any purpose other than to identify prospective properties consumers may be interested in purchasing. This data is deemed reliable but is not guaranteed to be accurate by Edina Realty, Inc., or by the MLS. Edina Realty, Inc., is not a multiple listing service (MLS), nor does it offer MLS access.
Copyright 2026 Stellar MLS as distributed by the MLS GRID. All Rights Reserved.
Sales History & Tax Summary for 3917 Desoto Road
Sales History
| Date | Price | |
|---|---|---|
| Currently not available. | ||
Tax Summary
| Tax Year | Estimated Market Value | Total Tax |
|---|---|---|
| Currently not available. | ||
Data powered by ATTOM Data Solutions. Copyright© 2026. Information deemed reliable but not guaranteed.
Schools
Schools nearby 3917 Desoto Road
| Schools in attendance boundaries | Grades | Distance | Rating |
|---|---|---|---|
| Loading... | |||
| Schools nearby | Grades | Distance | Rating |
|---|---|---|---|
| Loading... | |||
Data powered by ATTOM Data Solutions. Copyright© 2026. Information deemed reliable but not guaranteed.
The schools shown represent both the assigned schools and schools by distance based on local school and district attendance boundaries. Attendance boundaries change based on various factors and proximity does not guarantee enrollment eligibility. Please consult your real estate agent and/or the school district to confirm the schools this property is zoned to attend. Information is deemed reliable but not guaranteed.
SchoolDigger ® Rating
The SchoolDigger rating system is a 1-5 scale with 5 as the highest rating. SchoolDigger ranks schools based on test scores supplied by each state's Department of Education. They calculate an average standard score by normalizing and averaging each school's test scores across all tests and grades.
Coming soon properties will soon be on the market, but are not yet available for showings.