4 Holly Road Ocala, FL 34472
For Sale MLS# OM713826
3 beds 2 baths 1,332 sq ft Single Family
Details for 4 Holly Road
MLS# OM713826
Description for 4 Holly Road, Ocala, FL, 34472
Welcome to this better than new meticulously maintained 3 bedroom, 2 bath home, built in 2023 and offering 1,332 sq. ft. of beautifully designed living space on an oversized 0.37 acre lot with a 2 car garage. This home features an inviting open floor plan with brand new 2025 tile flooring throughout all main living areas, creating a modern, seamless feel from room to room. The living room flows directly into the modern kitchen, complete with stainless steel appliances, abundant cabinet/counter space, a convenient pantry and gorgeous granite countertops. The large primary bedroom provides comfort and privacy, complemented by an en suite bathroom with a tiled walk in shower and a generous walk in closet. On the opposite side of the home, you’ll find two spacious guest bedrooms with the guest bathroom in between, featuring a tiled tub/shower combo. Step outside to a fully fenced backyard with no neighbors behind you, offering the ideal blend of privacy and space. This property also includes a Culligan whole house water softener installed in 2023 and a separate dog run, perfect for pet owners. With plenty of room for a garden, pool, or play area, the outdoor possibilities are endless. Located close to stores, restaurants, and schools, this home delivers the convenience you want with the comfort you deserve. Move in ready and truly better than brand new, don’t miss the chance to make it yours!
Listing Information
Property Type: Residential, Single Family Residence
Status: Active
Bedrooms: 3
Bathrooms: 2
Lot Size: 0.37 Acres
Square Feet: 1,332 sq ft
Year Built: 2023
Garage: Yes
Stories: 1 Story
Construction: Block,Stucco
Subdivision: Silver Spgs Shores Un 12
Foundation: Slab
County: Marion
School Information
Elementary: Emerald Shores Elem. School
Middle: Lake Weir Middle School
High: Lake Weir High School
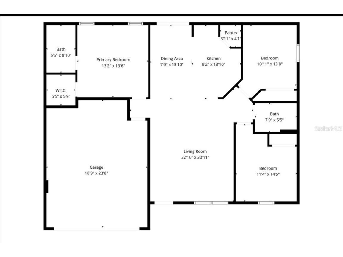
Room Information
Main Floor
Bedroom 3: 14.5x11.4
Bedroom 2: 13.8x10.11
Primary Bedroom: 13.6x13.2
Kitchen: 13.1x9.2
Living Room: 22.1x20.11
Bathrooms
Full Baths: 2
Additonal Room Information
Laundry: In Garage, Washer Hookup, Electric Dryer Hookup
Interior Features
Appliances: Electric Water Heater, Washer, Microwave, Range, Refrigerator, Dishwasher, Dryer
Flooring: Luxury Vinyl,Tile
Additional Interior Features: Eat-In Kitchen, Ceiling Fan(s), Vaulted Ceiling(s), Split Bedrooms, Walk-In Closet(s), Built-in Features, High Ceilings, Main Level Primary, Open Floorplan, Solid Surface Counters, Wood Cabinets
Utilities
Water: Well
Sewer: Septic Tank
Other Utilities: Cable Connected,Electricity Connected,High Speed Internet Available,Sewer Connected,Water Connected
Cooling: Ceiling Fan(s), Central Air
Heating: Central
Exterior / Lot Features
Attached Garage: Attached Garage
Garage Spaces: 2
Roof: Shingle
Lot Dimensions: 118x135
Fencing: Wood, fenced
Additional Exterior/Lot Features: Storage, Dog Run, Front Porch, Flat, Level, Cleared
Driving Directions
Off highway i75 take a onto CR-484 W, then turn right onto SE 110th Street Rd in 11 miles. Left onto Oak Rd in 0.7 Miles and another left onto Holly Rd in 0.9 miles and the destination will be on your left in 400ft.
Financial Considerations
Terms: Cash,Conventional,FHA,VA Loan
Tax/Property ID: 9012-0180-17
Tax Amount: 3099.17
Tax Year: 2025
A broker reciprocity listing courtesy: KELLER WILLIAMS CORNERSTONE RE
Based on information provided by Stellar MLS as distributed by the MLS GRID. Information from the Internet Data Exchange is provided exclusively for consumers’ personal, non-commercial use, and such information may not be used for any purpose other than to identify prospective properties consumers may be interested in purchasing. This data is deemed reliable but is not guaranteed to be accurate by Edina Realty, Inc., or by the MLS. Edina Realty, Inc., is not a multiple listing service (MLS), nor does it offer MLS access.
Copyright 2025 Stellar MLS as distributed by the MLS GRID. All Rights Reserved.
Payment Calculator
Interest rate and annual percentage rate (APR) are based on current market conditions, are for informational purposes only, are subject to change without notice and may be subject to pricing add-ons related to property type, loan amount, loan-to-value, credit score and other variables. Estimated closing costs used in the APR calculation are assumed to be paid by the borrower at closing. If the closing costs are financed, the loan, APR and payment amounts will be higher. If the down payment is less than 20%, mortgage insurance may be required and could increase the monthly payment and APR. Contact us for details. Additional loan programs may be available. Accuracy is not guaranteed, and all products may not be available in all borrower's geographical areas and are based on their individual situation. This is not a credit decision or a commitment to lend.
Sales History & Tax Summary for 4 Holly Road
Sales History
| Date | Price | Change |
|---|---|---|
| Currently not available. | ||
Tax Summary
| Tax Year | Estimated Market Value | Total Tax |
|---|---|---|
| Currently not available. | ||
Data powered by ATTOM Data Solutions. Copyright© 2025. Information deemed reliable but not guaranteed.
Schools
Schools nearby 4 Holly Road
| Schools in attendance boundaries | Grades | Distance | Rating |
|---|---|---|---|
| Loading... | |||
| Schools nearby | Grades | Distance | Rating |
|---|---|---|---|
| Loading... | |||
Data powered by ATTOM Data Solutions. Copyright© 2025. Information deemed reliable but not guaranteed.
The schools shown represent both the assigned schools and schools by distance based on local school and district attendance boundaries. Attendance boundaries change based on various factors and proximity does not guarantee enrollment eligibility. Please consult your real estate agent and/or the school district to confirm the schools this property is zoned to attend. Information is deemed reliable but not guaranteed.
SchoolDigger ® Rating
The SchoolDigger rating system is a 1-5 scale with 5 as the highest rating. SchoolDigger ranks schools based on test scores supplied by each state's Department of Education. They calculate an average standard score by normalizing and averaging each school's test scores across all tests and grades.
Coming soon properties will soon be on the market, but are not yet available for showings.