$739,900
4 Lakeside Court Duluth, MN 55804 - Superior
For Sale MLS# 7037926
3 beds 3 baths 1,994 sq ft Single Family
Details for 4 Lakeside Court
MLS# 7037926
Description for 4 Lakeside Court, Duluth, MN, 55804 - Superior
Welcome to 4 Lakeside Court, a beautifully maintained two-story home in Duluth’s sought-after Lakeside neighborhood. With nearly 2,000 square feet of finished livingspace, this 3-bedroom, 3-bath residence offers thoughtful updates, timeless finishes, and enjoy year round lake adventures with deeded access to Lake Superior through Lakeside Court Park. Inside, you’ll find engineered hardwood floors, quartz countertops, oak cabinetry, newer carpet throughout the upstairs and living room, and a formal dining space perfect for hosting. The formal bathroom has been refreshed with a beautiful tiled shower and stylish updates, while the spacious primary suite includes an oversized walk-in closet, jetted jacuzzi tub, separate shower, double vanity, and private deck overlooking the backyard with serene lake views. Outdoor living is a true highlight, with Trex decking, an additional wood deck with steel railings, and a charming gazebo - perfect for summer gatherings or simply enjoying the views of Lake Superior. The attached, fully finished garage offers epoxy floors, recessed lighting, in-floor heat, and an added gas heating system from the early 2000s, plus the convenience of a half bathroom. Maintenance-free steel siding, decades of careful upkeep, and a turnkey feel make this home the perfect blend of classic design and modern comfort. Just steps from the Lakewalk boardwalk, and close to local shops, restaurants, and all that Lakeside has to offer, this property provides the best of both lifestyle and location.
Listing Information
Property Type: Residential, Single Family
Status: Active
Bedrooms: 3
Bathrooms: 3
Lot Size: 0.26 Acres
Square Feet: 1,994 sq ft
Year Built: 1920
Foundation: 1,994 sq ft
Garage: Yes
Stories: 2 Stories
Subdivision: Lakeside Court Duluth
County: St. Louis
Days On Market: 20
Construction Status: Previously Owned
School Information
District: 709 - Duluth
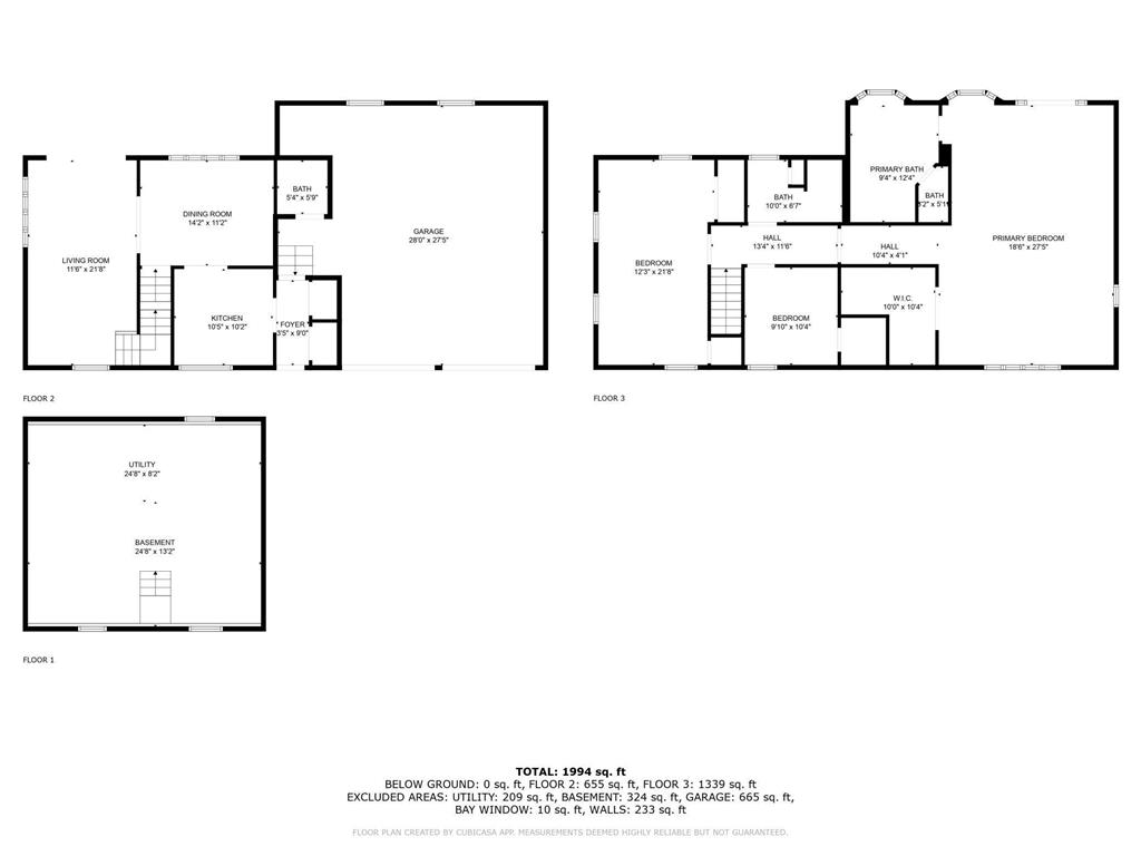
Room Information
Main Floor
Bathroom: 5.4x5.9
Dining Room: 14.2x11.2
Kitchen: 10.5x10.2
Living Room: 11.6x21.8
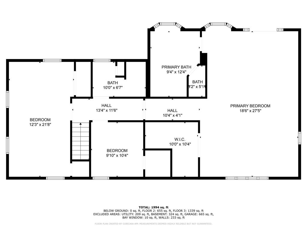
Upper Floor
Bathroom: 10x6.7
Bathroom: 9.4x12.4
Bedroom 1: 18.6x27.5
Bedroom 2: 9.10x10.4
Bedroom 3: 12.3x21.8
Bathrooms
Full Baths: 2
1/2 Baths: 1
Additonal Room Information
Bath Description: Main Floor 1/2 Bath,Upper Level Full Bath
Interior Features
Square Footage above: 1,994 sq ft
Basement: Full, Poured Concrete
Utilities
Water: City Water/Connected
Sewer: City Sewer/Connected
Heating: Boiler, In-Floor Heating, Other
Exterior / Lot Features
Attached Garage: Attached Garage
Garage Spaces: 2
Parking Description: Attached Garage, Garage Sq Ft - 665.0
Exterior: Steel Siding
Lot Dimensions: 85x132
Zoning: Residential-Single Family
Waterfront Details
Standard Water Body: Superior
DNR Lake ID: 16000100
Water Front Features: Deeded Access
Lake Acres: 1,636,356
Driving Directions
From London Road, turn onto 26th Avenue East, continue to London Rd, and follow it to Lakeside Court - home will be on your left.
Financial Considerations
Other Annual Tax: $29
Tax/Property ID: 010277000010
Tax Amount: 5223
Tax Year: 2025
HomeStead Description: Homesteaded
A broker reciprocity listing courtesy: RE/MAX Results
The data relating to real estate for sale on this web site comes in part from the Broker Reciprocity℠ Program of the Regional Multiple Listing Service of Minnesota, Inc. Real estate listings held by brokerage firms other than Edina Realty, Inc. are marked with the Broker Reciprocity℠ logo or the Broker Reciprocity℠ thumbnail and detailed information about them includes the name of the listing brokers. Edina Realty, Inc. is not a Multiple Listing Service (MLS), nor does it offer MLS access. This website is a service of Edina Realty, Inc., a broker Participant of the Regional Multiple Listing Service of Minnesota, Inc. IDX information is provided exclusively for consumers personal, non-commercial use and may not be used for any purpose other than to identify prospective properties consumers may be interested in purchasing. Open House information is subject to change without notice. Information deemed reliable but not guaranteed.
Copyright 2026 Regional Multiple Listing Service of Minnesota, Inc. All Rights Reserved.
Payment Calculator
Interest rate and annual percentage rate (APR) are based on current market conditions, are for informational purposes only, are subject to change without notice and may be subject to pricing add-ons related to property type, loan amount, loan-to-value, credit score and other variables. Estimated closing costs used in the APR calculation are assumed to be paid by the borrower at closing. If the closing costs are financed, the loan, APR and payment amounts will be higher. If the down payment is less than 20%, mortgage insurance may be required and could increase the monthly payment and APR. Contact us for details. Additional loan programs may be available. Accuracy is not guaranteed, and all products may not be available in all borrower's geographical areas and are based on their individual situation. This is not a credit decision or a commitment to lend.
Sales History & Tax Summary for 4 Lakeside Court
Sales History
| Date | Price | |
|---|---|---|
| Currently not available. | ||
Tax Summary
| Tax Year | Estimated Market Value | Total Tax |
|---|---|---|
| Currently not available. | ||
Data powered by ATTOM Data Solutions. Copyright© 2026. Information deemed reliable but not guaranteed.
Schools
Schools nearby 4 Lakeside Court
| Schools in attendance boundaries | Grades | Distance | Rating |
|---|---|---|---|
| Loading... | |||
| Schools nearby | Grades | Distance | Rating |
|---|---|---|---|
| Loading... | |||
Data powered by ATTOM Data Solutions. Copyright© 2026. Information deemed reliable but not guaranteed.
The schools shown represent both the assigned schools and schools by distance based on local school and district attendance boundaries. Attendance boundaries change based on various factors and proximity does not guarantee enrollment eligibility. Please consult your real estate agent and/or the school district to confirm the schools this property is zoned to attend. Information is deemed reliable but not guaranteed.
SchoolDigger ® Rating
The SchoolDigger rating system is a 1-5 scale with 5 as the highest rating. SchoolDigger ranks schools based on test scores supplied by each state's Department of Education. They calculate an average standard score by normalizing and averaging each school's test scores across all tests and grades.
Coming soon properties will soon be on the market, but are not yet available for showings.