400 E Colonial Drive #402 Orlando, FL 32803
For Sale MLS# O6308943
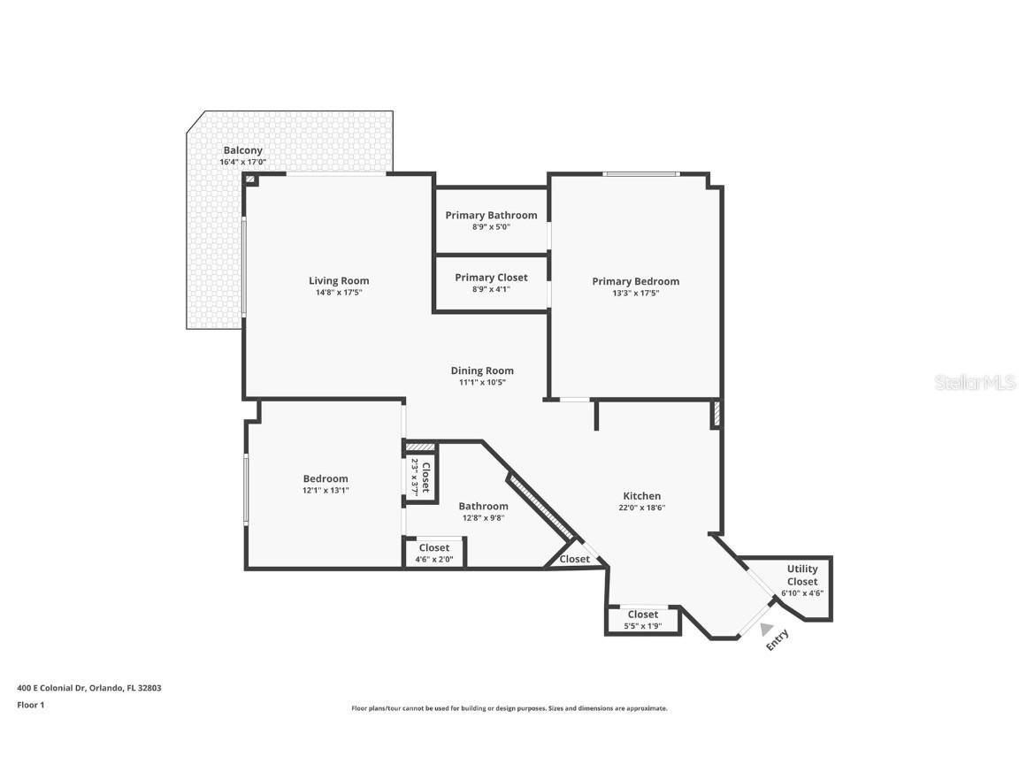
2 beds 2 baths 1,189 sq ft Condo
Details for 400 E Colonial Drive #402
MLS# O6308943
Description for 400 E Colonial Drive #402, Orlando, FL, 32803
One or more photo(s) has been virtually staged. This 2-bedroom, 2-bathroom luxury high-rise condo has been completely remodeled from floor to ceiling with designer-selected hardware and finishes. With stunning 270-degree panoramic views of The City Beautiful, including sunrises and sunsets, the pool, and Park Lake, these corner units are rarely available! Unit 402 boasts all new Low-E insulated PGT windows and sliding doors, keeping the space quiet and cool. Upon entering Unit 402, you’ll immediately notice the high-end updates, including a kitchen with white wood shaker cabinets, Angel Wood Collection LVP flooring, new ceilings, recessed lighting, fresh paint throughout, and beautiful views as your backdrop. The kitchen has been thoughtfully redesigned for optimal use, featuring a generous prep island with storage, 3cm white quartz countertops, stainless steel LG smart appliances, and designer tile backsplash. The dining area offers plenty of space for entertaining, a new chandelier, and flows seamlessly into the spacious living room. The living room sliding door features a new automatic roller shade for added convenience. Step out and lounge on your wrap-around balcony while experiencing the breathtaking views of the downtown skyline. The oversized primary suite features a walk-in closet enhanced with new adjustable 17-inch deep shelving and hanging system, and new blackout roller shades. The remodeled primary suite ensuite bathroom includes a wonderful vanity space, new tub with designer tile, comfort-height toilet, and elegant gold-accented fixtures. The second bedroom private ensuite remodeled bathroom includes a spacious walk-in shower, new vanity, designer tile, and comfort-height toilet. Important additional updates include a new HVAC system with WIFI smart thermostat, complete re-plumbing of the entire unit, new water heater, and recessed “no-show” sprinkler heads. Each floor of the building also features a lobby and common laundry room. Park Lake Towers is a luxury high-rise offering daily on-site management, 24-hour security guard, a gym, sauna, steam room, recreation/conference room, under-building parking, and a junior Olympic-sized pool—perfect for swimming laps. This unit includes one assigned garage parking space, with plenty of guest parking available on the main level. The HOA dues cover standard cable TV, fiber internet, water, sewer, garbage disposal, pest control, and exterior maintenance. The HOA is financially sound with strong reserves and has recently completed a Structural Integrity Reserve Study, available upon request for your peace of mind. Park Lake Towers is just a short convenient walk to Lake Eola, downtown activities, and many fine dining venues. Schedule your showing today to see one of the building’s finest units.
Listing Information
Property Type: Residential, Condominium
Status: Active
Bedrooms: 2
Bathrooms: 2
Lot Size: 0.28 Acres
Square Feet: 1,189 sq ft
Year Built: 1975
Garage: Yes
Stories: 1 Story
Construction: Concrete
Subdivision: Park Lake Towers
Foundation: Block
County: Orange
School Information
Elementary: Lake Como Elem
Middle: Lake Como School K-8
High: Edgewater High
Room Information
Main Floor
Foyer: 7x12
Bedroom 2: 12x13
Primary Bedroom: 13x17
Kitchen: 10x11
Dining Room: 10x11
Living Room: 15x18
Bathrooms
Full Baths: 2
Additonal Room Information
Laundry: Common On Floor, Common Area
Interior Features
Appliances: Electric Water Heater, Microwave, Range, Refrigerator, Dishwasher, Disposal
Flooring: Luxury Vinyl
Doors/Windows: Window Treatments, ENERGY STAR Qualified Windows, Blinds, Low-Emissivity Windows
Additional Interior Features: Walk-In Closet(s), Split Bedrooms, Built-in Features, Window Treatments, Stone Counters, Wood Cabinets, Open Floorplan
Utilities
Water: Public
Sewer: Public Sewer
Other Utilities: Electricity Connected,Fiber Optic Available
Cooling: Central Air
Heating: Central
Exterior / Lot Features
Attached Garage: Attached Garage
Garage Spaces: 1
Parking Description: Covered
Roof: Membrane
Pool: Association, Community
Lot View: City,Trees/Woods
Additional Exterior/Lot Features: Balcony, Balcony, Buyer Approval Required
Community Features
Community Features: Fitness, Clubhouse, Community Mailbox, Pool
Security Features: Key Card Entry, Lobby Secured
Association Amenities: Security, Laundry, Clubhouse, Fitness Center, Pool, Sauna, Cable TV, Elevator(s), Maintenance Grounds
HOA Dues Include: Maintenance Grounds, Pest Control, Taxes, Reserve Fund, Maintenance Structure, Common Areas, Pool(s), Internet, Cable TV, Trash, Water, Insurance, Association Management, Security
Driving Directions
From I-4 go East on Colonial, Right on broadway, then let onto hillcrest. Building guest parking will be on your left.
Financial Considerations
Terms: Cash,Conventional
Tax/Property ID: 25-22-29-6677-04-020
Tax Amount: 4358.53
Tax Year: 2024
A broker reciprocity listing courtesy: RENCHER REALTY GROUP
Based on information provided by Stellar MLS as distributed by the MLS GRID. Information from the Internet Data Exchange is provided exclusively for consumers’ personal, non-commercial use, and such information may not be used for any purpose other than to identify prospective properties consumers may be interested in purchasing. This data is deemed reliable but is not guaranteed to be accurate by Edina Realty, Inc., or by the MLS. Edina Realty, Inc., is not a multiple listing service (MLS), nor does it offer MLS access.
Copyright 2026 Stellar MLS as distributed by the MLS GRID. All Rights Reserved.
Payment Calculator
Interest rate and annual percentage rate (APR) are based on current market conditions, are for informational purposes only, are subject to change without notice and may be subject to pricing add-ons related to property type, loan amount, loan-to-value, credit score and other variables. Estimated closing costs used in the APR calculation are assumed to be paid by the borrower at closing. If the closing costs are financed, the loan, APR and payment amounts will be higher. If the down payment is less than 20%, mortgage insurance may be required and could increase the monthly payment and APR. Contact us for details. Additional loan programs may be available. Accuracy is not guaranteed, and all products may not be available in all borrower's geographical areas and are based on their individual situation. This is not a credit decision or a commitment to lend.
Sales History & Tax Summary for 400 E Colonial Drive #402
Sales History
| Date | Price | |
|---|---|---|
| Currently not available. | ||
Tax Summary
| Tax Year | Estimated Market Value | Total Tax |
|---|---|---|
| Currently not available. | ||
Data powered by ATTOM Data Solutions. Copyright© 2026. Information deemed reliable but not guaranteed.
Schools
Schools nearby 400 E Colonial Drive #402
| Schools in attendance boundaries | Grades | Distance | Rating |
|---|---|---|---|
| Loading... | |||
| Schools nearby | Grades | Distance | Rating |
|---|---|---|---|
| Loading... | |||
Data powered by ATTOM Data Solutions. Copyright© 2026. Information deemed reliable but not guaranteed.
The schools shown represent both the assigned schools and schools by distance based on local school and district attendance boundaries. Attendance boundaries change based on various factors and proximity does not guarantee enrollment eligibility. Please consult your real estate agent and/or the school district to confirm the schools this property is zoned to attend. Information is deemed reliable but not guaranteed.
SchoolDigger ® Rating
The SchoolDigger rating system is a 1-5 scale with 5 as the highest rating. SchoolDigger ranks schools based on test scores supplied by each state's Department of Education. They calculate an average standard score by normalizing and averaging each school's test scores across all tests and grades.
Coming soon properties will soon be on the market, but are not yet available for showings.