4000 Bal Harbor Boulevard #127 Punta Gorda, FL 33950
For Sale MLS# C7512805
3 beds 2 baths 1,682 sq ft Condo
Details for 4000 Bal Harbor Boulevard #127
MLS# C7512805
Description for 4000 Bal Harbor Boulevard #127, Punta Gorda, FL, 33950
Fully Furnished END-UNIT CONDO IN PGI W/UPDATED INTERIOR & DIRECT SAILBOAT ACCESS - Spacious 3 bed/2 bath end-unit at Spinnaker Point in Punta Gorda Isles w/quick sailboat access to Charlotte Harbor. Docks are available on a 1st come/1st serve basis (dock space can accommodate boats up to 34 feet & at time of listing, dock space is available). Condo features NEW luxury vinyl plank floors throughout main living areas, NEW granite counters, NEW stainless steel appliances & fresh interior paint. Open floor plan offers a large great room, formal dining area & updated kitchen w/ample cabinet space, breakfast bar seating & tray ceiling detail. Lots of natural light thanks to end-unit location. Enjoy year-round water views from the screened & vinyl-enclosed tiled lanai that spans the width of the unit. Lanai has new epoxy flooring for an updated look & feel. Owner's suite has oversized walk-in closet & private bath w/dual sinks & walk-in shower. Guest rooms are large w/ample closet space. The guest bath offers a tub/shower combination. Separate laundry room includes full-sized washer/dryer, utility sink & overhead storage. Unit includes an assigned parking space w/ample guest parking available. Whether you’re a full-time resident or looking for your seasonal getaway, don’t miss this move-in ready (furniture included) waterfront opportunity. Other updates include NEW HVAC (2023). Condo amenities include a tennis/pickleball court, heated pool & wraparound dock that is just waiting for your boat or kayak. Located near St. Andrews Golf Course - you choose boating from your backyard or hitting the links out the front door. This condo has everything you need to enjoy the Florida lifestyle. Punta Gorda also boasts a lively music & art scene w/live music & art exhibits/fairs frequently found around town. Come find out why Punta Gorda is often voted one of the best places to live, work & retire in Florida. Make an appointment today.
Listing Information
Property Type: Residential, Condominium
Status: Active
Bedrooms: 3
Bathrooms: 2
Lot Size: 0.05 Acres
Square Feet: 1,682 sq ft
Year Built: 1989
Stories: 1 Story
Construction: Block,Stucco
Subdivision: Spinnaker Point Ph 03 Bldg 01
Foundation: Slab
County: Charlotte
School Information
Elementary: Sallie Jones Elementary
Middle: Punta Gorda Middle
High: Charlotte High
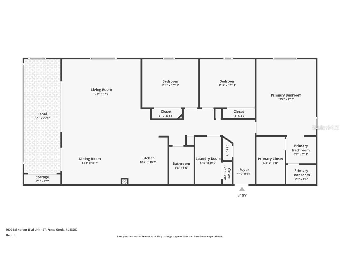
Room Information
Main Floor
Foyer: 4x14
Dining Room: 11x11
Living Room: 17x15
Porch: 8x25
Laundry: 5x10
Bathroom 2: 4x8
Bedroom 3: 12x10
Bedroom 2: 12x10
Primary Bathroom: 6x11
Primary Bedroom: 16x12
Kitchen: 9x12
Bathrooms
Full Baths: 2
Additonal Room Information
Laundry: Inside, Laundry Room
Interior Features
Appliances: Microwave, Range, Refrigerator, Dishwasher, Dryer, Washer
Flooring: Carpet,Luxury Vinyl,Tile
Doors/Windows: Blinds
Additional Interior Features: Walk-In Closet(s), Ceiling Fan(s), Living/Dining Room, Open Floorplan
Utilities
Water: Public
Sewer: Public Sewer
Other Utilities: Cable Connected,Electricity Connected,High Speed Internet Available,Water Connected
Cooling: Ceiling Fan(s), Central Air
Heating: Electric, Central
Exterior / Lot Features
Parking Description: Assigned, Guest
Roof: Tile
Pool: Heated, Association, Community, Gunite, In Ground
Lot View: Canal,Water
Additional Exterior/Lot Features: Screened, Landscaped, City Lot, Oversized Lot, Buyer Approval Required, Flood Zone, Near Golf Course
Waterfront Details
Water Front Features: Gulf Access, River Access, Canal Access
Community Features
Community Features: Water Access, Tennis Court(s), Waterfront, Pool, Sidewalks
Security Features: Smoke Detector(s)
Association Amenities: Tennis Court(s), Pool
HOA Dues Include: Pool(s), Maintenance Structure, Common Areas, Insurance, Pest Control, Maintenance Grounds, Reserve Fund, Water, Trash, Association Management, Sewer, Taxes, Recreation Facilities
Homeowners Association: Yes
HOA Dues: $597 / Monthly
Driving Directions
From US41, go west on Marion Ave. Left on Bal Harbor. Continue to near the end of Bal Harbor. Condo is last complex on left.
Financial Considerations
Terms: Cash,Conventional
Tax/Property ID: 412224726037
Tax Amount: 5377
Tax Year: 2024
A broker reciprocity listing courtesy: RE/MAX HARBOR REALTY
Based on information provided by Stellar MLS as distributed by the MLS GRID. Information from the Internet Data Exchange is provided exclusively for consumers’ personal, non-commercial use, and such information may not be used for any purpose other than to identify prospective properties consumers may be interested in purchasing. This data is deemed reliable but is not guaranteed to be accurate by Edina Realty, Inc., or by the MLS. Edina Realty, Inc., is not a multiple listing service (MLS), nor does it offer MLS access.
Copyright 2025 Stellar MLS as distributed by the MLS GRID. All Rights Reserved.
Payment Calculator
Interest rate and annual percentage rate (APR) are based on current market conditions, are for informational purposes only, are subject to change without notice and may be subject to pricing add-ons related to property type, loan amount, loan-to-value, credit score and other variables. Estimated closing costs used in the APR calculation are assumed to be paid by the borrower at closing. If the closing costs are financed, the loan, APR and payment amounts will be higher. If the down payment is less than 20%, mortgage insurance may be required and could increase the monthly payment and APR. Contact us for details. Additional loan programs may be available. Accuracy is not guaranteed, and all products may not be available in all borrower's geographical areas and are based on their individual situation. This is not a credit decision or a commitment to lend.
Sales History & Tax Summary for 4000 Bal Harbor Boulevard #127
Sales History
| Date | Price | Change |
|---|---|---|
| Currently not available. | ||
Tax Summary
| Tax Year | Estimated Market Value | Total Tax |
|---|---|---|
| Currently not available. | ||
Data powered by ATTOM Data Solutions. Copyright© 2025. Information deemed reliable but not guaranteed.
Schools
Schools nearby 4000 Bal Harbor Boulevard #127
| Schools in attendance boundaries | Grades | Distance | Rating |
|---|---|---|---|
| Loading... | |||
| Schools nearby | Grades | Distance | Rating |
|---|---|---|---|
| Loading... | |||
Data powered by ATTOM Data Solutions. Copyright© 2025. Information deemed reliable but not guaranteed.
The schools shown represent both the assigned schools and schools by distance based on local school and district attendance boundaries. Attendance boundaries change based on various factors and proximity does not guarantee enrollment eligibility. Please consult your real estate agent and/or the school district to confirm the schools this property is zoned to attend. Information is deemed reliable but not guaranteed.
SchoolDigger ® Rating
The SchoolDigger rating system is a 1-5 scale with 5 as the highest rating. SchoolDigger ranks schools based on test scores supplied by each state's Department of Education. They calculate an average standard score by normalizing and averaging each school's test scores across all tests and grades.
Coming soon properties will soon be on the market, but are not yet available for showings.