4001 Beneva Road #335 Sarasota, FL 34233
For Sale MLS# A4662820
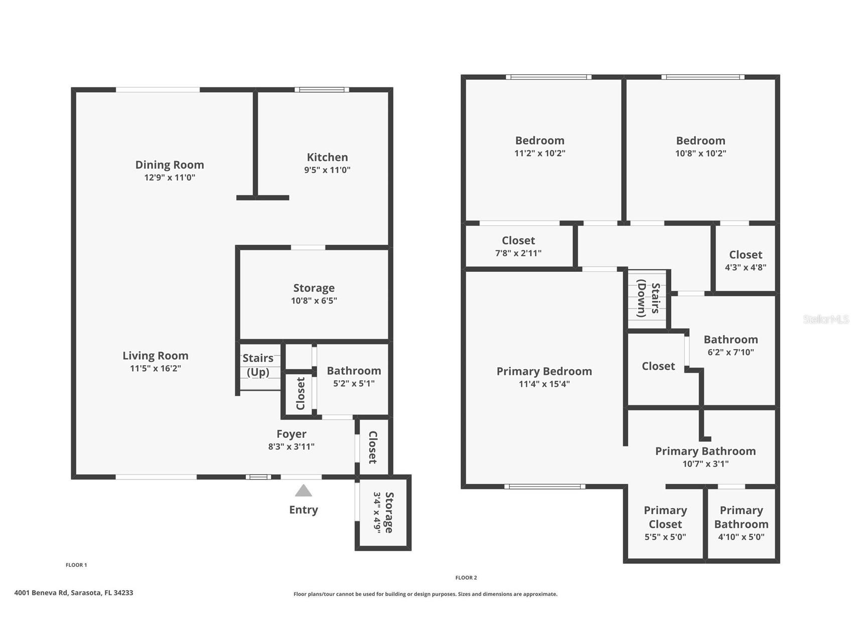
3 beds 3 baths 1,419 sq ft Condo
Details for 4001 Beneva Road #335
MLS# A4662820
Description for 4001 Beneva Road #335, Sarasota, FL, 34233
This beautifully updated 3-bedroom, 2.5-bathroom residence is move-in ready and packed with upgrades. Step inside to an open, light-filled floor plan featuring a spacious living/dining area perfect for entertaining. The kitchen has been refreshed with granite countertops, freshly painted cabinets, recessed lighting. The main level also includes a full-size laundry room with washer/dryer and a remodeled half bath. Recent improvements include: 2021: kitchen recessed lighting, dining room fixture, added closet shelving 2022: new A/C with pump, new roof, exterior paint, patio drains 2023: interior paint, refinished kitchen cabinets, smoke alarms, under-sink water filter, hot water heater, fully remodeled half bath, electrical outlets replaced, Harmar chair lift, brand-new front patio and porch tile, and new landscaping with river rock Upstairs you’ll find three generous bedrooms, including a primary suite with ensuite bath and ample closet space, plus a full guest bathroom. The private fenced back patio is perfect for relaxing or entertaining, and a storage unit is conveniently located by the front entry. Beneva Ridge offers maintenance-free living with fantastic amenities: pool, tennis, basketball, clubhouse with kitchen, pool table, library, and more. HOA fee includes cable, roof, insurance, reserves, management, and grounds maintenance. Leasing is permitted with a 30-day minimum—ideal for seasonal living Perfectly located in central Sarasota, you’re minutes to Downtown, I-75, hospitals, and just 6 miles to world-famous Siesta Key Beach. Plus, you can walk to Publix, Walgreens, Walmart, Starbucks, Crunch Gym, and more. Don’t miss this rare opportunity to own an updated, amenity-rich townhome in one of Sarasota’s most convenient locations! NOTICE The listing agent has no information about the home. The buyer is responsible for due diligence.
Listing Information
Property Type: Residential, Condominium
Status: Active
Bedrooms: 3
Bathrooms: 3
Square Feet: 1,419 sq ft
Year Built: 1975
Stories: 2 Story
Construction: Concrete,Stucco
Construction Display: New Construction
Subdivision: Beneva Ridge
Foundation: Slab
County: Sarasota
Construction Status: New Construction
School Information
Elementary: Wilkinson Elementary
Middle: Sarasota Middle
High: Riverview High
Room Information
Main Floor
Dining Room:
Living Room:
Kitchen:
Upper Floor
Bedroom 3:
Bedroom 2:
Primary Bedroom:
Bathrooms
Full Baths: 2
1/2 Baths: 1
Additonal Room Information
Laundry: Laundry Room, Inside
Interior Features
Appliances: Electric Water Heater, Washer, Dishwasher, Dryer, Microwave, Range, Refrigerator
Flooring: Laminate,Tile
Doors/Windows: Window Treatments, Blinds
Additional Interior Features: Walk-In Closet(s), Window Treatments, Living/Dining Room, Ceiling Fan(s), Open Floorplan, Stone Counters, Upper Level Primary
Utilities
Water: Public
Sewer: Public Sewer
Other Utilities: Cable Connected,Electricity Connected,High Speed Internet Available,Municipal Utilities,Phone Available,Sewer Connected,Water Connected
Cooling: Ceiling Fan(s), Central Air
Heating: Central, Electric
Exterior / Lot Features
Parking Description: Assigned, Guest
Roof: Built-Up
Pool: Association, Community, Gunite
Additional Exterior/Lot Features: Rear Porch, Landscaped, Buyer Approval Required
Community Features
Community Features: Pool, Sidewalks, Tennis Court(s)
Security Features: Smoke Detector(s)
Association Amenities: Pool, Recreation Facilities
HOA Dues Include: Maintenance Structure, Common Areas, Pool(s), Cable TV, Taxes, Recreation Facilities, Trash, Association Management, Maintenance Grounds, Pest Control, Reserve Fund, Road Maintenance
Driving Directions
From S. Tamiami Tr - turn left onto Webber St then right onto Suncrest Dr. then turn right onto S. Beneva Rd turn left onto Bee Ridge Rd then right onto Maceachen Blvd; turn right onto Helene St. then turn right onto S. Beneva Rd. Pull into Beneva Ridge go to building 6 unit 335.
Financial Considerations
Terms: Cash,Conventional
Tax/Property ID: 0070051073
Tax Amount: 1381
Tax Year: 2023
A broker reciprocity listing courtesy: KONA REALTY
Based on information provided by Stellar MLS as distributed by the MLS GRID. Information from the Internet Data Exchange is provided exclusively for consumers’ personal, non-commercial use, and such information may not be used for any purpose other than to identify prospective properties consumers may be interested in purchasing. This data is deemed reliable but is not guaranteed to be accurate by Edina Realty, Inc., or by the MLS. Edina Realty, Inc., is not a multiple listing service (MLS), nor does it offer MLS access.
Copyright 2026 Stellar MLS as distributed by the MLS GRID. All Rights Reserved.
Payment Calculator
Interest rate and annual percentage rate (APR) are based on current market conditions, are for informational purposes only, are subject to change without notice and may be subject to pricing add-ons related to property type, loan amount, loan-to-value, credit score and other variables. Estimated closing costs used in the APR calculation are assumed to be paid by the borrower at closing. If the closing costs are financed, the loan, APR and payment amounts will be higher. If the down payment is less than 20%, mortgage insurance may be required and could increase the monthly payment and APR. Contact us for details. Additional loan programs may be available. Accuracy is not guaranteed, and all products may not be available in all borrower's geographical areas and are based on their individual situation. This is not a credit decision or a commitment to lend.
Sales History & Tax Summary for 4001 Beneva Road #335
Sales History
| Date | Price | |
|---|---|---|
| Currently not available. | ||
Tax Summary
| Tax Year | Estimated Market Value | Total Tax |
|---|---|---|
| Currently not available. | ||
Data powered by ATTOM Data Solutions. Copyright© 2026. Information deemed reliable but not guaranteed.
Schools
Schools nearby 4001 Beneva Road #335
| Schools in attendance boundaries | Grades | Distance | Rating |
|---|---|---|---|
| Loading... | |||
| Schools nearby | Grades | Distance | Rating |
|---|---|---|---|
| Loading... | |||
Data powered by ATTOM Data Solutions. Copyright© 2026. Information deemed reliable but not guaranteed.
The schools shown represent both the assigned schools and schools by distance based on local school and district attendance boundaries. Attendance boundaries change based on various factors and proximity does not guarantee enrollment eligibility. Please consult your real estate agent and/or the school district to confirm the schools this property is zoned to attend. Information is deemed reliable but not guaranteed.
SchoolDigger ® Rating
The SchoolDigger rating system is a 1-5 scale with 5 as the highest rating. SchoolDigger ranks schools based on test scores supplied by each state's Department of Education. They calculate an average standard score by normalizing and averaging each school's test scores across all tests and grades.
Coming soon properties will soon be on the market, but are not yet available for showings.