4006 29th Avenue W Bradenton, FL 34205
For Sale MLS# A4670525
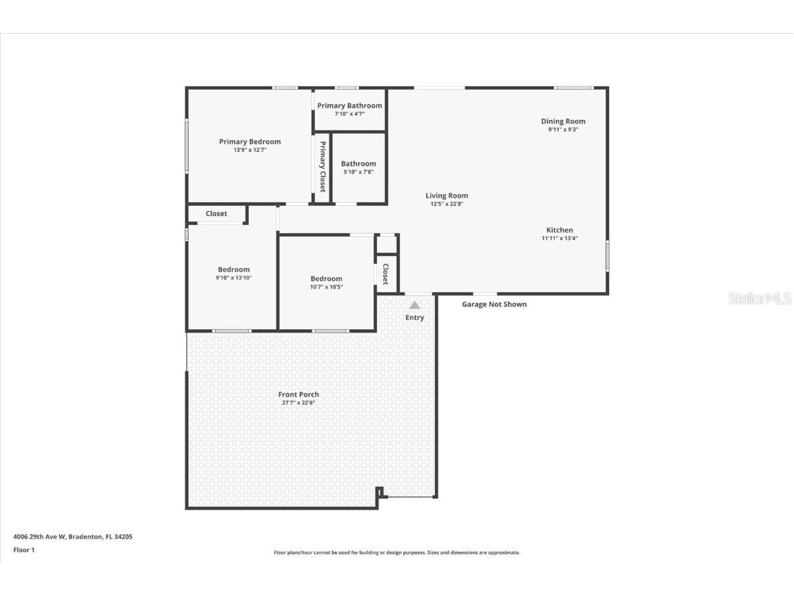
3 beds 2 baths 1,214 sq ft Single Family
Details for 4006 29th Avenue W
MLS# A4670525
Description for 4006 29th Avenue W, Bradenton, FL, 34205
One or more photo(s) has been virtually staged. This freshly remodeled 3 bedroom, 2 -bathroom residence offers modern luxury and quality materials. NEW ROOF ( with a 3rd nail), newer AC. Step inside to find stunning honey oak vinyl floors that flow throughout the open living spaces. The kitchen has crisp white shaker cabinets, gleaming new stainless steel appliances, and a spacious quartz bar perfect for casual dining. Both the interior and exterior have been freshly painted. This exceptional home boasts two freshly updated bathrooms, the primary bathroom has a curb less shower. Enjoy the living area as it flows with the dining room and provides plenty of light from the windows and slider door leading to the fenced in yard. Practical updates abound, including newer waterlines, a newer water heater and PVC drains. The two gar garage has been freshly epoxied and has a washer/dryer hook up. Relax on the private porch surrounded by a privacy wall, the backyard awaits your vision as it has been cleared. Don't miss the opportunity to own this meticulously updated Bradenton gem! Located in the middle of town, 15 minutes to Bradenton Beach, check out the wonderful shopping centers within minutes of this home. Eligible for all financing options, special lender incentive available.
Listing Information
Property Type: Residential, Single Family Residence
Status: Active
Bedrooms: 3
Bathrooms: 2
Lot Size: 0.16 Acres
Square Feet: 1,214 sq ft
Year Built: 1978
Garage: Yes
Stories: 1 Story
Construction: Block
Subdivision: Sandpointe 4th Add
Foundation: Slab
County: Manatee
Room Information
Main Floor
Dining Room: 9x9
Primary Bedroom: 12x14
Living Room: 22x12
Kitchen: 13x11
Bathrooms
Full Baths: 2
Additonal Room Information
Laundry: In Garage, Washer Hookup
Interior Features
Appliances: Convection Oven, Range Hood, Dishwasher, Disposal, Range, Refrigerator
Flooring: Tile,Vinyl
Additional Interior Features: Built-in Features, Ceiling Fan(s), Eat-In Kitchen, Solid Surface Counters, Stone Counters, Wood Cabinets
Utilities
Water: Public
Sewer: Public Sewer
Other Utilities: Electricity Connected,Sewer Connected,Underground Utilities,Water Connected
Cooling: Ceiling Fan(s), Central Air
Heating: Central
Exterior / Lot Features
Attached Garage: Attached Garage
Garage Spaces: 2
Roof: Shingle
Additional Exterior/Lot Features: Lighting, Deck, Front Porch
Driving Directions
Continue onto 39th St W ? 233 ft Continue straight onto 29th Ave W ? Destination will be on the right
Financial Considerations
Terms: Cash,Conventional,FHA
Tax/Property ID: 5079713359
Tax Amount: 4492.66
Tax Year: 2024
A broker reciprocity listing courtesy: CHIC PROPERTIES II LLC
Based on information provided by Stellar MLS as distributed by the MLS GRID. Information from the Internet Data Exchange is provided exclusively for consumers’ personal, non-commercial use, and such information may not be used for any purpose other than to identify prospective properties consumers may be interested in purchasing. This data is deemed reliable but is not guaranteed to be accurate by Edina Realty, Inc., or by the MLS. Edina Realty, Inc., is not a multiple listing service (MLS), nor does it offer MLS access.
Copyright 2025 Stellar MLS as distributed by the MLS GRID. All Rights Reserved.
Payment Calculator
Interest rate and annual percentage rate (APR) are based on current market conditions, are for informational purposes only, are subject to change without notice and may be subject to pricing add-ons related to property type, loan amount, loan-to-value, credit score and other variables. Estimated closing costs used in the APR calculation are assumed to be paid by the borrower at closing. If the closing costs are financed, the loan, APR and payment amounts will be higher. If the down payment is less than 20%, mortgage insurance may be required and could increase the monthly payment and APR. Contact us for details. Additional loan programs may be available. Accuracy is not guaranteed, and all products may not be available in all borrower's geographical areas and are based on their individual situation. This is not a credit decision or a commitment to lend.
Sales History & Tax Summary for 4006 29th Avenue W
Sales History
| Date | Price | Change |
|---|---|---|
| Currently not available. | ||
Tax Summary
| Tax Year | Estimated Market Value | Total Tax |
|---|---|---|
| Currently not available. | ||
Data powered by ATTOM Data Solutions. Copyright© 2025. Information deemed reliable but not guaranteed.
Schools
Schools nearby 4006 29th Avenue W
| Schools in attendance boundaries | Grades | Distance | Rating |
|---|---|---|---|
| Loading... | |||
| Schools nearby | Grades | Distance | Rating |
|---|---|---|---|
| Loading... | |||
Data powered by ATTOM Data Solutions. Copyright© 2025. Information deemed reliable but not guaranteed.
The schools shown represent both the assigned schools and schools by distance based on local school and district attendance boundaries. Attendance boundaries change based on various factors and proximity does not guarantee enrollment eligibility. Please consult your real estate agent and/or the school district to confirm the schools this property is zoned to attend. Information is deemed reliable but not guaranteed.
SchoolDigger ® Rating
The SchoolDigger rating system is a 1-5 scale with 5 as the highest rating. SchoolDigger ranks schools based on test scores supplied by each state's Department of Education. They calculate an average standard score by normalizing and averaging each school's test scores across all tests and grades.
Coming soon properties will soon be on the market, but are not yet available for showings.