$799,000
4014 La Costa Island Court Punta Gorda, FL 33950
For Sale MLS# C7516294
3 beds 2 baths 2,610 sq ft Single Family
Details for 4014 La Costa Island Court
MLS# C7516294
Description for 4014 La Costa Island Court, Punta Gorda, FL, 33950
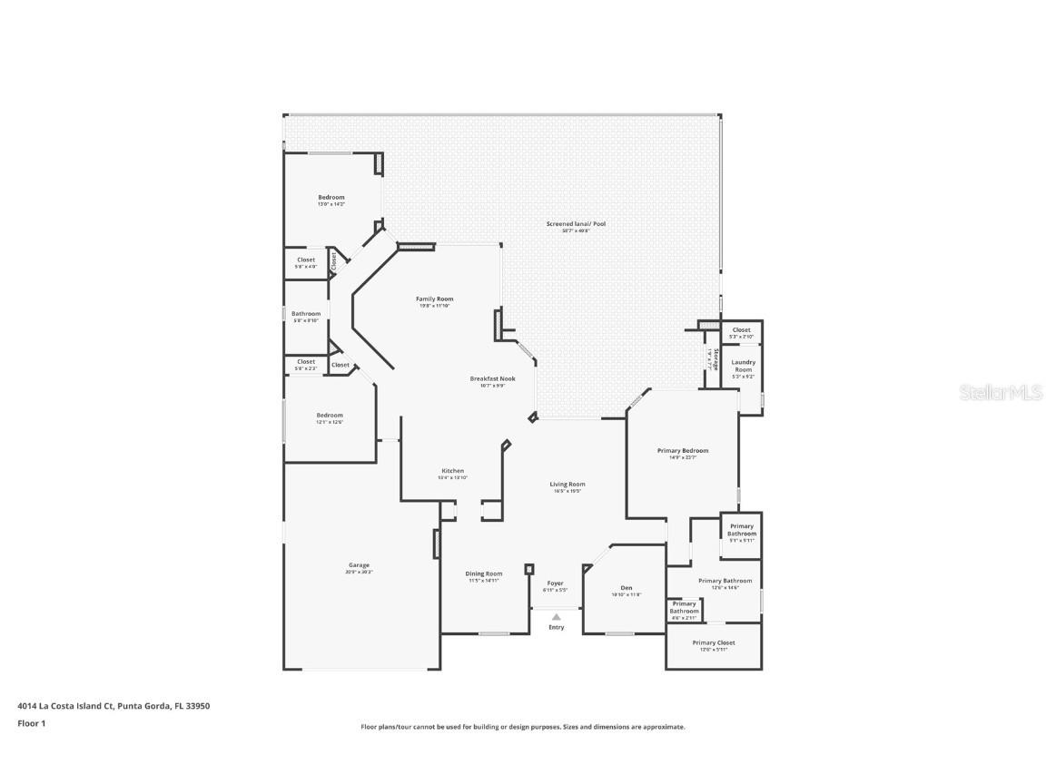
SAILBOAT ACCESS HOME W/NEW METAL ROOF, 84FT OF WATERFRONT & 60FT CONCRETE DOCK! Located in Punta Gorda Isles, this spacious 3 bed/2 bath, single-family home w/den offers over 2,600 sq ft under air and is brimming with potential. Designed with an open layout, the home features a formal living room, formal dining area, a separate family room, and a generously sized kitchen. The original finishes, while well-maintained, present an ideal opportunity for modern updates. Solid construction and great bones throughout with a brand-new metal roof (2024), new pool cage (2023), and hurricane protection already in place. The large kitchen includes two closet pantries, a breakfast bar, and a built-in recipe desk. The split bedroom design provides privacy for owners and guests alike, while a den just off the foyer adds flexibility for an office, hobby room, or overflow space. Zero-corner sliding glass doors in the family room and disappearing sliders in the living room that open fully to the lanai highlight the home’s potential for seamless indoor-outdoor living. Architectural features include soaring ceilings w/tray elements, arched doorways & decorative plant shelves. The master suite features a large master bath and oversized walk-in closet. The laundry room is tucked off the master suite - no more dragging laundry across the house! The guest bedrooms share a guest bath w/step-in tub. Step outside where you'll discover the spacious, screened lanai. It offers a covered seating area and large sun deck that surrounds the in-ground pool. New pool pump in 2025. Canal views await from almost every vantage point. The 60-ft concrete dock w/20k lbs boat lift is steps from the backdoor. Water & electric hook-ups are available dockside. Dock is located along the 84-ft seawall. Seawall is maintained by the city of Punta Gorda ensuring one less thing to worry about. Sailboat access to Charlotte Harbor is available via Buckley’s Pass or Ponce Inlet. Set off on your latest adventure from your own backyard! Other amenities include an attached two-car garage, in-wall speaker system and tankless hot water heater. Home is surrounded by lush, well-maintained tropical landscaping. This is a fantastic opportunity to update a custom-built home by Fero Construction to your taste while claiming your spot in one of Punta Gorda’s premier boating communities. Located near St. Andrews South Golf Club, and just minutes from downtown Punta Gorda, Fishermen’s Village, dining, parks, and more. No HOA, but residents may join the Punta Gorda Isles Civic Association which hosts a variety of clubs - name your hobby and there's probably a club or group that's waiting for you.
Listing Information
Property Type: Residential, Single Family Residence
Status: Active
Bedrooms: 3
Bathrooms: 2
Lot Size: 0.23 Acres
Square Feet: 2,610 sq ft
Year Built: 1998
Garage: Yes
Stories: 1 Story
Construction: Block,Stucco
Subdivision: Punta Gorda Isles Sec 12
Foundation: Stem Wall
County: Charlotte
School Information
Elementary: Sallie Jones Elementary
Middle: Punta Gorda Middle
High: Charlotte High
Room Information
Main Floor
Porch: 12x24
Dinette: 10x8
Kitchen: 14x13
Foyer: 5x7
Dining Room: 14x11
Living Room: 16x18
Laundry: 5x8
Bathroom 2: 9x5
Bedroom 3: 11x12
Bedroom 2: 11x11
Primary Bathroom: 13x12
Primary Bedroom: 14x16
Den: 11x10
Family Room: 16x18
Bathrooms
Full Baths: 2
Additonal Room Information
Laundry: Inside, Laundry Room
Interior Features
Appliances: Tankless Water Heater, Washer, Microwave, Range, Refrigerator, Dishwasher, Disposal, Dryer
Flooring: Tile
Doors/Windows: Blinds
Additional Interior Features: Split Bedrooms, Ceiling Fan(s), Separate/Formal Dining Room, Kitchen/Family Room Combo, Walk-In Closet(s), Separate/Formal Living Room, High Ceilings, Open Floorplan
Utilities
Water: Public
Sewer: Public Sewer
Other Utilities: Cable Available,Electricity Connected,High Speed Internet Available,Sewer Connected,Water Connected
Cooling: Ceiling Fan(s), Central Air
Heating: Central, Electric
Exterior / Lot Features
Attached Garage: Attached Garage
Garage Spaces: 2
Parking Description: Garage Door Opener, Garage, Oversized
Roof: Metal
Pool: Gunite, Screen Enclosure, In Ground
Lot View: Canal,Water
Lot Dimensions: 80x120x84x120
Additional Exterior/Lot Features: Storm/Security Shutters, Outdoor Shower, Sprinkler/Irrigation, Screened, City Lot, Flood Zone, Near Golf Course
Waterfront Details
Water Front Features: Canal Access, Gulf Access, River Access
Community Features
Community Features: Sidewalks
Security Features: Smoke Detector(s)
Driving Directions
From US41, go west on Marion Ave. Left on Bal Harbor Blvd. Right on Suzi St. Right on La Costa Island. Home is on left.
Financial Considerations
Terms: Cash,Conventional,VA Loan
Tax/Property ID: 412223277003
Tax Amount: 8112
Tax Year: 2024
A broker reciprocity listing courtesy: RE/MAX HARBOR REALTY
Based on information provided by Stellar MLS as distributed by the MLS GRID. Information from the Internet Data Exchange is provided exclusively for consumers’ personal, non-commercial use, and such information may not be used for any purpose other than to identify prospective properties consumers may be interested in purchasing. This data is deemed reliable but is not guaranteed to be accurate by Edina Realty, Inc., or by the MLS. Edina Realty, Inc., is not a multiple listing service (MLS), nor does it offer MLS access.
Copyright 2025 Stellar MLS as distributed by the MLS GRID. All Rights Reserved.
Payment Calculator
Interest rate and annual percentage rate (APR) are based on current market conditions, are for informational purposes only, are subject to change without notice and may be subject to pricing add-ons related to property type, loan amount, loan-to-value, credit score and other variables. Estimated closing costs used in the APR calculation are assumed to be paid by the borrower at closing. If the closing costs are financed, the loan, APR and payment amounts will be higher. If the down payment is less than 20%, mortgage insurance may be required and could increase the monthly payment and APR. Contact us for details. Additional loan programs may be available. Accuracy is not guaranteed, and all products may not be available in all borrower's geographical areas and are based on their individual situation. This is not a credit decision or a commitment to lend.
Sales History & Tax Summary for 4014 La Costa Island Court
Sales History
| Date | Price | Change |
|---|---|---|
| Currently not available. | ||
Tax Summary
| Tax Year | Estimated Market Value | Total Tax |
|---|---|---|
| Currently not available. | ||
Data powered by ATTOM Data Solutions. Copyright© 2025. Information deemed reliable but not guaranteed.
Schools
Schools nearby 4014 La Costa Island Court
| Schools in attendance boundaries | Grades | Distance | Rating |
|---|---|---|---|
| Loading... | |||
| Schools nearby | Grades | Distance | Rating |
|---|---|---|---|
| Loading... | |||
Data powered by ATTOM Data Solutions. Copyright© 2025. Information deemed reliable but not guaranteed.
The schools shown represent both the assigned schools and schools by distance based on local school and district attendance boundaries. Attendance boundaries change based on various factors and proximity does not guarantee enrollment eligibility. Please consult your real estate agent and/or the school district to confirm the schools this property is zoned to attend. Information is deemed reliable but not guaranteed.
SchoolDigger ® Rating
The SchoolDigger rating system is a 1-5 scale with 5 as the highest rating. SchoolDigger ranks schools based on test scores supplied by each state's Department of Education. They calculate an average standard score by normalizing and averaging each school's test scores across all tests and grades.
Coming soon properties will soon be on the market, but are not yet available for showings.