$324,900
4030 NE 140th Court Williston, FL 32696
For Sale MLS# GC535769
2 beds 2 baths 1,400 sq ft Single Family
Details for 4030 NE 140th Court
MLS# GC535769
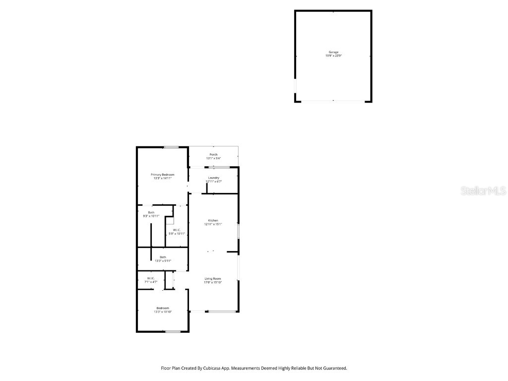
Description for 4030 NE 140th Court, Williston, FL, 32696
Welcome to your modern country retreat in Williston, Florida! This adorable and efficient 2-bedroom, 2-bath barndominium sits on just under an acre of peaceful land. Built with integrity and designed for comfort, this 1,400 sq ft home offers an airy open layout with soaring ceilings, durable finishes, and thoughtful ADA-compliant design throughout. Constructed with corrugated steel siding, a solid 2-foot foundation, and a long-lasting metal roof, this home is engineered for low-maintenance living and long-term stability. Inside, spray foam insulation ensures exceptional energy efficiency year-round. As you enter, the home’s split design places the bedrooms and bathrooms along the left side, offering privacy and separation from the main living areas. Both bedrooms include large walk-in closets, and both bathrooms feature expansive walk-in showers that easily accommodate a wheelchair. On the right side of the home, the living room, dining area, and gourmet kitchen come together in a bright, open-concept space. The kitchen boasts custom wood cabinetry with dovetail and soft-close, stainless steel appliances, and a modern backsplash. A large kitchen island boasts plenty of space to prepare meals plus room for additional seating. Just behind the kitchen, a dedicated laundry room provides access to the backyard for added convenience. Enjoy sunsets from the covered back porch that overlooks a lush, smaller fenced in portion of the property, perfect for pets or enjoying recreational activities. A detached two-car garage offers ample storage and easy parking. Outside, the entire acre is fully fenced with a gated entrance for privacy and security. The cherry on top is the custom mailbox that mimics the home and is truly one-of-a-kind. Whether you’re looking for a quiet country getaway, a durable low-maintenance home, or a place where you can truly spread out and breathe, this one has it all.
Listing Information
Property Type: Residential, Single Family Residence
Status: Active
Bedrooms: 2
Bathrooms: 2
Lot Size: 0.99 Acres
Square Feet: 1,400 sq ft
Year Built: 2023
Garage: Yes
Stories: 1 Story
Construction: Metal Siding
Subdivision: B & R Sub
Foundation: Slab
County: Levy
School Information
Elementary: Bronson Elementary School-Lv
Middle: Bronson Middle/High School-Lv
High: Bronson Middle/High School-Lv
Room Information
Main Floor
Bathroom 2:
Primary Bathroom:
Bedroom 2:
Primary Bedroom:
Kitchen:
Living Room:
Bathrooms
Full Baths: 2
Additonal Room Information
Laundry: Inside, Laundry Room
Interior Features
Appliances: Range, Refrigerator, Dishwasher, Microwave
Flooring: Luxury Vinyl
Additional Interior Features: Walk-In Closet(s), Solid Surface Counters, Ceiling Fan(s), Eat-In Kitchen
Utilities
Water: Well
Sewer: Septic Tank
Other Utilities: Electricity Connected,High Speed Internet Available
Cooling: Ceiling Fan(s), Central Air
Heating: Central
Exterior / Lot Features
Garage Spaces: 2
Roof: Metal
Lot View: Trees/Woods
Fencing: Wire
Additional Exterior/Lot Features: Storage, Awning(s), Rear Porch, Patio, Porch, Covered
Out Buildings: Other, Storage, Workshop, Shed(s)
Driving Directions
Start on Newberry Road in Gainesville and head toward the western outskirts. Continue west/southwest until you reach a major route heading out of Gainesville toward Williston (often via roads that link to southbound / westbound corridors toward Levy County). Merge onto the main highway leading to Williston — travel straight to Williston city area. Once in Williston, navigate toward NE 140th Court. From the city center you’ll follow local roads to reach 4030 NE 140th Ct, your destination.
Financial Considerations
Terms: Cash,Conventional,FHA,VA Loan
Tax/Property ID: 15163-000-00
Tax Amount: 2260.99
Tax Year: 2024
A broker reciprocity listing courtesy: KELLER WILLIAMS GAINESVILLE REALTY PARTNERS
Based on information provided by Stellar MLS as distributed by the MLS GRID. Information from the Internet Data Exchange is provided exclusively for consumers’ personal, non-commercial use, and such information may not be used for any purpose other than to identify prospective properties consumers may be interested in purchasing. This data is deemed reliable but is not guaranteed to be accurate by Edina Realty, Inc., or by the MLS. Edina Realty, Inc., is not a multiple listing service (MLS), nor does it offer MLS access.
Copyright 2025 Stellar MLS as distributed by the MLS GRID. All Rights Reserved.
Payment Calculator
Interest rate and annual percentage rate (APR) are based on current market conditions, are for informational purposes only, are subject to change without notice and may be subject to pricing add-ons related to property type, loan amount, loan-to-value, credit score and other variables. Estimated closing costs used in the APR calculation are assumed to be paid by the borrower at closing. If the closing costs are financed, the loan, APR and payment amounts will be higher. If the down payment is less than 20%, mortgage insurance may be required and could increase the monthly payment and APR. Contact us for details. Additional loan programs may be available. Accuracy is not guaranteed, and all products may not be available in all borrower's geographical areas and are based on their individual situation. This is not a credit decision or a commitment to lend.
Sales History & Tax Summary for 4030 NE 140th Court
Sales History
| Date | Price | Change |
|---|---|---|
| Currently not available. | ||
Tax Summary
| Tax Year | Estimated Market Value | Total Tax |
|---|---|---|
| Currently not available. | ||
Data powered by ATTOM Data Solutions. Copyright© 2025. Information deemed reliable but not guaranteed.
Schools
Schools nearby 4030 NE 140th Court
| Schools in attendance boundaries | Grades | Distance | Rating |
|---|---|---|---|
| Loading... | |||
| Schools nearby | Grades | Distance | Rating |
|---|---|---|---|
| Loading... | |||
Data powered by ATTOM Data Solutions. Copyright© 2025. Information deemed reliable but not guaranteed.
The schools shown represent both the assigned schools and schools by distance based on local school and district attendance boundaries. Attendance boundaries change based on various factors and proximity does not guarantee enrollment eligibility. Please consult your real estate agent and/or the school district to confirm the schools this property is zoned to attend. Information is deemed reliable but not guaranteed.
SchoolDigger ® Rating
The SchoolDigger rating system is a 1-5 scale with 5 as the highest rating. SchoolDigger ranks schools based on test scores supplied by each state's Department of Education. They calculate an average standard score by normalizing and averaging each school's test scores across all tests and grades.
Coming soon properties will soon be on the market, but are not yet available for showings.