404 Dickman Drive SW Ruskin, FL 33570 - RUSKIN INLET
For Sale MLS# TB8406999
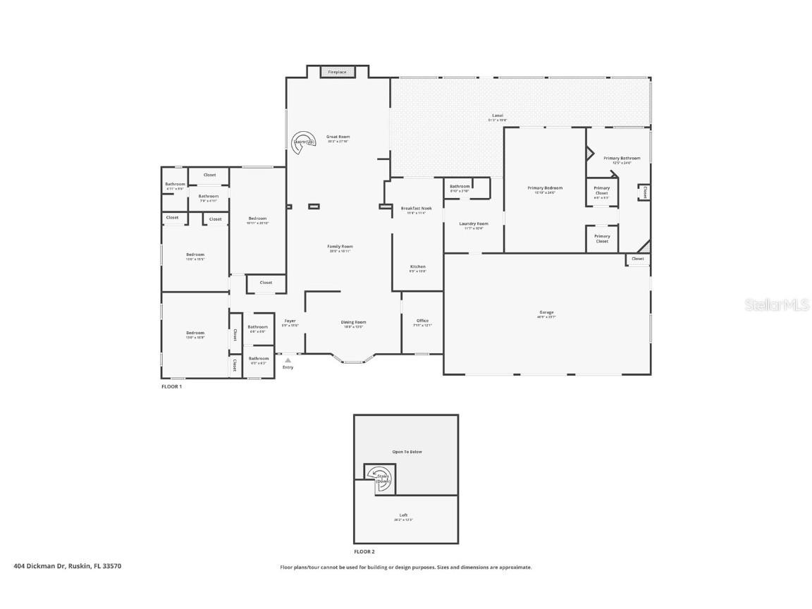
4 beds 4 baths 4,400 sq ft Single Family
OPEN HOUSE: Saturday, 5/23 11:00 AM - 01:00 PM
Details for 404 Dickman Drive SW
MLS# TB8406999
Description for 404 Dickman Drive SW, Ruskin, FL, 33570 - RUSKIN INLET
Price Improvement! NO HOA OR CDD! Discover the perfect blend of space, comfort and flexibility in this newly remodeled 4 bedroom, 4 bathroom home in the heart of Ruskin. You will enjoy a relaxing water view at the front of the home and gorgeous sunrises and sunsets from the property. Inside you will find an expansive layout that includes two spacious primary bedrooms, each with its own ensuite bathroom, two large bedrooms, an office, dining room, family room, game area, and a two story great room centered around a Chicago Brick wood burning fireplace (with outside loading wood bins) and an open loft with oak spiral staircase and railing. This room creates an especially cozy and inviting space for gathering. The kitchen features a breakfast nook and bar area for ample seating. There are new LG stainless steel appliances and abundant cabinetry, ready for daily meals and entertaining. A spacious laundry/utility room adjoins the kitchen and the large three car garage. The house opens to the massive covered lanai through french doors in the great room, kitchen/breakfast nook, laundry area, master bedroom and bathroom. This access makes the lanai perfect for parties , outdoor dining, relaxing with your morning coffee or just hanging out in a hammock with a good book! Throughout the home, fresh updates and a functional layout support a variety of lifestyles or multiple-generational living. The three new air conditioning units allow for convenient temperature control in different areas of the house. Re-piping of all incoming water supply lines with Uponor (PEX) is complete. A new roof will be installed prior to closing, giving the buyer color choice options. Current owners Flood Insurance policy and Termite Protection Policy Warranty are transferrable. Located by the Ruskin Inlet, the home is near the scenic Little Manatee River and Tampa Bay with easy access to boat launches including Common Good Park, E.G. Simmons Park, and Cockroach Bay Aquatic Preserve. The property places you both near nature and convenience to local shopping and dining. In addition, there is a vacant parcel located directly behind the home available for purchase separately offering a unique opportunity for expansion, storage or investment. (This parcel is not currently listed for sale.). Schedule a showing today and explore all the possibilities this unique Ruskin property has to offer.
Listing Information
Property Type: Residential, Single Family Residence
Status: Active
Bedrooms: 4
Bathrooms: 4
Lot Size: 0.52 Acres
Square Feet: 4,400 sq ft
Year Built: 1968
Garage: Yes
Stories: 1 Story
Construction: Brick,Block,Stucco
Subdivision: Ruskin City Map Of
Foundation: Slab
County: Hillsborough
School Information
Elementary: Ruskin-Hb
Middle: Shields-Hb
High: Lennard-Hb
Room Information
Main Floor
Bedroom 4: 20x10
Primary Bedroom: 24x15
Kitchen:
Living Room:
Office: 12x8
Porch: 19x51
Laundry: 10x11
Dining Room: 13x18
Great Room: 27x20
Family Room: 16x20
Bedroom 3: 16x13
Bedroom 2: 15x13
Bathrooms
Full Baths: 4
Additonal Room Information
Laundry: Laundry Room
Interior Features
Appliances: Dishwasher, Microwave, Range, Refrigerator
Flooring: Tile,Wood
Doors/Windows: Window Treatments, Skylight(s)
Fireplaces: Wood Burning, Family Room
Additional Interior Features: Ceiling Fan(s), Vaulted Ceiling(s), Split Bedrooms, Eat-In Kitchen, Walk-In Closet(s), Window Treatments, Skylights, Built-in Features, Cathedral Ceiling(s), High Ceilings, Open Floorplan, Main Level Primary, Crown Molding, Stone Counters, Wood Cabinets
Utilities
Water: Public
Sewer: Septic Tank
Other Utilities: Cable Available,Electricity Connected,High Speed Internet Available,Phone Available,Water Connected
Cooling: Central Air, Ceiling Fan(s)
Heating: Central
Exterior / Lot Features
Attached Garage: Attached Garage
Garage Spaces: 3
Parking Description: Garage Door Opener, Garage, driveway
Roof: Shingle
Lot View: Intercoastal,Water
Lot Dimensions: 120x190
Additional Exterior/Lot Features: Lighting, Rear Porch, Screened, Landscaped, Outside City Limits
Waterfront Details
Standard Water Body: RUSKIN INLET
Driving Directions
Head southwest on US-41 S/S Tamiami Trl/N U.S. Hwy 41 turn right Shell Point Rd. Turn left onto 4th St NW. Turn right onto Dickman Dr SW. Destination will be on the left
Financial Considerations
Terms: Cash,Conventional,VA Loan
Tax/Property ID: U-07-32-19-1V5-000000-00622.0
Tax Amount: 4060.49
Tax Year: 2024
A broker reciprocity listing courtesy: LPT REALTY, LLC
Based on information provided by Stellar MLS as distributed by the MLS GRID. Information from the Internet Data Exchange is provided exclusively for consumers’ personal, non-commercial use, and such information may not be used for any purpose other than to identify prospective properties consumers may be interested in purchasing. This data is deemed reliable but is not guaranteed to be accurate by Edina Realty, Inc., or by the MLS. Edina Realty, Inc., is not a multiple listing service (MLS), nor does it offer MLS access.
Copyright 2026 Stellar MLS as distributed by the MLS GRID. All Rights Reserved.
Payment Calculator
Interest rate and annual percentage rate (APR) are based on current market conditions, are for informational purposes only, are subject to change without notice and may be subject to pricing add-ons related to property type, loan amount, loan-to-value, credit score and other variables. Estimated closing costs used in the APR calculation are assumed to be paid by the borrower at closing. If the closing costs are financed, the loan, APR and payment amounts will be higher. If the down payment is less than 20%, mortgage insurance may be required and could increase the monthly payment and APR. Contact us for details. Additional loan programs may be available. Accuracy is not guaranteed, and all products may not be available in all borrower's geographical areas and are based on their individual situation. This is not a credit decision or a commitment to lend.
Sales History & Tax Summary for 404 Dickman Drive SW
Sales History
| Date | Price | |
|---|---|---|
| Currently not available. | ||
Tax Summary
| Tax Year | Estimated Market Value | Total Tax |
|---|---|---|
| Currently not available. | ||
Data powered by ATTOM Data Solutions. Copyright© 2026. Information deemed reliable but not guaranteed.
Schools
Schools nearby 404 Dickman Drive SW
| Schools in attendance boundaries | Grades | Distance | Rating |
|---|---|---|---|
| Loading... | |||
| Schools nearby | Grades | Distance | Rating |
|---|---|---|---|
| Loading... | |||
Data powered by ATTOM Data Solutions. Copyright© 2026. Information deemed reliable but not guaranteed.
The schools shown represent both the assigned schools and schools by distance based on local school and district attendance boundaries. Attendance boundaries change based on various factors and proximity does not guarantee enrollment eligibility. Please consult your real estate agent and/or the school district to confirm the schools this property is zoned to attend. Information is deemed reliable but not guaranteed.
SchoolDigger ® Rating
The SchoolDigger rating system is a 1-5 scale with 5 as the highest rating. SchoolDigger ranks schools based on test scores supplied by each state's Department of Education. They calculate an average standard score by normalizing and averaging each school's test scores across all tests and grades.
Coming soon properties will soon be on the market, but are not yet available for showings.