4041 Michel Tree Street Port Charlotte, FL 33948
For Sale MLS# C7497280
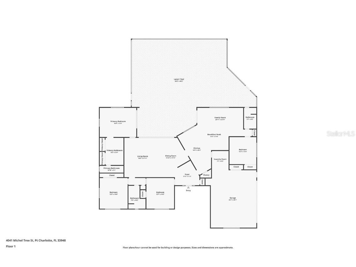
4 beds 3 baths 2,316 sq ft Single Family
Details for 4041 Michel Tree Street
MLS# C7497280
Description for 4041 Michel Tree Street, Port Charlotte, FL, 33948
" HUGE PRICE IMPROVEMENT" Discover the perfect blend of comfort, luxury, and convenience with this stunning 4-bedroom, 3-bathroom residence, nestled on over an acre of lush, beautifully landscaped grounds. This property epitomizes functionality, providing a serene retreat in the heart of Port Charlotte. Step inside to a split floor plan drenched in natural light, showcasing high functionality and thoughtful design. The heart of the home, a fully-equipped kitchen, features striking two-tone cabinets, gleaming granite countertops, a custom-built hutch, an island with seating, and a cozy breakfast nook. This space seamlessly flows into the family room, complete with a custom entertainment area and a picturesque view of the pool and lanai. Retreat to the luxurious master suite, offering ample wall closets and a spa-like en-suite bathroom. Enjoy dual sinks, a large vanity, and a separate shower for the ultimate in relaxation. Step outside to your oversized, private, heated pool—perfect for year-round enjoyment. The expansive patio area invites sunbathing, dining, and soaking in Florida’s beautiful weather. Mature landscaping, including multiple fruit trees and a majestic oak enhances the tranquility of the property. Three additional spacious bedrooms offer flexibility for family, guests, or a home office. Two well-appointed bathrooms, including the third doubling as a pool bath, ensure comfort and convenience for all. This rock-solid home features all plaster walls, a large side-entry two-car garage with ample parking for ten vehicles, and numerous modern upgrades including LED lighting, a dehumidifier in the attic, and recently resurfaced pool. With two water heaters ensuring endless hot water, this home is as practical as it is luxurious. The expansive lot provides ample space for additional projects—consider building your dream garage, a guest house, or even a spec home to capitalize on the prime location. Enjoy the perfect balance of privacy and accessibility, with shopping, dining, schools, and parks all within close reach. The Edgewater corridor provides easy access to the beaches and the charming city of Punta Gorda. This exceptional Port Charlotte property is a rare find. Don’t miss the chance to own this beautiful home and experience the ultimate in luxury, space, and convenience. Schedule your showing today and make this dream home your reality!
Listing Information
Property Type: Residential, Single Family Residence
Status: Active
Bedrooms: 4
Bathrooms: 3
Lot Size: 1.08 Acres
Square Feet: 2,316 sq ft
Year Built: 1973
Garage: Yes
Stories: 1 Story
Construction: Block
Subdivision: Port Charlotte Sec 037
Foundation: Slab
County: Charlotte
Room Information
Main Floor
Family Room: 21x13
Kitchen: 13x13
Bedroom 4: 11x12
Bathroom 3: 13x12
Bedroom 2: 13x12
Primary Bedroom: 16x13
Dining Room: 15x10
Living Room: 18x18
Bathrooms
Full Baths: 3
Additonal Room Information
Laundry: In Garage
Interior Features
Appliances: Electric Water Heater, Dishwasher, Dryer, Microwave, Range, Refrigerator, Washer
Flooring: Carpet,Tile,Wood
Additional Interior Features: Built-in Features, Stone Counters
Utilities
Water: Public
Sewer: Septic Tank
Other Utilities: Electricity Connected,Water Connected
Cooling: Central Air
Heating: Central
Exterior / Lot Features
Attached Garage: Attached Garage
Garage Spaces: 2
Roof: Metal
Pool: Heated, Screen Enclosure, Gunite
Lot View: Trees/Woods
Lot Dimensions: 110x125
Additional Exterior/Lot Features: Storage
Driving Directions
From US 41 Turn West onto Edgewater the left on Michel Tree st.
Financial Considerations
Terms: Cash,Conventional,FHA,VA Loan
Tax/Property ID: 402229103001
Tax Amount: 3033.51
Tax Year: 2023
A broker reciprocity listing courtesy: ERIN CATRON & COMPANY
Based on information provided by Stellar MLS as distributed by the MLS GRID. Information from the Internet Data Exchange is provided exclusively for consumers’ personal, non-commercial use, and such information may not be used for any purpose other than to identify prospective properties consumers may be interested in purchasing. This data is deemed reliable but is not guaranteed to be accurate by Edina Realty, Inc., or by the MLS. Edina Realty, Inc., is not a multiple listing service (MLS), nor does it offer MLS access.
Copyright 2025 Stellar MLS as distributed by the MLS GRID. All Rights Reserved.
Payment Calculator
Interest rate and annual percentage rate (APR) are based on current market conditions, are for informational purposes only, are subject to change without notice and may be subject to pricing add-ons related to property type, loan amount, loan-to-value, credit score and other variables. Estimated closing costs used in the APR calculation are assumed to be paid by the borrower at closing. If the closing costs are financed, the loan, APR and payment amounts will be higher. If the down payment is less than 20%, mortgage insurance may be required and could increase the monthly payment and APR. Contact us for details. Additional loan programs may be available. Accuracy is not guaranteed, and all products may not be available in all borrower's geographical areas and are based on their individual situation. This is not a credit decision or a commitment to lend.
Sales History & Tax Summary for 4041 Michel Tree Street
Sales History
| Date | Price | Change |
|---|---|---|
| Currently not available. | ||
Tax Summary
| Tax Year | Estimated Market Value | Total Tax |
|---|---|---|
| Currently not available. | ||
Data powered by ATTOM Data Solutions. Copyright© 2025. Information deemed reliable but not guaranteed.
Schools
Schools nearby 4041 Michel Tree Street
| Schools in attendance boundaries | Grades | Distance | Rating |
|---|---|---|---|
| Loading... | |||
| Schools nearby | Grades | Distance | Rating |
|---|---|---|---|
| Loading... | |||
Data powered by ATTOM Data Solutions. Copyright© 2025. Information deemed reliable but not guaranteed.
The schools shown represent both the assigned schools and schools by distance based on local school and district attendance boundaries. Attendance boundaries change based on various factors and proximity does not guarantee enrollment eligibility. Please consult your real estate agent and/or the school district to confirm the schools this property is zoned to attend. Information is deemed reliable but not guaranteed.
SchoolDigger ® Rating
The SchoolDigger rating system is a 1-5 scale with 5 as the highest rating. SchoolDigger ranks schools based on test scores supplied by each state's Department of Education. They calculate an average standard score by normalizing and averaging each school's test scores across all tests and grades.
Coming soon properties will soon be on the market, but are not yet available for showings.