$349,900
405 NW 123rd Street Newberry, FL 32669
For Sale MLS# GC535077
4 beds 3 baths 1,652 sq ft Single Family
Details for 405 NW 123rd Street
MLS# GC535077
Description for 405 NW 123rd Street, Newberry, FL, 32669
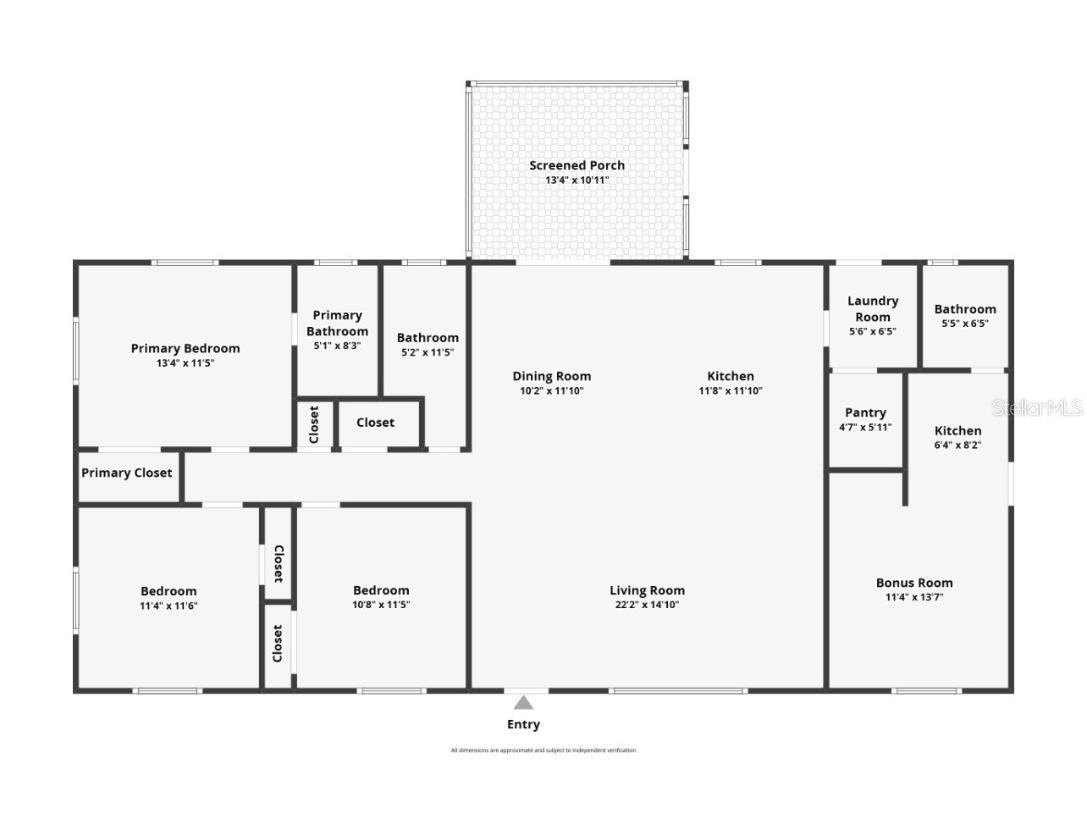
Updated 4-bedroom, 3-bath home on a spacious .94-acre lot in the NW side of town! The kitchen features quartz countertops, stainless steel appliances, a new sink, updated LED lighting, and modern plumbing fixtures. Luxury vinyl plank flooring runs throughout the home. The guest bathroom has been remodeled with a new vanity, shower tile, and tub. The 4th bedroom (no closet) and 3rd bath make up an attached in-law suite with a private entrance. The main house includes indoor laundry and a walk-in pantry. Enjoy the rear screened porch and large wood deck overlooking the expansive .94-acre lot. Additional updates include updated windows, HVAC replaced in 2014, water heater replaced in 2023 and a roof replaced in 2008. No HOA so bring your boat, RV & toys! Plenty of room to build a detached garage, workshop or carport. Paved road. Utilities include Clay Electric, GRU water, and septic. Conveniently located near Tioga Town Center, Publix Marketplace, Santa Fe College, North Florida Hospital, and numerous shopping and dining options. Currently zoned for Meadowbrook elementary, Kanapaha Middle school and Buchholz High school. Survey available.
Listing Information
Property Type: Residential, Single Family Residence
Status: Active
Bedrooms: 4
Bathrooms: 3
Lot Size: 0.94 Acres
Square Feet: 1,652 sq ft
Year Built: 1974
Stories: 1 Story
Construction: Vinyl Siding
Subdivision: West End Estates
Foundation: Slab
County: Alachua
School Information
Elementary: Meadowbrook Elementary School-Al
Middle: Kanapaha Middle School-Al
High: F. W. Buchholz High School-Al
Room Information
Main Floor
Bathroom 3:
Bedroom 4:
Bathroom 2:
Bedroom 3:
Bedroom 2:
Primary Bathroom:
Primary Bedroom: 15x12
Great Room: 24x17
Kitchen: 11x10.5
Bathrooms
Full Baths: 3
Additonal Room Information
Laundry: Washer Hookup, Electric Dryer Hookup, Inside, Laundry Room
Interior Features
Appliances: Electric Water Heater, Range, Refrigerator, Microwave, Dishwasher, Disposal
Flooring: Luxury Vinyl,Tile
Doors/Windows: Blinds, Double Pane Windows, Window Treatments
Additional Interior Features: Ceiling Fan(s), Window Treatments, Open Floorplan, Solid Surface Counters
Utilities
Water: Public
Sewer: Septic Tank
Other Utilities: Cable Available,Electricity Available,Electricity Connected,Fiber Optic Available,Municipal Utilities,Water Available,Water Connected
Cooling: Ceiling Fan(s), Central Air
Heating: Electric, Central
Exterior / Lot Features
Parking Description: driveway
Roof: Shingle
Lot View: Trees/Woods
Fencing: Other, Wood
Additional Exterior/Lot Features: French Patio Doors, Rear Porch, Deck, Screened, Flat, Level, Outside City Limits
Community Features
Community Features: Street Lights
Driving Directions
Newberry road west to NW 123rd Street, turn left, look for home on the left.
Financial Considerations
Terms: Cash,Conventional,FHA,VA Loan
Tax/Property ID: 04337-024-000
Tax Amount: 3709
Tax Year: 2025
A broker reciprocity listing courtesy: WATSON REALTY CORP
Based on information provided by Stellar MLS as distributed by the MLS GRID. Information from the Internet Data Exchange is provided exclusively for consumers’ personal, non-commercial use, and such information may not be used for any purpose other than to identify prospective properties consumers may be interested in purchasing. This data is deemed reliable but is not guaranteed to be accurate by Edina Realty, Inc., or by the MLS. Edina Realty, Inc., is not a multiple listing service (MLS), nor does it offer MLS access.
Copyright 2026 Stellar MLS as distributed by the MLS GRID. All Rights Reserved.
Payment Calculator
Interest rate and annual percentage rate (APR) are based on current market conditions, are for informational purposes only, are subject to change without notice and may be subject to pricing add-ons related to property type, loan amount, loan-to-value, credit score and other variables. Estimated closing costs used in the APR calculation are assumed to be paid by the borrower at closing. If the closing costs are financed, the loan, APR and payment amounts will be higher. If the down payment is less than 20%, mortgage insurance may be required and could increase the monthly payment and APR. Contact us for details. Additional loan programs may be available. Accuracy is not guaranteed, and all products may not be available in all borrower's geographical areas and are based on their individual situation. This is not a credit decision or a commitment to lend.
Sales History & Tax Summary for 405 NW 123rd Street
Sales History
| Date | Price | |
|---|---|---|
| Currently not available. | ||
Tax Summary
| Tax Year | Estimated Market Value | Total Tax |
|---|---|---|
| Currently not available. | ||
Data powered by ATTOM Data Solutions. Copyright© 2026. Information deemed reliable but not guaranteed.
Schools
Schools nearby 405 NW 123rd Street
| Schools in attendance boundaries | Grades | Distance | Rating |
|---|---|---|---|
| Loading... | |||
| Schools nearby | Grades | Distance | Rating |
|---|---|---|---|
| Loading... | |||
Data powered by ATTOM Data Solutions. Copyright© 2026. Information deemed reliable but not guaranteed.
The schools shown represent both the assigned schools and schools by distance based on local school and district attendance boundaries. Attendance boundaries change based on various factors and proximity does not guarantee enrollment eligibility. Please consult your real estate agent and/or the school district to confirm the schools this property is zoned to attend. Information is deemed reliable but not guaranteed.
SchoolDigger ® Rating
The SchoolDigger rating system is a 1-5 scale with 5 as the highest rating. SchoolDigger ranks schools based on test scores supplied by each state's Department of Education. They calculate an average standard score by normalizing and averaging each school's test scores across all tests and grades.
Coming soon properties will soon be on the market, but are not yet available for showings.