4054 Santa Caterina Boulevard #9102 Bradenton, FL 34211
For Sale MLS# A4666845
1 beds 1 baths 794 sq ft Condo
Details for 4054 Santa Caterina Boulevard #9102
MLS# A4666845
Description for 4054 Santa Caterina Boulevard #9102, Bradenton, FL, 34211
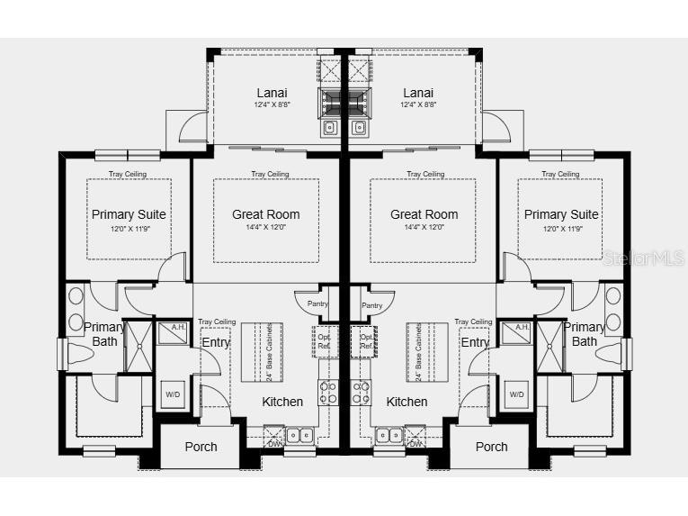
Under Construction. What's Special: Golf Course View Single Level Living Water View. New Construction – Ready Now! Built by Taylor Morrison, America’s Most Trusted Homebuilder. Welcome to the Verona at 4054 Santa Caterina Boulevard, Unit 9102, in Esplanade at Azario Lakewood Ranch. This charming one-bedroom, one-bathroom new cottage is designed for comfort and versatility. Inside, you’ll find a well-appointed primary suite, a welcoming great room, and a stylish kitchen with generous pantry space. Elegant tray ceilings and designer finishes elevate the interior, while the lanai with an outdoor kitchen creates the perfect setting for indoor-outdoor living. A detached garage and an included golf membership complete the package, making the Verona an ideal choice for seasonal living, guest accommodations, or year-round enjoyment. MLS#A4666845 Resort-Style Living at Esplanade at Azario Lakewood Ranch, the perfect blend of relaxation and recreation! Enjoy the heated resort-style pool, state-of-the-art fitness center, and energizing aerobics classes. For outdoor enthusiasts, there are pickleball courts, scenic trails, Vitality Park, and if golf is your game, you'll love Esplanade's 18-hole championship course! Unwind with a facial massage or by the fire pit after a workout. Exclusive amenities like a Wellness Center, Culinary Center, and sports courts ensure there's something for everyone, whether you want to stay active or relax in style.
Listing Information
Property Type: Residential, Condominium
Status: Active
Bedrooms: 1
Bathrooms: 1
Square Feet: 794 sq ft
Year Built: 2025
Garage: Yes
Stories: 1 Story
Construction: Block,Concrete,Stone,Stucco
Property Attached: Yes
Construction Display: New Construction
Subdivision: Azario Esplanade
Builder: Taylor Morrison
Foundation: Slab
County: Manatee
Construction Status: Under Construction
School Information
Elementary: Gullett Elementary
Middle: Dr Mona Jain Middle
High: Lakewood Ranch High
Room Information
Main Floor
Great Room: 15x16
Kitchen: 10x6
Dining Room: 14x11
Bedroom 2: 12x10
Primary Bedroom: 12x13
Bathrooms
Full Baths: 1
Additonal Room Information
Laundry: Inside
Interior Features
Appliances: Exhaust Fan, Washer, Tankless Water Heater, Gas Water Heater, Dishwasher, Disposal, Dryer, Microwave, Cooktop, Range, Refrigerator
Flooring: Carpet,Tile,Vinyl
Additional Interior Features: Tray Ceiling(s), Walk-In Closet(s), Main Level Primary, Crown Molding, Open Floorplan, High Ceilings
Utilities
Water: Public
Sewer: Public Sewer
Other Utilities: Cable Available,Electricity Available,Natural Gas Available,Natural Gas Connected,High Speed Internet Available,Phone Available,Sewer Connected,Underground Utilities,Water Connected
Cooling: Central Air
Heating: Central
Exterior / Lot Features
Garage Spaces: 1
Parking Description: Other
Roof: Tile
Pool: Community, Association
Lot View: Golf Course,Water
Additional Exterior/Lot Features: Rain Gutters, Sprinkler/Irrigation, Outdoor Kitchen, Storage, Corner Lot, Cul-de-Sac
Community Features
Community Features: Playground, Sidewalks, Pool, Tennis Court(s), Clubhouse, Golf, Dog Park, Gated, Park, Restaurant, Fitness, Golf Carts OK, Community Mailbox
Security Features: Gated Community, Gated with Guard
Association Amenities: Pool, Playground, Spa/Hot Tub, Golf Course, Clubhouse, Fitness Center, Tennis Court(s), Recreation Facilities, Gated, Maintenance Grounds, Park, Pickleball
Homeowners Association: Yes
HOA Dues: $1,197 / Monthly
Driving Directions
Heading North From I-75, take Exit 217 (SR 70). Head east on SR 70 for approximately 4 miles, then turn left onto Lorraine Road. In 1.5 miles, turn right onto 44th Ave E. Continue straight, and you will see the Esplanade at Azario Lakewood Ranch entry monument on your left. Turn left at the monument and enter the community through the guard gate. At your first traffic circle, take the first exit. The Sales Center will be on your left.
Financial Considerations
Terms: Cash,Conventional,FHA,VA Loan
Tax/Property ID: NALOT9102
Tax Year: 2024
A broker reciprocity listing courtesy: TAYLOR MORRISON RLTY OF FLA
Based on information provided by Stellar MLS as distributed by the MLS GRID. Information from the Internet Data Exchange is provided exclusively for consumers’ personal, non-commercial use, and such information may not be used for any purpose other than to identify prospective properties consumers may be interested in purchasing. This data is deemed reliable but is not guaranteed to be accurate by Edina Realty, Inc., or by the MLS. Edina Realty, Inc., is not a multiple listing service (MLS), nor does it offer MLS access.
Copyright 2025 Stellar MLS as distributed by the MLS GRID. All Rights Reserved.
Payment Calculator
Interest rate and annual percentage rate (APR) are based on current market conditions, are for informational purposes only, are subject to change without notice and may be subject to pricing add-ons related to property type, loan amount, loan-to-value, credit score and other variables. Estimated closing costs used in the APR calculation are assumed to be paid by the borrower at closing. If the closing costs are financed, the loan, APR and payment amounts will be higher. If the down payment is less than 20%, mortgage insurance may be required and could increase the monthly payment and APR. Contact us for details. Additional loan programs may be available. Accuracy is not guaranteed, and all products may not be available in all borrower's geographical areas and are based on their individual situation. This is not a credit decision or a commitment to lend.
Sales History & Tax Summary for 4054 Santa Caterina Boulevard #9102
Sales History
| Date | Price | Change |
|---|---|---|
| Currently not available. | ||
Tax Summary
| Tax Year | Estimated Market Value | Total Tax |
|---|---|---|
| Currently not available. | ||
Data powered by ATTOM Data Solutions. Copyright© 2025. Information deemed reliable but not guaranteed.
Schools
Schools nearby 4054 Santa Caterina Boulevard #9102
| Schools in attendance boundaries | Grades | Distance | Rating |
|---|---|---|---|
| Loading... | |||
| Schools nearby | Grades | Distance | Rating |
|---|---|---|---|
| Loading... | |||
Data powered by ATTOM Data Solutions. Copyright© 2025. Information deemed reliable but not guaranteed.
The schools shown represent both the assigned schools and schools by distance based on local school and district attendance boundaries. Attendance boundaries change based on various factors and proximity does not guarantee enrollment eligibility. Please consult your real estate agent and/or the school district to confirm the schools this property is zoned to attend. Information is deemed reliable but not guaranteed.
SchoolDigger ® Rating
The SchoolDigger rating system is a 1-5 scale with 5 as the highest rating. SchoolDigger ranks schools based on test scores supplied by each state's Department of Education. They calculate an average standard score by normalizing and averaging each school's test scores across all tests and grades.
Coming soon properties will soon be on the market, but are not yet available for showings.