$488,000
4068 Lyndhurst Court Sarasota, FL 34235
For Sale MLS# A4690209
3 beds 2 baths 1,963 sq ft Single Family
Details for 4068 Lyndhurst Court
MLS# A4690209
Description for 4068 Lyndhurst Court, Sarasota, FL, 34235
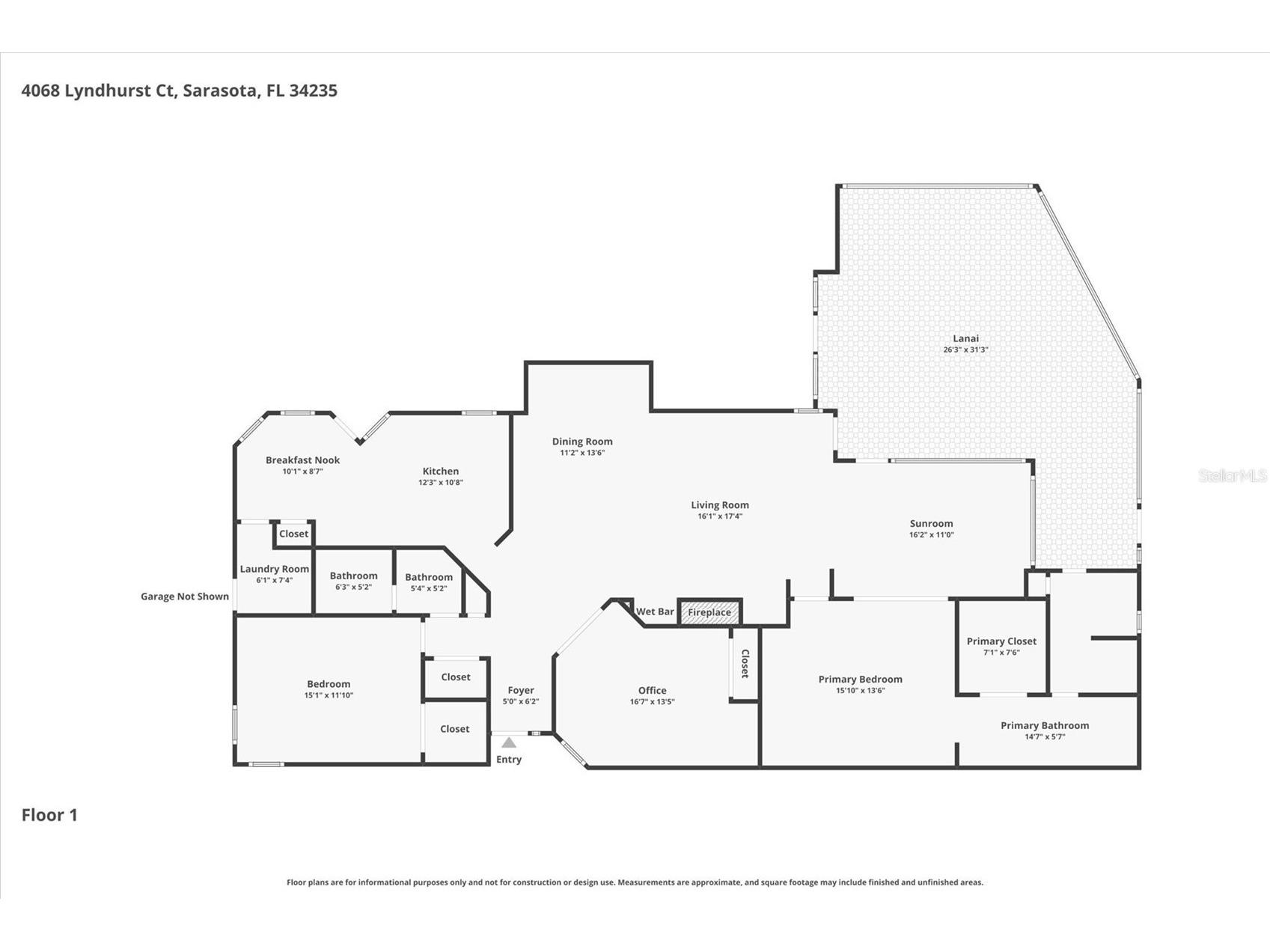
Tucked within the desirable Lyndhurst enclave of The Meadows, this beautifully maintained 3-bedroom, 2-bath single-family residence offers a blend of privacy, character, and effortless Florida living. A pavered driveway and tropically landscaped, gated walkway welcome you to a charming side-entry front door. Step into a light-filled interior featuring porcelain tile flooring and ceiling fans throughout, complemented by neutral tones, unique architectural angles, and subtle accent lighting that create a bright, airy ambiance with a relaxed, beach-inspired feel. The living and dining areas are the heart of the home, enhanced by a skylight, a cozy wood-burning fireplace, and a wet bar with built-in cabinetry—perfect for entertaining. The eat-in kitchen is both stylish and functional, showcasing light soft-close cabinetry, quartz countertops, and abundant windows that invite in natural light. A door leads to a private, walled privacy garden complete with a pergola—an ideal spot for morning coffee or quiet evenings. Just off the kitchen, the inside laundry room offers added convenience with upper cabinetry for storage. An enclosed all-weather bonus room, lined with windows, seamlessly connects the living room to the lanai, expanding your living space year-round. The spacious primary suite features sliding glass doors to this bonus area, transom windows, and a large walk-in closet with built-ins. The ensuite bath is thoughtfully designed with quartz countertops, dual sinks with a makeup area, a sunken tub beneath a skylight, and a separate shower, toilet, and additional sink with direct access to the lanai - making it an ideal future pool bath should new owners choose to add a pool. Two guest bedrooms provide flexibility and comfort—one generously sized with a walk-in closet, and the other featuring built-in cabinetry, currently utilized as a den or office. The guest bath includes a separate sink area with quartz countertops and a beautifully updated tiled shower with glass doors. Outdoors, the pebbled and recently rescreened lanai offers tranquil tropical views of the 11th fairway and green, creating a serene backdrop for relaxation or entertaining. The attached two-car garage is equally impressive, featuring an epoxy floor, storage cabinets, pegboard, new pull-down attic stairs, and direct access to the private courtyard. Recent upgrades include NEW HVAC in 2023, refrigerator, dishwasher and disposal in 2022, and washer and dryer in 2021. Enjoy low-maintenance living with an HOA that covers landscaping outside the lanai, roof maintenance and replacement (roof replaced in 2012), exterior home care and painting, irrigation, and exterior pest control—allowing you to fully embrace the Florida lifestyle in one of Sarasota’s most sought-after communities. Lyndhurst also offers a screened community pool and walking trails. Just a 15-minute drive outside this peaceful enclave is downtown Sarasota, with shopping, arts & theatres, museums, dining and entertainment, top-ranked healthcare, beaches and SRQ International Airport. One mile east is the convenience of I-75, University Town Center with over 300 nationally known and homegrown shops, restaurants, fitness studios, services and attractions, the Nate Benderson Park, home of world-class rowing events and the Mote Marine Aquarium. Please note: three exterior SimpliSafe cameras are in place on the property and may be recording.
Listing Information
Property Type: Residential, Single Family Residence
Status: Active
Bedrooms: 3
Bathrooms: 2
Lot Size: 0.13 Acres
Square Feet: 1,963 sq ft
Year Built: 1987
Garage: Yes
Stories: 1 Story
Construction: Block,Stucco
Subdivision: Meadows The
Foundation: Slab
County: Sarasota
School Information
Elementary: Gocio Elementary
Middle: Booker Middle
High: Booker High
Room Information
Main Floor
Utility Room: 8x7
Kitchen: 22x11
Bedroom 3: 16x11
Bedroom 2: 15x15
Primary Bedroom: 16x13
Dining Room: 16x11
Living Room: 25x17
Bathrooms
Full Baths: 2
Additonal Room Information
Laundry: Inside, Laundry Room
Interior Features
Appliances: Electric Water Heater, Washer, Dishwasher, Disposal, Dryer, Microwave, Range, Refrigerator
Flooring: Porcelain Tile
Doors/Windows: Window Treatments, Drapes, Skylight(s), Blinds
Fireplaces: Wood Burning, Living Room
Additional Interior Features: Walk-In Closet(s), Skylights, Attic, Built-in Features, Window Treatments, Ceiling Fan(s), Vaulted Ceiling(s), Wet Bar, Eat-In Kitchen, High Ceilings, Living/Dining Room, Solid Surface Counters, Main Level Primary
Utilities
Water: Public
Sewer: Public Sewer
Other Utilities: Cable Connected,Electricity Connected,Municipal Utilities,Sewer Connected,Underground Utilities
Cooling: Ceiling Fan(s), Central Air
Heating: Central
Exterior / Lot Features
Attached Garage: Attached Garage
Garage Spaces: 2
Parking Description: Garage, driveway, on street, Garage Door Opener
Roof: Tile
Pool: Association, Community
Lot View: Golf Course
Additional Exterior/Lot Features: Sprinkler/Irrigation, Private Entrance, Rain Gutters, Courtyard
Community Features
Community Features: Sidewalks
Security Features: Security System Owned, Smoke Detector(s)
Association Amenities: Pool, Playground, Maintenance Grounds
HOA Dues Include: Common Areas, Pool(s), Maintenance Grounds, Reserve Fund, Taxes, Association Management
Homeowners Association: Yes
HOA Dues: $1,700 / Quarterly
Driving Directions
From University Parkway, turn South onto North Honore Avenue. Turn left on Amberly Drive, then right onto Lyndhurst Court. House will be on your left.
Financial Considerations
Terms: Cash,Conventional
Tax/Property ID: 0035060010
Tax Amount: 4495.45
Tax Year: 2025
A broker reciprocity listing courtesy: FINE PROPERTIES
Based on information provided by Stellar MLS as distributed by the MLS GRID. Information from the Internet Data Exchange is provided exclusively for consumers’ personal, non-commercial use, and such information may not be used for any purpose other than to identify prospective properties consumers may be interested in purchasing. This data is deemed reliable but is not guaranteed to be accurate by Edina Realty, Inc., or by the MLS. Edina Realty, Inc., is not a multiple listing service (MLS), nor does it offer MLS access.
Copyright 2026 Stellar MLS as distributed by the MLS GRID. All Rights Reserved.
Payment Calculator
Interest rate and annual percentage rate (APR) are based on current market conditions, are for informational purposes only, are subject to change without notice and may be subject to pricing add-ons related to property type, loan amount, loan-to-value, credit score and other variables. Estimated closing costs used in the APR calculation are assumed to be paid by the borrower at closing. If the closing costs are financed, the loan, APR and payment amounts will be higher. If the down payment is less than 20%, mortgage insurance may be required and could increase the monthly payment and APR. Contact us for details. Additional loan programs may be available. Accuracy is not guaranteed, and all products may not be available in all borrower's geographical areas and are based on their individual situation. This is not a credit decision or a commitment to lend.
Sales History & Tax Summary for 4068 Lyndhurst Court
Sales History
| Date | Price | |
|---|---|---|
| Currently not available. | ||
Tax Summary
| Tax Year | Estimated Market Value | Total Tax |
|---|---|---|
| Currently not available. | ||
Data powered by ATTOM Data Solutions. Copyright© 2026. Information deemed reliable but not guaranteed.
Schools
Schools nearby 4068 Lyndhurst Court
| Schools in attendance boundaries | Grades | Distance | Rating |
|---|---|---|---|
| Loading... | |||
| Schools nearby | Grades | Distance | Rating |
|---|---|---|---|
| Loading... | |||
Data powered by ATTOM Data Solutions. Copyright© 2026. Information deemed reliable but not guaranteed.
The schools shown represent both the assigned schools and schools by distance based on local school and district attendance boundaries. Attendance boundaries change based on various factors and proximity does not guarantee enrollment eligibility. Please consult your real estate agent and/or the school district to confirm the schools this property is zoned to attend. Information is deemed reliable but not guaranteed.
SchoolDigger ® Rating
The SchoolDigger rating system is a 1-5 scale with 5 as the highest rating. SchoolDigger ranks schools based on test scores supplied by each state's Department of Education. They calculate an average standard score by normalizing and averaging each school's test scores across all tests and grades.
Coming soon properties will soon be on the market, but are not yet available for showings.