$559,900
Off-Market Date: 02/24/20264071 Oaktree Drive Davenport, FL 33837
Pending MLS# S5143662
5 beds 5 baths 3,491 sq ft Single Family
Details for 4071 Oaktree Drive
MLS# S5143662
Description for 4071 Oaktree Drive, Davenport, FL, 33837
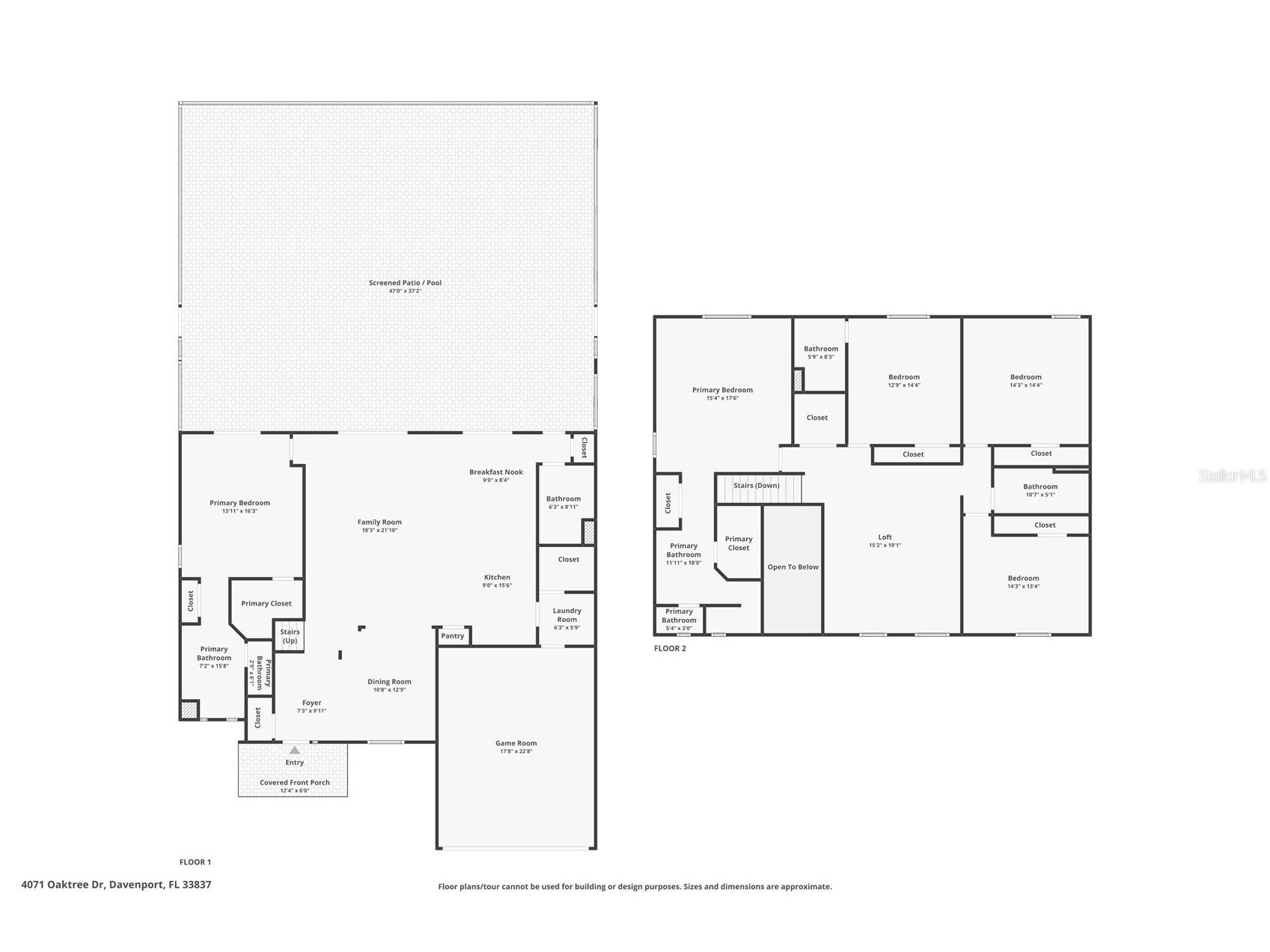
Under contract-accepting backup offers. Rarely does an opportunity arise to own a property of this caliber that has never been used as a rental, ensuring the home remains in pristine, move-in-ready condition. Located at 4071 Oaktree Dr within the prestigious, guard-gated Solterra Resort, this fully furnished 5-bedroom, 5-bathroom residence is a turnkey masterpiece. The layout is thoughtfully designed with two spacious primary suites—one on each level—making it an ideal setup for multi-generational living or a high-end investment. Step outside to your private, screened-in oasis featuring a pool and spa, or head to the professionally converted garage-turned-game room for endless indoor entertainment. Beyond the home’s impeccable interior, Solterra Resort offers a lifestyle of luxury with amenities that rival world-class hotels. Residents enjoy access to a 5,600 sq. ft. clubhouse, a zero-entry pool with a water slide, a relaxing lazy river, and the poolside Cafe Sol Bar & Grill. For those seeking activity, the resort features a state-of-the-art fitness center, tennis courts, and a soccer field. Perfectly situated just minutes from Walt Disney World, premier golf courses, and the shopping and dining hubs of ChampionsGate, this home is a rare find for vacation buyers, savvy investors, or those seeking a flawless primary residence.
Listing Information
Property Type: Residential, Single Family Residence
Status: Pending
Bedrooms: 5
Bathrooms: 5
Lot Size: 0.19 Acres
Square Feet: 3,491 sq ft
Year Built: 2015
Garage: Yes
Stories: 2 Story
Construction: Stucco
Subdivision: Oakmont, Solterra
Foundation: Slab
County: Polk
Room Information
Main Floor
Primary Bedroom: 16x13
Dining Room: 12x10
Living Room: 21x18
Kitchen: 15x9
Upper Floor
Bedroom 5: 13x14
Bedroom 4: 14x14
Bedroom 3: 14x12
Primary Bedroom: 17x15
Bathrooms
Full Baths: 5
Additonal Room Information
Laundry: Laundry Room
Interior Features
Appliances: Washer, Range, Refrigerator, Dishwasher, Dryer, Microwave
Flooring: Carpet,Tile
Additional Interior Features: Ceiling Fan(s)
Utilities
Water: Public
Sewer: Public Sewer
Other Utilities: Cable Available,Electricity Available,High Speed Internet Available,Municipal Utilities,Phone Available,Water Available
Cooling: Ceiling Fan(s), Central Air
Heating: Electric, Central
Exterior / Lot Features
Attached Garage: Attached Garage
Garage Spaces: 2
Roof: Tile
Pool: In Ground, Screen Enclosure, Community
Community Features
Community Features: Sidewalks, Pool, Tennis Court(s), Clubhouse, Gated
Security Features: Gated Community, Gated with Guard
HOA Dues Include: Maintenance Grounds, Other, Internet, Cable TV, Trash
Homeowners Association: Yes
HOA Dues: $875 / Quarterly
Driving Directions
take I-4 to Exit 58 for Champions Gate. Head toward Champions Gate, turn left onto Ronald Reagan Pkwy, right onto Pine Tree Trail, left onto Solterra Blvd, and finally left onto Oaktree Dr
Financial Considerations
Terms: Cash,Conventional,FHA,VA Loan
Tax/Property ID: 27-26-10-701302-000160
Tax Amount: 11941.82
Tax Year: 2025
A broker reciprocity listing courtesy: TEAM DONOVAN
Based on information provided by Stellar MLS as distributed by the MLS GRID. Information from the Internet Data Exchange is provided exclusively for consumers’ personal, non-commercial use, and such information may not be used for any purpose other than to identify prospective properties consumers may be interested in purchasing. This data is deemed reliable but is not guaranteed to be accurate by Edina Realty, Inc., or by the MLS. Edina Realty, Inc., is not a multiple listing service (MLS), nor does it offer MLS access.
Copyright 2026 Stellar MLS as distributed by the MLS GRID. All Rights Reserved.
Sales History & Tax Summary for 4071 Oaktree Drive
Sales History
| Date | Price | |
|---|---|---|
| Currently not available. | ||
Tax Summary
| Tax Year | Estimated Market Value | Total Tax |
|---|---|---|
| Currently not available. | ||
Data powered by ATTOM Data Solutions. Copyright© 2026. Information deemed reliable but not guaranteed.
Schools
Schools nearby 4071 Oaktree Drive
| Schools in attendance boundaries | Grades | Distance | Rating |
|---|---|---|---|
| Loading... | |||
| Schools nearby | Grades | Distance | Rating |
|---|---|---|---|
| Loading... | |||
Data powered by ATTOM Data Solutions. Copyright© 2026. Information deemed reliable but not guaranteed.
The schools shown represent both the assigned schools and schools by distance based on local school and district attendance boundaries. Attendance boundaries change based on various factors and proximity does not guarantee enrollment eligibility. Please consult your real estate agent and/or the school district to confirm the schools this property is zoned to attend. Information is deemed reliable but not guaranteed.
SchoolDigger ® Rating
The SchoolDigger rating system is a 1-5 scale with 5 as the highest rating. SchoolDigger ranks schools based on test scores supplied by each state's Department of Education. They calculate an average standard score by normalizing and averaging each school's test scores across all tests and grades.
Coming soon properties will soon be on the market, but are not yet available for showings.