$349,400
408 21st Street SE Willmar, MN 56201
For Sale MLS# 6819747
4 beds 2 baths 2,414 sq ft Single Family
Details for 408 21st Street SE
MLS# 6819747
Description for 408 21st Street SE, Willmar, MN, 56201
Positioned along the edge of Valley Golf Course, this exceptional 4-bedroom, 2-bath home offers an elevated living experience with great views and timeless updates. The heart of the home is the kitchen, fully renovated in 2021, featuring custom soft-close cabinetry, quartz countertops, premium appliances, and thoughtfully planned storage. The upper-level bath provides a spa-like retreat with double vanities, a lovely soaking tub, and an expansive walk-in shower all completed in 2024. The primary bedroom includes its own walk-in closet. Multiple living spaces offer room to spread out and relax, including two fireplaces, a 3-season porch, and a private patio ideal for outdoor enjoyment. A walk-in cedar closet adds warmth and valuable extra storage.Recent enhancements—including professional landscaping (2024), a new AC evaporator coil and condenser, and a new water heater (2023)—ensure comfort and peace of mind for the next owner. A rare opportunity to own a beautifully updated home with a stunning golf course backdrop.
Listing Information
Property Type: Residential, Single Family
Status: Active
Bedrooms: 4
Bathrooms: 2
Lot Size: 0.38 Acres
Square Feet: 2,414 sq ft
Year Built: 1984
Foundation: 671 sq ft
Garage: Yes
Stories: Four or More Level Split
Subdivision: Pheasant Run
County: Kandiyohi
Days On Market: 65
Construction Status: Previously Owned
School Information
District: 0347 - Willmar
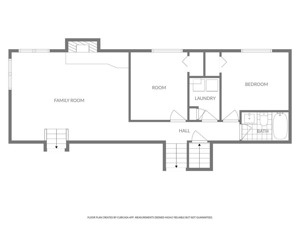
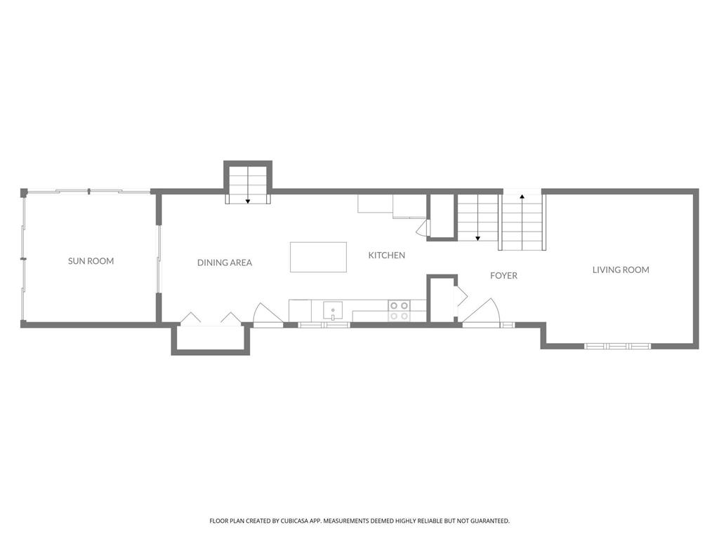
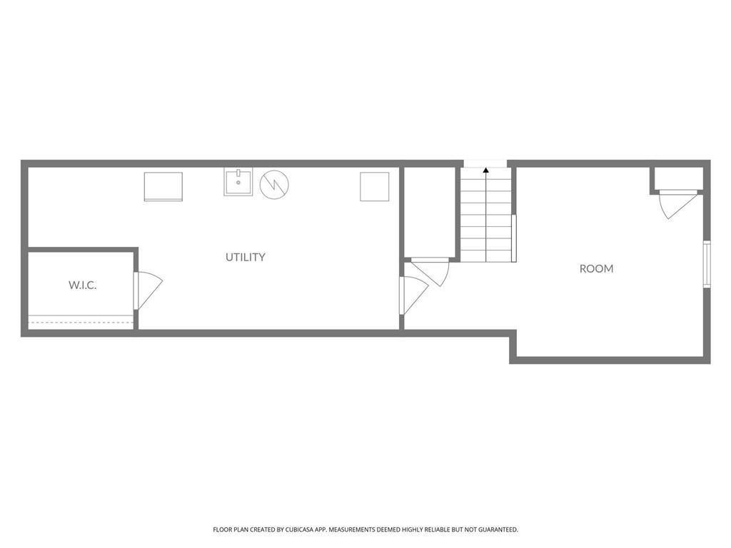
Room Information
Main Floor
Dining Room: 13 x 13
Four Season Porch: 11 x 12
Kitchen: 10 x 24
Upper Floor
Bedroom 1: 15 x 15
Living Room: 15 x 17
Lower Floor
Bedroom 2: 10 x 12
Bedroom 3: 9 x 11
Bedroom 4: 13 x 13
Family Room: 15 x 20
Bathrooms
Full Baths: 2
Additonal Room Information
Family: Family Room,Lower Level
Dining: Eat In Kitchen,Separate/Formal Dining Room
Laundry: In Basement
Bath Description: Double Sink,Full Basement,Primary Walk-Thru,Separate Tub & Shower,Upper Level Full Bath
Interior Features
Square Footage above: 1,528 sq ft
Square Footage below: 886 sq ft
Appliances: Water Filtration System, Disposal, Refrigerator, Dishwasher, Microwave, Range
Basement: Partial, Sump Pump, Finished (Livable), Egress Windows, Daylight/Lookout Windows
Fireplaces: 2, Primary Bedroom
Additional Interior Features: Walk-In Closet, Kitchen Window, Ceiling Fan(s), Washer/Dryer Hookup, Kitchen Center Island
Utilities
Water: City Water/Connected
Sewer: City Sewer/Connected
Cooling: Central
Heating: Natural Gas, Forced Air
Exterior / Lot Features
Attached Garage: Attached Garage
Garage Spaces: 2
Parking Description: Driveway - Concrete, Attached Garage, Garage Door Opener, Electric, Garage Dimensions - 24 x 24, Garage Sq Ft - 576.0
Exterior: Cement Board, Brick/Stone
Roof: Asphalt Shingles, Age Over 8 Years
Lot Dimensions: 88 x 190
Zoning: Residential-Single Family
Additional Exterior/Lot Features: Porch, Patio, Tree Coverage - Medium, On Golf Course, Underground Utilities, Road Frontage - City, Paved Streets, Street Lights, Storm Sewer
Out Buildings: Shed - Storage
Driving Directions
Highway 12 to Pheasant Run, South on 23rd, Right on 4th Avenue around to home.
Financial Considerations
Tax/Property ID: 956680230
Tax Amount: 4740
Tax Year: 2025
HomeStead Description: Homesteaded
A broker reciprocity listing courtesy: RE/MAX Preferred Realty
The data relating to real estate for sale on this web site comes in part from the Broker Reciprocity℠ Program of the Regional Multiple Listing Service of Minnesota, Inc. Real estate listings held by brokerage firms other than Edina Realty, Inc. are marked with the Broker Reciprocity℠ logo or the Broker Reciprocity℠ thumbnail and detailed information about them includes the name of the listing brokers. Edina Realty, Inc. is not a Multiple Listing Service (MLS), nor does it offer MLS access. This website is a service of Edina Realty, Inc., a broker Participant of the Regional Multiple Listing Service of Minnesota, Inc. IDX information is provided exclusively for consumers personal, non-commercial use and may not be used for any purpose other than to identify prospective properties consumers may be interested in purchasing. Open House information is subject to change without notice. Information deemed reliable but not guaranteed.
Copyright 2026 Regional Multiple Listing Service of Minnesota, Inc. All Rights Reserved.
Payment Calculator
Interest rate and annual percentage rate (APR) are based on current market conditions, are for informational purposes only, are subject to change without notice and may be subject to pricing add-ons related to property type, loan amount, loan-to-value, credit score and other variables. Estimated closing costs used in the APR calculation are assumed to be paid by the borrower at closing. If the closing costs are financed, the loan, APR and payment amounts will be higher. If the down payment is less than 20%, mortgage insurance may be required and could increase the monthly payment and APR. Contact us for details. Additional loan programs may be available. Accuracy is not guaranteed, and all products may not be available in all borrower's geographical areas and are based on their individual situation. This is not a credit decision or a commitment to lend.
Sales History & Tax Summary for 408 21st Street SE
Sales History
| Date | Price | Change |
|---|---|---|
| Currently not available. | ||
Tax Summary
| Tax Year | Estimated Market Value | Total Tax |
|---|---|---|
| Currently not available. | ||
Data powered by ATTOM Data Solutions. Copyright© 2026. Information deemed reliable but not guaranteed.
Schools
Schools nearby 408 21st Street SE
| Schools in attendance boundaries | Grades | Distance | Rating |
|---|---|---|---|
| Loading... | |||
| Schools nearby | Grades | Distance | Rating |
|---|---|---|---|
| Loading... | |||
Data powered by ATTOM Data Solutions. Copyright© 2026. Information deemed reliable but not guaranteed.
The schools shown represent both the assigned schools and schools by distance based on local school and district attendance boundaries. Attendance boundaries change based on various factors and proximity does not guarantee enrollment eligibility. Please consult your real estate agent and/or the school district to confirm the schools this property is zoned to attend. Information is deemed reliable but not guaranteed.
SchoolDigger ® Rating
The SchoolDigger rating system is a 1-5 scale with 5 as the highest rating. SchoolDigger ranks schools based on test scores supplied by each state's Department of Education. They calculate an average standard score by normalizing and averaging each school's test scores across all tests and grades.
Coming soon properties will soon be on the market, but are not yet available for showings.