40832 River Road Dade City, FL 33525
For Sale MLS# TB8430139
4 beds 2 baths 1,824 sq ft Single Family
Details for 40832 River Road
MLS# TB8430139
Description for 40832 River Road, Dade City, FL, 33525
Experience peaceful country living with this spacious 4 bedroom, 2 bath home situated on 3.2 acres in beautiful Dade City. Offering a blend of timeless charm and practical updates, this property is perfect for those seeking space, character, and functionality. Step inside to a warm and inviting interior featuring a kitchen with granite countertops and elegant Italian marble flooring. Both bathrooms are finished with granite and marble as well, creating a polished, luxurious feel. The living and bedroom areas showcase wood laminate flooring, while the ceilings have been finished with polished tongue-and-groove pine for rustic sophistication. A versatile bonus room adds extra living space and features a custom sliding barn door crafted from 100-year-old Cypress wood—a true centerpiece that speaks to the home’s craftsmanship and history. Additional highlights include a long-lasting metal roof and a 1-car carport for covered parking. Outdoors, the property features three outbuildings—a pole barn, a wooden shed with potential workshop setup, and a storage trailer—offering ample space for hobbies, equipment, and storage. The acreage provides room to spread out, garden, or simply enjoy the privacy of country living. Located just a short bike ride from the Withlacoochee State Trail and River, you’ll have access to miles of biking paths, hiking, and kayaking right at your fingertips. With thoughtful upgrades, unique Cypress details, and expansive land, this home is a rare find that combines modern comfort with country lifestyle.
Listing Information
Property Type: Residential, Single Family Residence
Status: Active
Bedrooms: 4
Bathrooms: 2
Lot Size: 3.20 Acres
Square Feet: 1,824 sq ft
Year Built: 1950
Stories: 1 Story
Construction: Stucco
Subdivision: Acreage
Foundation: Block
County: Pasco
School Information
Elementary: Pasco Elementary School-Po
Middle: Centennial Middle-Po
High: Pasco High-Po
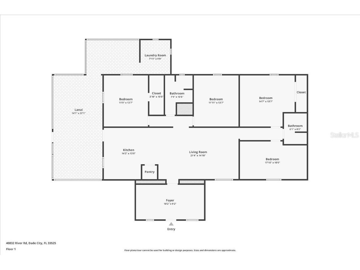
Room Information
Main Floor
Living Room: 14x21
Kitchen: 13x14
Primary Bedroom: 10x17
Bedroom 4: 13x14
Bedroom 3: 13x11
Bedroom 2: 13x11
Bathrooms
Full Baths: 2
Additonal Room Information
Laundry: Other
Interior Features
Appliances: Range, Refrigerator, Microwave
Flooring: Wood
Additional Interior Features: Open Floorplan
Utilities
Water: Well
Sewer: Septic Tank
Other Utilities: Municipal Utilities
Cooling: Central Air
Heating: Central
Exterior / Lot Features
Roof: Metal
Additional Exterior/Lot Features: Storage
Out Buildings: Shed(s)
Driving Directions
From I-75, take Exit 285 for FL-52 East toward Dade City. Continue on FL-52 E for about 8 miles into downtown Dade City. Turn left onto US-98 Bypass/US-301 Truck Route and follow for about 1 mile. Turn right onto River Road. Continue on River Road for approximately 1.5 miles. The home at 40832 River Road will be on your right.
Financial Considerations
Terms: Cash,Conventional,FHA,VA Loan
Tax/Property ID: 22-24-31-000.0-004.00-000.0
Tax Amount: 4362.07
Tax Year: 2024
A broker reciprocity listing courtesy: KELLER WILLIAMS SUBURBAN TAMPA
Based on information provided by Stellar MLS as distributed by the MLS GRID. Information from the Internet Data Exchange is provided exclusively for consumers’ personal, non-commercial use, and such information may not be used for any purpose other than to identify prospective properties consumers may be interested in purchasing. This data is deemed reliable but is not guaranteed to be accurate by Edina Realty, Inc., or by the MLS. Edina Realty, Inc., is not a multiple listing service (MLS), nor does it offer MLS access.
Copyright 2026 Stellar MLS as distributed by the MLS GRID. All Rights Reserved.
Payment Calculator
Interest rate and annual percentage rate (APR) are based on current market conditions, are for informational purposes only, are subject to change without notice and may be subject to pricing add-ons related to property type, loan amount, loan-to-value, credit score and other variables. Estimated closing costs used in the APR calculation are assumed to be paid by the borrower at closing. If the closing costs are financed, the loan, APR and payment amounts will be higher. If the down payment is less than 20%, mortgage insurance may be required and could increase the monthly payment and APR. Contact us for details. Additional loan programs may be available. Accuracy is not guaranteed, and all products may not be available in all borrower's geographical areas and are based on their individual situation. This is not a credit decision or a commitment to lend.
Sales History & Tax Summary for 40832 River Road
Sales History
| Date | Price | |
|---|---|---|
| Currently not available. | ||
Tax Summary
| Tax Year | Estimated Market Value | Total Tax |
|---|---|---|
| Currently not available. | ||
Data powered by ATTOM Data Solutions. Copyright© 2026. Information deemed reliable but not guaranteed.
Schools
Schools nearby 40832 River Road
| Schools in attendance boundaries | Grades | Distance | Rating |
|---|---|---|---|
| Loading... | |||
| Schools nearby | Grades | Distance | Rating |
|---|---|---|---|
| Loading... | |||
Data powered by ATTOM Data Solutions. Copyright© 2026. Information deemed reliable but not guaranteed.
The schools shown represent both the assigned schools and schools by distance based on local school and district attendance boundaries. Attendance boundaries change based on various factors and proximity does not guarantee enrollment eligibility. Please consult your real estate agent and/or the school district to confirm the schools this property is zoned to attend. Information is deemed reliable but not guaranteed.
SchoolDigger ® Rating
The SchoolDigger rating system is a 1-5 scale with 5 as the highest rating. SchoolDigger ranks schools based on test scores supplied by each state's Department of Education. They calculate an average standard score by normalizing and averaging each school's test scores across all tests and grades.
Coming soon properties will soon be on the market, but are not yet available for showings.