$479,900
Off-Market Date: 01/19/20264105 W Oakellar Avenue Tampa, FL 33611
Pending MLS# TB8451385
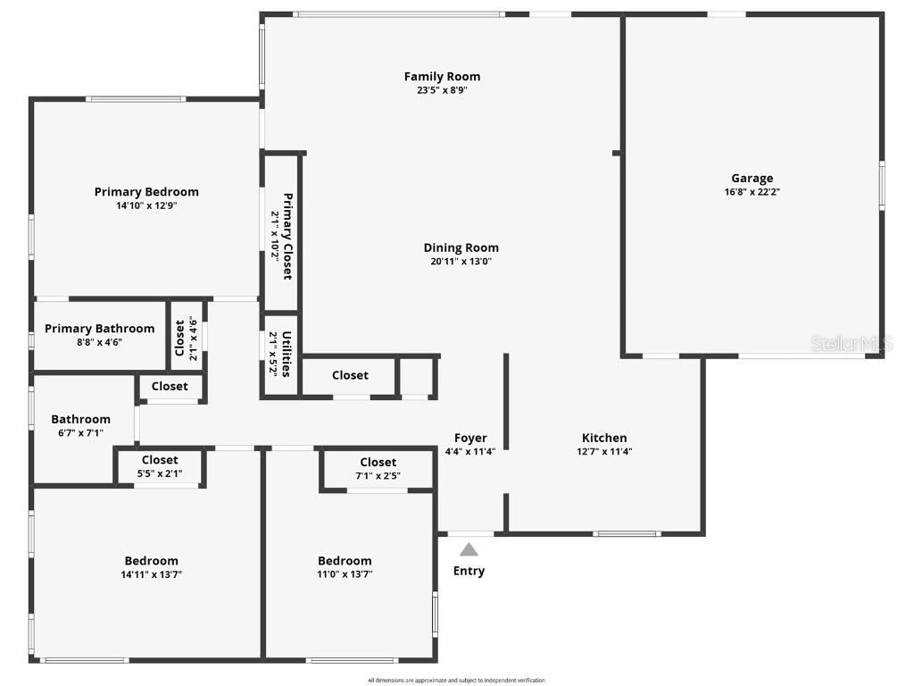
3 beds 2 baths 1,556 sq ft Single Family
Details for 4105 W Oakellar Avenue
MLS# TB8451385
Description for 4105 W Oakellar Avenue, Tampa, FL, 33611
Come see this recently renovated 3 bed, 2 bath home in an amazing location! You'll love the OPEN FLOOR PLAN and with new LVP FLOORING, REMODELED BATHROOMS, TRIM WORK and INTERIOR PAINT, you can MOVE RIGHT IN and start enjoying this home immediately! The sellers have also replaced the ELECTRICAL WIRING! Off the kitchen you'll find the dining, living and family areas with plenty of room for entertaining guests and relaxing. Now is the perfect time of year to go outside and enjoy the SPACIOUS BACKYARD! Keeping an eye on pets or little ones is easy with large windows giving direct backyard views while the concrete patio provides plenty of space to pull out the grill or sit around a fire pit. Storage space is premium in Florida and the 1 car garage not only has room for your car but it also has extra room for storage racks or shelving. NO HOA to worry about here! You'll love the location of this home! Publix is a 1/2 mile away, TIA is 15-20 minutes, the Gandy Boat Ramp and Westshore Marina District are just 2 miles, MacDill AFB is 15 minutes and you can hop on the Gandy Bridge and be on your way to the beach in no time!
Listing Information
Property Type: Residential, Single Family Residence
Status: Pending
Bedrooms: 3
Bathrooms: 2
Lot Size: 0.20 Acres
Square Feet: 1,556 sq ft
Year Built: 1955
Garage: Yes
Stories: 1 Story
Construction: Block,Stucco
Subdivision: Manhattan Manor 3
Foundation: Slab
County: Hillsborough
School Information
Elementary: Anderson-Hb
Middle: Madison-Hb
High: Robinson-Hb
Room Information
Main Floor
Great Room:
Primary Bedroom:
Kitchen:
Bathrooms
Full Baths: 2
Additonal Room Information
Laundry: In Garage
Interior Features
Appliances: Microwave, Dishwasher, Range, Refrigerator
Flooring: Ceramic Tile,Luxury Vinyl
Additional Interior Features: Ceiling Fan(s), Built-in Features, Solid Surface Counters, Wood Cabinets
Utilities
Water: Public
Sewer: Public Sewer
Other Utilities: Municipal Utilities
Cooling: Ceiling Fan(s), Central Air
Heating: Electric
Exterior / Lot Features
Attached Garage: Attached Garage
Garage Spaces: 1
Roof: Shingle
Lot Dimensions: 79x110
Driving Directions
From W Gandy and S Dale Mabry, go west 1/2 mile and turn right on S Clark. Turn left on W Oakellar. Home will be on the right.
Financial Considerations
Terms: Cash,Conventional,FHA,VA Loan
Tax/Property ID: A-04-30-18-3WX-000010-00008.0
Tax Amount: 1815.94
Tax Year: 2024
A broker reciprocity listing courtesy: COASTAL PROPERTIES GROUP INTER
Based on information provided by Stellar MLS as distributed by the MLS GRID. Information from the Internet Data Exchange is provided exclusively for consumers’ personal, non-commercial use, and such information may not be used for any purpose other than to identify prospective properties consumers may be interested in purchasing. This data is deemed reliable but is not guaranteed to be accurate by Edina Realty, Inc., or by the MLS. Edina Realty, Inc., is not a multiple listing service (MLS), nor does it offer MLS access.
Copyright 2026 Stellar MLS as distributed by the MLS GRID. All Rights Reserved.
Sales History & Tax Summary for 4105 W Oakellar Avenue
Sales History
| Date | Price | |
|---|---|---|
| Currently not available. | ||
Tax Summary
| Tax Year | Estimated Market Value | Total Tax |
|---|---|---|
| Currently not available. | ||
Data powered by ATTOM Data Solutions. Copyright© 2026. Information deemed reliable but not guaranteed.
Schools
Schools nearby 4105 W Oakellar Avenue
| Schools in attendance boundaries | Grades | Distance | Rating |
|---|---|---|---|
| Loading... | |||
| Schools nearby | Grades | Distance | Rating |
|---|---|---|---|
| Loading... | |||
Data powered by ATTOM Data Solutions. Copyright© 2026. Information deemed reliable but not guaranteed.
The schools shown represent both the assigned schools and schools by distance based on local school and district attendance boundaries. Attendance boundaries change based on various factors and proximity does not guarantee enrollment eligibility. Please consult your real estate agent and/or the school district to confirm the schools this property is zoned to attend. Information is deemed reliable but not guaranteed.
SchoolDigger ® Rating
The SchoolDigger rating system is a 1-5 scale with 5 as the highest rating. SchoolDigger ranks schools based on test scores supplied by each state's Department of Education. They calculate an average standard score by normalizing and averaging each school's test scores across all tests and grades.
Coming soon properties will soon be on the market, but are not yet available for showings.