4116 SW 20th Street Ocala, FL 34474
For Sale MLS# O6315653
3 beds 2 baths 1,516 sq ft Single Family
Details for 4116 SW 20th Street
MLS# O6315653
Description for 4116 SW 20th Street, Ocala, FL, 34474
Live just 10 minutes from the World Equestrian Center! Your Ocala dream home awaits! This move-in-ready 3 bedroom, 2 bath has been completely refreshed. With no HOA and an oversized yard perfect for gatherings or your future garden, this property offers both freedom and style. Conveniently located near highways, shopping, dining, and all things equestrian, this is the one you’ve been waiting for. Motivated seller!
Listing Information
Property Type: Residential, Single Family Residence
Status: Active
Bedrooms: 3
Bathrooms: 2
Lot Size: 0.32 Acres
Square Feet: 1,516 sq ft
Year Built: 1968
Stories: 1 Story
Construction: Block,Concrete
Subdivision: Meadow Oaks Un 02
Foundation: Concrete Perimeter
County: Marion
School Information
Elementary: College Park Elementary School
Middle: Liberty Middle School
High: West Port High School
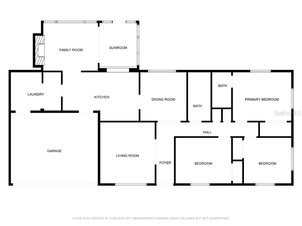
Room Information
Main Floor
Living Room:
Kitchen:
Dining Room:
Bedroom 3: 10x11
Bedroom 2: 12x13
Primary Bedroom: 14x15
Bathrooms
Full Baths: 2
Additonal Room Information
Laundry: Inside
Interior Features
Appliances: Electric Water Heater, Cooktop, Range
Flooring: Carpet,Luxury Vinyl
Fireplaces: Wood Burning
Additional Interior Features: Ceiling Fan(s), Main Level Primary
Utilities
Water: Well
Sewer: Septic Tank
Other Utilities: Cable Available,Electricity Available,Other
Cooling: Ceiling Fan(s), Central Air
Heating: Electric
Exterior / Lot Features
Roof: Shingle
Lot Dimensions: 140x100
Additional Exterior/Lot Features: Other
Driving Directions
Turn right onto SW 38th Ave,Turn right to stay on SW 38th Ave,Turn left onto SW 20th St,Make a U-turn at SW 42nd Ave,House will be on the right
Financial Considerations
Terms: Cash,Conventional,FHA,VA Loan
Tax/Property ID: 2334-007-001
Tax Amount: 2631.29
Tax Year: 2023
A broker reciprocity listing courtesy: KELLER WILLIAMS ADVANTAGE III
Based on information provided by Stellar MLS as distributed by the MLS GRID. Information from the Internet Data Exchange is provided exclusively for consumers’ personal, non-commercial use, and such information may not be used for any purpose other than to identify prospective properties consumers may be interested in purchasing. This data is deemed reliable but is not guaranteed to be accurate by Edina Realty, Inc., or by the MLS. Edina Realty, Inc., is not a multiple listing service (MLS), nor does it offer MLS access.
Copyright 2025 Stellar MLS as distributed by the MLS GRID. All Rights Reserved.
Payment Calculator
Interest rate and annual percentage rate (APR) are based on current market conditions, are for informational purposes only, are subject to change without notice and may be subject to pricing add-ons related to property type, loan amount, loan-to-value, credit score and other variables. Estimated closing costs used in the APR calculation are assumed to be paid by the borrower at closing. If the closing costs are financed, the loan, APR and payment amounts will be higher. If the down payment is less than 20%, mortgage insurance may be required and could increase the monthly payment and APR. Contact us for details. Additional loan programs may be available. Accuracy is not guaranteed, and all products may not be available in all borrower's geographical areas and are based on their individual situation. This is not a credit decision or a commitment to lend.
Sales History & Tax Summary for 4116 SW 20th Street
Sales History
| Date | Price | Change |
|---|---|---|
| Currently not available. | ||
Tax Summary
| Tax Year | Estimated Market Value | Total Tax |
|---|---|---|
| Currently not available. | ||
Data powered by ATTOM Data Solutions. Copyright© 2025. Information deemed reliable but not guaranteed.
Schools
Schools nearby 4116 SW 20th Street
| Schools in attendance boundaries | Grades | Distance | Rating |
|---|---|---|---|
| Loading... | |||
| Schools nearby | Grades | Distance | Rating |
|---|---|---|---|
| Loading... | |||
Data powered by ATTOM Data Solutions. Copyright© 2025. Information deemed reliable but not guaranteed.
The schools shown represent both the assigned schools and schools by distance based on local school and district attendance boundaries. Attendance boundaries change based on various factors and proximity does not guarantee enrollment eligibility. Please consult your real estate agent and/or the school district to confirm the schools this property is zoned to attend. Information is deemed reliable but not guaranteed.
SchoolDigger ® Rating
The SchoolDigger rating system is a 1-5 scale with 5 as the highest rating. SchoolDigger ranks schools based on test scores supplied by each state's Department of Education. They calculate an average standard score by normalizing and averaging each school's test scores across all tests and grades.
Coming soon properties will soon be on the market, but are not yet available for showings.