$549,900
Off-Market Date: 03/10/2026417 Rice Lake Road Somerset, WI 54025
Pending MLS# 6816237
3 beds 3 baths 3,252 sq ft Single Family
Details for 417 Rice Lake Road
MLS# 6816237
Description for 417 Rice Lake Road, Somerset, WI, 54025
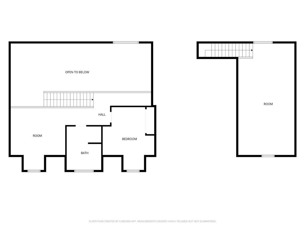
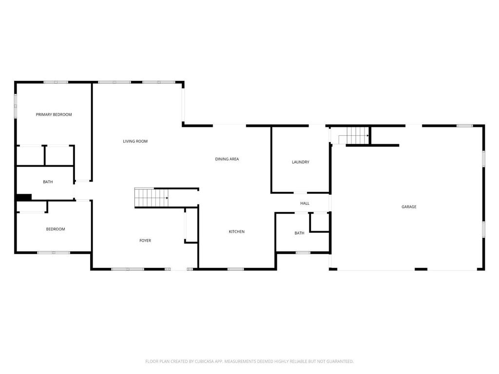
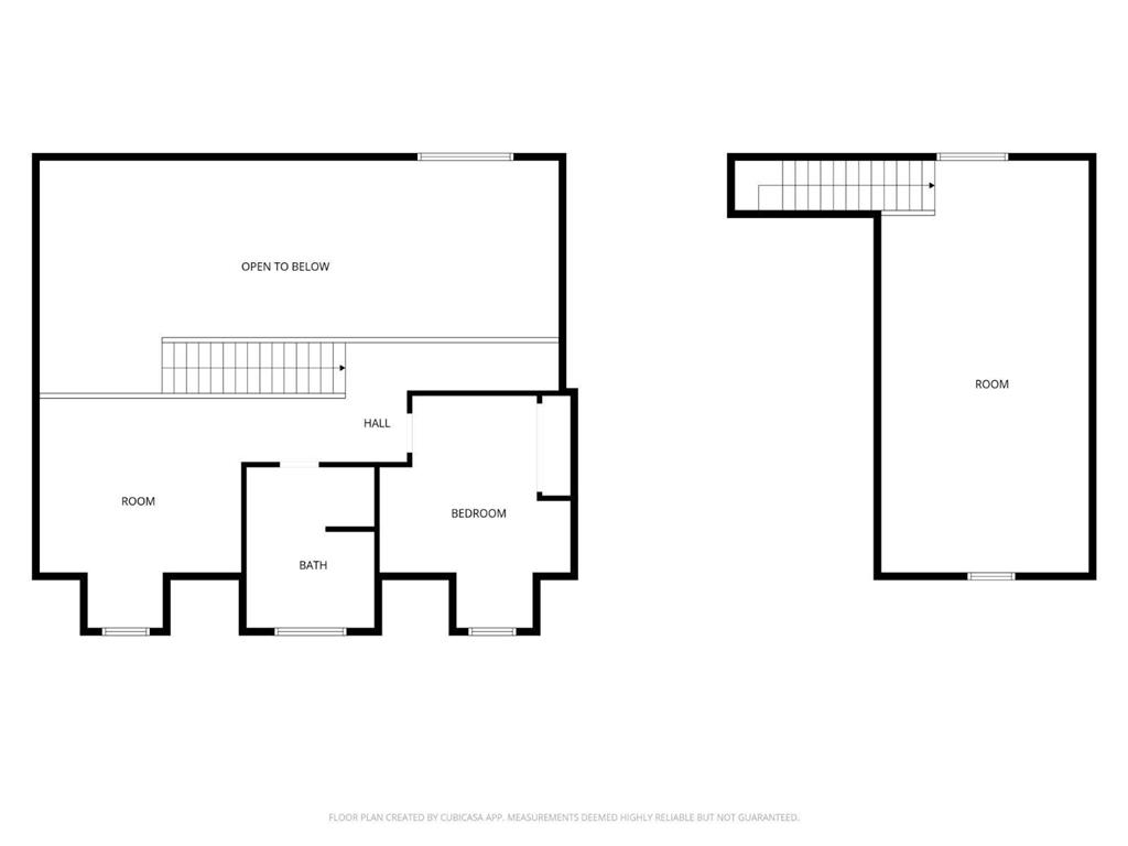
Welcome to this beautiful country retreat, perfectly set on 3.25 private acres with no neighbors in sight. Step through the front door and you’ll be greeted by a cozy living room that flows seamlessly into a spacious family room featuring vaulted ceilings and an abundance of natural light. Adjacent to the family room is a dining area and a large kitchen with plenty of cupboard space—ideal for cooking, entertaining, and everyday living. Down the hall, you’ll find two comfortable main-floor bedrooms, a full bath, and convenient main-level laundry. The upper level offers a peaceful retreat with a bedroom, bathroom, and a charming loft area that could serve as an office, flex space, or even be converted into an additional bedroom. This home is built on a slab and features in-floor heating, a furnace, and an impressive 400-amp service. The attached three-car finished garage also includes in-floor heating and a large finished bonus room above—perfect for a hobby space, office, or guest suite. Surrounded by serene countryside views, this property offers privacy, comfort, and plenty of room to enjoy the quiet of country living.
Listing Information
Property Type: Residential, Single Family
Status: Pending
Bedrooms: 3
Bathrooms: 3
Lot Size: 3.25 Acres
Square Feet: 3,252 sq ft
Year Built: 2002
Foundation: 2,176 sq ft
Garage: Yes
Stories: 1.5 Stories
County: St. Croix
Days On Market: 118
Construction Status: Previously Owned
School Information
District: 5432 - Somerset
Room Information
Main Floor
Bedroom 1: 14x15
Bedroom 2: 12x15
Dining Room: 17x13
Family Room: 18x26
Kitchen: 12x15
Laundry: 11x13
Living Room: 12x21
Upper Floor
Bedroom 3: 13x16
Bonus Room: 16x30
Loft: 14x16
Bathrooms
Full Baths: 1
3/4 Baths: 1
1/2 Baths: 1
Additonal Room Information
Laundry: Main Level
Bath Description: Main Floor 1/2 Bath,Main Floor Full Bath,Upper Level 3/4 Bath
Interior Features
Square Footage above: 3,252 sq ft
Appliances: Microwave, Range, Refrigerator, Dryer, Dishwasher, Washer
Additional Interior Features: Vaulted Ceiling(s), Natural Woodwork, Ceiling Fan(s), Washer/Dryer Hookup, Kitchen Window, Kitchen Center Island
Utilities
Water: Well, Private
Sewer: Private
Cooling: Central
Heating: Propane, Forced Air, In-Floor Heating
Exterior / Lot Features
Attached Garage: Attached Garage
Garage Spaces: 3
Parking Description: Attached Garage, Garage Dimensions - 35x29, Garage Sq Ft - 1015.
Exterior: Vinyl
Lot Dimensions: Country LOt
Zoning: Residential-Single Family
Driving Directions
North on Hwy 35 to East on 220th Ave, continue West on Cty Rd I to North on 50th Street to Rice Lake Road to property
Financial Considerations
Tax/Property ID: 032102395200
Tax Amount: 4531
Tax Year: 2024
HomeStead Description: Homesteaded
A broker reciprocity listing courtesy: WESTconsin Realty LLC
The data relating to real estate for sale on this web site comes in part from the Broker Reciprocity℠ Program of the Regional Multiple Listing Service of Minnesota, Inc. Real estate listings held by brokerage firms other than Edina Realty, Inc. are marked with the Broker Reciprocity℠ logo or the Broker Reciprocity℠ thumbnail and detailed information about them includes the name of the listing brokers. Edina Realty, Inc. is not a Multiple Listing Service (MLS), nor does it offer MLS access. This website is a service of Edina Realty, Inc., a broker Participant of the Regional Multiple Listing Service of Minnesota, Inc. IDX information is provided exclusively for consumers personal, non-commercial use and may not be used for any purpose other than to identify prospective properties consumers may be interested in purchasing. Open House information is subject to change without notice. Information deemed reliable but not guaranteed.
Copyright 2026 Regional Multiple Listing Service of Minnesota, Inc. All Rights Reserved.
Sales History & Tax Summary for 417 Rice Lake Road
Sales History
| Date | Price | |
|---|---|---|
| Currently not available. | ||
Tax Summary
| Tax Year | Estimated Market Value | Total Tax |
|---|---|---|
| Currently not available. | ||
Data powered by ATTOM Data Solutions. Copyright© 2026. Information deemed reliable but not guaranteed.
Schools
Schools nearby 417 Rice Lake Road
| Schools in attendance boundaries | Grades | Distance | Rating |
|---|---|---|---|
| Loading... | |||
| Schools nearby | Grades | Distance | Rating |
|---|---|---|---|
| Loading... | |||
Data powered by ATTOM Data Solutions. Copyright© 2026. Information deemed reliable but not guaranteed.
The schools shown represent both the assigned schools and schools by distance based on local school and district attendance boundaries. Attendance boundaries change based on various factors and proximity does not guarantee enrollment eligibility. Please consult your real estate agent and/or the school district to confirm the schools this property is zoned to attend. Information is deemed reliable but not guaranteed.
SchoolDigger ® Rating
The SchoolDigger rating system is a 1-5 scale with 5 as the highest rating. SchoolDigger ranks schools based on test scores supplied by each state's Department of Education. They calculate an average standard score by normalizing and averaging each school's test scores across all tests and grades.
Coming soon properties will soon be on the market, but are not yet available for showings.