$459,000
420 Glenwood Road Deland, FL 32720
For Sale MLS# V4946063
2 beds 2 baths 1,506 sq ft Single Family
Details for 420 Glenwood Road
MLS# V4946063
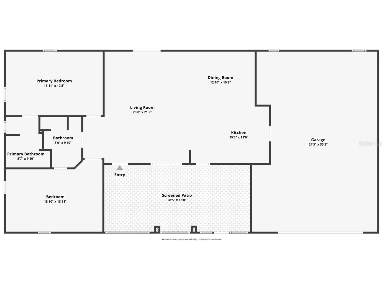
Description for 420 Glenwood Road, Deland, FL, 32720
Set on a spacious 3.10-acre parcel with no HOA, this 2-bedroom, 2-bath home offers privacy, flexibility, and plenty of room to spread out. The land provides space to park large equipment, use the powered pole barn for projects, bring horses, start a garden, or simply enjoy more open space around you. A fully screened, large front porch welcomes you before you enter the home, giving you a quiet, comfortable outdoor sitting area. Inside, the foyer leads into a living room that features a stand-alone wood-burning fireplace and direct entry to the second bathroom, which also connects to Bedroom 2. The kitchen includes a high-end gas Wolf range, island with generous workspace, with plenty of opportunity for a buyer to customize or expand. The primary bedroom features a wheelchair-accessible bathroom, and the wider doorways throughout the majority of the home adds to overall accessibility. The bedrooms were designed without built-in closets to create more maneuverability, though there is ample room for a buyer to add closet systems if desired. The oversized 2-car garage is attached to the home, offering convenient access, additional storage space, and room for larger vehicles or equipment. Outside, the property also includes a pole barn with electricity, a small stable, and a wooden shed. A whole-home generator and two buried propane tanks (one owned, one rented) support gas appliances including the stove, dryer, water heater, range, and generator. Washer and dryer convey. Roof replaced in 2023; gas water heater replaced in 2016. Owners are also selling the neighboring property at 378 Glenwood Rd (MLS V4946064). The two parcels touch and share a legal easement, creating an excellent setup for buyers needing connected properties, multigenerational living space, or combined uses. Located minutes from shopping centers, restaurants, grocery stores, and award winning Downtown DeLand and Stetson University.
Listing Information
Property Type: Residential, Single Family Residence
Status: Active
Bedrooms: 2
Bathrooms: 2
Lot Size: 3.10 Acres
Square Feet: 1,506 sq ft
Year Built: 2004
Garage: Yes
Stories: 1 Story
Construction: Concrete
Subdivision: N/A
Foundation: Slab
County: Volusia
Room Information
Main Floor
Living Room: 21.5x12.5
Kitchen: 15.5x10.5
Bedroom 2: 19x12.5
Primary Bedroom: 19x12.5
Bathrooms
Full Baths: 2
Additonal Room Information
Laundry: In Garage
Interior Features
Appliances: Gas Water Heater, Range Hood, Range, Refrigerator, Washer, Cooktop, Dishwasher, Dryer, Convection Oven, Exhaust Fan
Flooring: Porcelain Tile
Doors/Windows: Blinds, Double Pane Windows, Window Treatments
Fireplaces: Free Standing, Living Room, Wood Burning
Accessibility: Accessibility Features, Accessible Doors, Accessible Full Bath
Additional Interior Features: Ceiling Fan(s), Window Treatments, Main Level Primary, Eat-In Kitchen, Open Floorplan
Utilities
Water: Public
Sewer: Septic Tank
Other Utilities: Cable Available,Electricity Connected,High Speed Internet Available,Water Connected
Cooling: Ceiling Fan(s), Central Air
Heating: Central
Exterior / Lot Features
Attached Garage: Attached Garage
Garage Spaces: 2
Parking Description: Oversized, Workshop in Garage
Roof: Shingle
Fencing: fenced
Additional Exterior/Lot Features: Sprinkler/Irrigation, Rain Gutters, Storm/Security Shutters, French Patio Doors, Lighting, Screened, Patio, Front Porch, Cleared, Outside City Limits
Out Buildings: Shed(s), Barn(s)
Community Features
Community Features: Street Lights
Security Features: Closed Circuit Camera(s)
Driving Directions
Head NORTH on US-17 N/N Woodland Blvd, Turn left onto Glenwood Rd, turn right at 2 black mailboxes on dirt road and drive through gate. Property is on your right.
Financial Considerations
Terms: Cash,Conventional,FHA,VA Loan
Tax/Property ID: 6029-00-00-0361
Tax Amount: 6209.34
Tax Year: 2024
A broker reciprocity listing courtesy: SWANN REAL ESTATE INC
Based on information provided by Stellar MLS as distributed by the MLS GRID. Information from the Internet Data Exchange is provided exclusively for consumers’ personal, non-commercial use, and such information may not be used for any purpose other than to identify prospective properties consumers may be interested in purchasing. This data is deemed reliable but is not guaranteed to be accurate by Edina Realty, Inc., or by the MLS. Edina Realty, Inc., is not a multiple listing service (MLS), nor does it offer MLS access.
Copyright 2025 Stellar MLS as distributed by the MLS GRID. All Rights Reserved.
Payment Calculator
Interest rate and annual percentage rate (APR) are based on current market conditions, are for informational purposes only, are subject to change without notice and may be subject to pricing add-ons related to property type, loan amount, loan-to-value, credit score and other variables. Estimated closing costs used in the APR calculation are assumed to be paid by the borrower at closing. If the closing costs are financed, the loan, APR and payment amounts will be higher. If the down payment is less than 20%, mortgage insurance may be required and could increase the monthly payment and APR. Contact us for details. Additional loan programs may be available. Accuracy is not guaranteed, and all products may not be available in all borrower's geographical areas and are based on their individual situation. This is not a credit decision or a commitment to lend.
Sales History & Tax Summary for 420 Glenwood Road
Sales History
| Date | Price | Change |
|---|---|---|
| Currently not available. | ||
Tax Summary
| Tax Year | Estimated Market Value | Total Tax |
|---|---|---|
| Currently not available. | ||
Data powered by ATTOM Data Solutions. Copyright© 2025. Information deemed reliable but not guaranteed.
Schools
Schools nearby 420 Glenwood Road
| Schools in attendance boundaries | Grades | Distance | Rating |
|---|---|---|---|
| Loading... | |||
| Schools nearby | Grades | Distance | Rating |
|---|---|---|---|
| Loading... | |||
Data powered by ATTOM Data Solutions. Copyright© 2025. Information deemed reliable but not guaranteed.
The schools shown represent both the assigned schools and schools by distance based on local school and district attendance boundaries. Attendance boundaries change based on various factors and proximity does not guarantee enrollment eligibility. Please consult your real estate agent and/or the school district to confirm the schools this property is zoned to attend. Information is deemed reliable but not guaranteed.
SchoolDigger ® Rating
The SchoolDigger rating system is a 1-5 scale with 5 as the highest rating. SchoolDigger ranks schools based on test scores supplied by each state's Department of Education. They calculate an average standard score by normalizing and averaging each school's test scores across all tests and grades.
Coming soon properties will soon be on the market, but are not yet available for showings.