$259,900
420 Monk Court Chanhassen, MN 55317
For Sale MLS# 7025169
2 beds 2 baths 1,234 sq ft Townhouse/Twinhome
Details for 420 Monk Court
MLS# 7025169
Description for 420 Monk Court, Chanhassen, MN, 55317
Tucked away on a quiet dead-end street, this beautifully maintained 2-bedroom, 2-bath townhome offers the perfect blend of comfort, convenience, and natural beauty. Step inside to an airy, open-concept layout featuring soaring vaulted ceilings and abundant natural light. The spacious living room centers around a striking fireplace that adds warmth and character to the heart of the home.The kitchen and dining area flow seamlessly together, creating an ideal space for everyday living or hosting friends. Large windows frame serene views of the pond just beyond your backyard—where seasonal colors provide a peaceful backdrop all year long. Whether you’re enjoying your morning coffee on the patio or unwinding indoors, this home is designed for relaxation.Located within the highly sought-after Chanhassen School District, this property is a rare find for families and professionals alike. Parks, trails, and local amenities are all within easy reach, offering a lifestyle that balances convenience with natural beauty.Just minutes away, the renowned Minnesota Landscape Arboretum invites you to explore more than 1,100 acres of gardens, wooded trails, and scenic sculpturescapes. From vibrant seasonal blooms to the iconic Three-Mile Walk, it’s a beloved destination for nature lovers and families.With low-maintenance living and a location that truly delivers, this stylish townhome makes it easy to live well—whether you’re enjoying a quiet evening in or exploring the vibrant community just outside your door. Home is vacant, quick close possible.
Listing Information
Property Type: Residential, Side by Side
Status: Active
Bedrooms: 2
Bathrooms: 2
Lot Size: 0.02 Acres
Square Feet: 1,234 sq ft
Year Built: 1995
Foundation: 1,234 sq ft
Garage: Yes
Stories: 2 Stories
Property Attached: Yes
Subdivision: Mission Hills Villas Cic #8
County: Carver
Days On Market: 15
Construction Status: Previously Owned
School Information
District: 112 - Eastern Carver County Schools
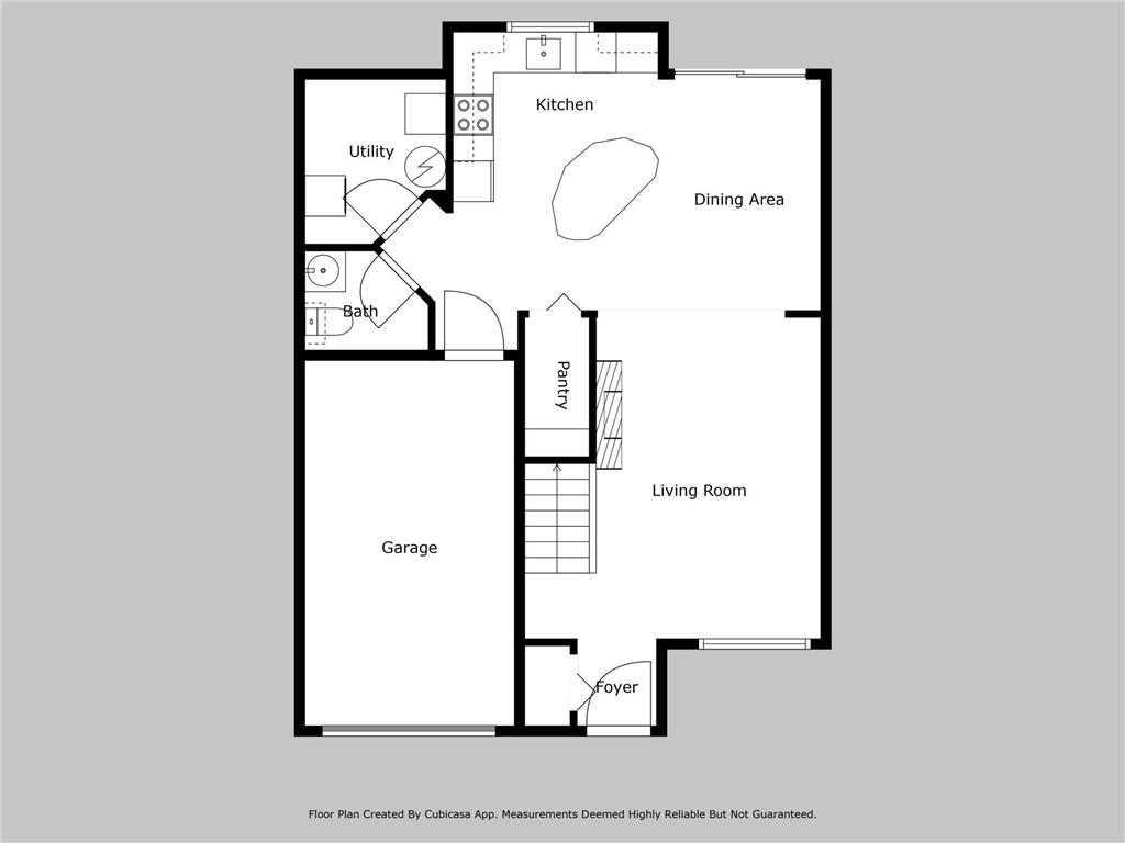
Room Information
Main Floor
Dining Room: 11x11
Kitchen: 10x11
Living Room: 15x11
Upper Floor
Bedroom 1: 16x16
Bedroom 2: 12x10
Bathrooms
Full Baths: 1
3/4 Baths: 1
Additonal Room Information
Dining: Kitchen/Dining Room
Bath Description: Bathroom Ensuite,Jetted Tub,Main Floor 1/2 Bath,Primary Walk-Thru,Upper Level Full Bath,Walk-In Shower Stall
Interior Features
Square Footage above: 1,234 sq ft
Appliances: Water Softener - Owned, Gas Water Heater, Dryer, Dishwasher, Disposal, Microwave, Range, Refrigerator
Fireplaces: 1, Living Room
Additional Interior Features: Kitchen Window, Kitchen Center Island, Tile Floors, Main Floor Laundry, Washer/Dryer Hookup, Vaulted Ceiling(s)
Utilities
Water: City Water/Connected
Sewer: City Sewer/Connected
Cooling: Central
Heating: Fireplace, Forced Air, Natural Gas, Humidifier
Exterior / Lot Features
Attached Garage: Attached Garage
Garage Spaces: 1
Parking Description: Finished Garage, Guest Parking, Insulated Garage, Garage Door Opener, Driveway - Asphalt, Attached Garage, Garage Sq Ft - 179.0
Exterior: Vinyl, Brick Veneer
Roof: Age 8 Years or Less, Asphalt Shingles, Pitched
Lot Dimensions: 27x34x26x28
Zoning: Residential-Single Family
Additional Exterior/Lot Features: Deck, Not Applicable, In-Ground Sprinkler, Tree Coverage - Heavy, Road Frontage - Private, Paved Streets, No Outlet/Dead End
Waterfront Details
Water Front Features: Pond
Community Features
HOA Dues Include: Sanitation, Snow Removal, Professional Mgmt, Hazard Insurance, Outside Maintenance, Building Exterior, Lawn Care, Water, Sewer
Pets Allowed: Yes
Homeowners Association: Yes
Association Name: Mission Hills Villas HOA
HOA Dues: $355 / Monthly
Driving Directions
Highway 5 West, to 101 South, to 86th St. West, Right on Mission Hills Way E., left on Monk Court, property will be on your left.
Financial Considerations
Other Annual Tax: $35
Covenants/Deed Restrictions: Mandatory Owners Assoc, Pets - Number Limit, Pets - Dogs Allowed, Pets - Cats Allowed
Tax/Property ID: 255321090
Tax Amount: 2409
Tax Year: 2025
HomeStead Description: Homesteaded
A broker reciprocity listing courtesy: Coldwell Banker Realty
The data relating to real estate for sale on this web site comes in part from the Broker Reciprocity℠ Program of the Regional Multiple Listing Service of Minnesota, Inc. Real estate listings held by brokerage firms other than Edina Realty, Inc. are marked with the Broker Reciprocity℠ logo or the Broker Reciprocity℠ thumbnail and detailed information about them includes the name of the listing brokers. Edina Realty, Inc. is not a Multiple Listing Service (MLS), nor does it offer MLS access. This website is a service of Edina Realty, Inc., a broker Participant of the Regional Multiple Listing Service of Minnesota, Inc. IDX information is provided exclusively for consumers personal, non-commercial use and may not be used for any purpose other than to identify prospective properties consumers may be interested in purchasing. Open House information is subject to change without notice. Information deemed reliable but not guaranteed.
Copyright 2026 Regional Multiple Listing Service of Minnesota, Inc. All Rights Reserved.
Payment Calculator
Interest rate and annual percentage rate (APR) are based on current market conditions, are for informational purposes only, are subject to change without notice and may be subject to pricing add-ons related to property type, loan amount, loan-to-value, credit score and other variables. Estimated closing costs used in the APR calculation are assumed to be paid by the borrower at closing. If the closing costs are financed, the loan, APR and payment amounts will be higher. If the down payment is less than 20%, mortgage insurance may be required and could increase the monthly payment and APR. Contact us for details. Additional loan programs may be available. Accuracy is not guaranteed, and all products may not be available in all borrower's geographical areas and are based on their individual situation. This is not a credit decision or a commitment to lend.
Sales History & Tax Summary for 420 Monk Court
Sales History
| Date | Price | |
|---|---|---|
| Currently not available. | ||
Tax Summary
| Tax Year | Estimated Market Value | Total Tax |
|---|---|---|
| Currently not available. | ||
Data powered by ATTOM Data Solutions. Copyright© 2026. Information deemed reliable but not guaranteed.
Schools
Schools nearby 420 Monk Court
| Schools in attendance boundaries | Grades | Distance | Rating |
|---|---|---|---|
| Loading... | |||
| Schools nearby | Grades | Distance | Rating |
|---|---|---|---|
| Loading... | |||
Data powered by ATTOM Data Solutions. Copyright© 2026. Information deemed reliable but not guaranteed.
The schools shown represent both the assigned schools and schools by distance based on local school and district attendance boundaries. Attendance boundaries change based on various factors and proximity does not guarantee enrollment eligibility. Please consult your real estate agent and/or the school district to confirm the schools this property is zoned to attend. Information is deemed reliable but not guaranteed.
SchoolDigger ® Rating
The SchoolDigger rating system is a 1-5 scale with 5 as the highest rating. SchoolDigger ranks schools based on test scores supplied by each state's Department of Education. They calculate an average standard score by normalizing and averaging each school's test scores across all tests and grades.
Coming soon properties will soon be on the market, but are not yet available for showings.