4209 SE 5th Street Ocala, FL 34471
For Sale MLS# OM711863
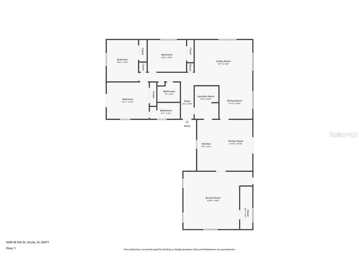
4 beds 2 baths 2,158 sq ft Single Family
Details for 4209 SE 5th Street
MLS# OM711863
Description for 4209 SE 5th Street, Ocala, FL, 34471
Located in one of Southeast Ocala's most sought-after neighborhoods, this charming home offers comfort, privacy, and plenty of space to enjoy Florida living at its best. The property is completely fenced large yard for the kiddos to run & play! The front yard is also fenced, with a black powder-coated aluminum fence that adds both elegance and security. Step into a home that's been thoughtfully updated with new engineered hardwood floors and new windows, bringing in natural light and style throughout. The lifetime metal roof was installed in 2013 and provides long-term peace of mind. Out back, you'll find your own private retreat. A sparkling inground pool and a covered pergola, perfect for entertaining family and friends or relaxing on a quiet evening. The property also includes two storage sheds and a dog kennel, offering extra functionality for all your needs. This home truly has it all. Desirable location, modern updates, and outdoor features that make every day feel like a getaway.
Listing Information
Property Type: Residential, Single Family Residence
Status: Active
Bedrooms: 4
Bathrooms: 2
Lot Size: 0.69 Acres
Square Feet: 2,158 sq ft
Year Built: 1972
Stories: 1 Story
Construction: Block
Construction Display: New Construction
Subdivision: Jo-Gene Estates
Foundation: Slab
County: Marion
Construction Status: New Construction
Room Information
Main Floor
Primary Bedroom:
Living Room:
Kitchen:
Bathrooms
Full Baths: 2
Additonal Room Information
Laundry: Laundry Room, Washer Hookup
Interior Features
Appliances: Microwave, Dishwasher, Dryer, Range, Refrigerator, Washer
Flooring: Engineered Hardwood
Doors/Windows: Blinds, Window Treatments, Drapes
Fireplaces: Masonry, Other, Wood Burning
Additional Interior Features: Window Treatments, Built-in Features, Living/Dining Room, Wood Cabinets
Utilities
Water: Public
Sewer: Public Sewer
Other Utilities: Electricity Connected,Sewer Connected
Cooling: Central Air
Heating: Electric, Central
Exterior / Lot Features
Roof: Metal
Pool: Gunite
Lot View: Pool
Lot Dimensions: 157x191
Fencing: fenced, Other, Chain Link
Additional Exterior/Lot Features: Other, Covered, Screened, Landscaped, Cleared
Out Buildings: Cabana, Shed(s)
Driving Directions
East on Ft. King St. Right on 43 Ave. Right on 5 St. To Home on Right.
Financial Considerations
Terms: Cash,Conventional,FHA,VA Loan
Tax/Property ID: 27789-002-00
Tax Amount: 2201.97
Tax Year: 2024
A broker reciprocity listing courtesy: COLDWELL REALTY SOLD GUARANTEE
Based on information provided by Stellar MLS as distributed by the MLS GRID. Information from the Internet Data Exchange is provided exclusively for consumers’ personal, non-commercial use, and such information may not be used for any purpose other than to identify prospective properties consumers may be interested in purchasing. This data is deemed reliable but is not guaranteed to be accurate by Edina Realty, Inc., or by the MLS. Edina Realty, Inc., is not a multiple listing service (MLS), nor does it offer MLS access.
Copyright 2026 Stellar MLS as distributed by the MLS GRID. All Rights Reserved.
Payment Calculator
Interest rate and annual percentage rate (APR) are based on current market conditions, are for informational purposes only, are subject to change without notice and may be subject to pricing add-ons related to property type, loan amount, loan-to-value, credit score and other variables. Estimated closing costs used in the APR calculation are assumed to be paid by the borrower at closing. If the closing costs are financed, the loan, APR and payment amounts will be higher. If the down payment is less than 20%, mortgage insurance may be required and could increase the monthly payment and APR. Contact us for details. Additional loan programs may be available. Accuracy is not guaranteed, and all products may not be available in all borrower's geographical areas and are based on their individual situation. This is not a credit decision or a commitment to lend.
Sales History & Tax Summary for 4209 SE 5th Street
Sales History
| Date | Price | |
|---|---|---|
| Currently not available. | ||
Tax Summary
| Tax Year | Estimated Market Value | Total Tax |
|---|---|---|
| Currently not available. | ||
Data powered by ATTOM Data Solutions. Copyright© 2026. Information deemed reliable but not guaranteed.
Schools
Schools nearby 4209 SE 5th Street
| Schools in attendance boundaries | Grades | Distance | Rating |
|---|---|---|---|
| Loading... | |||
| Schools nearby | Grades | Distance | Rating |
|---|---|---|---|
| Loading... | |||
Data powered by ATTOM Data Solutions. Copyright© 2026. Information deemed reliable but not guaranteed.
The schools shown represent both the assigned schools and schools by distance based on local school and district attendance boundaries. Attendance boundaries change based on various factors and proximity does not guarantee enrollment eligibility. Please consult your real estate agent and/or the school district to confirm the schools this property is zoned to attend. Information is deemed reliable but not guaranteed.
SchoolDigger ® Rating
The SchoolDigger rating system is a 1-5 scale with 5 as the highest rating. SchoolDigger ranks schools based on test scores supplied by each state's Department of Education. They calculate an average standard score by normalizing and averaging each school's test scores across all tests and grades.
Coming soon properties will soon be on the market, but are not yet available for showings.