$1,950,000
4215 E Lake Street Minneapolis, MN 55406
For Sale MLS# 6733677
Other
Details for 4215 E Lake Street
MLS# 6733677
Description for 4215 E Lake Street, Minneapolis, MN, 55406
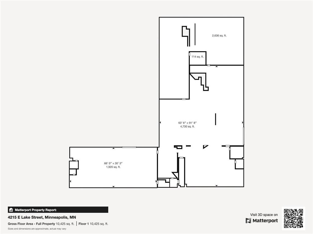
This is your opportunity to own a highly visible, corner lot (0.40 Acre) in the highly desired Longfellowneighborhood of Minneapolis! Just across the river from St. Paul, along Lake Street.With a CM2 - Corridor Mixed-use District, a variety of uses are possible; ranging from residentialredevelopment to a re-use of the existing 10,464 SF building. Current use is the longstanding HONDA TOWNretailer and service property with ample parking, dock & drive-in doors, plus open, high ceiling spaces.
Listing Information
Property Type: Commercial
Status: Active
Lot Size: 0.40 Acres
Square Feet: 10,464 sq ft
Year Built: 1950
Foundation: 10,464 sq ft
Garage: Yes
Stories: 1 Story
Subdivision: Riverview Add
Number Of Units Total: 1
Current Use: Other
County: Hennepin
Days On Market: 253
Construction Status: Previously Owned
School Information
District: 1 - Minneapolis
Interior Features
Appliances: Microwave, Refrigerator
Additional Interior Features: 220 Volt
Utilities
Water: City Water/Connected
Sewer: City Sewer/Connected
Other Utilities: Electric Common,Heating Common,Hot Water Common
Cooling: Window
Heating: Other, Natural Gas
Exterior / Lot Features
Garage Spaces: 3
Open Parking: 10
Parking Description: Heated Garage, Driveway - Shared, Parking Lot, Floor Drain, Multiple Garages, Garage Sq Ft - 600.0
Exterior: Wood, Block, Brick/Stone
Roof: Rubber, Flat, Age Over 8 Years
Lot Dimensions: 129x135
Zoning: Business/Commercial
Topography: Level
Additional Exterior/Lot Features: Overhead Doors, Loading Dock, Corner Lot, Tree Coverage - Light, Land Inclusions - Building, Road Frontage - City
Driving Directions
Lake Street, west of the river to property on south side.
Financial Considerations
Tax/Property ID: 0602823110025
Tax Amount: 33109
Tax Year: 2025
HomeStead Description: Non-Homesteaded
A broker reciprocity listing courtesy: Keller Williams Integrity Realty
The data relating to real estate for sale on this web site comes in part from the Broker Reciprocity℠ Program of the Regional Multiple Listing Service of Minnesota, Inc. Real estate listings held by brokerage firms other than Edina Realty, Inc. are marked with the Broker Reciprocity℠ logo or the Broker Reciprocity℠ thumbnail and detailed information about them includes the name of the listing brokers. Edina Realty, Inc. is not a Multiple Listing Service (MLS), nor does it offer MLS access. This website is a service of Edina Realty, Inc., a broker Participant of the Regional Multiple Listing Service of Minnesota, Inc. IDX information is provided exclusively for consumers personal, non-commercial use and may not be used for any purpose other than to identify prospective properties consumers may be interested in purchasing. Open House information is subject to change without notice. Information deemed reliable but not guaranteed.
Copyright 2026 Regional Multiple Listing Service of Minnesota, Inc. All Rights Reserved.
Payment Calculator
Interest rate and annual percentage rate (APR) are based on current market conditions, are for informational purposes only, are subject to change without notice and may be subject to pricing add-ons related to property type, loan amount, loan-to-value, credit score and other variables. Estimated closing costs used in the APR calculation are assumed to be paid by the borrower at closing. If the closing costs are financed, the loan, APR and payment amounts will be higher. If the down payment is less than 20%, mortgage insurance may be required and could increase the monthly payment and APR. Contact us for details. Additional loan programs may be available. Accuracy is not guaranteed, and all products may not be available in all borrower's geographical areas and are based on their individual situation. This is not a credit decision or a commitment to lend.
Sales History & Tax Summary for 4215 E Lake Street
Sales History
| Date | Price | |
|---|---|---|
| Currently not available. | ||
Tax Summary
| Tax Year | Estimated Market Value | Total Tax |
|---|---|---|
| Currently not available. | ||
Data powered by ATTOM Data Solutions. Copyright© 2026. Information deemed reliable but not guaranteed.
Schools
Schools nearby 4215 E Lake Street
| Schools in attendance boundaries | Grades | Distance | Rating |
|---|---|---|---|
| Loading... | |||
| Schools nearby | Grades | Distance | Rating |
|---|---|---|---|
| Loading... | |||
Data powered by ATTOM Data Solutions. Copyright© 2026. Information deemed reliable but not guaranteed.
The schools shown represent both the assigned schools and schools by distance based on local school and district attendance boundaries. Attendance boundaries change based on various factors and proximity does not guarantee enrollment eligibility. Please consult your real estate agent and/or the school district to confirm the schools this property is zoned to attend. Information is deemed reliable but not guaranteed.
SchoolDigger ® Rating
The SchoolDigger rating system is a 1-5 scale with 5 as the highest rating. SchoolDigger ranks schools based on test scores supplied by each state's Department of Education. They calculate an average standard score by normalizing and averaging each school's test scores across all tests and grades.
Coming soon properties will soon be on the market, but are not yet available for showings.