4216 W Euclid Avenue Tampa, FL 33629
For Sale MLS# TB8441995
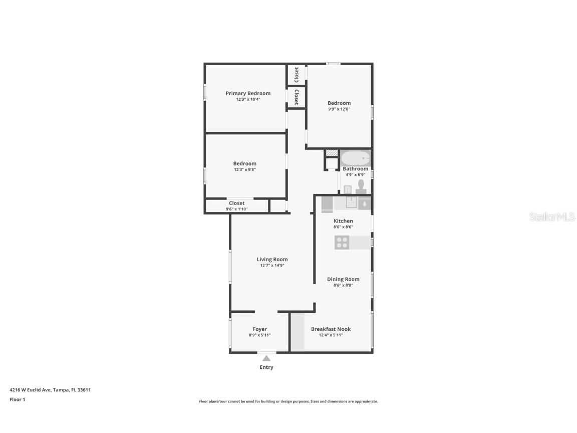
3 beds 1 baths 1,252 sq ft Single Family
Details for 4216 W Euclid Avenue
MLS# TB8441995
Description for 4216 W Euclid Avenue, Tampa, FL, 33629
Welcome to your new favorite place in South Tampa! Nestled on a spacious lot in a quiet and welcoming neighborhood, this charming mid-century modern single-family home offers 3 bedrooms and 1 bath across 1,252 sq ft of thoughtfully arranged living space. Step inside and you’ll immediately feel that warm, natural glow thanks to real wood floors throughout the main rooms and tile underfoot in the kitchen and bath. The kitchen feels inviting and modern—with open shelving, butcher-block and laminate countertops, sleek appliances, and a convenient serve-through for easy entertaining. Outside, the solid block construction ensures peace of mind, and the fully fenced yard becomes your private garden oasis: lush trees and bamboo frame multiple relaxing lounge spots to delight in, and lots of space for a barbecue or simply unwinding under the Florida sky. A large carpenter shed with electric hookup gives a handy homeowner the ability to work on home projects or crafts if desired. Parking is ample, and you’re just .2 miles from the Kenneth Adum K-8 Magnet School and the public library—such a great, practical location! Moments from shops, restaurants, parks and entertainment, this home blends the ease of location with the character and serenity you’ll adore. Come see how it just might check all the boxes for your next chapter. Special Rocket Mortgage incentives are available for Redfin listings.
Listing Information
Property Type: Residential, Single Family Residence
Status: Active
Bedrooms: 3
Bathrooms: 1
Lot Size: 0.20 Acres
Square Feet: 1,252 sq ft
Year Built: 1953
Stories: 1 Story
Construction: Block
Subdivision: Bel Mar Unit 4
Foundation: Crawlspace
County: Hillsborough
School Information
Elementary: Anderson-Hb
Middle: Madison-Hb
High: Robinson-Hb
Room Information
Main Floor
Primary Bedroom:
Living Room:
Kitchen:
Bathrooms
Full Baths: 1
Additonal Room Information
Laundry: Other
Interior Features
Appliances: Dryer, Washer, Range, Refrigerator, Electric Water Heater
Flooring: Tile,Wood
Basement: Crawl Space
Additional Interior Features: Ceiling Fan(s), Built-in Features, Main Level Primary, Solid Surface Counters
Utilities
Water: Public
Sewer: Public Sewer
Other Utilities: Electricity Connected,Municipal Utilities,Sewer Connected,Water Connected
Cooling: Ceiling Fan(s), Central Air
Heating: Electric
Exterior / Lot Features
Parking Description: driveway, Covered
Roof: Shingle
Lot View: Trees/Woods
Lot Dimensions: 81x110
Fencing: fenced
Additional Exterior/Lot Features: Lighting, Patio, Landscaped
Out Buildings: Shed(s)
Community Features
Community Features: Sidewalks, Street Lights
Driving Directions
Selmon Expressway W to W Euclid Ave.
Financial Considerations
Terms: Cash,Conventional,FHA,VA Loan
Tax/Property ID: A-33-29-18-3TU-000000-00202.0
Tax Amount: 3287.83
Tax Year: 2024
A broker reciprocity listing courtesy: REDFIN CORPORATION
Based on information provided by Stellar MLS as distributed by the MLS GRID. Information from the Internet Data Exchange is provided exclusively for consumers’ personal, non-commercial use, and such information may not be used for any purpose other than to identify prospective properties consumers may be interested in purchasing. This data is deemed reliable but is not guaranteed to be accurate by Edina Realty, Inc., or by the MLS. Edina Realty, Inc., is not a multiple listing service (MLS), nor does it offer MLS access.
Copyright 2025 Stellar MLS as distributed by the MLS GRID. All Rights Reserved.
Payment Calculator
Interest rate and annual percentage rate (APR) are based on current market conditions, are for informational purposes only, are subject to change without notice and may be subject to pricing add-ons related to property type, loan amount, loan-to-value, credit score and other variables. Estimated closing costs used in the APR calculation are assumed to be paid by the borrower at closing. If the closing costs are financed, the loan, APR and payment amounts will be higher. If the down payment is less than 20%, mortgage insurance may be required and could increase the monthly payment and APR. Contact us for details. Additional loan programs may be available. Accuracy is not guaranteed, and all products may not be available in all borrower's geographical areas and are based on their individual situation. This is not a credit decision or a commitment to lend.
Sales History & Tax Summary for 4216 W Euclid Avenue
Sales History
| Date | Price | Change |
|---|---|---|
| Currently not available. | ||
Tax Summary
| Tax Year | Estimated Market Value | Total Tax |
|---|---|---|
| Currently not available. | ||
Data powered by ATTOM Data Solutions. Copyright© 2025. Information deemed reliable but not guaranteed.
Schools
Schools nearby 4216 W Euclid Avenue
| Schools in attendance boundaries | Grades | Distance | Rating |
|---|---|---|---|
| Loading... | |||
| Schools nearby | Grades | Distance | Rating |
|---|---|---|---|
| Loading... | |||
Data powered by ATTOM Data Solutions. Copyright© 2025. Information deemed reliable but not guaranteed.
The schools shown represent both the assigned schools and schools by distance based on local school and district attendance boundaries. Attendance boundaries change based on various factors and proximity does not guarantee enrollment eligibility. Please consult your real estate agent and/or the school district to confirm the schools this property is zoned to attend. Information is deemed reliable but not guaranteed.
SchoolDigger ® Rating
The SchoolDigger rating system is a 1-5 scale with 5 as the highest rating. SchoolDigger ranks schools based on test scores supplied by each state's Department of Education. They calculate an average standard score by normalizing and averaging each school's test scores across all tests and grades.
Coming soon properties will soon be on the market, but are not yet available for showings.