4251 Heartwood Ln Hermantown, MN 55811
For Sale MLS# 6123979
3 beds 2 baths 1,580 sq ft Townhouse/Twinhome
Details for 4251 Heartwood Ln
MLS# 6123979
Description for 4251 Heartwood Ln, Hermantown, MN, 55811
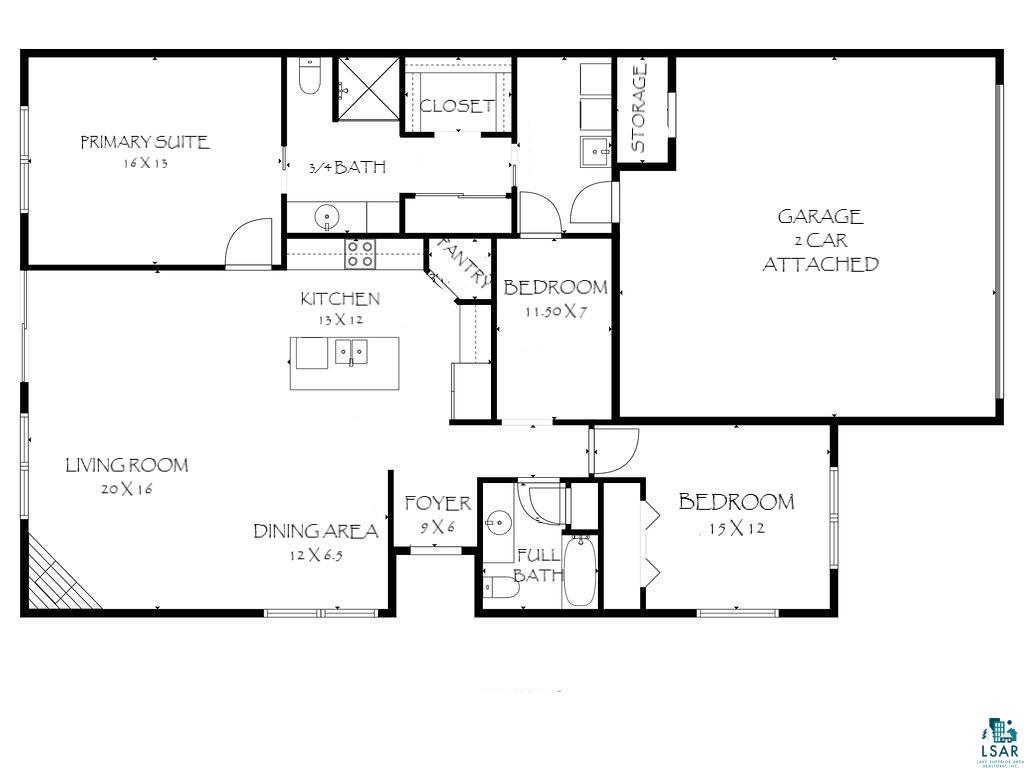
Enter the foyer with its shiny floors, which lead to a bright, open living space. The one-level layout makes moving around the home easy. The living room features a stone gas fireplace and built-in shelves, with soft lighting that creates a comfortable setting for relaxing or entertaining. Transitioning from the living room, the dining area opens to large patio doors, which provide abundant natural light and direct access to the outdoors. The kitchen features white cabinets and granite counters. A large island serves as both a breakfast bar and prep area, and a walk-in pantry provides ample storage. Moving to the private primary suite, it includes a three-quarter bath and a spacious walk-in closet, offering a relaxing start to each day. The additional bedrooms are versatile, with one easily converted to the coveted home office. The full bathroom includes a laundry area conveniently located near the kitchen. The covered patio provides a comfortable space to enjoy the outdoors and overlooks the wooded area just behind the townhouse and lovely front yard. A storage shed keeps gardening or recreational equipment organized. Hermantown's trails along Lake Superior are nearby, offering convenient access to all-season activities. The attached two-car garage features a workbench and custom storage. The location is prime, close to schools, the mall, and the Hermantown trails. If a turn-the-key-and-go lifestyle sounds amazing, then come to 4251 Heartwood Lane today.
Listing Information
Property Type: Residential, Condo/Townhouse, Two Unit
Status: Active
Bedrooms: 3
Bathrooms: 2
Lot Size: 0.17 Acres
Square Feet: 1,580 sq ft
Year Built: 2021
Garage: Yes
Stories: 1 Story
Construction: Frame/Wood
County: St. Louis
School Information
District: Hermantown #700
Room Information
Main Floor
Foyer: 9x6
Living Room: 21x16
Dining Room: 12x6.5
Kitchen: 13x12
Pantry: 4x4
Primary Bedroom: 16x13
Bedroom: 15x12
Bedroom: 11.5x7.0
Laundry Room: 11x6.0
Bathrooms
Full Baths: 1
3/4 Baths: 1
Additonal Room Information
Other: Foyer
Dining: Breakfast Bar,Informal Dining Room
Bath Description: 3/4 Master,Full Main Floor
Interior Features
Square Footage above: 1,580 sq ft
Appliances: Dishwasher, Dryer, Microwave, Range/Stove, Refrigerator, Washer
Basement: Slab
Fireplaces: Gas
Additional Interior Features: Kitchen Center Island, Foyer Entry
Utilities
Water: City
Sewer: City
Cooling: Ductless Mini Split
Heating: Fireplace, Forced Air
Exterior / Lot Features
Attached Garage: Attached Garage
Garage Spaces: 2
Parking Description: Garage Description - Attached
Exterior: Vinyl
Roof: Asphalt Shingles
Lot View: Typical
Lot Dimensions: irr
Additional Exterior/Lot Features: Patio, Road Frontage - Paved, City
Driving Directions
W. Arrowhead Rd to Heartwood Lane.
Financial Considerations
Terms: Cash,Conventional,FHA,VA DVA
Tax/Property ID: 395-0056-00130
Tax Amount: 5554
Tax Year: 2026
A broker reciprocity listing courtesy: Messina & Associates Real Estate - Nicki Conrad
The data relating to real estate for sale on this web site comes in part from the Broker Reciprocity℠ Program of the Duluth Area Association of REALTORS® MLS. Real estate listings held by brokerage firms other than Edina Realty, Inc. are marked with the Broker Reciprocity℠ logo or the Broker Reciprocity℠ thumbnail and detailed information about them includes the name of the listing brokers. Edina Realty, Inc. is not a Multiple Listing Service (MLS), nor does it offer MLS access. This website is a service of Edina Realty, Inc., a broker Participant of the Duluth Area Association of REALTORS® MLS. IDX information is provided exclusively for consumers personal, non-commercial use and may not be used for any purpose other than to identify prospective properties consumers may be interested in purchasing. Open House information is subject to change without notice. Information deemed reliable but not guaranteed.
Copyright 2026 Duluth Area Association of REALTORS® MLS. All Rights Reserved.
Payment Calculator
Interest rate and annual percentage rate (APR) are based on current market conditions, are for informational purposes only, are subject to change without notice and may be subject to pricing add-ons related to property type, loan amount, loan-to-value, credit score and other variables. Estimated closing costs used in the APR calculation are assumed to be paid by the borrower at closing. If the closing costs are financed, the loan, APR and payment amounts will be higher. If the down payment is less than 20%, mortgage insurance may be required and could increase the monthly payment and APR. Contact us for details. Additional loan programs may be available. Accuracy is not guaranteed, and all products may not be available in all borrower's geographical areas and are based on their individual situation. This is not a credit decision or a commitment to lend.
Sales History & Tax Summary for 4251 Heartwood Ln
Sales History
| Date | Price | |
|---|---|---|
| Currently not available. | ||
Tax Summary
| Tax Year | Estimated Market Value | Total Tax |
|---|---|---|
| Currently not available. | ||
Data powered by ATTOM Data Solutions. Copyright© 2026. Information deemed reliable but not guaranteed.
Schools
Schools nearby 4251 Heartwood Ln
| Schools in attendance boundaries | Grades | Distance | Rating |
|---|---|---|---|
| Loading... | |||
| Schools nearby | Grades | Distance | Rating |
|---|---|---|---|
| Loading... | |||
Data powered by ATTOM Data Solutions. Copyright© 2026. Information deemed reliable but not guaranteed.
The schools shown represent both the assigned schools and schools by distance based on local school and district attendance boundaries. Attendance boundaries change based on various factors and proximity does not guarantee enrollment eligibility. Please consult your real estate agent and/or the school district to confirm the schools this property is zoned to attend. Information is deemed reliable but not guaranteed.
SchoolDigger ® Rating
The SchoolDigger rating system is a 1-5 scale with 5 as the highest rating. SchoolDigger ranks schools based on test scores supplied by each state's Department of Education. They calculate an average standard score by normalizing and averaging each school's test scores across all tests and grades.
Coming soon properties will soon be on the market, but are not yet available for showings.