4257 Rosatti Road Wesley Chapel, FL 33543
For Sale MLS# TB8373456
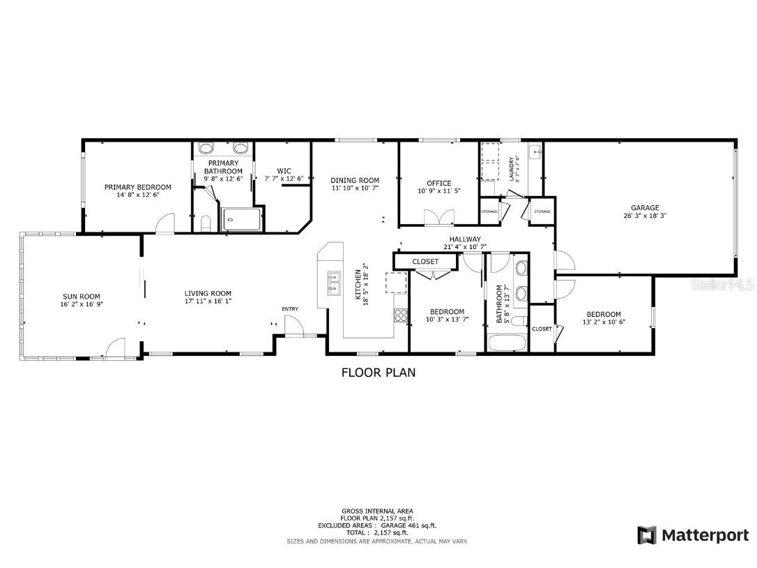
3 beds 2 baths 1,934 sq ft Single Family
Details for 4257 Rosatti Road
MLS# TB8373456
Description for 4257 Rosatti Road, Wesley Chapel, FL, 33543
OWNER MOTIVATED!- Why wait to build? Arezzo by Taylor Morrison, a former model home is available, complete with designer selected furnishings. You will be the first to live in this home which features 1,926 SF, 3 bedrooms, 2 baths, an office/flex room, extended garage and extended screened paver lanai. You will notice the attention to detail as you enter the custom glass door to an open floor plan, upgraded gourmet kitchen overlooking a large family room and dining room, featuring 42” solid wood cushion close cabinets with crown molding, quartz counters, under cabinet LED lighting, upgraded stainless steel appliances, porcelain farm sink, pantry, subway tile backsplash, and extra counter space. The owner’s oversized suite has dual sinks, walk in shower, a two-sided closet, and a tray ceiling with crown molding. The family room boasts a tray ceilings with crown molding, and lots of natural light. Bedroom two adjoins the second bath, bedroom three has a walk-in closet. The office/flex room has French doors and custom mill work. This one-story Taylor Morrison custom home has an open floor plan with an extensive list of upgrades. These upgrades include but are not limited to designer plank tile floors throughout in common areas, electronic light package, alarm system, ceiling fans, custom designer drapes, quartz counters in baths, extended paver driveway, tile roof, large laundry room with washer, dryer, cabinets & sink, extended garage has epoxy floors, ceiling speaker package, custom lighting package in all rooms, high end furniture including Bernhardt, wall art, and many decorator accessory items, all are included in this home. Step out on to the covered and extended screened lanai and you will be ready to enjoy the Florida outdoors. Esplanade of Wiregrass Ranch has a luxurious upscale club house with full-time lifestyle and fitness directors. Esplanade of Wiregrass is an active 55+ community with resort style amenities. The Venue includes a resort style pool, hot tub, cabanas, dog park, state-of-the-art 24-hour fitness center, billiard/card room, and spa room. For active outdoor entertainment there is a firepit, tennis, pickleball, bocci, and a large meeting/gathering area. Esplanade also includes worry free yard maintenance, reclaimed water and Spectrum TV and internet package included in fees. This home is located only minutes from shopping, I-275, I-75, hospitals, restaurants, recreation, and entertainment. Come see for yourself this exquisite model perfect residence that is ready for you to move in and call it home! Please see walkthrough and Matterport 3D tours.
Listing Information
Property Type: Residential, Single Family Residence
Status: Active
Bedrooms: 3
Bathrooms: 2
Lot Size: 0.16 Acres
Square Feet: 1,934 sq ft
Year Built: 2020
Garage: Yes
Stories: 1 Story
Construction: Block,Stucco
Construction Display: New Construction
Subdivision: Esplanade/Wiregrass Ranch Ph 1
Builder: Taylor Morrison
Foundation: Slab
County: Pasco
Construction Status: New Construction
Room Information
Main Floor
Great Room: 16x18
Den: 10x11
Dining Room: 11x14
Bedroom 3: 10x11
Bedroom 2: 10x13
Kitchen: 14x12
Primary Bedroom: 12x14
Bathrooms
Full Baths: 2
Additonal Room Information
Laundry: Laundry Room, Inside, Washer Hookup, Electric Dryer Hookup, Gas Dryer Hookup
Interior Features
Appliances: Gas Water Heater, Washer, Microwave, Range, Refrigerator, Dishwasher, Disposal
Flooring: Carpet,Tile
Doors/Windows: Window Treatments, Double Pane Windows, Aluminum Frames
Additional Interior Features: Walk-In Closet(s), Window Treatments, Tray Ceiling(s), Built-in Features, Split Bedrooms, Crown Molding, Open Floorplan, Kitchen/Family Room Combo, Separate/Formal Dining Room, Ceiling Fan(s), Solid Surface Counters, Stone Counters, Wood Cabinets
Utilities
Water: Public
Sewer: Public Sewer
Other Utilities: Cable Available,Cable Connected,Electricity Available,Electricity Connected,Fiber Optic Available,Natural Gas Available,Natural Gas Connected,High Speed Internet Available,Municipal Utilities,Phone Available,Sewer Available,Sewer Connected,Underground Utilities,Water Available,Water Connected
Cooling: Ceiling Fan(s), Central Air, Zoned
Heating: Electric, Central, Heat Pump
Exterior / Lot Features
Attached Garage: Attached Garage
Garage Spaces: 2
Parking Description: Oversized
Roof: Concrete, Tile
Pool: Association, Community
Lot Dimensions: 47x147
Fencing: Vinyl
Additional Exterior/Lot Features: Rain Gutters, Sprinkler/Irrigation, Level, Flat, Cleared, Private Road, Outside City Limits
Community Features
Community Features: Community Mailbox, Clubhouse, Dog Park, Recreation Area, Street Lights, Gated, Park, Fitness, Playground, Pool, Tennis Court(s), Sidewalks
Security Features: Smoke Detector(s), Gated Community, Fire Hydrant(s)
Association Amenities: Recreation Facilities, Playground, Clubhouse, Fitness Center, Tennis Court(s), Pool, Cable TV, Park, Pickleball, Gated, Spa/Hot Tub, Trail(s)
HOA Dues Include: Pool(s), Common Areas, Reserve Fund, Road Maintenance, Maintenance Grounds, Cable TV, Internet, Taxes, Recreation Facilities
Homeowners Association: Yes
HOA Dues: $1,353 / Quarterly
Driving Directions
From State Road 56 go north on Wiregrass Ranch to Esplanade gate which is first right past Chancey, Proceed through gate, take second left on Rosatti, house on left
Financial Considerations
Terms: Cash,Conventional,FHA,VA Loan
Tax/Property ID: 20-26-17-0080-00000-0350
Tax Amount: 10086
Tax Year: 2024
A broker reciprocity listing courtesy: BHHS FLORIDA PROPERTIES GROUP
Based on information provided by Stellar MLS as distributed by the MLS GRID. Information from the Internet Data Exchange is provided exclusively for consumers’ personal, non-commercial use, and such information may not be used for any purpose other than to identify prospective properties consumers may be interested in purchasing. This data is deemed reliable but is not guaranteed to be accurate by Edina Realty, Inc., or by the MLS. Edina Realty, Inc., is not a multiple listing service (MLS), nor does it offer MLS access.
Copyright 2025 Stellar MLS as distributed by the MLS GRID. All Rights Reserved.
Payment Calculator
Interest rate and annual percentage rate (APR) are based on current market conditions, are for informational purposes only, are subject to change without notice and may be subject to pricing add-ons related to property type, loan amount, loan-to-value, credit score and other variables. Estimated closing costs used in the APR calculation are assumed to be paid by the borrower at closing. If the closing costs are financed, the loan, APR and payment amounts will be higher. If the down payment is less than 20%, mortgage insurance may be required and could increase the monthly payment and APR. Contact us for details. Additional loan programs may be available. Accuracy is not guaranteed, and all products may not be available in all borrower's geographical areas and are based on their individual situation. This is not a credit decision or a commitment to lend.
Sales History & Tax Summary for 4257 Rosatti Road
Sales History
| Date | Price | Change |
|---|---|---|
| Currently not available. | ||
Tax Summary
| Tax Year | Estimated Market Value | Total Tax |
|---|---|---|
| Currently not available. | ||
Data powered by ATTOM Data Solutions. Copyright© 2025. Information deemed reliable but not guaranteed.
Schools
Schools nearby 4257 Rosatti Road
| Schools in attendance boundaries | Grades | Distance | Rating |
|---|---|---|---|
| Loading... | |||
| Schools nearby | Grades | Distance | Rating |
|---|---|---|---|
| Loading... | |||
Data powered by ATTOM Data Solutions. Copyright© 2025. Information deemed reliable but not guaranteed.
The schools shown represent both the assigned schools and schools by distance based on local school and district attendance boundaries. Attendance boundaries change based on various factors and proximity does not guarantee enrollment eligibility. Please consult your real estate agent and/or the school district to confirm the schools this property is zoned to attend. Information is deemed reliable but not guaranteed.
SchoolDigger ® Rating
The SchoolDigger rating system is a 1-5 scale with 5 as the highest rating. SchoolDigger ranks schools based on test scores supplied by each state's Department of Education. They calculate an average standard score by normalizing and averaging each school's test scores across all tests and grades.
Coming soon properties will soon be on the market, but are not yet available for showings.