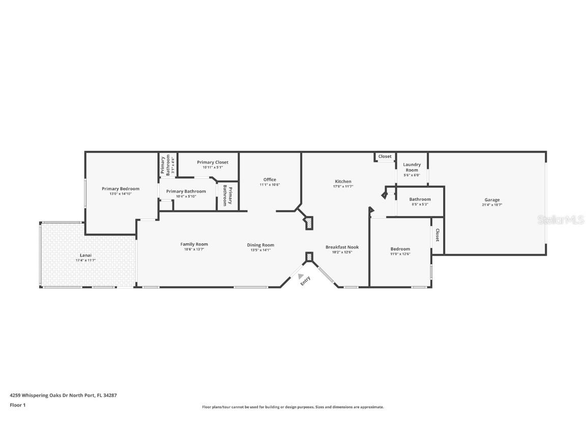
4259 Whispering Oaks Drive North Port, FL 34287
For Sale MLS# N6136755
2 beds 2 baths 1,504 sq ft Single Family
Details for 4259 Whispering Oaks Drive
MLS# N6136755
Description for 4259 Whispering Oaks Drive, North Port, FL, 34287
HERON CREEK GOLF & COUNTRY CLUB *TURNKEY FURNISHED *Paired Villa 2BED 2BATH +DEN with panoramic GOLF VIEW (#4 Oaks)! Available for Immediate Occupancy! This former Model is oozing with Coastal Charm, boasts over 1500 sq feet of well-designed living space and is perfectly suited for both seasonal escapes and year-round living! The desirable Bimini floor plan features a spacious open concept great room, versatile DEN/office, split bedroom plan for privacy, a fabulous Island kitchen w/sun filled dining nook and a spacious extended lanai overlooking the lush fairway! From the moment you walk through the beautiful leaded glass door you can’t help but appreciate the chic coastal casual décor and design. This villa surely shows like a model but lives like a home …it is stylish yet comfortable and inviting. Design and décor features include classic crown molding, shiplap and decorative millwork, custom window valances and drapes, decorative lighting and fans, stunning sand washed tile plank flooring throughout the living areas, tray ceilings, unique architectural details and niches, artistic wall treatments and perfectly suited furnishings and coordinating décor! The well-appointed Kitchen has abundant cabinetry and workspace, a NATURAL GAS range and is fully equipped with dinnerware, small appliances & pots and pans. Linens and Towels are also included for both bedrooms so all you really need is your suitcase! This villa could also be a great investment opportunity used as a seasonal rental (MIN RENTAL 3 MONTH). The den features a custom built in desk and workstation perfect for a home office. The Primary suite is bright and cheerful with a large double window and features a great window seat with hidden storage. The ensuite bath has dual vanities, a spacious walk-in shower, clothes closet, separate linen closet and has a tubular skylight that brings in abundant natural light. Guests can enjoy privacy in their own bedroom with adjacent full bath at the front of the home. This beautiful villa is ready to warm your heart just in time for Valentines Day! Heron Creek offers exceptional amenities including a 21,000 sq ft clubhouse, 27 holes of Championship golf Arthur Hills design, resort style pool & spa, a robust social activity calendar, fitness center, Tennis courts & formal & casual dining options! Club Membership is required with 3 membership levels offered beginning at $268/month *NO CDD FEES * LOW HOA FEES include lawn care, trimmings, mulching, irrigation, Cable HIGH-SPEED INTERNET &Gated entry, conveniently located w/easy access to I-75 & US-41, Cocoa Plum Shopping, Myakkahatchee Creek trails, WELLEN PARK, Braves Stadium, COSTCO & new SMH health
Listing Information
Property Type: Residential, Villa
Status: Active
Bedrooms: 2
Bathrooms: 2
Lot Size: 0.14 Acres
Square Feet: 1,504 sq ft
Year Built: 2002
Garage: Yes
Stories: 1 Story
Construction: Block,Stucco
Subdivision: Heron Creek
Builder: WESTFIELD
Foundation: Slab
County: Sarasota
Room Information
Main Floor
Primary Bedroom: 14x13
Den: 11x10
Kitchen: 10x8
Great Room: 27x13
Dinette: 10x9
Bedroom 2: 12x11
Bathrooms
Full Baths: 2
Additonal Room Information
Laundry: Laundry Room, Inside
Interior Features
Appliances: Gas Water Heater, Microwave, Washer, Range, Refrigerator, Dishwasher, Disposal, Dryer
Flooring: Carpet,Ceramic Tile
Doors/Windows: Blinds, Window Treatments, Skylight(s)
Additional Interior Features: Skylights, Tray Ceiling(s), Built-in Features, Window Treatments, Split Bedrooms, Walk-In Closet(s), Ceiling Fan(s), Eat-In Kitchen, Open Floorplan, Solid Surface Counters, Chair Rail, Crown Molding, High Ceilings, Living/Dining Room
Utilities
Water: Public
Sewer: Public Sewer
Other Utilities: Cable Connected,Natural Gas Connected,Municipal Utilities
Cooling: Ceiling Fan(s), Central Air
Heating: Central, Electric
Exterior / Lot Features
Attached Garage: Attached Garage
Garage Spaces: 2
Roof: Tile
Pool: Community
Lot View: Golf Course
Additional Exterior/Lot Features: Sprinkler/Irrigation, Screened, On Golf Course, Landscaped
Community Features
Community Features: Pool, Tennis Court(s), Sidewalks, Clubhouse, Golf, Gated, Restaurant, Fitness, Golf Carts OK, Community Mailbox
Security Features: Gated Community, Gated with Guard
HOA Dues Include: Maintenance Structure, Cable TV, Internet
Homeowners Association: Yes
HOA Dues: $1,211 / Quarterly
Driving Directions
enter Heron Creek through main gate at Sumter Blvd and Heron Creek Blvd proceed through gate take immediate left on whispering Oaks follow to stop take right at stop follow to 4259 on the right
Financial Considerations
Terms: Cash,Conventional
Tax/Property ID: 0992170356
Tax Amount: 3953.95
Tax Year: 2024
A broker reciprocity listing courtesy: POINTE OF PALMS REAL ESTATE
Based on information provided by Stellar MLS as distributed by the MLS GRID. Information from the Internet Data Exchange is provided exclusively for consumers’ personal, non-commercial use, and such information may not be used for any purpose other than to identify prospective properties consumers may be interested in purchasing. This data is deemed reliable but is not guaranteed to be accurate by Edina Realty, Inc., or by the MLS. Edina Realty, Inc., is not a multiple listing service (MLS), nor does it offer MLS access.
Copyright 2025 Stellar MLS as distributed by the MLS GRID. All Rights Reserved.
Payment Calculator
Interest rate and annual percentage rate (APR) are based on current market conditions, are for informational purposes only, are subject to change without notice and may be subject to pricing add-ons related to property type, loan amount, loan-to-value, credit score and other variables. Estimated closing costs used in the APR calculation are assumed to be paid by the borrower at closing. If the closing costs are financed, the loan, APR and payment amounts will be higher. If the down payment is less than 20%, mortgage insurance may be required and could increase the monthly payment and APR. Contact us for details. Additional loan programs may be available. Accuracy is not guaranteed, and all products may not be available in all borrower's geographical areas and are based on their individual situation. This is not a credit decision or a commitment to lend.
Sales History & Tax Summary for 4259 Whispering Oaks Drive
Sales History
| Date | Price | Change |
|---|---|---|
| Currently not available. | ||
Tax Summary
| Tax Year | Estimated Market Value | Total Tax |
|---|---|---|
| Currently not available. | ||
Data powered by ATTOM Data Solutions. Copyright© 2025. Information deemed reliable but not guaranteed.
Schools
Schools nearby 4259 Whispering Oaks Drive
| Schools in attendance boundaries | Grades | Distance | Rating |
|---|---|---|---|
| Loading... | |||
| Schools nearby | Grades | Distance | Rating |
|---|---|---|---|
| Loading... | |||
Data powered by ATTOM Data Solutions. Copyright© 2025. Information deemed reliable but not guaranteed.
The schools shown represent both the assigned schools and schools by distance based on local school and district attendance boundaries. Attendance boundaries change based on various factors and proximity does not guarantee enrollment eligibility. Please consult your real estate agent and/or the school district to confirm the schools this property is zoned to attend. Information is deemed reliable but not guaranteed.
SchoolDigger ® Rating
The SchoolDigger rating system is a 1-5 scale with 5 as the highest rating. SchoolDigger ranks schools based on test scores supplied by each state's Department of Education. They calculate an average standard score by normalizing and averaging each school's test scores across all tests and grades.
Coming soon properties will soon be on the market, but are not yet available for showings.