$925,000
4281 End of Trail Lane Tower, MN 55790 - Vermilion
For Sale MLS# 149232
4 beds 3 baths 2,998 sq ft Single Family
Details for 4281 End of Trail Lane
MLS# 149232
Description for 4281 End of Trail Lane, Tower, MN, 55790 - Vermilion
Lake Vermilion – Year-Round Lake Home in Premier Location with 120 feet of shoreline. Beautifully maintained 4BR 3 BA home (3 conforming bedrooms plus 1 non-conforming) on a level lot in a quiet, protected bay of Daisy Bay. Enjoy one of the most desirable settings on Lake Vermilion with stunning views and easy, level access to the water. This home features an open floor plan with a walk-out lower level, full-length lakeside deck, and large windows that fill the space with natural light. The main living area offers in-floor heat, two cozy fireplaces, and comfortable year-round living. Outside, relax in your private sauna house after a day on the lake, or enjoy the peaceful views from the spacious deck. The property includes a newer extended dock, a 2+ car garage, and comes mostly furnished, lift, dock, just move in and start enjoying lake life. Located on a dead- road for privacy, yet close to area amenities and boat access. This is a rare opportunity to own a turnkey lake home.
Listing Information
Property Type: Residential, One Story
Status: Active
Bedrooms: 4
Bathrooms: 3
Lot Size: 0.67 Acres
Square Feet: 2,998 sq ft
Year Built: 2005
Garage: Yes
Construction: Concrete,Modular
School Information
District: Tower/Soudan- 2142
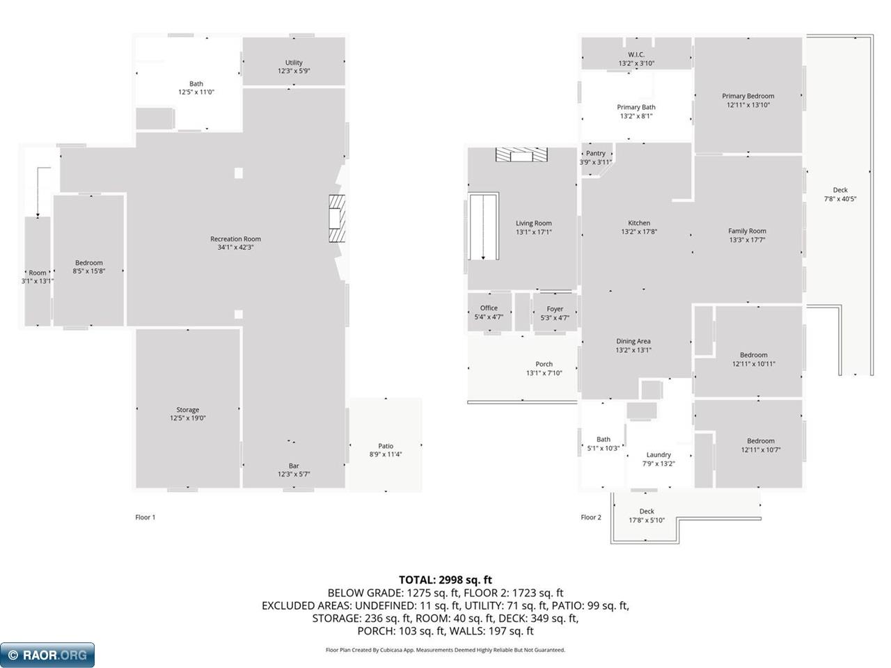
Room Information
Main Floor
Bedroom 1: 12x14
Bedroom 2: 13x11
Bedroom 3: 13x11
Dining Room: 13x13
Kitchen: 13x18
Living Room: 13x17
Other: 5x5
Lower Floor
Other: 9x16
Recreation Room: 34x42
Interior Features
Square Footage above: 0 sq ft
Square Footage below: 1,275 sq ft
Appliances: Dishwasher, Microwave, Refrigerator, Washer, Elec. Dryer, Electric Range
Basement: Walkout
Fireplaces: Gas Log
Utilities
Cooling: Central, Ceiling Fan
Heating: Forced Air, Hot Water, In-Floor
Exterior / Lot Features
Garage Spaces: 2
Parking Description: Garage Description - 2 Stalls, Garage Dimensions - 437
Exterior: Vinyl
Roof: Asphalt
Additional Exterior/Lot Features: Deck, Patio
Waterfront Details
Standard Water Body: Vermilion
DNR Lake ID: 69037800
Water Front Features: 1 - Lake
Financial Considerations
Tax/Property ID: 3870240000020
A broker reciprocity listing courtesy: z' Up North Realty
The data relating to real estate for sale on this web site comes in part from the Broker Reciprocity℠ Program of the RAOR - Range Association of REALTORS®. Real estate listings held by brokerage firms other than Edina Realty, Inc. are marked with the Broker Reciprocity℠ logo or the Broker Reciprocity℠ thumbnail and detailed information about them includes the name of the listing brokers. Edina Realty, Inc. is not a Multiple Listing Service (MLS), nor does it offer MLS access. This website is a service of Edina Realty, Inc., a broker Participant of the RAOR - Range Association of REALTORS®. IDX information is provided exclusively for consumers personal, non-commercial use and may not be used for any purpose other than to identify prospective properties consumers may be interested in purchasing. Open House information is subject to change without notice. Information deemed reliable but not guaranteed.
Copyright 2025 RAOR - Range Association of REALTORS®. All Rights Reserved.
Payment Calculator
Interest rate and annual percentage rate (APR) are based on current market conditions, are for informational purposes only, are subject to change without notice and may be subject to pricing add-ons related to property type, loan amount, loan-to-value, credit score and other variables. Estimated closing costs used in the APR calculation are assumed to be paid by the borrower at closing. If the closing costs are financed, the loan, APR and payment amounts will be higher. If the down payment is less than 20%, mortgage insurance may be required and could increase the monthly payment and APR. Contact us for details. Additional loan programs may be available. Accuracy is not guaranteed, and all products may not be available in all borrower's geographical areas and are based on their individual situation. This is not a credit decision or a commitment to lend.
Sales History & Tax Summary for 4281 End of Trail Lane
Sales History
| Date | Price | Change |
|---|---|---|
| Currently not available. | ||
Tax Summary
| Tax Year | Estimated Market Value | Total Tax |
|---|---|---|
| Currently not available. | ||
Data powered by ATTOM Data Solutions. Copyright© 2025. Information deemed reliable but not guaranteed.
Schools
Schools nearby 4281 End of Trail Lane
| Schools in attendance boundaries | Grades | Distance | Rating |
|---|---|---|---|
| Loading... | |||
| Schools nearby | Grades | Distance | Rating |
|---|---|---|---|
| Loading... | |||
Data powered by ATTOM Data Solutions. Copyright© 2025. Information deemed reliable but not guaranteed.
The schools shown represent both the assigned schools and schools by distance based on local school and district attendance boundaries. Attendance boundaries change based on various factors and proximity does not guarantee enrollment eligibility. Please consult your real estate agent and/or the school district to confirm the schools this property is zoned to attend. Information is deemed reliable but not guaranteed.
SchoolDigger ® Rating
The SchoolDigger rating system is a 1-5 scale with 5 as the highest rating. SchoolDigger ranks schools based on test scores supplied by each state's Department of Education. They calculate an average standard score by normalizing and averaging each school's test scores across all tests and grades.
Coming soon properties will soon be on the market, but are not yet available for showings.